Nieuw
Ruime open bebouwing op een perceel van 16a 25ca te Niel-bij-As
€ 349.500
Een pand van Frère Vastgoed
Overzicht
- 175 m² bewoonbaar
- 1625 m² grond
- 2 Slaapkamer(s)
- 2 Badkamer(s)
Overstromingsgevaar gebouw
Overstromingsgevaar perceel
Beschrijving
Welkom op de Hoogstraat 156 in Niel-bij-As.
Een charmante, vrijstaande woning met ruimte, comfort én een topligging.
Deze solide woning, gebouwd in 1960, is gelegen op een ruim perceel van 16a25ca in het populaire Niel-bij-As.
Dankzij de centrale ligging bevinden winkels en voorzieningen zich op wandelafstand, zoals de Okay-supermarkt, de gemeentelijke basisschool en de apotheek.
Ideaal voor wie comfortabel en praktisch wil wonen.
Troeven:
✔ Vrijstaande woning op een groot perceel
✔ Volledig onderkelderd
✔ Woonoppervlakte (excl. garage en kelder): 175 m²
✔ Totale bruikbare oppervlakte: 315 m²
✔ Energiezuinig met EPC-label D (356 kWh/m²)
✔ Verwarming op gas
✔ Elektrische installatie volledig conform
✔ PVC-ramen met dubbel glas
✔ Ruime tuin met aangenaam terras
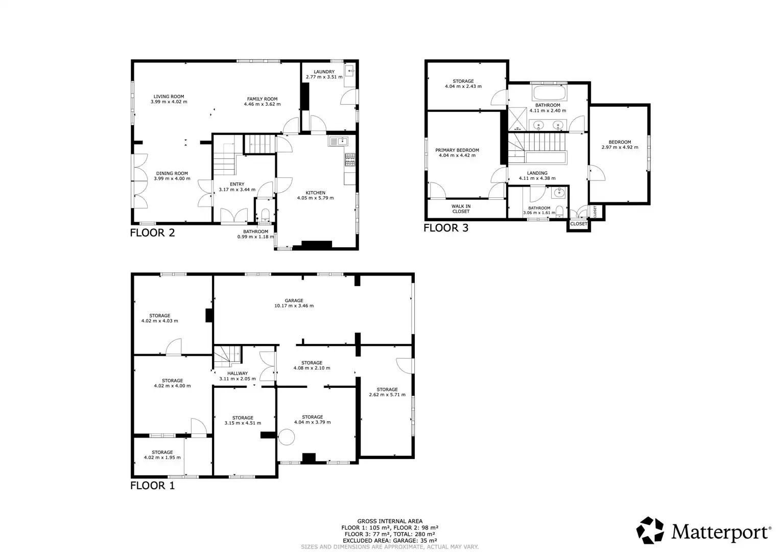
Indeling
Kelder: 140 m²
De woning is volledig onderkelderd en biedt tal van mogelijkheden voor stockage, hobbyruimte of werkatelier.
Gelijkvloers: 98 m²
Inkomhal, lichtrijke woonkamer en leefruimte, volledig geïnstalleerde keuken, praktische berging/wasplaats en een apart toilet.
Vanuit de keuken heeft u zicht naar de achterliggende tuin en heeft u toegang tot een riant terras.
Eerste verdieping: 77 m²
Nachthal, twee ruime slaapkamers, geïnstalleerde badkamer, apart toilet en extra zolderruimte.
Documenten:
Het EPC-attest, de conforme stroomkeuring, het asbestattest en de grondplannen zijn eenvoudig te downloaden via de bijlagen.
Interesse in een bezichtiging?
Contacteer ons gerust via 089 391 555 of mail naar info@frerevastgoed.be.
Wij leiden u deze woning met plezier rond.
* Opmetingen van de binnenmaten zijn indicatief en kunnen licht afwijken.
Een charmante, vrijstaande woning met ruimte, comfort én een topligging.
Deze solide woning, gebouwd in 1960, is gelegen op een ruim perceel van 16a25ca in het populaire Niel-bij-As.
Dankzij de centrale ligging bevinden winkels en voorzieningen zich op wandelafstand, zoals de Okay-supermarkt, de gemeentelijke basisschool en de apotheek.
Ideaal voor wie comfortabel en praktisch wil wonen.
Troeven:
✔ Vrijstaande woning op een groot perceel
✔ Volledig onderkelderd
✔ Woonoppervlakte (excl. garage en kelder): 175 m²
✔ Totale bruikbare oppervlakte: 315 m²
✔ Energiezuinig met EPC-label D (356 kWh/m²)
✔ Verwarming op gas
✔ Elektrische installatie volledig conform
✔ PVC-ramen met dubbel glas
✔ Ruime tuin met aangenaam terras
Indeling
Kelder: 140 m²
De woning is volledig onderkelderd en biedt tal van mogelijkheden voor stockage, hobbyruimte of werkatelier.
Gelijkvloers: 98 m²
Inkomhal, lichtrijke woonkamer en leefruimte, volledig geïnstalleerde keuken, praktische berging/wasplaats en een apart toilet.
Vanuit de keuken heeft u zicht naar de achterliggende tuin en heeft u toegang tot een riant terras.
Eerste verdieping: 77 m²
Nachthal, twee ruime slaapkamers, geïnstalleerde badkamer, apart toilet en extra zolderruimte.
Documenten:
Het EPC-attest, de conforme stroomkeuring, het asbestattest en de grondplannen zijn eenvoudig te downloaden via de bijlagen.
Interesse in een bezichtiging?
Contacteer ons gerust via 089 391 555 of mail naar info@frerevastgoed.be.
Wij leiden u deze woning met plezier rond.
* Opmetingen van de binnenmaten zijn indicatief en kunnen licht afwijken.
Energie
![]() |
- EPC Certificaat: 20250922-0003691160-RES-1
- Energieverbruik: 356 kWh/m²/jaar
- E-peil: E0
- Beglazing: Standaard dubbel
Extra budget nodig voor je renovatie?
De overheid helpt je dit pand energetisch te renoveren! Hieronder zie je het premiebedrag dat je mogelijks van de overheid krijgt.
Het huidige EPC-label is:

Op de kaart

Financieel
| Prijs | |
|---|---|
| Kadastraal inkomen (niet geïndexeerd) | € 1.105 |
Berekening kosten
Je aankoopkosten? Die heb je snel berekend via de knop hieronder.
Bijkomende info
Gebouw
| Bouwjaar | 1960 |
|---|---|
| Staat | Op te frissen |
| Bewoonbaar (m²) | 175 |
| Gevelbreedte | 10 |
| Badkamers | 2 |
| Slaapkamers | 2 |
| Verdiepingen | 0 |
| Garages | 0 |
| Parkeerplaatsen | 0 |
| Toiletten | 0 |
Faciliteiten
| Keuken uitrusting | Goed uitgerust |
|---|---|
| Beglazing | Standaard dubbel |
| Septische tank | Nee |
Perceel
| Diepte (m) | 88 |
|---|---|
| Breedte (m) | 18 |
| Overstromingsgevoelig | Geen |
| P-score | D |
| G-score | D |
| Totale oppervlakte (m²) | 1625 |
| Bebouwde oppervlakte (m²) | 315 |
| Oppervlakte terras (m²) | 0 |
| Oriëntatie tuin | ZuidOost |
Vergunning
| Verkavelingsvergunning | Geen beschikbaar |
|---|
Uitrusting
| Investeringspand | Nee |
|---|---|
| Parking | Nee |
| Garage | Nee |
| Kelder | Ja |
| Zolder | Ja |
| Opslagruimte | Ja |
| Terras | Ja |
| Lift | Nee |
| Rioolaansluiting | Ja |
| Gasaansluiting | Ja |
| Wateraansluiting | Ja |
| Elektriciteitsaansluiting | Ja |
| Internetaansluiting | Ja |
| Telefoonaansluiting | Ja |
| Zonnepanelen | Nee |
| Zonneboiler | Nee |
| Alarm | Nee |
| Videofoon | Nee |
| Grondwaterput | Nee |
Een pand van
Frère Vastgoed
Welkom bij Frère Vastgoed.
Frère Vastgoed is uw partner bij de verkoop, verhuur of aankoop van elk type vastgoed.
Het verkopen, verhuren of aankopen van vastgoed is een ingewikkeld proces.
Frère Vastgoed helpt u graag met een resultaatgerichte en persoonlijke begeleiding bij één van de belangrijkste transacties in uw leven.
Hoogstraat 156, 3665 te As
Leer meer over vastgoed
24 November 2025
Uitgezocht voor jouw gemeente: Hoeveel stijgt de waarde van je woning door een renovatie?
22 October 2025
Hoeveel kan ik lenen om een huis te kopen?
11 June 2025
Huis kopen met bouwovertreding? Dit moet je weten
11 May 2025


