In optie
Casco nieuwbouwwoning met kelder op een perceel van 10a 09ca
€ 375.000
Een pand van Frère Vastgoed
Overzicht
- 235.53 m² bewoonbaar
- 1009 m² grond
- 3 Slaapkamer(s)
- 1 Badkamer(s)
- 2 Toilet(ten)
- 1 Garage(s)
Beschrijving
Welkom op de Nielerlaan 80 in Niel-bij-As.
Bent u opzoek naar een moderne en duurzame nieuwbouwwoning, die u volledig naar eigen smaak kan afwerken?
Bent u opzoek naar een ruime woning met kelder?
Dan is deze casco- woning zeker iets voor u!
Tussen de foto’s vindt u ook enkele visualisaties die tonen hoe de woning eruit kan zien eens ze volledig is afgewerkt.
Ideaal om alvast een beeld te krijgen van het eindresultaat.
Technische gegevens:
Perceel: 10a 09ca
Bruikbare oppervlakte: 309,08 m²
Bewoonbare oppervlakte: 235,53 m²
Financiële gegevens:
Casco: € 375.000 (excl. kosten) + € 45.000 (RR) = € 420.000 (incl. kosten)
Bij een casco oplevering ontvangt u de woning wind- en waterdicht, inclusief ruwbouw, dak en ramen.
U heeft zelf de volledige vrijheid om de woning naar eigen smaak en budget af te werken.
Deze woning is reeds voorzien van aangekochte goederen ter waarde van €17.000, waaronder een gasketel, airco‑voorbereidingen en stijlvolle afwerkingen met eiken parket.
Deze materialen zijn nog niet geplaatst of geïnstalleerd.
Ontdek deze woning alvast via de virtuele rondleiding:
https://player.vimeo.com/video/1125826549
TROEVEN:
+ Perceel van 10a09ca
+ 3 slaapkamers
+ Inpandige garage
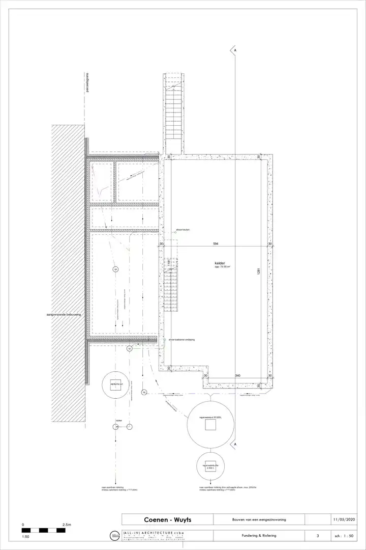
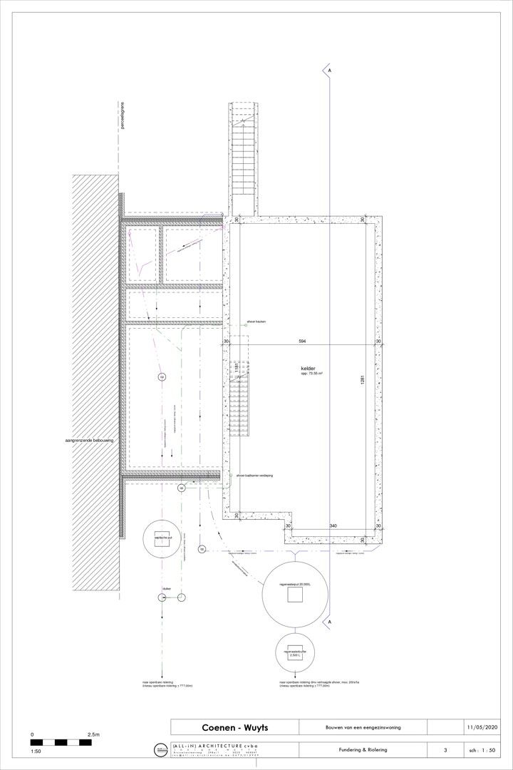
+ Ruime kelder van 73,55 m²
+ Naar eigen smaak afwerken
+ Aankoop onder registratierechten
+ Bruikbare oppervlakte van 309,08 m²
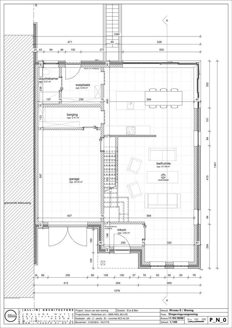
De indeling is als volgt:
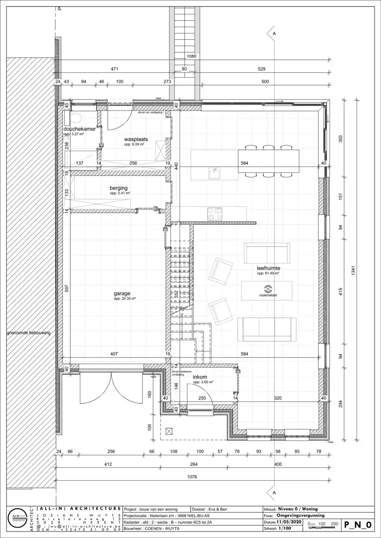
Gelijkvloers: 129m²
Via de inkomhal komen we terecht in de lichtrijke woonkamer met open keuken, die aansluit op de tuin.
Achter de keuken bevindt zich een ruime berging/wasplaats, waar ook het gastentoilet voorzien is.
Daarnaast is er een inpandige garage, toegankelijk vanuit de woning.
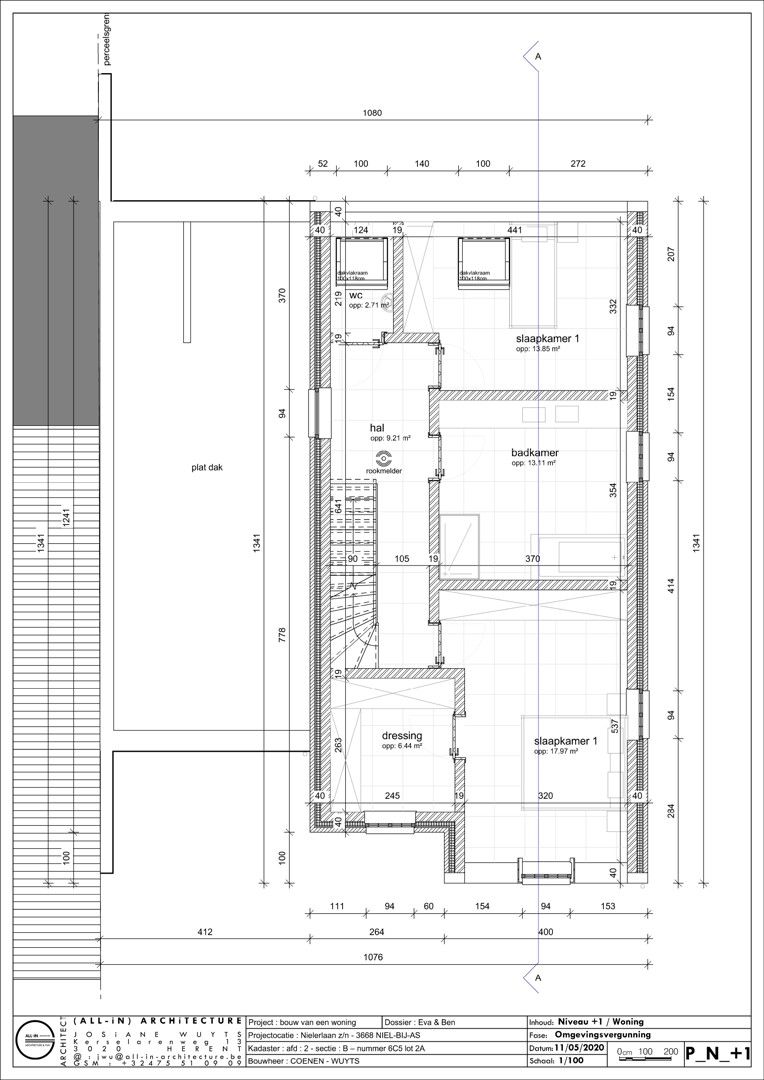
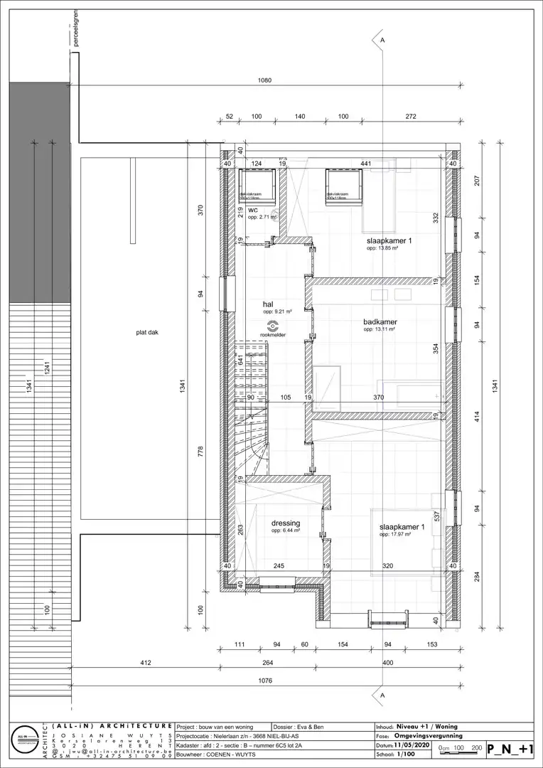
Verdieping 1: 73m²
Drie ruime slaapkamers, een ruime overloop, apart toilet en badkamer.
Deze verdieping biedt alle comfort voor een gezin.
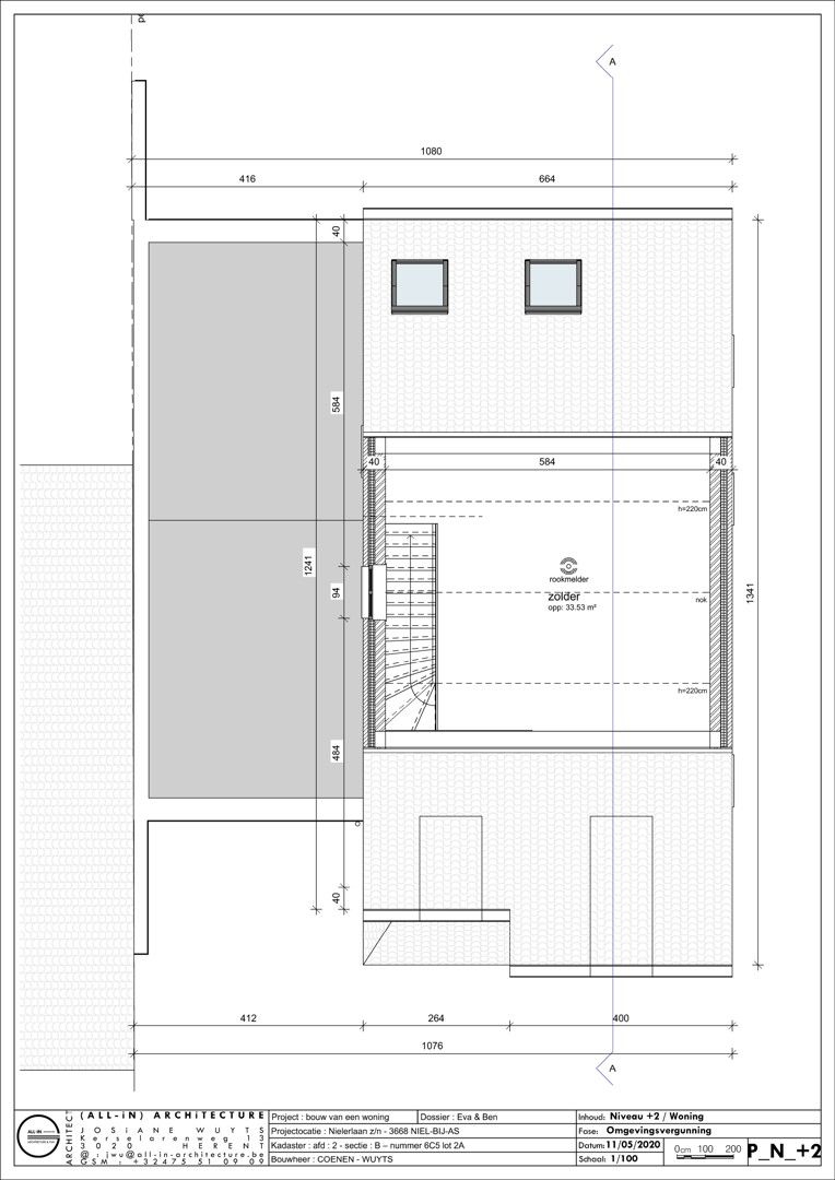
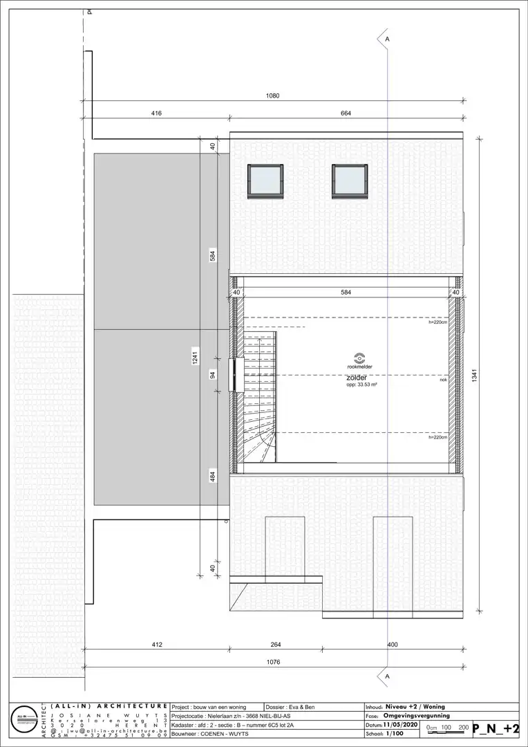
Verdieping 2: 33,53m²
Vierde slaapkamer of polyvalente ruimte – perfect als bureau, speelruimte of hobbykamer.
Kelder: 73,55m²
Volledige kelderverdieping van 73,55 m², ideaal als opslagruimte.
De verkoop geschiedt onder het verkooprecht (12%).
In bijlage vindt u de grondplannen van de woning terug.
Wenst u een bezichtiging of meer informatie?
Neem gerust contact met ons op via het nummer 089 391 555 of stuur een mail naar info@frerevastgoed.be.
* Opmetingen van de binnenmaten zijn indicatief en kunnen licht afwijken.
Bent u opzoek naar een moderne en duurzame nieuwbouwwoning, die u volledig naar eigen smaak kan afwerken?
Bent u opzoek naar een ruime woning met kelder?
Dan is deze casco- woning zeker iets voor u!
Tussen de foto’s vindt u ook enkele visualisaties die tonen hoe de woning eruit kan zien eens ze volledig is afgewerkt.
Ideaal om alvast een beeld te krijgen van het eindresultaat.
Technische gegevens:
Perceel: 10a 09ca
Bruikbare oppervlakte: 309,08 m²
Bewoonbare oppervlakte: 235,53 m²
Financiële gegevens:
Casco: € 375.000 (excl. kosten) + € 45.000 (RR) = € 420.000 (incl. kosten)
Bij een casco oplevering ontvangt u de woning wind- en waterdicht, inclusief ruwbouw, dak en ramen.
U heeft zelf de volledige vrijheid om de woning naar eigen smaak en budget af te werken.
Deze woning is reeds voorzien van aangekochte goederen ter waarde van €17.000, waaronder een gasketel, airco‑voorbereidingen en stijlvolle afwerkingen met eiken parket.
Deze materialen zijn nog niet geplaatst of geïnstalleerd.
Ontdek deze woning alvast via de virtuele rondleiding:
https://player.vimeo.com/video/1125826549
TROEVEN:
+ Perceel van 10a09ca
+ 3 slaapkamers
+ Inpandige garage
+ Ruime kelder van 73,55 m²
+ Naar eigen smaak afwerken
+ Aankoop onder registratierechten
+ Bruikbare oppervlakte van 309,08 m²
De indeling is als volgt:
Gelijkvloers: 129m²
Via de inkomhal komen we terecht in de lichtrijke woonkamer met open keuken, die aansluit op de tuin.
Achter de keuken bevindt zich een ruime berging/wasplaats, waar ook het gastentoilet voorzien is.
Daarnaast is er een inpandige garage, toegankelijk vanuit de woning.
Verdieping 1: 73m²
Drie ruime slaapkamers, een ruime overloop, apart toilet en badkamer.
Deze verdieping biedt alle comfort voor een gezin.
Verdieping 2: 33,53m²
Vierde slaapkamer of polyvalente ruimte – perfect als bureau, speelruimte of hobbykamer.
Kelder: 73,55m²
Volledige kelderverdieping van 73,55 m², ideaal als opslagruimte.
De verkoop geschiedt onder het verkooprecht (12%).
In bijlage vindt u de grondplannen van de woning terug.
Wenst u een bezichtiging of meer informatie?
Neem gerust contact met ons op via het nummer 089 391 555 of stuur een mail naar info@frerevastgoed.be.
* Opmetingen van de binnenmaten zijn indicatief en kunnen licht afwijken.
Energie
- E-peil: E0
- Beglazing: Onbekend
Op de kaart

Financieel
| Prijs |
|---|
Bijkomende info
Gebouw
| Bouwjaar | 2025 |
|---|---|
| Bewoonbaar (m²) | 235.53 |
| Gevelbreedte | 10.55 |
| Badkamers | 1 |
| Slaapkamers | 3 |
| Verdiepingen | 0 |
| Garages | 1 |
| Parkeerplaatsen | 0 |
| Toiletten | 2 |
Faciliteiten
| Septische tank | Nee |
|---|
Perceel
| Overstromingsgevoelig | Geen |
|---|---|
| P-score | A |
| G-score | A |
| Totale oppervlakte (m²) | 1009 |
| Bebouwde oppervlakte (m²) | 309 |
| Oriëntatie tuin | West |
Vergunning
| Verkavelingsvergunning | Geen beschikbaar |
|---|
Uitrusting
| Investeringspand | Nee |
|---|---|
| Parking | Nee |
| Garage | Ja |
| Kelder | Ja |
| Opslagruimte | Ja |
| Lift | Nee |
| Rioolaansluiting | Nee |
| Gasaansluiting | Nee |
| Wateraansluiting | Nee |
| Elektriciteitsaansluiting | Nee |
| Internetaansluiting | Nee |
| Telefoonaansluiting | Nee |
| Zonnepanelen | Nee |
| Zonneboiler | Nee |
| Alarm | Nee |
| Videofoon | Nee |
| Grondwaterput | Nee |
Een pand van
Frère Vastgoed
Welkom bij Frère Vastgoed.
Frère Vastgoed is uw partner bij de verkoop, verhuur of aankoop van elk type vastgoed.
Het verkopen, verhuren of aankopen van vastgoed is een ingewikkeld proces.
Frère Vastgoed helpt u graag met een resultaatgerichte en persoonlijke begeleiding bij één van de belangrijkste transacties in uw leven.
Nielerlaan 80, AsC
Leer meer over vastgoed
24 November 2025
Uitgezocht voor jouw gemeente: Hoeveel stijgt de waarde van je woning door een renovatie?
22 October 2025
Hoeveel kan ik lenen om een huis te kopen?
11 June 2025
Huis kopen met bouwovertreding? Dit moet je weten
11 May 2025