Karaktervolle open bebouwing op 10a 40 ca in As
€ 300.000
Een pand van Frère Vastgoed
Favoriet
Jouw zoektocht
Jouw scoretabel voor dit pand
Aan het laden...
Jouw geplande bezichtigingen
Aan het laden...
Overzicht
- 151 m² bewoonbaar
- 1040 m² grond
- 2 Slaapkamer(s)
- 2 Badkamer(s)
- 1 Toilet(ten)
- 1 Garage(s)
Overstromingsgevaar gebouw
Overstromingsgevaar perceel
Beschrijving
Welkom op de Stationsstraat 49 in As.
Deze charmante, vrijstaande woning is uitstekend gelegen op een populaire locatie in As.
De woning combineert een aangename woonomgeving met een bijzonder gunstige ligging.
Dankzij de centrale situering bevinden winkels, voorzieningen en belangrijke invalswegen zich op korte afstand, wat zorgt voor een vlotte bereikbaarheid.
Deze open bebouwing bevindt zich op een ruim perceel van 10a 40ca.
De videoreportage kan u bekijken via volgende link: https://player.vimeo.com/video/1175474420
Troeven:
✔ Vrijstaande woning op een ruim perceel
✔ Prachtig renovatieproject
✔ Woonoppervlakte (excl. garage en kelder): 123 m²
✔ Verwarming op gas
✔ PVC-ramen met dubbel glas
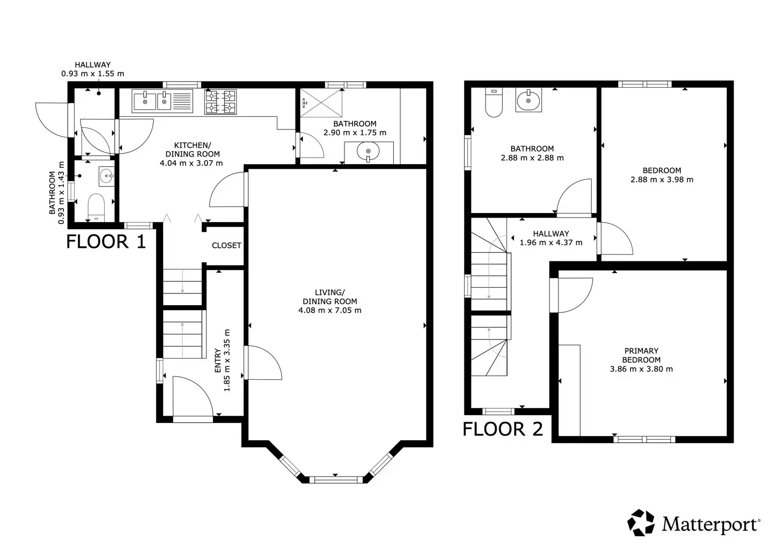
Indeling
Kelder:
De woning is grotendeels onderkelderd en biedt tal van mogelijkheden voor stockage, hobbyruimte of werkatelier.
Gelijkvloers:
Inkomhal, lichtrijke woonkamer en leefruimte, geïnstalleerde keuken, badkamer en een apart toilet.
Vanuit de keuken heeft u zicht naar de achterliggende tuin.
Eerste verdieping:
Nachthal, twee ruime slaapkamers en 1 badkamer
Tweede verdieping:
Zolderruimte met mogelijkheid om een extra slaapkamer te maken.
Documenten:
Het EPC-attest, het inplantingsplan en de grondplannen zijn eenvoudig te downloaden.
Interesse in een bezichtiging?
Contacteer ons gerust via 089 391 555 of mail naar info@frerevastgoed.be.
Wij leiden u deze woning met plezier rond.
* Opmetingen van de binnenmaten zijn indicatief en kunnen licht afwijken.
Deze charmante, vrijstaande woning is uitstekend gelegen op een populaire locatie in As.
De woning combineert een aangename woonomgeving met een bijzonder gunstige ligging.
Dankzij de centrale situering bevinden winkels, voorzieningen en belangrijke invalswegen zich op korte afstand, wat zorgt voor een vlotte bereikbaarheid.
Deze open bebouwing bevindt zich op een ruim perceel van 10a 40ca.
De videoreportage kan u bekijken via volgende link: https://player.vimeo.com/video/1175474420
Troeven:
✔ Vrijstaande woning op een ruim perceel
✔ Prachtig renovatieproject
✔ Woonoppervlakte (excl. garage en kelder): 123 m²
✔ Verwarming op gas
✔ PVC-ramen met dubbel glas
Indeling
Kelder:
De woning is grotendeels onderkelderd en biedt tal van mogelijkheden voor stockage, hobbyruimte of werkatelier.
Gelijkvloers:
Inkomhal, lichtrijke woonkamer en leefruimte, geïnstalleerde keuken, badkamer en een apart toilet.
Vanuit de keuken heeft u zicht naar de achterliggende tuin.
Eerste verdieping:
Nachthal, twee ruime slaapkamers en 1 badkamer
Tweede verdieping:
Zolderruimte met mogelijkheid om een extra slaapkamer te maken.
Documenten:
Het EPC-attest, het inplantingsplan en de grondplannen zijn eenvoudig te downloaden.
Interesse in een bezichtiging?
Contacteer ons gerust via 089 391 555 of mail naar info@frerevastgoed.be.
Wij leiden u deze woning met plezier rond.
* Opmetingen van de binnenmaten zijn indicatief en kunnen licht afwijken.
Energie
![]() |
- EPC Certificaat: 20250826-0003667777-RES-1
- Energieverbruik: 526 kWh/m²/jaar
- E-peil: E0
- Beglazing: Onbekend
Let op, de renovatieverplichting in Vlaanderen verplicht de koper om deze woning na aankoop te renoveren tot een betere energieprestatie. Lees er alles over in dit artikel
Extra budget nodig voor je renovatie?
De overheid helpt je dit pand energetisch te renoveren! Hieronder zie je het premiebedrag dat je mogelijks van de overheid krijgt.
Het huidige EPC-label is:

Op de kaart

Financieel
| Prijs | |
|---|---|
| Kadastraal inkomen (niet geïndexeerd) | € 490 |
Berekening kosten
Je aankoopkosten? Die heb je snel berekend via de knop hieronder.
Bijkomende info
Gebouw
| Bouwjaar | 1938 |
|---|---|
| Staat | Te renoveren |
| Bewoonbaar (m²) | 151 |
| Badkamers | 2 |
| Slaapkamers | 2 |
| Verdiepingen | 2 |
| Garages | 1 |
| Parkeerplaatsen | 0 |
| Toiletten | 1 |
Faciliteiten
| Septische tank | Nee |
|---|
Perceel
| Diepte (m) | 44 |
|---|---|
| Breedte (m) | 29 |
| Overstromingsgevoelig | Geen |
| P-score | D |
| G-score | D |
| Totale oppervlakte (m²) | 1040 |
| Bebouwde oppervlakte (m²) | 0 |
| Oriëntatie tuin | Noord |
Vergunning
| Verkavelingsvergunning | Geen beschikbaar |
|---|
Uitrusting
| Investeringspand | Nee |
|---|---|
| Parking | Nee |
| Garage | Ja |
| Kelder | Ja |
| Zolder | Ja |
| Lift | Nee |
| Rioolaansluiting | Ja |
| Gasaansluiting | Ja |
| Wateraansluiting | Ja |
| Elektriciteitsaansluiting | Ja |
| Internetaansluiting | Nee |
| Telefoonaansluiting | Nee |
| Zonnepanelen | Nee |
| Zonneboiler | Nee |
| Alarm | Nee |
| Videofoon | Nee |
| Grondwaterput | Nee |
Een pand van
Frère Vastgoed
Welkom bij Frère Vastgoed.
Frère Vastgoed is uw partner bij de verkoop, verhuur of aankoop van elk type vastgoed.
Het verkopen, verhuren of aankopen van vastgoed is een ingewikkeld proces.
Frère Vastgoed helpt u graag met een resultaatgerichte en persoonlijke begeleiding bij één van de belangrijkste transacties in uw leven.
Stationsstraat 49 in As
Leer meer over vastgoed
24 April 2026
Duurzaam gelegen woning? Check je Mobiscore
23 March 2026
Op Spotto zoeken als een pro: 10 slimme tips
21 March 2026
Hoeveel kan ik lenen om een huis te kopen?
01 March 2026



