Nieuw
BOUWGROND OPEN BEBOUWING met vergunde plannen
Een pand van Goed Gevonden
Overzicht
- 472 m² grond
Beschrijving
BOUWGROND van 472 m² VOOR OPEN BEBOUWING, rustig en landelijk gelegen, en met een uitstekende zonorëntatie. Reeds voorzien van VERGUNDE BOUWPLANNEN voor een mooie gezinswoning met 3 RUIME SLAAPKAMERS - INPANDIGE GARAGE - TERRAS - TUIN.
OPMERKING - U bent niet verplicht om de bestaande bouwvergunning te volgen, u mag uw eigen ontwerp maken en laten goedkeuren via de vergunningsprocedure. De bestaande vergunning geeft u alvast een idee van de mogelijkheden.
INDELING BESTAANDE VERGUNNING
KELDERVERDIEPING - inrit garage op straatniveau leidt naar ruime kelderverdieping met plaats voor 2 wagens, wasplaats, technisch ruimte, ruime berging en binnentrap naar het gelijkvloers.
GELIJKVLOERS - pad in voortuin en buitentrap leiden u naar de inkomdeur op de gelijkvloerse verdieping. Hier geven de plannen volgende mogelijkheden
+ ruime inkomhal met vestiairehoek en apart toilet
+ grote living met open keuken (50 m²) met 2 grote schuifdeuren naar het zonnig terras
+ zeer ruim terras van 30 m², even breed als de zuid-gerichte achtergevel
+ apart bureelruimte of 4de slaapkamer van 13,5 m²
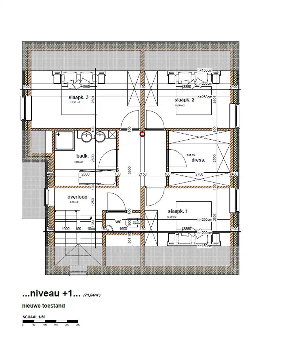
VERDIEPING
+ ruime nachthal met apart toilet
+ 3 grote slaapkamers
+ badkamer met voldoende plaats voor douche en bad apart
+ handige dressing
De vergunning voorziet een woning met zadeldak, ideaal georiënteerd voor zonnepanelen.
Voor meer info BEL 012 744 844 of mail naar info@goed-gevonden.be
OPMERKING - U bent niet verplicht om de bestaande bouwvergunning te volgen, u mag uw eigen ontwerp maken en laten goedkeuren via de vergunningsprocedure. De bestaande vergunning geeft u alvast een idee van de mogelijkheden.
INDELING BESTAANDE VERGUNNING
KELDERVERDIEPING - inrit garage op straatniveau leidt naar ruime kelderverdieping met plaats voor 2 wagens, wasplaats, technisch ruimte, ruime berging en binnentrap naar het gelijkvloers.
GELIJKVLOERS - pad in voortuin en buitentrap leiden u naar de inkomdeur op de gelijkvloerse verdieping. Hier geven de plannen volgende mogelijkheden
+ ruime inkomhal met vestiairehoek en apart toilet
+ grote living met open keuken (50 m²) met 2 grote schuifdeuren naar het zonnig terras
+ zeer ruim terras van 30 m², even breed als de zuid-gerichte achtergevel
+ apart bureelruimte of 4de slaapkamer van 13,5 m²
VERDIEPING
+ ruime nachthal met apart toilet
+ 3 grote slaapkamers
+ badkamer met voldoende plaats voor douche en bad apart
+ handige dressing
De vergunning voorziet een woning met zadeldak, ideaal georiënteerd voor zonnepanelen.
Voor meer info BEL 012 744 844 of mail naar info@goed-gevonden.be
Energie
Op de kaart

Downloads
Financieel
| Prijs | |
|---|---|
| Kadastraal inkomen (niet geïndexeerd) | € 4 |
Berekening kosten
Je aankoopkosten? Die heb je snel berekend via de knop hieronder.
Bijkomende info
Perceel
| Overstromingsgevoelig | Geen |
|---|---|
| P-score | A |
| Totale oppervlakte (m²) | 472 |
| Oriëntatie tuin | ZuidOost |
Vergunning
| Vergunning | Geen beschikbaar |
|---|---|
| Verkavelingsvergunning | Vergunning beschikbaar |
Een pand van
Goed Gevonden
Goed Gevonden
Goed gevonden - da's vast goed
Een succesteam met de goede aanpak.
Wij verkopen je huis in no time dankzij een optimale promotie en actieve prospectie naar potentiële kopers.
Een tikkeltje creatieve publiciteit mag natuurlijk ook niet ontbreken.
7587889
Leer meer over vastgoed
Nieuw
01 March 2026
Wanneer heb ik een bouwvergunning of omgevingsvergunning nodig?
17 February 2026
Hoe breng ik een bod uit op een woning?
24 November 2025
Uitgezocht voor jouw gemeente: Hoeveel stijgt de waarde van je woning door een renovatie?
22 October 2025