RUIME GEZINSWONING MET 3 SLKS, TUIN EN GARAGEBOX IN TONGEREN
Een pand van De woonmakers
Favoriet
Jouw zoektocht
Jouw scoretabel voor dit pand
Aan het laden...
Overzicht
- 175 m² bewoonbaar
- 520 m² grond
- 3 Slaapkamer(s)
- 1 Badkamer(s)
- 1 Garage(s)
Beschrijving
Langs de Ambiorixstraat 106 in Tongeren vinden we deze charmante gezinswoning terug met een bewoonbare oppervlakte van 176 m², gelegen op een perceel van 5a20ca. Een ideale plek voor wie op zoek is naar ruimte en mogelijkheden om een woning volledig naar eigen smaak op te frissen.
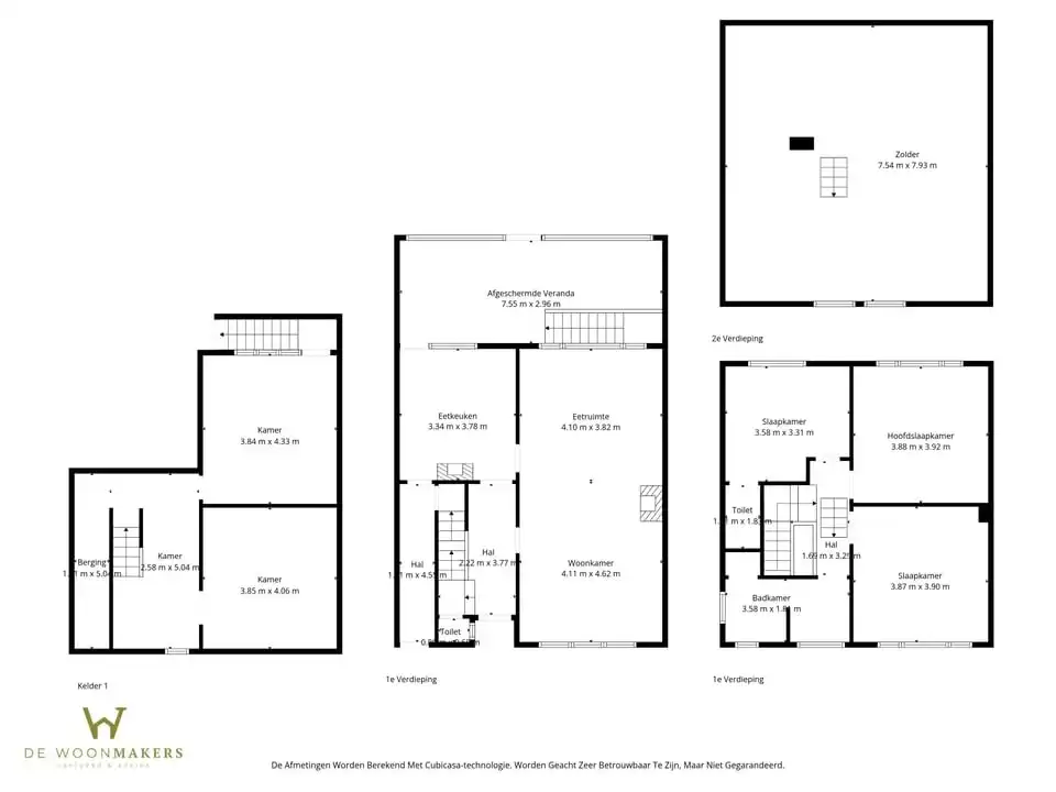
De woning beschikt over een ruime kelder, wat zorgt voor extra stockageruimte. Op het gelijkvloers word je verwelkomd in een gezellige zit- en eethoek, aansluitend aan de keuken en de veranda. Deze extra leefruimte biedt een mooi zicht op de tuin en vormt een fijne plek om te ontspannen.
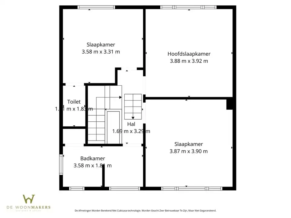
Op de eerste verdieping bevinden zich drie slaapkamers en de badkamer. Daarnaast is er nog een zeer ruime zolder aanwezig, die tal van uitbreidingsmogelijkheden biedt, bijvoorbeeld voor extra kamers of een hobbyruimte.
De tuin biedt voldoende plaats voor spelende kinderen of huisdieren en maakt het geheel extra aantrekkelijk voor gezinnen.
Een bijkomende troef is de gesloten garagebox aan de overzijde van de straat, die inbegrepen is in de prijs – een echte meerwaarde in deze omgeving.
Hoewel de woning wat opfriswerken kan gebruiken, vormt dit net de perfecte kans om hier jouw eigen droomwoning van te maken.
Contacteer ons op het nummer 011/98.88.98 of via info@dewoonmakers.be
De vermelde oppervlaktes zijn indicatief. De Woonmakers kan niet verantwoordelijk gesteld worden voor de juistheid van de door zijn verstrekte gegevens.
De woning beschikt over een ruime kelder, wat zorgt voor extra stockageruimte. Op het gelijkvloers word je verwelkomd in een gezellige zit- en eethoek, aansluitend aan de keuken en de veranda. Deze extra leefruimte biedt een mooi zicht op de tuin en vormt een fijne plek om te ontspannen.
Op de eerste verdieping bevinden zich drie slaapkamers en de badkamer. Daarnaast is er nog een zeer ruime zolder aanwezig, die tal van uitbreidingsmogelijkheden biedt, bijvoorbeeld voor extra kamers of een hobbyruimte.
De tuin biedt voldoende plaats voor spelende kinderen of huisdieren en maakt het geheel extra aantrekkelijk voor gezinnen.
Een bijkomende troef is de gesloten garagebox aan de overzijde van de straat, die inbegrepen is in de prijs – een echte meerwaarde in deze omgeving.
Hoewel de woning wat opfriswerken kan gebruiken, vormt dit net de perfecte kans om hier jouw eigen droomwoning van te maken.
Contacteer ons op het nummer 011/98.88.98 of via info@dewoonmakers.be
De vermelde oppervlaktes zijn indicatief. De Woonmakers kan niet verantwoordelijk gesteld worden voor de juistheid van de door zijn verstrekte gegevens.
Langs de Ambiorixstraat 106 in Tongeren vinden we deze charmante gezinswoning terug met een bewoonbare oppervlakte van 176 m², gelegen op een perceel van 5a20ca. Een ideale plek voor wie op zoek is naar ruimte en mogelijkheden om een woning volledig naar eigen smaak op te frissen.
De woning beschikt over een ruime kelder, wat zorgt voor extra stockageruimte. Op het gelijkvloers word je verwelkomd in een gezellige zit- en eethoek, aansluitend aan de keuken en de veranda. Deze extra leefruimte biedt een mooi zicht op de tuin en vormt een fijne plek om te ontspannen.
Op de eerste verdieping bevinden zich drie slaapkamers en de badkamer. Daarnaast is er nog een zeer ruime zolder aanwezig, die tal van uitbreidingsmogelijkheden biedt, bijvoorbeeld voor extra kamers of een hobbyruimte.
De tuin biedt voldoende plaats voor spelende kinderen of huisdieren en maakt het geheel extra aantrekkelijk voor gezinnen.
Een bijkomende troef is de gesloten garagebox aan de overzijde van de straat, die inbegrepen is in de prijs – een echte meerwaarde in deze omgeving.
Hoewel de woning wat opfriswerken kan gebruiken, vormt dit net de perfecte kans om hier jouw eigen droomwoning van te maken.
Interesse? Neem dan snel contact met ons op het nummer 011/98.88.98 of via info@dewoonmakers.be voor een bezoek en ontdek zelf het potentieel van deze woning.
De vermelde oppervlaktes zijn indicatief. De Woonmakers kan niet verantwoordelijk gesteld worden voor de juistheid van de door zijn verstrekte gegevens.
De woning beschikt over een ruime kelder, wat zorgt voor extra stockageruimte. Op het gelijkvloers word je verwelkomd in een gezellige zit- en eethoek, aansluitend aan de keuken en de veranda. Deze extra leefruimte biedt een mooi zicht op de tuin en vormt een fijne plek om te ontspannen.
Op de eerste verdieping bevinden zich drie slaapkamers en de badkamer. Daarnaast is er nog een zeer ruime zolder aanwezig, die tal van uitbreidingsmogelijkheden biedt, bijvoorbeeld voor extra kamers of een hobbyruimte.
De tuin biedt voldoende plaats voor spelende kinderen of huisdieren en maakt het geheel extra aantrekkelijk voor gezinnen.
Een bijkomende troef is de gesloten garagebox aan de overzijde van de straat, die inbegrepen is in de prijs – een echte meerwaarde in deze omgeving.
Hoewel de woning wat opfriswerken kan gebruiken, vormt dit net de perfecte kans om hier jouw eigen droomwoning van te maken.
Interesse? Neem dan snel contact met ons op het nummer 011/98.88.98 of via info@dewoonmakers.be voor een bezoek en ontdek zelf het potentieel van deze woning.
De vermelde oppervlaktes zijn indicatief. De Woonmakers kan niet verantwoordelijk gesteld worden voor de juistheid van de door zijn verstrekte gegevens.
Energie
![]() |
- EPC Certificaat: 20260206-0003793812-RES-1
- Energieverbruik: 335 kWh/m²/jaar
- E-peil: E0
- Beglazing: Standaard dubbel
Extra budget nodig voor je renovatie?
De overheid helpt je dit pand energetisch te renoveren! Hieronder zie je het premiebedrag dat je mogelijks van de overheid krijgt.
Het huidige EPC-label is:

Op de kaart

Financieel
| Prijs | |
|---|---|
| Kadastraal inkomen (niet geïndexeerd) | € 644 |
Berekening kosten
Je aankoopkosten? Die heb je snel berekend via de knop hieronder.
Bijkomende info
Gebouw
| Bouwjaar | 1963 |
|---|---|
| Bouwcertificaat | Nee |
| Bewoonbaar (m²) | 175 |
| Badkamers | 1 |
| Slaapkamers | 3 |
| Verdiepingen | 0 |
| Garages | 1 |
| Parkeerplaatsen | 0 |
| Toiletten | 0 |
Faciliteiten
| Beglazing | Standaard dubbel |
|---|---|
| Septische tank | Nee |
Perceel
| Overstromingsgevoelig | Geen |
|---|---|
| P-score | A |
| G-score | A |
| Totale oppervlakte (m²) | 520 |
| Bebouwde oppervlakte (m²) | 0 |
Vergunning
| Verkavelingsvergunning | Geen beschikbaar |
|---|
Uitrusting
| Investeringspand | Nee |
|---|---|
| Parking | Nee |
| Garage | Ja |
| Lift | Nee |
| Rioolaansluiting | Nee |
| Gasaansluiting | Nee |
| Wateraansluiting | Nee |
| Elektriciteitsaansluiting | Nee |
| Internetaansluiting | Nee |
| Telefoonaansluiting | Nee |
| Zonnepanelen | Nee |
| Zonneboiler | Nee |
| Alarm | Nee |
| Videofoon | Nee |
| Grondwaterput | Nee |
Een pand van
De woonmakers
De Woonmakers Win-win in vastgoed
Bij De Woonmakers staat ervaring centraal. Sinds onze oprichting in 2020 hebben we ons voortdurend ontwikkeld als toonaangevend bedrijf in de vastgoedsector. Gedurende deze periode hebben we waardevolle inzichten verzameld en ons vakmanschap verfijnd om onze klanten een ongeëvenaarde dienstverlening te bieden.
Onze missie is om de perfecte match te creëren tussen individuen en vastgoed, en dit streven we na door onze diepgaande kennis van de markt te combineren met een innovatieve benadering van klantinteractie. Door te luisteren naar uw woonvoorkeuren en -behoeften, zijn we in staat om op maat gemaakte oplossingen te presenteren die naadloos aansluiten op uw levensstijl.
De drijvende krachten achter De Woonmakers, Jan en Krisja, delen een passie voor vastgoed en een toewijding om de klanten te voorzien van een ongeëvenaarde ervaring. Met jarenlange expertise in verschillende facetten van de vastgoedmarkt streven zij ernaar om een service te bieden die verder gaat dan alleen transacties. “Onze klanten kunnen rekenen op een persoonlijke aanpak die gericht is op het creëren van langdurige relaties en het leveren van op maat gemaakte oplossingen die voldoen aan hun specifieke behoeften.”
ambiorixstraat 106
Leer meer over vastgoed
Nieuw
23 March 2026
Op Spotto zoeken als een pro: 10 slimme tips
Nieuw
21 March 2026
Hoeveel kan ik lenen om een huis te kopen?
01 March 2026
Wanneer heb ik een bouwvergunning of omgevingsvergunning nodig?
17 February 2026


