Nieuw
RUSTIG GELGEN, RECENT NIEUWBOUWWONING (2024) MET ALLE COMFORT EN TOEKOMSTGERICHTE VOORZIENINGEN IN TONGEREN
Een pand van De woonmakers
Overzicht
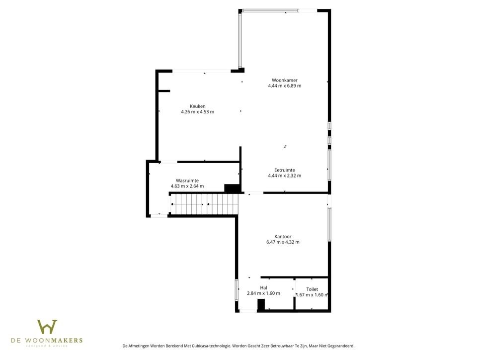
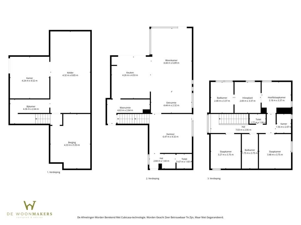
- 219 m² bewoonbaar
- 1366 m² grond
- 3 Slaapkamer(s)
- 2 Badkamer(s)
Beschrijving
Deze woning wordt verkocht aan registratierechten (2% indien enige, eigen woning), en niet aan BTW!
Ben je op zoek naar een instapklare woning die energiezuinigheid, ruimte en luxe combineert? Deze prachtige open bebouwing, opgetrokken in 2024, biedt jou 219 m² bewoonbare oppervlakte op een royaal perceel van 13a66ca.
De woning beschikt over 3 ruime slaapkamers en 2 badkamers – waarvan één volledig afgewerkt en één die je nog naar eigen smaak kan inrichten. Zo kan je meteen genieten én tegelijk je persoonlijke toets geven.
Binnen geniet je van vloerverwarming, een ventilatie D-systeem en een doordachte indeling met veel lichtinval. De zeer ruime kelder biedt eindeloze mogelijkheden als hobbyruimte, fitness of extra opslag.
Buiten kom je volledig tot rust op het zonnige terras en in de volledig omheinde tuin, waar privacy en comfort centraal staan. Voor het praktische is er een carport, en met de laadpaal ben je helemaal klaar voor elektrisch rijden.
Dankzij de zonnepanelen (8100 WpH), de zonneboiler en een regenwaterput van 10.000L (aangesloten op toiletten, wasmachine en buitenkraan) woon je hier bijzonder duurzaam en energie-efficiënt.
En alsof dat nog niet genoeg is: je geniet van maar liefst 5 jaar vrijstelling van onroerende voorheffing!
Een unieke kans voor wie op zoek is naar een moderne, energiezuinige woning met alle extra’s. Dit huis moet je met eigen ogen gezien hebben! Contacteer ons op het nummer 011/98.88.98 of via info@dewoonmakers.be
De vermelde oppervlaktes zijn indicatief. De Woonmakers kan niet verantwoordelijk gesteld worden voor de juistheid van de door zijn verstrekte gegevens.
Ben je op zoek naar een instapklare woning die energiezuinigheid, ruimte en luxe combineert? Deze prachtige open bebouwing, opgetrokken in 2024, biedt jou 219 m² bewoonbare oppervlakte op een royaal perceel van 13a66ca.
De woning beschikt over 3 ruime slaapkamers en 2 badkamers – waarvan één volledig afgewerkt en één die je nog naar eigen smaak kan inrichten. Zo kan je meteen genieten én tegelijk je persoonlijke toets geven.
Binnen geniet je van vloerverwarming, een ventilatie D-systeem en een doordachte indeling met veel lichtinval. De zeer ruime kelder biedt eindeloze mogelijkheden als hobbyruimte, fitness of extra opslag.
Buiten kom je volledig tot rust op het zonnige terras en in de volledig omheinde tuin, waar privacy en comfort centraal staan. Voor het praktische is er een carport, en met de laadpaal ben je helemaal klaar voor elektrisch rijden.
Dankzij de zonnepanelen (8100 WpH), de zonneboiler en een regenwaterput van 10.000L (aangesloten op toiletten, wasmachine en buitenkraan) woon je hier bijzonder duurzaam en energie-efficiënt.
En alsof dat nog niet genoeg is: je geniet van maar liefst 5 jaar vrijstelling van onroerende voorheffing!
Een unieke kans voor wie op zoek is naar een moderne, energiezuinige woning met alle extra’s. Dit huis moet je met eigen ogen gezien hebben! Contacteer ons op het nummer 011/98.88.98 of via info@dewoonmakers.be
De vermelde oppervlaktes zijn indicatief. De Woonmakers kan niet verantwoordelijk gesteld worden voor de juistheid van de door zijn verstrekte gegevens.
Deze woning wordt verkocht aan registratierechten (2% indien enige, eigen woning), en niet aan BTW!
Ben je op zoek naar een instapklare woning die energiezuinigheid, ruimte en luxe combineert? Deze prachtige open bebouwing, opgetrokken in 2024, biedt jou 219 m² bewoonbare oppervlakte op een royaal perceel van 13a66ca.
De woning beschikt over 3 ruime slaapkamers en 2 badkamers – waarvan één volledig afgewerkt en één die je nog naar eigen smaak kan inrichten. Zo kan je meteen genieten én tegelijk je persoonlijke toets geven.
Binnen geniet je van vloerverwarming, een ventilatie D-systeem en een doordachte indeling met veel lichtinval. De zeer ruime kelder biedt eindeloze mogelijkheden als hobbyruimte, fitness of extra opslag.
Buiten kom je volledig tot rust op het zonnige terras en in de volledig omheinde tuin, waar privacy en comfort centraal staan. Voor het praktische is er een carport, en met de laadpaal ben je helemaal klaar voor elektrisch rijden.
Dankzij de zonnepanelen (8100 WpH), de zonneboiler en een regenwaterput van 10.000L (aangesloten op toiletten, wasmachine en buitenkraan) woon je hier bijzonder duurzaam en energie-efficiënt.
En alsof dat nog niet genoeg is: je geniet van maar liefst 5 jaar vrijstelling van onroerende voorheffing!
Een unieke kans voor wie op zoek is naar een moderne, energiezuinige woning met alle extra’s. Dit huis moet je met eigen ogen gezien hebben! Contacteer ons op het nummer 011/98.88.98 of via info@dewoonmakers.be
De vermelde oppervlaktes zijn indicatief. De Woonmakers kan niet verantwoordelijk gesteld worden voor de juistheid van de door zijn verstrekte gegevens.
Ben je op zoek naar een instapklare woning die energiezuinigheid, ruimte en luxe combineert? Deze prachtige open bebouwing, opgetrokken in 2024, biedt jou 219 m² bewoonbare oppervlakte op een royaal perceel van 13a66ca.
De woning beschikt over 3 ruime slaapkamers en 2 badkamers – waarvan één volledig afgewerkt en één die je nog naar eigen smaak kan inrichten. Zo kan je meteen genieten én tegelijk je persoonlijke toets geven.
Binnen geniet je van vloerverwarming, een ventilatie D-systeem en een doordachte indeling met veel lichtinval. De zeer ruime kelder biedt eindeloze mogelijkheden als hobbyruimte, fitness of extra opslag.
Buiten kom je volledig tot rust op het zonnige terras en in de volledig omheinde tuin, waar privacy en comfort centraal staan. Voor het praktische is er een carport, en met de laadpaal ben je helemaal klaar voor elektrisch rijden.
Dankzij de zonnepanelen (8100 WpH), de zonneboiler en een regenwaterput van 10.000L (aangesloten op toiletten, wasmachine en buitenkraan) woon je hier bijzonder duurzaam en energie-efficiënt.
En alsof dat nog niet genoeg is: je geniet van maar liefst 5 jaar vrijstelling van onroerende voorheffing!
Een unieke kans voor wie op zoek is naar een moderne, energiezuinige woning met alle extra’s. Dit huis moet je met eigen ogen gezien hebben! Contacteer ons op het nummer 011/98.88.98 of via info@dewoonmakers.be
De vermelde oppervlaktes zijn indicatief. De Woonmakers kan niet verantwoordelijk gesteld worden voor de juistheid van de door zijn verstrekte gegevens.
Energie
- EPC Certificaat: 73083-G-OMV_2021180663/EP20570/A001/D01/SD001
- E-peil: E0
- Beglazing: Hoog efficient driedubbel
Op de kaart

Financieel
Prijs | |
---|---|
Kadastraal inkomen (niet geïndexeerd) | € 1.147 |
Berekening kosten
Je aankoopkosten? Die heb je snel berekent via de knop hieronder.
Bijkomende info
Gebouw
Bouwjaar | 2024 |
---|---|
Staat | Nieuw |
Bouwcertificaat | Nee |
Bewoonbaar (m²) | 219 |
Badkamers | 2 |
Slaapkamers | 3 |
Verdiepingen | 0 |
Garages | 0 |
Parkeerplaatsen | 0 |
Toiletten | 0 |
Faciliteiten
Beglazing | Hoog efficient driedubbel |
---|---|
Septische tank | Nee |
Perceel
Overstromingsgevoelig | Geen |
---|---|
P-score | A |
G-score | A |
Totale oppervlakte (m²) | 1366 |
Bebouwde oppervlakte (m²) | 0 |
Vergunning
Verkavelingsvergunning | Vergunning beschikbaar |
---|
Uitrusting
Investeringspand | Nee |
---|---|
Parking | Nee |
Garage | Nee |
Lift | Nee |
Rioolaansluiting | Nee |
Gasaansluiting | Nee |
Wateraansluiting | Nee |
Elektriciteitsaansluiting | Nee |
Internetaansluiting | Nee |
Telefoonaansluiting | Nee |
Zonnepanelen | Ja |
Zonneboiler | Nee |
Alarm | Nee |
Videofoon | Nee |
Grondwaterput | Nee |
Een pand van
De woonmakers
De Woonmakers Win-win in vastgoed
Bij De Woonmakers staat ervaring centraal. Sinds onze oprichting in 2020 hebben we ons voortdurend ontwikkeld als toonaangevend bedrijf in de vastgoedsector. Gedurende deze periode hebben we waardevolle inzichten verzameld en ons vakmanschap verfijnd om onze klanten een ongeëvenaarde dienstverlening te bieden.
Onze missie is om de perfecte match te creëren tussen individuen en vastgoed, en dit streven we na door onze diepgaande kennis van de markt te combineren met een innovatieve benadering van klantinteractie. Door te luisteren naar uw woonvoorkeuren en -behoeften, zijn we in staat om op maat gemaakte oplossingen te presenteren die naadloos aansluiten op uw levensstijl.
De drijvende krachten achter De Woonmakers, Jan en Krisja, delen een passie voor vastgoed en een toewijding om de klanten te voorzien van een ongeëvenaarde ervaring. Met jarenlange expertise in verschillende facetten van de vastgoedmarkt streven zij ernaar om een service te bieden die verder gaat dan alleen transacties. “Onze klanten kunnen rekenen op een persoonlijke aanpak die gericht is op het creëren van langdurige relaties en het leveren van op maat gemaakte oplossingen die voldoen aan hun specifieke behoeften.”
Driekruisenweg 58
Leer meer over vastgoed
11 June 2025
Huis kopen met bouwovertreding? Dit moet je weten
11 May 2025
Renoveren? Vraag je Mijn VerbouwPremie aan
22 April 2025
Je allereerste renovatieproject selecteren én budgetteren: met de praktische hulp van Spotto
17 February 2025