In optie
INSTAPKLARE HALFOPEN BEBOUWING MET ZONNEPANELEN EN TERRAS IN TONGEREN
Een pand van De woonmakers
Overzicht
- 122 m² bewoonbaar
- 75 m² grond
- 2 Slaapkamer(s)
- 1 Badkamer(s)
Beschrijving
Op zoek naar een instapklare woning met moderne comfortvoorzieningen en een gunstige ligging in Tongeren? Ontdek deze prachtig gerenoveerde halfopen bebouwing op de Koniksemsteenweg 110 – een ideale gezinswoning die doorheen de jaren met zorg werd onderhouden en vernieuwd.
De woning werd volledig gerenoveerd in 2010 en sindsdien verder gemoderniseerd. In 2017 werden zonnepanelen geplaatst, in 2024 volgden een nieuwe gasketel én energiezuinige airco’s, wat zorgt voor een optimaal wooncomfort het hele jaar door.
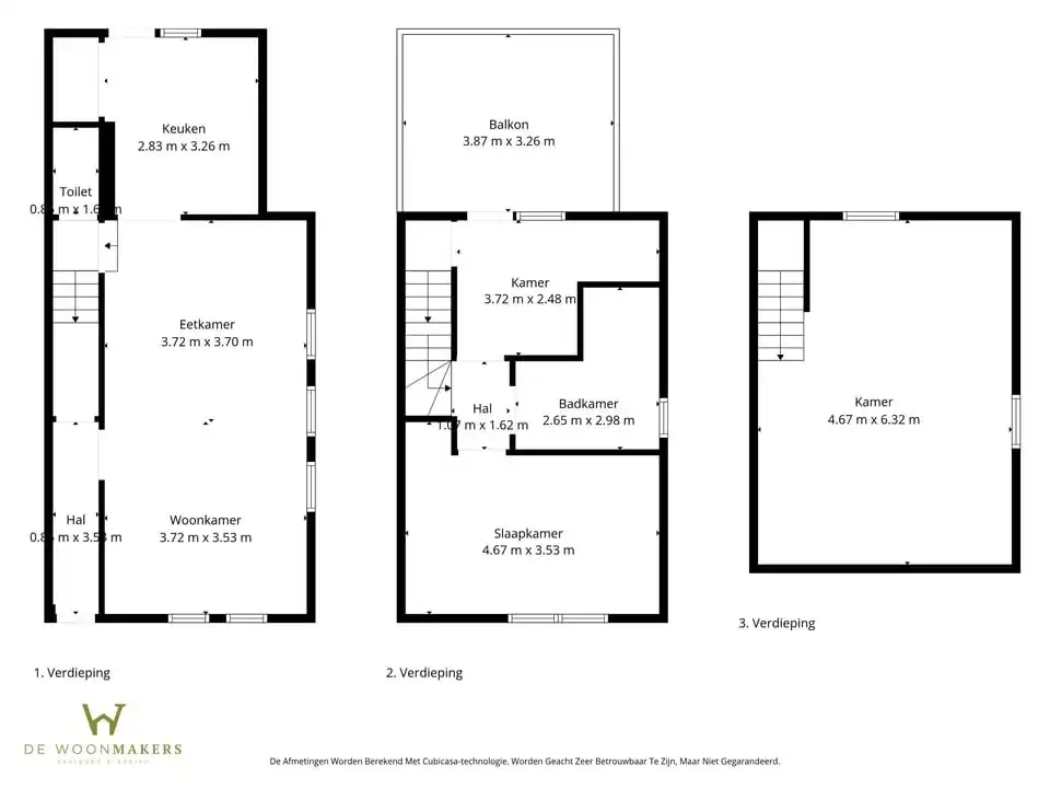
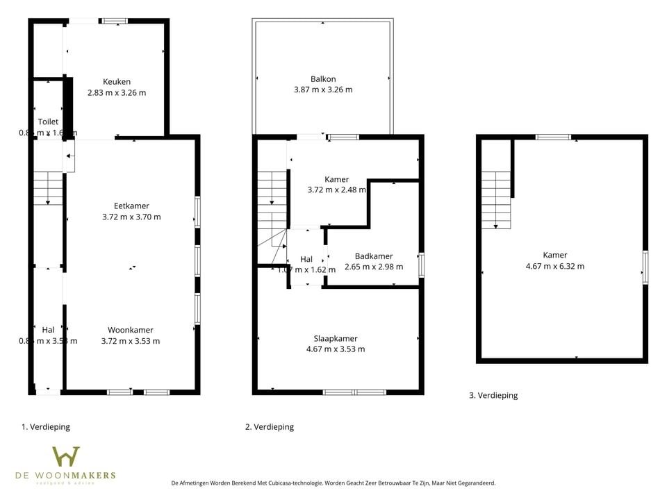
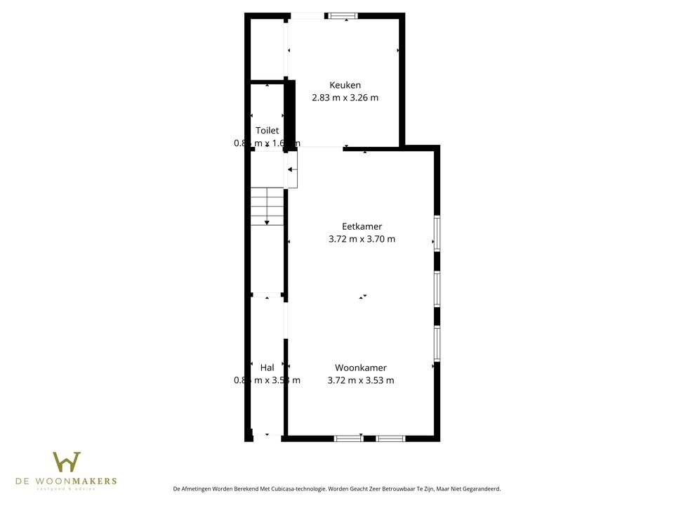
Op het gelijkvloers bevindt zich een gezellige leefruimte met veel lichtinval, aansluitend een functionele keuken in het verlengde van de eetruimte en een apart toilet.
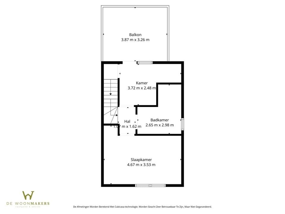
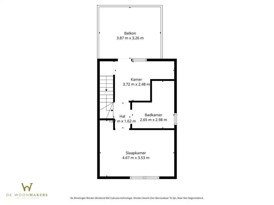
De eerste verdieping biedt een ruime slaapkamer, een praktische berging en een badkamer met alle hedendaagse voorzieningen. Vanuit deze verdieping heb je toegang tot het aangename, ruime terras – ideaal om buiten te ontspannen of gezellig te tafelen.
Via een vaste trap bereik je de tweede verdieping, waar nog een tweede ruime slaapkamer aanwezig is.
Deze woning combineert comfort, energiezuinigheid en praktische indeling – perfect voor wie op zoek is naar een gezellige thuis zonder renovatiewerken.
Hebben wij uw interesse kunnen wekken voor dit pand? Neem dan snel contact met ons op voor een afspraak op het nummer 011/98.88.98 of via info@dewoonmakers.be
De woning werd volledig gerenoveerd in 2010 en sindsdien verder gemoderniseerd. In 2017 werden zonnepanelen geplaatst, in 2024 volgden een nieuwe gasketel én energiezuinige airco’s, wat zorgt voor een optimaal wooncomfort het hele jaar door.
Op het gelijkvloers bevindt zich een gezellige leefruimte met veel lichtinval, aansluitend een functionele keuken in het verlengde van de eetruimte en een apart toilet.
De eerste verdieping biedt een ruime slaapkamer, een praktische berging en een badkamer met alle hedendaagse voorzieningen. Vanuit deze verdieping heb je toegang tot het aangename, ruime terras – ideaal om buiten te ontspannen of gezellig te tafelen.
Via een vaste trap bereik je de tweede verdieping, waar nog een tweede ruime slaapkamer aanwezig is.
Deze woning combineert comfort, energiezuinigheid en praktische indeling – perfect voor wie op zoek is naar een gezellige thuis zonder renovatiewerken.
Hebben wij uw interesse kunnen wekken voor dit pand? Neem dan snel contact met ons op voor een afspraak op het nummer 011/98.88.98 of via info@dewoonmakers.be
Op zoek naar een instapklare woning met moderne comfortvoorzieningen en een gunstige ligging in Tongeren? Ontdek deze prachtig gerenoveerde halfopen bebouwing op de Koniksemsteenweg 110 – een ideale gezinswoning die doorheen de jaren met zorg werd onderhouden en vernieuwd.
De woning werd volledig gerenoveerd in 2010 en sindsdien verder gemoderniseerd. In 2017 werden zonnepanelen geplaatst, in 2024 volgden een nieuwe gasketel én energiezuinige airco’s, wat zorgt voor een optimaal wooncomfort het hele jaar door.
Op het gelijkvloers bevindt zich een gezellige leefruimte met veel lichtinval, aansluitend een functionele keuken in het verlengde van de eetruimte en een apart toilet.
De eerste verdieping biedt een ruime slaapkamer, een praktische berging en een badkamer met alle hedendaagse voorzieningen. Vanuit deze verdieping heb je toegang tot het aangename, ruime terras – ideaal om buiten te ontspannen of gezellig te tafelen.
Via een vaste trap bereik je de tweede verdieping, waar nog een tweede ruime slaapkamer aanwezig is.
Deze woning combineert comfort, energiezuinigheid en praktische indeling – perfect voor wie op zoek is naar een gezellige thuis zonder renovatiewerken.
Hebben wij uw interesse kunnen wekken voor dit pand? Neem dan snel contact met ons op voor een afspraak op het nummer 011/98.88.98 of via info@dewoonmakers.be
De vermelde oppervlaktes zijn indicatief. De Woonmakers kan niet verantwoordelijk gesteld worden voor de juistheid van de door zijn verstrekte gegevens.
De woning werd volledig gerenoveerd in 2010 en sindsdien verder gemoderniseerd. In 2017 werden zonnepanelen geplaatst, in 2024 volgden een nieuwe gasketel én energiezuinige airco’s, wat zorgt voor een optimaal wooncomfort het hele jaar door.
Op het gelijkvloers bevindt zich een gezellige leefruimte met veel lichtinval, aansluitend een functionele keuken in het verlengde van de eetruimte en een apart toilet.
De eerste verdieping biedt een ruime slaapkamer, een praktische berging en een badkamer met alle hedendaagse voorzieningen. Vanuit deze verdieping heb je toegang tot het aangename, ruime terras – ideaal om buiten te ontspannen of gezellig te tafelen.
Via een vaste trap bereik je de tweede verdieping, waar nog een tweede ruime slaapkamer aanwezig is.
Deze woning combineert comfort, energiezuinigheid en praktische indeling – perfect voor wie op zoek is naar een gezellige thuis zonder renovatiewerken.
Hebben wij uw interesse kunnen wekken voor dit pand? Neem dan snel contact met ons op voor een afspraak op het nummer 011/98.88.98 of via info@dewoonmakers.be
De vermelde oppervlaktes zijn indicatief. De Woonmakers kan niet verantwoordelijk gesteld worden voor de juistheid van de door zijn verstrekte gegevens.
Energie
![]() |
- EPC Certificaat: 20251005-0003701977-RES-1
- Energieverbruik: 224 kWh/m²/jaar
- E-peil: E0
- Verwarming: Gas
- Beglazing: Standaard dubbel
Op de kaart

Financieel
| Prijs |
|---|
Berekening kosten
Je aankoopkosten? Die heb je snel berekent via de knop hieronder.
Bijkomende info
Gebouw
| Bouwjaar | 1918 |
|---|---|
| Bouwcertificaat | Nee |
| Bewoonbaar (m²) | 122 |
| Badkamers | 1 |
| Slaapkamers | 2 |
| Verdiepingen | 0 |
| Garages | 0 |
| Parkeerplaatsen | 0 |
| Toiletten | 0 |
Faciliteiten
| Beglazing | Standaard dubbel |
|---|---|
| Brandstof primaire verwarming | Gas |
| Septische tank | Nee |
Perceel
| Overstromingsgevoelig | Geen |
|---|---|
| P-score | B |
| G-score | B |
| Totale oppervlakte (m²) | 75 |
| Bebouwde oppervlakte (m²) | 0 |
Vergunning
| Verkavelingsvergunning | Geen beschikbaar |
|---|
Uitrusting
| Investeringspand | Nee |
|---|---|
| Parking | Nee |
| Garage | Nee |
| Lift | Nee |
| Rioolaansluiting | Nee |
| Gasaansluiting | Nee |
| Wateraansluiting | Nee |
| Elektriciteitsaansluiting | Nee |
| Internetaansluiting | Nee |
| Telefoonaansluiting | Nee |
| Zonnepanelen | Ja |
| Zonneboiler | Nee |
| Alarm | Nee |
| Videofoon | Nee |
| Grondwaterput | Nee |
Een pand van
De woonmakers
De Woonmakers Win-win in vastgoed
Bij De Woonmakers staat ervaring centraal. Sinds onze oprichting in 2020 hebben we ons voortdurend ontwikkeld als toonaangevend bedrijf in de vastgoedsector. Gedurende deze periode hebben we waardevolle inzichten verzameld en ons vakmanschap verfijnd om onze klanten een ongeëvenaarde dienstverlening te bieden.
Onze missie is om de perfecte match te creëren tussen individuen en vastgoed, en dit streven we na door onze diepgaande kennis van de markt te combineren met een innovatieve benadering van klantinteractie. Door te luisteren naar uw woonvoorkeuren en -behoeften, zijn we in staat om op maat gemaakte oplossingen te presenteren die naadloos aansluiten op uw levensstijl.
De drijvende krachten achter De Woonmakers, Jan en Krisja, delen een passie voor vastgoed en een toewijding om de klanten te voorzien van een ongeëvenaarde ervaring. Met jarenlange expertise in verschillende facetten van de vastgoedmarkt streven zij ernaar om een service te bieden die verder gaat dan alleen transacties. “Onze klanten kunnen rekenen op een persoonlijke aanpak die gericht is op het creëren van langdurige relaties en het leveren van op maat gemaakte oplossingen die voldoen aan hun specifieke behoeften.”
Koninksemsteenweg 110
Leer meer over vastgoed
24 November 2025
Uitgezocht voor jouw gemeente: Hoeveel stijgt de waarde van je woning door een renovatie?
22 October 2025
Hoeveel kan ik lenen om een huis te kopen?
11 June 2025
Huis kopen met bouwovertreding? Dit moet je weten
11 May 2025
