In optie
GEZELLIGE GEZINSWONING MET 3 SLKS, GARAGE EN VEEL PRIVACY
€ 249.000
Een pand van De woonmakers
Overzicht
- 139 m² bewoonbaar
- 692 m² grond
Beschrijving
Ben je op zoek naar een rustige, instapklare woning met veel charme en een prachtige ligging? Dan is deze woning op een perceel van 692m² precies wat je zoekt! Dankzij de ligging naast landbouwgebied geniet je hier van volledige rust en privacy, met een vrij uitzicht op het groen.
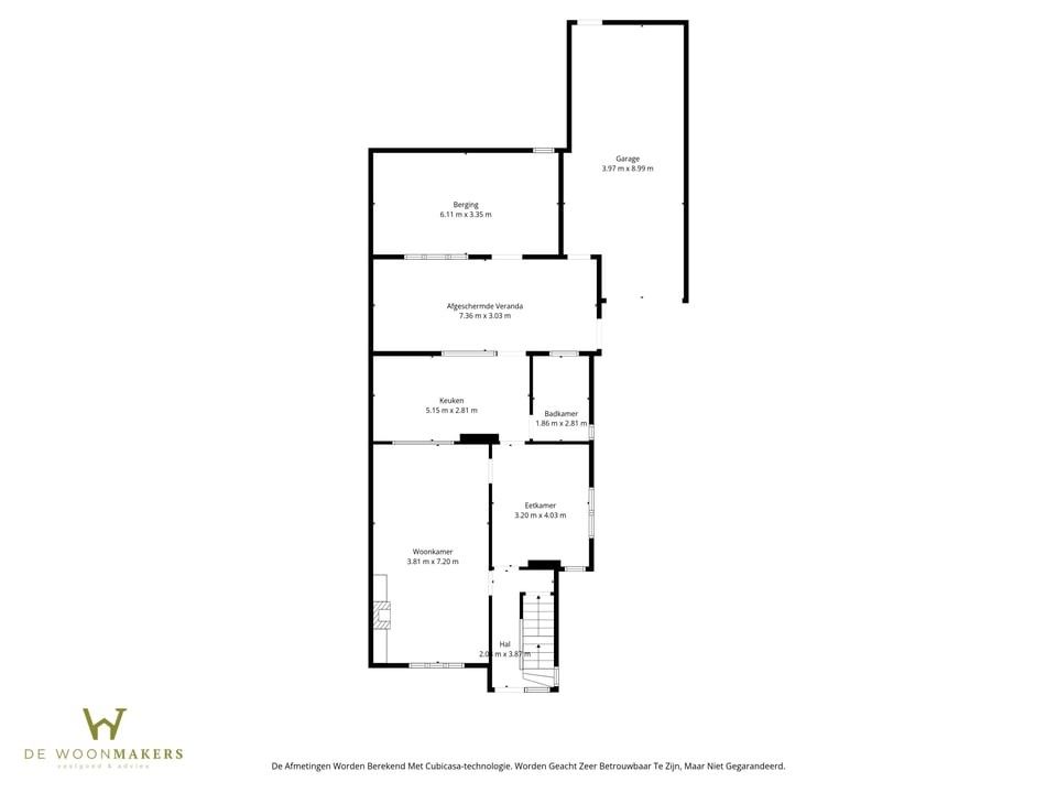
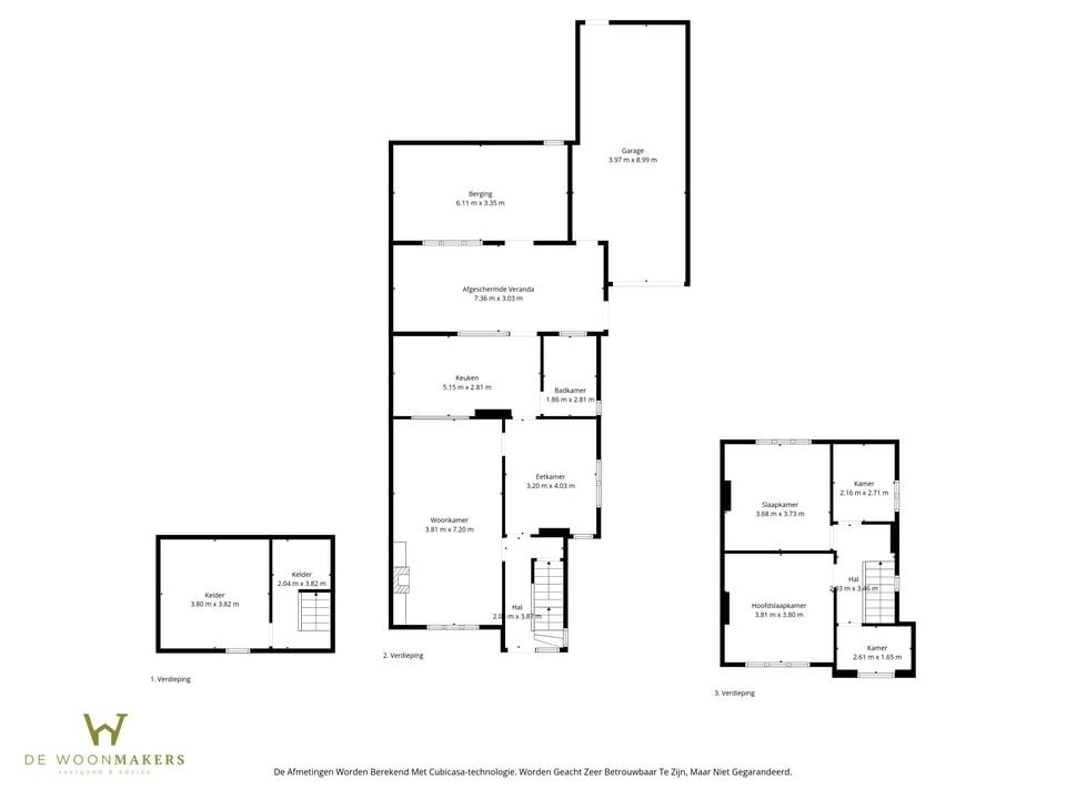
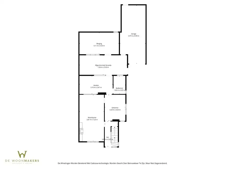
De woning biedt 139m² bewoonbare oppervlakte en beschikt over 3 slaapkamers, een gezellige leefruimte, keuken, badkamer en een ruime kelder. In 2025 werd het geheel opgefrist met nieuwe ramen en deuren, een nieuwe vloer boven en fris behang — klaar om in te trekken zonder zorgen.
Buiten is er een volledig omheinde tuin, ideaal voor wie houdt van rust, huisdieren of tuinplezier. Daarnaast is er een garage aanwezig voor de wagen of extra opslagruimte.
Verwarming gebeurt via een gekeurde stookolieketel, en met een EPC-label D geldt er geen renovatieplicht — een groot pluspunt!
👉 Troeven op een rijtje:
• 3 slaapkamers
• Geen renovatieplicht (EPC D)
• Volledig omheinde tuin met veel privacy
• Garage en ruime kelder
• Rustige ligging naast landbouwgebied
• Recente opfrissing in 2025
Hebben wij uw interesse kunnen wekken voor dit pand? Neem dan snel contact met ons op voor een afspraak op het nummer 011/98.88.98 of via info@dewoonmakers.be
De woning biedt 139m² bewoonbare oppervlakte en beschikt over 3 slaapkamers, een gezellige leefruimte, keuken, badkamer en een ruime kelder. In 2025 werd het geheel opgefrist met nieuwe ramen en deuren, een nieuwe vloer boven en fris behang — klaar om in te trekken zonder zorgen.
Buiten is er een volledig omheinde tuin, ideaal voor wie houdt van rust, huisdieren of tuinplezier. Daarnaast is er een garage aanwezig voor de wagen of extra opslagruimte.
Verwarming gebeurt via een gekeurde stookolieketel, en met een EPC-label D geldt er geen renovatieplicht — een groot pluspunt!
👉 Troeven op een rijtje:
• 3 slaapkamers
• Geen renovatieplicht (EPC D)
• Volledig omheinde tuin met veel privacy
• Garage en ruime kelder
• Rustige ligging naast landbouwgebied
• Recente opfrissing in 2025
Hebben wij uw interesse kunnen wekken voor dit pand? Neem dan snel contact met ons op voor een afspraak op het nummer 011/98.88.98 of via info@dewoonmakers.be
Ben je op zoek naar een rustige, instapklare woning met veel charme en een prachtige ligging? Dan is deze woning op een perceel van 692m² precies wat je zoekt! Dankzij de ligging naast landbouwgebied geniet je hier van volledige rust en privacy, met een vrij uitzicht op het groen.
De woning biedt 139m² bewoonbare oppervlakte en beschikt over 3 slaapkamers, een gezellige leefruimte, keuken, badkamer en een ruime kelder. In 2025 werd het geheel opgefrist met nieuwe ramen en deuren, een nieuwe vloer boven en fris behang — klaar om in te trekken zonder zorgen.
Buiten is er een volledig omheinde tuin, ideaal voor wie houdt van rust, huisdieren of tuinplezier. Daarnaast is er een garage aanwezig voor de wagen of extra opslagruimte.
Verwarming gebeurt via een gekeurde stookolieketel, en met een EPC-label D geldt er geen renovatieplicht — een groot pluspunt!
👉 Troeven op een rijtje:
• 3 slaapkamers
• Geen renovatieplicht (EPC D)
• Volledig omheinde tuin met veel privacy
• Garage en ruime kelder
• Rustige ligging naast landbouwgebied
• Recente opfrissing in 2025
Hebben wij uw interesse kunnen wekken voor dit pand? Neem dan snel contact met ons op voor een afspraak op het nummer 011/98.88.98 of via info@dewoonmakers.be
De vermelde oppervlaktes zijn indicatief. De Woonmakers kan niet verantwoordelijk gesteld worden voor de juistheid van de door zijn verstrekte gegevens.
De woning biedt 139m² bewoonbare oppervlakte en beschikt over 3 slaapkamers, een gezellige leefruimte, keuken, badkamer en een ruime kelder. In 2025 werd het geheel opgefrist met nieuwe ramen en deuren, een nieuwe vloer boven en fris behang — klaar om in te trekken zonder zorgen.
Buiten is er een volledig omheinde tuin, ideaal voor wie houdt van rust, huisdieren of tuinplezier. Daarnaast is er een garage aanwezig voor de wagen of extra opslagruimte.
Verwarming gebeurt via een gekeurde stookolieketel, en met een EPC-label D geldt er geen renovatieplicht — een groot pluspunt!
👉 Troeven op een rijtje:
• 3 slaapkamers
• Geen renovatieplicht (EPC D)
• Volledig omheinde tuin met veel privacy
• Garage en ruime kelder
• Rustige ligging naast landbouwgebied
• Recente opfrissing in 2025
Hebben wij uw interesse kunnen wekken voor dit pand? Neem dan snel contact met ons op voor een afspraak op het nummer 011/98.88.98 of via info@dewoonmakers.be
De vermelde oppervlaktes zijn indicatief. De Woonmakers kan niet verantwoordelijk gesteld worden voor de juistheid van de door zijn verstrekte gegevens.
Energie
![]() |
- EPC Certificaat: 20251013-0003708714-RES-1
- Energieverbruik: 334 kWh/m²/jaar
- E-peil: E0
- Beglazing: Standaard dubbel
Extra budget nodig voor je renovatie?
De overheid helpt je dit pand energetisch te renoveren! Hieronder zie je het premiebedrag dat je mogelijks van de overheid krijgt.
Het huidige EPC-label is:

Op de kaart

Financieel
| Prijs | |
|---|---|
| Kadastraal inkomen (niet geïndexeerd) | € 510 |
Berekening kosten
Je aankoopkosten? Die heb je snel berekend via de knop hieronder.
Bijkomende info
Gebouw
| Bouwjaar | 1963 |
|---|---|
| Bouwcertificaat | Nee |
| Bewoonbaar (m²) | 139 |
| Badkamers | 0 |
| Slaapkamers | 0 |
| Verdiepingen | 0 |
| Garages | 0 |
| Parkeerplaatsen | 0 |
| Toiletten | 0 |
Faciliteiten
| Beglazing | Standaard dubbel |
|---|---|
| Septische tank | Nee |
Perceel
| Overstromingsgevoelig | Geen |
|---|---|
| P-score | A |
| G-score | A |
| Totale oppervlakte (m²) | 692 |
| Bebouwde oppervlakte (m²) | 0 |
Vergunning
| Verkavelingsvergunning | Geen beschikbaar |
|---|
Uitrusting
| Investeringspand | Nee |
|---|---|
| Parking | Nee |
| Garage | Nee |
| Lift | Nee |
| Rioolaansluiting | Nee |
| Gasaansluiting | Nee |
| Wateraansluiting | Nee |
| Elektriciteitsaansluiting | Nee |
| Internetaansluiting | Nee |
| Telefoonaansluiting | Nee |
| Zonnepanelen | Nee |
| Zonneboiler | Nee |
| Alarm | Nee |
| Videofoon | Nee |
| Grondwaterput | Nee |
Een pand van
De woonmakers
De Woonmakers Win-win in vastgoed
Bij De Woonmakers staat ervaring centraal. Sinds onze oprichting in 2020 hebben we ons voortdurend ontwikkeld als toonaangevend bedrijf in de vastgoedsector. Gedurende deze periode hebben we waardevolle inzichten verzameld en ons vakmanschap verfijnd om onze klanten een ongeëvenaarde dienstverlening te bieden.
Onze missie is om de perfecte match te creëren tussen individuen en vastgoed, en dit streven we na door onze diepgaande kennis van de markt te combineren met een innovatieve benadering van klantinteractie. Door te luisteren naar uw woonvoorkeuren en -behoeften, zijn we in staat om op maat gemaakte oplossingen te presenteren die naadloos aansluiten op uw levensstijl.
De drijvende krachten achter De Woonmakers, Jan en Krisja, delen een passie voor vastgoed en een toewijding om de klanten te voorzien van een ongeëvenaarde ervaring. Met jarenlange expertise in verschillende facetten van de vastgoedmarkt streven zij ernaar om een service te bieden die verder gaat dan alleen transacties. “Onze klanten kunnen rekenen op een persoonlijke aanpak die gericht is op het creëren van langdurige relaties en het leveren van op maat gemaakte oplossingen die voldoen aan hun specifieke behoeften.”
Millerweg 94
Leer meer over vastgoed
01 March 2026
Wanneer heb ik een bouwvergunning of omgevingsvergunning nodig?
17 February 2026
Hoe breng ik een bod uit op een woning?
24 November 2025
Uitgezocht voor jouw gemeente: Hoeveel stijgt de waarde van je woning door een renovatie?
22 October 2025


