VERGUND PROJECT VAN 4 WOONEENHEDEN OP EEN TOPLIGGING IN TONGEREN
€ 199.000
Een pand van De woonmakers
Jouw zoektocht
Overzicht
- 325 m² grond
- 8 Slaapkamer(s)
- 4 Badkamer(s)
Beschrijving
Het centrum van Tongeren bevindt zich binnen handbereik waar lokale handelaars, gezellige restaurants en leuke boetieks gevestigd zijn. Naastliggende gemeenten zijn makkelijk bereikbaar dankzij de nabijheid van verbindingswegen en de oprit van de autostrade E313.
Het geheel werd opgetrokken begin 20ste eeuw is momenteel vergund voor het verbouwen van het pand en een functie wijziging naar 4 wooneenheden.
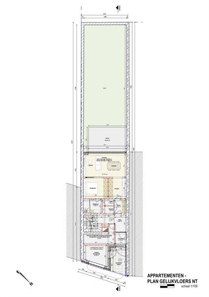
Op het gelijkvloers is er een 1-slaapkamer appartement (bruto bewoonbare oppervlakte van 57m²) voorzien met een ruim terras.
Het appartement op de eerste verdieping is voorzien van 2 slaapkamers en een ruim terras (bruto bewoonbare oppervlakte van 81m²).
Het appartement op de tweede verdieping is voorzien van 2 slaapkamers en een terras (bruto bewoonbare oppervlakte van 76m²).
De laatste wooneenheid is een duplex appartement voorzien van 3 slaapkamers en een terras (bruto bewoonbare oppervlakte van 116m²).
Voor meer informatie over de mogelijkheden van het perceel, verwijs ik u graag door naar de dienst omgeving van de gemeente Tongeren.
Gezien de leeftijd en de toestand van het pand dient men rekening te houden met een totaal renovatie waardoor dit het pand bij uitstek is voor de doe-het-zelvers onder ons.
Bent u opzoek naar een renovatieproject? Aarzel niet om ons te contacteren op het nummer 011/98.88.98 of via info@dewoonmakers.be
In het historische Tongeren vinden we langs de Moerenstraat ter hoogte van nummer 41 dit volledig te renoveren pand terug.
Het centrum van Tongeren bevindt zich binnen handbereik waar lokale handelaars, gezellige restaurants en leuke boetieks gevestigd zijn. Naastliggende gemeenten zijn makkelijk bereikbaar dankzij de nabijheid van verbindingswegen en de oprit van de autostrade E313. Men kan hier dus spreken van een zeer goede ligging!
Het geheel werd opgetrokken begin 20ste eeuw is momenteel vergund voor het verbouwen van het pand en een functie wijziging naar 4 wooneenheden.
Op het gelijkvloers is er een 1-slaapkamer appartement (bruto bewoonbare oppervlakte van 57m²) voorzien met een ruim terras.
Het appartement op de eerste verdieping is voorzien van 2 slaapkamers en een ruim terras (bruto bewoonbare oppervlakte van 81m²).
Het appartement op de tweede verdieping is voorzien van 2 slaapkamers en een terras (bruto bewoonbare oppervlakte van 76m²).
De laatste wooneenheid is een duplex appartement voorzien van 3 slaapkamers en een terras (bruto bewoonbare oppervlakte van 116m²).
Voor meer informatie over de mogelijkheden van het perceel, verwijs ik u graag door naar de dienst omgeving van de gemeente Tongeren.
Gezien de leeftijd en de toestand van het pand dient men rekening te houden met een totaal renovatie waardoor dit het pand bij uitstek is voor de doe-het-zelvers onder ons. Hierdoor heeft de koper carte blanche om het volledig naar zijn smaak in te richten en af te werken. Mits de nodige creativiteit en handigheid kan dit pand omgetoverd worden tot een echte (t)huis.
Bent u opzoek naar een renovatieproject? Aarzel niet om ons te contacteren op het nummer 011/98.88.98 of via info@dewoonmakers.be
Energie
![]() |
- EPC Certificaat: 20190529-0002164855-RES-2
- Energieverbruik: 773 kWh/m²/jaar
- E-peil: E0
- Beglazing: Enkel
Extra budget nodig voor je renovatie?

Op de kaart

Financieel
| Prijs | |
|---|---|
| Kadastraal inkomen (niet geïndexeerd) | € 1.202 |
Berekening kosten
Je aankoopkosten? Die heb je snel berekend via de knop hieronder.
Bijkomende info
Gebouw
| Bouwjaar | 1938 |
|---|---|
| Staat | Te renoveren |
| Verdieping | 0 |
| Badkamers | 4 |
| Slaapkamers | 8 |
| Verdiepingen | 0 |
| Garages | 0 |
| Parkeerplaatsen | 0 |
| Toiletten | 0 |
Faciliteiten
| Keuken uitrusting | Basis |
|---|---|
| Beglazing | Enkel |
| Septische tank | Nee |
Perceel
| Overstromingsgevoelig | Geen |
|---|---|
| P-score | B |
| G-score | B |
| Totale oppervlakte (m²) | 325 |
| Bebouwde oppervlakte (m²) | 0 |
Vergunning
| Verkavelingsvergunning | Geen beschikbaar |
|---|
Uitrusting
| Investeringspand | Nee |
|---|---|
| Parking | Nee |
| Garage | Nee |
| Lift | Nee |
| Rioolaansluiting | Nee |
| Gasaansluiting | Nee |
| Wateraansluiting | Nee |
| Elektriciteitsaansluiting | Nee |
| Internetaansluiting | Nee |
| Telefoonaansluiting | Nee |
| Zonnepanelen | Nee |
| Zonneboiler | Nee |
| Alarm | Nee |
| Videofoon | Nee |
| Grondwaterput | Nee |



