Nieuw
Gezellig ingericht appartement aan het stadscentrum van Tongeren
€ 139.000
Een pand van LEROI IMMOBILIËN
Favoriet
Jouw zoektocht
Jouw scoretabel voor dit pand
Aan het laden...
Jouw geplande bezichtigingen
Aan het laden...
Overzicht
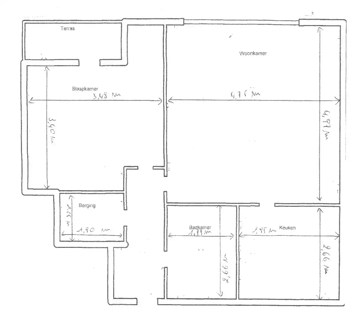
- 76 m² bewoonbaar
- 1 Slaapkamer(s)
- 1 Badkamer(s)
- 1 Toilet(ten)
- 1 Living(s)
Overstromingsgevaar gebouw
Overstromingsgevaar perceel
Beschrijving
Dit appartement is gelegen op de tweede verdieping van een verzorgd gebouw, vlak aan het gezellige stadscentrum van Tongeren.
Centrale inkomhal met trappen én lift.
Achter het gebouw is een gemeenschappelijke parking met mogelijkheid tot het huren van een autostaanplaats.
INDELING:
x inkomhal met vestiairehoek;
x mooie woonkamer met groot schuifraam aan de voorzijde;
x aparte, ingerichte keuken met eethoek;
x 1 ruime slaapkamer met toegang naar een gezellig terrasje;
x berging/wasplaats met CV-installatie;
x badkamer met dubbele lavabo, ligbad/douche en toilet.
x ruime private berging in de kelderverdieping;
x grote gemeenschappelijke fietsenstalling in de kelderverdieping.
Mooi EPC label B - elektrische installatie conform.
OOK INTERESSANTE INVESTERING VOOR VERHUUR!
INTERESSE? Maak telefonisch een afspraak voor bezichtiging op het nummer 012 23 00 23 of mail uw vragen aan roland@immo-leroi.be.
Centrale inkomhal met trappen én lift.
Achter het gebouw is een gemeenschappelijke parking met mogelijkheid tot het huren van een autostaanplaats.
INDELING:
x inkomhal met vestiairehoek;
x mooie woonkamer met groot schuifraam aan de voorzijde;
x aparte, ingerichte keuken met eethoek;
x 1 ruime slaapkamer met toegang naar een gezellig terrasje;
x berging/wasplaats met CV-installatie;
x badkamer met dubbele lavabo, ligbad/douche en toilet.
x ruime private berging in de kelderverdieping;
x grote gemeenschappelijke fietsenstalling in de kelderverdieping.
Mooi EPC label B - elektrische installatie conform.
OOK INTERESSANTE INVESTERING VOOR VERHUUR!
INTERESSE? Maak telefonisch een afspraak voor bezichtiging op het nummer 012 23 00 23 of mail uw vragen aan roland@immo-leroi.be.
Energie
![]() |
- EPC Certificaat: 20260119-0003778828-RES-1
- Verwarming: Gas
- Beglazing: Standaard dubbel
Op de kaart

Financieel
| Prijs | |
|---|---|
| Kadastraal inkomen (niet geïndexeerd) | € 723 |
Berekening kosten
Je aankoopkosten? Die heb je snel berekend via de knop hieronder.
Bijkomende info
Gebouw
| Bouwjaar | 1981 |
|---|---|
| Staat | Goed onderhouden |
| Is beschermd | Nee |
| Bewoonbaar (m²) | 76 |
| Verdieping | 2 |
| Badkamers | 1 |
| Slaapkamers | 1 |
| Verdiepingen | 4 |
| Keukens | 1 |
| Leefruimtes | 1 |
| Toiletten | 1 |
Ruimtes
| Slaapkamer | 11.85 m² |
|---|---|
| Keuken | 7.85 m² |
| Leefruimte | 23.6 m² |
Faciliteiten
| Keuken | Gesloten keuken |
|---|---|
| Keuken uitrusting | Goed uitgerust |
| Materiaal ramenomlijstingen | Aluminium |
| Beglazing | Standaard dubbel |
| Luiken | Nee |
| Primair verwarmingstype | Centrale verwarming |
| Primaire verwarmingsbron | Condensatieketel |
| Brandstof primaire verwarming | Gas |
Perceel
| P-score | D |
|---|---|
| G-score | D |
| Voorkeurrecht | Nee |
Vergunning
| Vergunning | Vergunning beschikbaar |
|---|---|
| Verkavelingsvergunning | Geen beschikbaar |
| Bouwovertreding dagvaardiging | Geen |
| Type gebied | Stedelijk |
Uitrusting
| Meerdere eigenaars | Nee |
|---|---|
| Geschikt als kangoeroewoning | Nee |
| Geschikt voor rolstoelgebruikers | Nee |
| Geschikt voor praktijk | Nee |
| Volledig onderkelderd | Nee |
| Parking | Ja |
| Garage | Nee |
| Thuiskantoor | Nee |
| Kelder | Ja |
| Zolder | Nee |
| Opslagruimte | Ja |
| Tuin | Nee |
| Terras | Ja |
| Lift | Ja |
| Rioolaansluiting | Ja |
| Gasaansluiting | Ja |
| Wateraansluiting | Ja |
| Elektriciteitsaansluiting | Ja |
| TV aansluiting | Ja |
| Internetaansluiting | Ja |
| Zonnepanelen | Nee |
| Zonneboiler | Nee |
| Alarm | Nee |
| Zwembad | Nee |
| Jacuzzi | Nee |
| Toonzaal | Nee |
| Ventilatie | Nee |
Appartementsblok
| Aantal verdiepingen | 4 |
|---|---|
| Lift | Ja |
| Intercom | Ja |
Een pand van
LEROI IMMOBILIËN
IMMO LEROI - Waar verkopers en kopers mekaar vinden
Een woning of appartement verkopen of verhuren?
Hier vindt de kandidaat de weg naar jouw woning!
Laat je begeleiden door het team van Immo Leroi en kom terecht in een netwerk waar verkopers en kopers elkaar vinden.
Geniet volle ondersteuning gedurende het ganse traject.
26K0101
Leer meer over vastgoed
Nieuw
23 March 2026
Op Spotto zoeken als een pro: 10 slimme tips
Nieuw
21 March 2026
Hoeveel kan ik lenen om een huis te kopen?
01 March 2026
Wanneer heb ik een bouwvergunning of omgevingsvergunning nodig?
17 February 2026
