Goed gelegen ruim appartement met twee slaapkamers en terras
€ 339.000
Een pand van Immovadis
Overzicht
- 140.5 m² bewoonbaar
- 2 Slaapkamer(s)
- 1 Badkamer(s)
- 1 Toilet(ten)
- 1 Living(s)
- 1 Garage(s)
Beschrijving
Dit appartement beschikt over een ruime en lichtrijke woonkamer met open keuken en een gerieflijk, zuidgericht terras als verlenging van de woonruimte.
Met een EPC-label A voldoet het appartement aan de hoogste energie-efficiëntienormen wat garant staat voor een comfortabel binnenklimaat en lage energiekosten.
De aanwezigheid van een lift zorgt voor een vlotte, comfortabele toegang tot de verdieping.
De ligging is centraal, op wandelafstand van alle voorzieningen en openbaar vervoer.
Beschrijving:
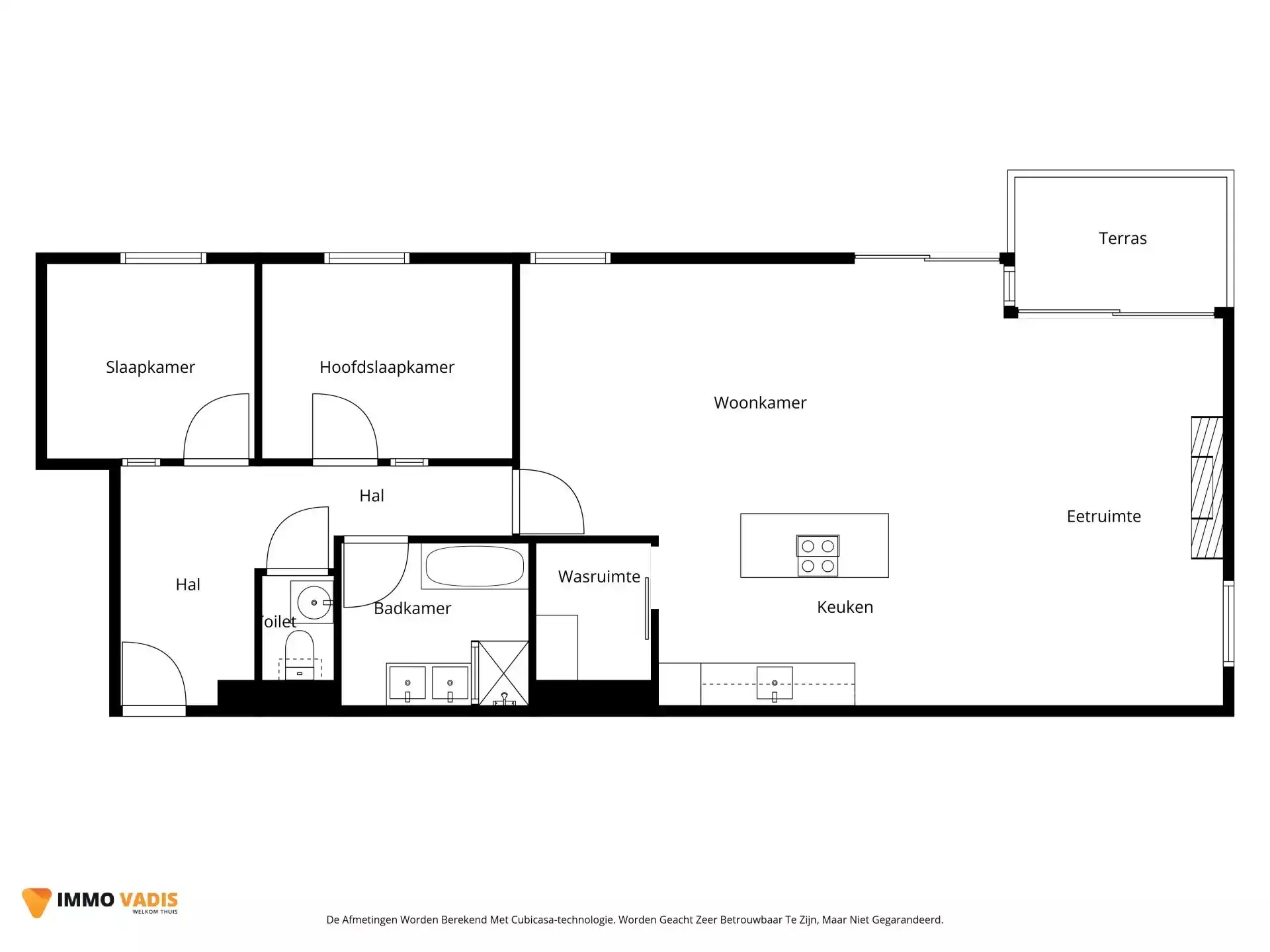
- Inkomhal
- Twee slaapkamers van 10 m² en 12 m²
- Toilet met wasbakje
- Badkamer van 8 m² met dubbele wastafel, ruime inloopdouche en ligbad
- Woonkamer met eiken parketvloer, gashaard en toegang via een schuifraam naar het terras
- Open inbouwkeuken met granieten werktablet, inductiekookplaat met afzuigkap, oven, vaatwasser en gootsteen
- Berging voor wasmachine en droogkast
Optioneel kan een ondergrondse parkeerplaats worden aangekocht.
Geïnteresseerd?
Mail naar bianca@immovadis.be of bel naar 0487/32.19.97
Met een EPC-label A voldoet het appartement aan de hoogste energie-efficiëntienormen wat garant staat voor een comfortabel binnenklimaat en lage energiekosten.
De aanwezigheid van een lift zorgt voor een vlotte, comfortabele toegang tot de verdieping.
De ligging is centraal, op wandelafstand van alle voorzieningen en openbaar vervoer.
Beschrijving:
- Inkomhal
- Twee slaapkamers van 10 m² en 12 m²
- Toilet met wasbakje
- Badkamer van 8 m² met dubbele wastafel, ruime inloopdouche en ligbad
- Woonkamer met eiken parketvloer, gashaard en toegang via een schuifraam naar het terras
- Open inbouwkeuken met granieten werktablet, inductiekookplaat met afzuigkap, oven, vaatwasser en gootsteen
- Berging voor wasmachine en droogkast
Optioneel kan een ondergrondse parkeerplaats worden aangekocht.
Geïnteresseerd?
Mail naar bianca@immovadis.be of bel naar 0487/32.19.97
Energie
![]() |
- EPC Certificaat: 20250306-0003540687-RES-1
- Energieverbruik: 99 kWh/m²/jaar
- Verwarming: Gas
- Beglazing: Standaard dubbel
Op de kaart

Financieel
| Prijs | |
|---|---|
| Kadastraal inkomen (niet geïndexeerd) | € 1.076 |
Berekening kosten
Je aankoopkosten? Die heb je snel berekend via de knop hieronder.
Bijkomende info
Gebouw
| Bouwjaar | 2007 |
|---|---|
| Staat | Zo goed als nieuw |
| Is beschermd | Nee |
| Bouwcertificaat | Nee |
| Bewoonbaar (m²) | 140.5 |
| Verdieping | 2 |
| Badkamers | 1 |
| Slaapkamers | 2 |
| Verdiepingen | 0 |
| Garages | 1 |
| Keukens | 1 |
| Leefruimtes | 1 |
| Opslagruimtes | 1 |
| Toiletten | 1 |
Ruimtes
| Slaapkamer | 22 m² |
|---|---|
| Leefruimte | 53 m² |
| Kamer 1 | 20 m² |
| Kamer 2 | 8 m² |
| Kamer 3 | 12 m² |
| Kamer 4 | 1.5 m² |
| Terras | 6 m² |
| Opbergruimte | 3 m² |
| Keuken | 15 m² |
Faciliteiten
| Materiaal ramenomlijstingen | Aluminium |
|---|---|
| Beglazing | Standaard dubbel |
| Luiken | Nee |
| Primair verwarmingstype | Decentrale verwarming |
| Primaire verwarmingsbron | Warmtenet |
| Brandstof primaire verwarming | Gas |
| Elektrisch keuringsattest | Ja |
| Septische tank | Nee |
| Beerput | Nee |
Perceel
| Overstromingsgevoelig | Geen |
|---|---|
| Voorkeurrecht | Nee |
| Bebouwde oppervlakte (m²) | 140 |
| Oppervlakte terras (m²) | 6 |
| Oriëntatie voorgevel | Zuid |
Vergunning
| Vergunning | Vergunning beschikbaar |
|---|
Uitrusting
| Investeringspand | Nee |
|---|---|
| Geschikt als kangoeroewoning | Nee |
| Geschikt voor rolstoelgebruikers | Nee |
| Parking | Nee |
| Garage | Ja |
| Thuiskantoor | Nee |
| Kelder | Nee |
| Zolder | Nee |
| Opslagruimte | Ja |
| Tuin | Nee |
| Terras | Ja |
| Lift | Ja |
| Rioolaansluiting | Nee |
| Gasaansluiting | Ja |
| Wateraansluiting | Ja |
| Elektriciteitsaansluiting | Ja |
| TV aansluiting | Nee |
| Internetaansluiting | Nee |
| Zonnepanelen | Nee |
| Zonneboiler | Nee |
| Thuisbatterij | Nee |
| Alarm | Nee |
| Zwembad | Nee |
| Sauna | Nee |
| Jacuzzi | Nee |
| Videofoon | Ja |
| Domotica | Nee |
| Grondwaterput | Nee |
| Ventilatie | Nee |
Een pand van
Immovadis
Welkom Thuis
Geen alledaagse standaard makelaar!
ImmoVadis staat voor anders durven zijn, maar wel binnen de professionele kaders.
Wij pakken uw vastgoed professioneel, duidelijk (helder) en tijdgericht aan, waarbij u als klant ten allen tijde centraal staat en zich WELKOM THUIS voelt!
ImmoVadis gelooft in 'anders durven denken', samen met een realistische, no-nonsense aanpak. Daarnaast is vertrouwen, passie en een goede relatie met de klant van zeer groot belang.
Wij streven ernaar om onze klanten altijd tevreden te houden. ImmoVadis is dan ook een klantgericht kantoor met een hoogwaardig dienstverleningsniveau.
Team
Immovadis bestaat uit een team van medewerkers en partners, onder leiding van een vat vol ervaring op niveau van makelaardij, Guy Clerinx in samenwerking met een bouwkundig aannemer, Wim Lambrechts (ProMaCon BV).
Door deze samenwerking kunnen we op het vlak van bouwkundigheid een meerwaarde toevoegen aan het gebruikelijk takenpakket van een standaard makelaar.
Als klant krijgt u deze deskundige meerwaarde automatisch mee inbegrepen in onze dienstverlening.
86447322
Leer meer over vastgoed
Nieuw
01 March 2026
Wanneer heb ik een bouwvergunning of omgevingsvergunning nodig?
17 February 2026
Hoe breng ik een bod uit op een woning?
24 November 2025
Uitgezocht voor jouw gemeente: Hoeveel stijgt de waarde van je woning door een renovatie?
22 October 2025
