Ondergrondse autostaanplaatsen en berging
Een pand van CONFIDEO IMMO
Overzicht
- 1 Garage(s)
Beschrijving
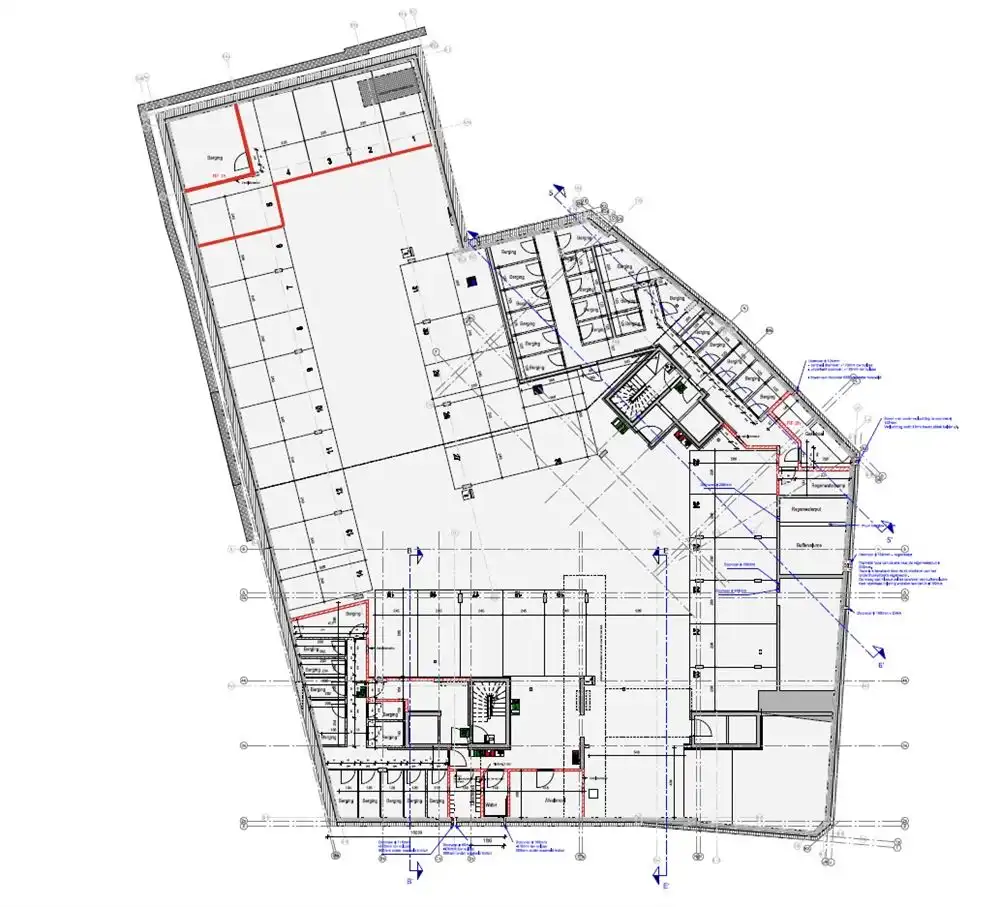
In Residentie Domus Anguli worden vijf staanplaatsen te koop aangeboden. De vraagprijs per staanplaats bedraagt 16.000 EUR. Daarnaast is er een berging beschikbaar voor 8.000 EUR. De berging heeft een oppervlakte van 16 m².
Op het kelderplan zijn de staanplaatsen en de berging in het rood aangeduid.
Indien u meer informatie wilt of een afspraak ter plaatse wenst, kunt u terecht op onze website www.confideo-immo.be of neem gerust telefonisch contact op via 012 23 23 11.
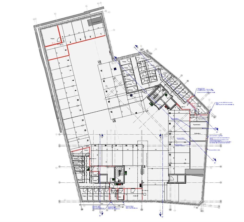
Op het kelderplan zijn de staanplaatsen en de berging in het rood aangeduid.
Indien u meer informatie wilt of een afspraak ter plaatse wenst, kunt u terecht op onze website www.confideo-immo.be of neem gerust telefonisch contact op via 012 23 23 11.
Energie
- E-peil: E0
- Beglazing: Onbekend
Op de kaart

Financieel
| Prijs |
|---|
Berekening kosten
Je aankoopkosten? Die heb je snel berekend via de knop hieronder.
Bijkomende info
Gebouw
| Bouwjaar | 2021 |
|---|---|
| Verdieping | 0 |
Faciliteiten
| Septische tank | Nee |
|---|
Perceel
| Overstromingsgevoelig | Geen |
|---|---|
| P-score | A |
| G-score | A |
| Bebouwde oppervlakte (m²) | 0 |
Vergunning
| Verkavelingsvergunning | Vergunning beschikbaar |
|---|
Uitrusting
| Investeringspand | Nee |
|---|---|
| Parking | Nee |
| Garage | Ja |
| Lift | Nee |
| Rioolaansluiting | Nee |
| Gasaansluiting | Nee |
| Wateraansluiting | Nee |
| Elektriciteitsaansluiting | Nee |
| Internetaansluiting | Nee |
| Telefoonaansluiting | Nee |
| Zonnepanelen | Nee |
| Zonneboiler | Nee |
| Alarm | Nee |
| Videofoon | Nee |
| Grondwaterput | Nee |
Een pand van
CONFIDEO IMMO
Confideo Immo - Woon zoals je bent
Confideo Immo werd opgericht in 1949 en speelt dus al meer dan 70 jaar een succesvolle rol in de vastgoeddromen van de Tongerse bevolking.
Decennialang hebben wij discreet maar professioneel gewerkt aan onze sterke reputatie, waarbij we klantgerichtheid, betrouwbaarheid en kwaliteit steeds hoog in het vaandel hebben gedragen.
Vandaag maakt Confideo Immo deel uit van de Confideo Group, een onafhankelijke en dynamische dienstengroep die zowel particuliere als professionele klanten oplossingen op maat biedt op het vlak van vastgoed, bankieren en verzekeren.
Wij helpen u graag bij uw zoektocht naar het pand dat het best aan uw verwachtingen voldoet. Een nieuwe woning kopen? Een appartement huren? Een geschikte locatie voor uw handelsactiviteiten vinden? U kan steeds rekenen op de professionele begeleiding van onze medewerkers.
234
Leer meer over vastgoed
Nieuw
01 March 2026
Wanneer heb ik een bouwvergunning of omgevingsvergunning nodig?
17 February 2026
Hoe breng ik een bod uit op een woning?
24 November 2025
Uitgezocht voor jouw gemeente: Hoeveel stijgt de waarde van je woning door een renovatie?
22 October 2025