Grond te koop
€ 78.000
Een pand van CONFIDEO IMMO
Favoriet
Jouw zoektocht
Jouw scoretabel voor dit pand
Aan het laden...
Jouw geplande bezichtigingen
Aan het laden...
Overzicht
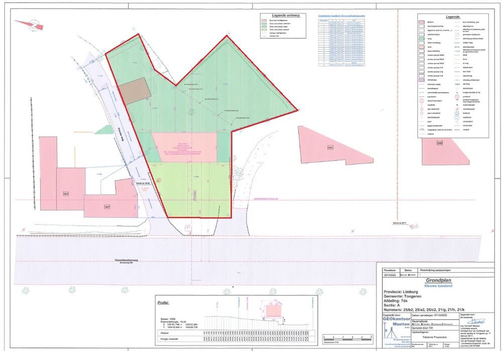
- 849 m² grond
Overstromingsgevaar perceel
Beschrijving
Perceel grond met volgende eigenschappen:
` totale oppervlakte van 8a49
` geschikt voor een open bebouwing met twee bouwlagen
` maximale breedte van de voorgevel: 11,56 meter
` maximale diepte van 6,29 meter
` het rooien van de boom op het perceel is vergunningsplichtig en er zal een heraanplanting worden opgelegd
` gelegen op enkele autominuten van het centrum van Tongeren
` vlotte verbindingen met belangrijke invalswegen en steden als Hasselt, Bilzen, Maastricht en Luik
De dienst omgeving is steeds bereid om een concreet voorstel te bekijken en hiervoor een preadvies af te leveren, onder voorbehoud van een volledig aanvraagdossier, de adviezen en de resultaten uit het openbaar onderzoek.
Wil u hier uw nestje bouwen?
` totale oppervlakte van 8a49
` geschikt voor een open bebouwing met twee bouwlagen
` maximale breedte van de voorgevel: 11,56 meter
` maximale diepte van 6,29 meter
` het rooien van de boom op het perceel is vergunningsplichtig en er zal een heraanplanting worden opgelegd
` gelegen op enkele autominuten van het centrum van Tongeren
` vlotte verbindingen met belangrijke invalswegen en steden als Hasselt, Bilzen, Maastricht en Luik
De dienst omgeving is steeds bereid om een concreet voorstel te bekijken en hiervoor een preadvies af te leveren, onder voorbehoud van een volledig aanvraagdossier, de adviezen en de resultaten uit het openbaar onderzoek.
Wil u hier uw nestje bouwen?
Energie
- E-peil: E0
- Beglazing: Onbekend
Op de kaart

Financieel
| Prijs |
|---|
Berekening kosten
Je aankoopkosten? Die heb je snel berekend via de knop hieronder.
Bijkomende info
Gebouw
| Bouwcertificaat | Nee |
|---|
Perceel
| Overstromingsgevoelig | Geen |
|---|---|
| P-score | D |
| Totale oppervlakte (m²) | 849 |
Vergunning
| Verkavelingsvergunning | Geen beschikbaar |
|---|
Uitrusting
| Investeringspand | Nee |
|---|---|
| Rioolaansluiting | Nee |
| Gasaansluiting | Nee |
| Wateraansluiting | Nee |
| Elektriciteitsaansluiting | Nee |
| Internetaansluiting | Nee |
| Telefoonaansluiting | Nee |
Een pand van
CONFIDEO IMMO
Confideo Immo - Woon zoals je bent
Confideo Immo werd opgericht in 1949 en speelt dus al meer dan 70 jaar een succesvolle rol in de vastgoeddromen van de Tongerse bevolking.
Decennialang hebben wij discreet maar professioneel gewerkt aan onze sterke reputatie, waarbij we klantgerichtheid, betrouwbaarheid en kwaliteit steeds hoog in het vaandel hebben gedragen.
Vandaag maakt Confideo Immo deel uit van de Confideo Group, een onafhankelijke en dynamische dienstengroep die zowel particuliere als professionele klanten oplossingen op maat biedt op het vlak van vastgoed, bankieren en verzekeren.
Wij helpen u graag bij uw zoektocht naar het pand dat het best aan uw verwachtingen voldoet. Een nieuwe woning kopen? Een appartement huren? Een geschikte locatie voor uw handelsactiviteiten vinden? U kan steeds rekenen op de professionele begeleiding van onze medewerkers.
145
Leer meer over vastgoed
23 March 2026
Op Spotto zoeken als een pro: 10 slimme tips
21 March 2026
Hoeveel kan ik lenen om een huis te kopen?
01 March 2026
Wanneer heb ik een bouwvergunning of omgevingsvergunning nodig?
17 February 2026