HALFOPEN BEBOUWING MET GARAGE EN GROTE TUIN IN TONGEREN
€ 265.000
Een pand van De woonmakers
Favoriet
Jouw zoektocht
Jouw scoretabel voor dit pand
Aan het laden...
Jouw geplande bezichtigingen
Aan het laden...
Overzicht
- 156 m² bewoonbaar
- 713 m² grond
- 3 Slaapkamer(s)
- 1 Badkamer(s)
- 1 Tuin
- 2 Garage(s)
Overstromingsgevaar perceel
Beschrijving
In Geebroek 13 te Tongeren ontdekken we deze ruime halfopen bebouwing, ideaal voor wie op zoek is naar een comfortabele gezinswoning met veel praktische troeven. Gelegen op een mooi perceel van 7a13, biedt deze woning een aangename tuin met voldoende speelruimte voor kinderen of huisdieren.
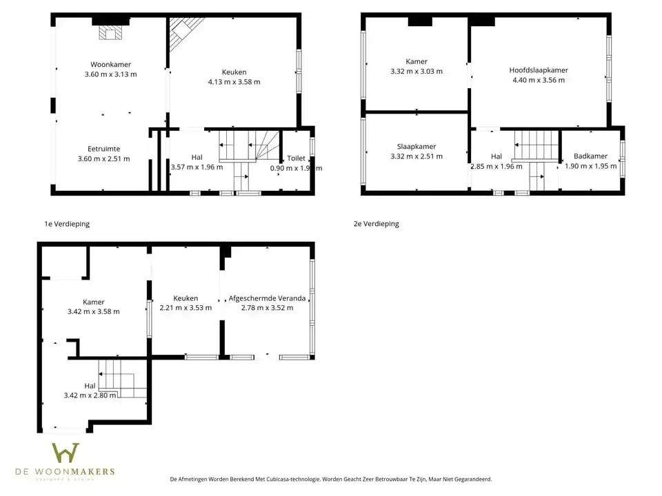
Op het gelijkvloers bevinden zich twee garages, ideaal voor wie extra stockage of hobbyruimte wenst. Daarnaast is er een gezellige veranda, perfect voor wie graag het hele jaar door van de tuin geniet. De handige bijkeuken zorgt voor extra functionaliteit en opbergruimte.
Op de eerste verdieping wacht een ruime en lichtrijke leefruimte met mooie lichtinval dankzij de grote raampartijen. Aansluitend bevindt zich de ruime keuken, ideaal voor wie houdt van koken en samen tafelen. Ook een apart toilet is voorzien op deze verdieping.
De tweede verdieping omvat drie volwaardige slaapkamers en een badkamer, waardoor dit een ideale indeling is voor gezinnen.
Met een perceel van 7a13 is er buiten meer dan genoeg ruimte om te ontspannen, te tuinieren of kinderen veilig te laten spelen.
Troeven van deze woning:
- Halfopen bebouwing op een mooi perceel van 7a13
- Meerdere garages op het gelijkvloers
- Gezellige veranda
- Bijkeuken voor extra bergruimte
- Lichtrijke leefruimte op de eerste verdieping
- 3 slaapkamers en badkamer op de tweede verdieping
Neem contact op met ons op het nummer 011/98.88.98 of via info@dewoonmakers.be
Op het gelijkvloers bevinden zich twee garages, ideaal voor wie extra stockage of hobbyruimte wenst. Daarnaast is er een gezellige veranda, perfect voor wie graag het hele jaar door van de tuin geniet. De handige bijkeuken zorgt voor extra functionaliteit en opbergruimte.
Op de eerste verdieping wacht een ruime en lichtrijke leefruimte met mooie lichtinval dankzij de grote raampartijen. Aansluitend bevindt zich de ruime keuken, ideaal voor wie houdt van koken en samen tafelen. Ook een apart toilet is voorzien op deze verdieping.
De tweede verdieping omvat drie volwaardige slaapkamers en een badkamer, waardoor dit een ideale indeling is voor gezinnen.
Met een perceel van 7a13 is er buiten meer dan genoeg ruimte om te ontspannen, te tuinieren of kinderen veilig te laten spelen.
Troeven van deze woning:
- Halfopen bebouwing op een mooi perceel van 7a13
- Meerdere garages op het gelijkvloers
- Gezellige veranda
- Bijkeuken voor extra bergruimte
- Lichtrijke leefruimte op de eerste verdieping
- 3 slaapkamers en badkamer op de tweede verdieping
Neem contact op met ons op het nummer 011/98.88.98 of via info@dewoonmakers.be
In Geebroek 13 te Tongeren ontdekken we deze ruime halfopen bebouwing, ideaal voor wie op zoek is naar een comfortabele gezinswoning met veel praktische troeven. Gelegen op een mooi perceel van 7a13, biedt deze woning een aangename tuin met voldoende speelruimte voor kinderen of huisdieren.
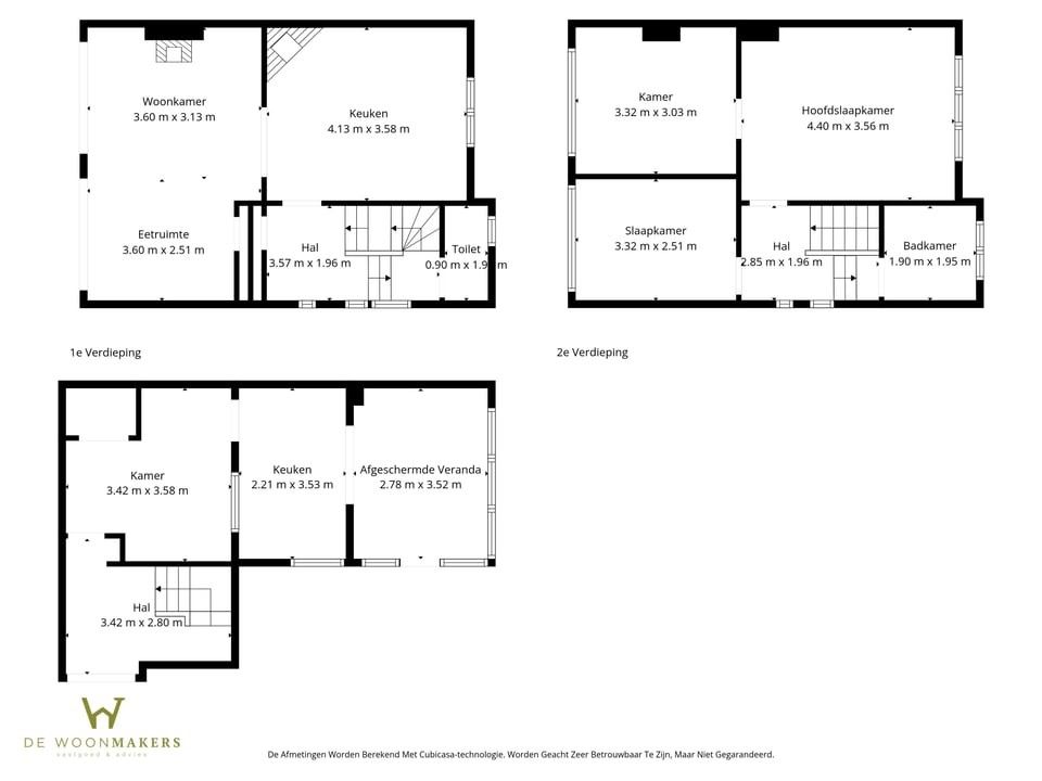
Op het gelijkvloers bevinden zich twee garages, ideaal voor wie extra stockage of hobbyruimte wenst. Daarnaast is er een gezellige veranda, perfect voor wie graag het hele jaar door van de tuin geniet. De handige bijkeuken zorgt voor extra functionaliteit en opbergruimte.
Op de eerste verdieping wacht een ruime en lichtrijke leefruimte met mooie lichtinval dankzij de grote raampartijen. Aansluitend bevindt zich de ruime keuken, ideaal voor wie houdt van koken en samen tafelen. Ook een apart toilet is voorzien op deze verdieping.
De tweede verdieping omvat drie volwaardige slaapkamers en een badkamer, waardoor dit een ideale indeling is voor gezinnen.
Met een perceel van 7a13 is er buiten meer dan genoeg ruimte om te ontspannen, te tuinieren of kinderen veilig te laten spelen.
Troeven van deze woning:
- Halfopen bebouwing op een mooi perceel van 7a13
- Meerdere garages op het gelijkvloers
- Gezellige veranda
- Bijkeuken voor extra bergruimte
- Lichtrijke leefruimte op de eerste verdieping
- Ruime keuken + apart toilet
- 3 slaapkamers en badkamer op de tweede verdieping
- Grote tuin met voldoende speelruimte
- Rustige ligging op korte afstand van het centrum van Tongeren
Hebben wij uw interesse kunnen wekken? Aarzel niet en neem dan contact op met ons op het nummer 011/98.88.98 of via info@dewoonmakers.be
De vermelde oppervlaktes zijn indicatief. De Woonmakers kan niet verantwoordelijk gesteld worden voor de juistheid van de door zijn verstrekte gegevens.
Op het gelijkvloers bevinden zich twee garages, ideaal voor wie extra stockage of hobbyruimte wenst. Daarnaast is er een gezellige veranda, perfect voor wie graag het hele jaar door van de tuin geniet. De handige bijkeuken zorgt voor extra functionaliteit en opbergruimte.
Op de eerste verdieping wacht een ruime en lichtrijke leefruimte met mooie lichtinval dankzij de grote raampartijen. Aansluitend bevindt zich de ruime keuken, ideaal voor wie houdt van koken en samen tafelen. Ook een apart toilet is voorzien op deze verdieping.
De tweede verdieping omvat drie volwaardige slaapkamers en een badkamer, waardoor dit een ideale indeling is voor gezinnen.
Met een perceel van 7a13 is er buiten meer dan genoeg ruimte om te ontspannen, te tuinieren of kinderen veilig te laten spelen.
Troeven van deze woning:
- Halfopen bebouwing op een mooi perceel van 7a13
- Meerdere garages op het gelijkvloers
- Gezellige veranda
- Bijkeuken voor extra bergruimte
- Lichtrijke leefruimte op de eerste verdieping
- Ruime keuken + apart toilet
- 3 slaapkamers en badkamer op de tweede verdieping
- Grote tuin met voldoende speelruimte
- Rustige ligging op korte afstand van het centrum van Tongeren
Hebben wij uw interesse kunnen wekken? Aarzel niet en neem dan contact op met ons op het nummer 011/98.88.98 of via info@dewoonmakers.be
De vermelde oppervlaktes zijn indicatief. De Woonmakers kan niet verantwoordelijk gesteld worden voor de juistheid van de door zijn verstrekte gegevens.
Energie
![]() |
- EPC Certificaat: 20241006-0003346471-RES-1
- Energieverbruik: 388 kWh/m²/jaar
- E-peil: E0
- Verwarming: Gas
- Beglazing: Standaard dubbel
Extra budget nodig voor je renovatie?
De overheid helpt je dit pand energetisch te renoveren! Hieronder zie je het premiebedrag dat je mogelijks van de overheid krijgt.
Het huidige EPC-label is:

Op de kaart

Financieel
| Prijs | |
|---|---|
| Kadastraal inkomen (niet geïndexeerd) | € 585 |
Berekening kosten
Je aankoopkosten? Die heb je snel berekend via de knop hieronder.
Bijkomende info
Gebouw
| Bouwjaar | 1966 |
|---|---|
| Bouwcertificaat | Nee |
| Bewoonbaar (m²) | 156 |
| Badkamers | 1 |
| Slaapkamers | 3 |
| Verdiepingen | 0 |
| Garages | 2 |
| Parkeerplaatsen | 0 |
| Toiletten | 0 |
Faciliteiten
| Beglazing | Standaard dubbel |
|---|---|
| Brandstof primaire verwarming | Gas |
| Septische tank | Nee |
Perceel
| Overstromingsgevoelig | Geen |
|---|---|
| P-score | D |
| G-score | B |
| Totale oppervlakte (m²) | 713 |
| Bebouwde oppervlakte (m²) | 0 |
| Tuin oppervlakte (m²) | 0 |
Vergunning
| Verkavelingsvergunning | Geen beschikbaar |
|---|
Uitrusting
| Investeringspand | Nee |
|---|---|
| Parking | Nee |
| Garage | Ja |
| Tuin | Ja |
| Lift | Nee |
| Rioolaansluiting | Nee |
| Gasaansluiting | Nee |
| Wateraansluiting | Nee |
| Elektriciteitsaansluiting | Nee |
| Internetaansluiting | Nee |
| Telefoonaansluiting | Nee |
| Zonnepanelen | Nee |
| Zonneboiler | Nee |
| Alarm | Nee |
| Videofoon | Nee |
| Grondwaterput | Nee |
Een pand van
De woonmakers
De Woonmakers Win-win in vastgoed
Bij De Woonmakers staat ervaring centraal. Sinds onze oprichting in 2020 hebben we ons voortdurend ontwikkeld als toonaangevend bedrijf in de vastgoedsector. Gedurende deze periode hebben we waardevolle inzichten verzameld en ons vakmanschap verfijnd om onze klanten een ongeëvenaarde dienstverlening te bieden.
Onze missie is om de perfecte match te creëren tussen individuen en vastgoed, en dit streven we na door onze diepgaande kennis van de markt te combineren met een innovatieve benadering van klantinteractie. Door te luisteren naar uw woonvoorkeuren en -behoeften, zijn we in staat om op maat gemaakte oplossingen te presenteren die naadloos aansluiten op uw levensstijl.
De drijvende krachten achter De Woonmakers, Jan en Krisja, delen een passie voor vastgoed en een toewijding om de klanten te voorzien van een ongeëvenaarde ervaring. Met jarenlange expertise in verschillende facetten van de vastgoedmarkt streven zij ernaar om een service te bieden die verder gaat dan alleen transacties. “Onze klanten kunnen rekenen op een persoonlijke aanpak die gericht is op het creëren van langdurige relaties en het leveren van op maat gemaakte oplossingen die voldoen aan hun specifieke behoeften.”
Geebroek 13
Leer meer over vastgoed
23 March 2026
Op Spotto zoeken als een pro: 10 slimme tips
21 March 2026
Hoeveel kan ik lenen om een huis te kopen?
01 March 2026
Wanneer heb ik een bouwvergunning of omgevingsvergunning nodig?
17 February 2026


