2 TE RENOVEREN WONINGEN+ 16 GARAGES OP EEN PERCEEL VAN 9A87
€ 175.000
Een pand van De woonmakers
Jouw zoektocht
Overzicht
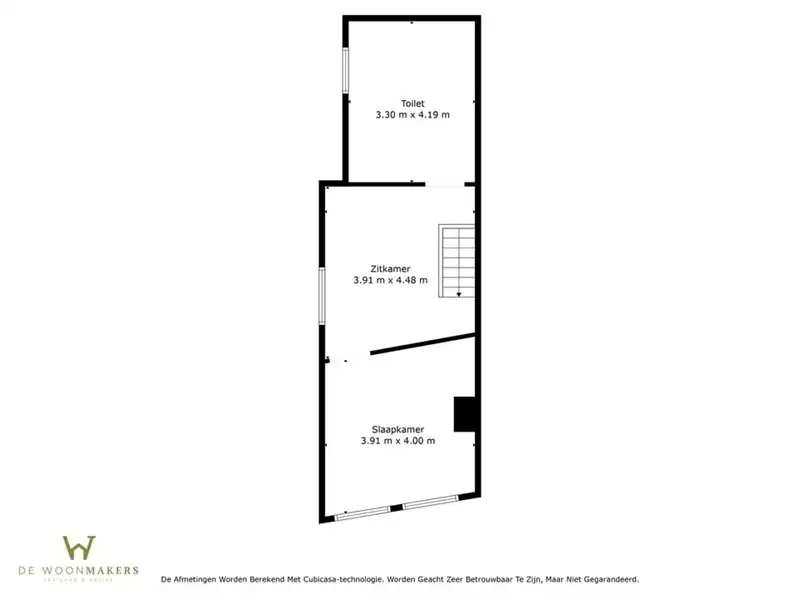
- 200 m² grond
- 4 Slaapkamer(s)
- 2 Badkamer(s)
Beschrijving
Bent u op zoek naar een renovatiepand mét onmiddelijke opbrengstmogelijkheden? Dan is dit eigendom aan de Neremweg 81 in Tongeren precies wat u zoekt.
Wat mag u verwachten?
Twee naast elkaar gelegen woningen (2a 05ca) met een oppervlakte van respectievelijk 132m² en 68m² – samen goed voor 200 m² bewoonbare ruimte.
Optie tot samenvoegen tot één ruime woning, perfect voor een groot gezin of kangoeroewonen.
Volledig te renoveren, wat u toelaat om dit pand helemaal naar uw eigen stijl en noden om te vormen.
Bonus: 16 afzonderlijke garages van bouwjaar 1975!
Bij het pand horen 16 goed gelegen garages (7a 73ca), optioneel mee aan te kopen. Deze vormen een uitgelezen kans voor wie op zoek is naar rendement door verhuur aan buurtbewoners of kleine zelfstandigen.
Waarom dit een slimme investering is:
✓ Rustige, doch vlot bereikbare ligging nabij het centrum van Tongeren.
✓ Ideaal voor renovatie én verhuur.
✓ Ruim perceel, diverse mogelijkheden, mooie huuropbrengst.
Hebben wij uw interesse kunnen wekken voor deze woning boordevol potentieel en onmiddellijk te verhuren garages? Maak dan snel een afspraak op het nummer 011/98.88.98 of via info@dewoonmakers.be
De vermelde oppervlaktes zijn indicatief. De Woonmakers kan niet verantwoordelijk gesteld worden voor de juistheid van de door zijn verstrekte gegevens.
Twee te renoveren woningen + 16 garages | Perceel van 9a87 | Unieke investeringsopportuniteit
Bent u op zoek naar een renovatiepand mét onmiddelijke opbrengstmogelijkheden? Dan is dit eigendom aan de Neremweg 81 in Tongeren precies wat u zoekt.
Wat mag u verwachten?
Twee naast elkaar gelegen woningen (2a 05ca) met een oppervlakte van respectievelijk 132m² en 68m² – samen goed voor 200 m² bewoonbare ruimte.
Optie tot samenvoegen tot één ruime woning, perfect voor een groot gezin of kangoeroewonen.
Volledig te renoveren, wat u toelaat om dit pand helemaal naar uw eigen stijl en noden om te vormen.
Bonus: 16 afzonderlijke garages van bouwjaar 1975!
Bij het pand horen 16 goed gelegen garages (7a 73ca), optioneel mee aan te kopen. Deze vormen een uitgelezen kans voor wie op zoek is naar rendement door verhuur aan buurtbewoners of kleine zelfstandigen.
Waarom dit een slimme investering is:
✓ Rustige, doch vlot bereikbare ligging nabij het centrum van Tongeren.
✓ Ideaal voor renovatie én verhuur.
✓ Ruim perceel, diverse mogelijkheden, mooie huuropbrengst.
Hebben wij uw interesse kunnen wekken voor deze woning boordevol potentieel en onmiddellijk te verhuren garages? Maak dan snel een afspraak op het nummer 011/98.88.98 of via info@dewoonmakers.be
De vermelde oppervlaktes zijn indicatief. De Woonmakers kan niet verantwoordelijk gesteld worden voor de juistheid van de door zijn verstrekte gegevens.
Energie
![]() |
- EPC Certificaat: 20240503-0003236061-RES-1
- Energieverbruik: 433 kWh/m²/jaar
- E-peil: E0
- Verwarming: Gas
- Beglazing: Enkel
Extra budget nodig voor je renovatie?

Op de kaart

Financieel
| Prijs | |
|---|---|
| Kadastraal inkomen (niet geïndexeerd) | € 1.868 |
Berekening kosten
Je aankoopkosten? Die heb je snel berekend via de knop hieronder.
Bijkomende info
Gebouw
| Bouwjaar | 1874 |
|---|---|
| Staat | Te renoveren |
| Verdieping | 0 |
| Badkamers | 2 |
| Slaapkamers | 4 |
| Verdiepingen | 0 |
| Garages | 0 |
| Parkeerplaatsen | 0 |
| Toiletten | 0 |
Faciliteiten
| Keuken uitrusting | Standaard |
|---|---|
| Beglazing | Enkel |
| Brandstof primaire verwarming | Gas |
| Septische tank | Nee |
Perceel
| Overstromingsgevoelig | Geen |
|---|---|
| P-score | B |
| G-score | A |
| Totale oppervlakte (m²) | 200 |
| Bebouwde oppervlakte (m²) | 0 |
Vergunning
| Verkavelingsvergunning | Geen beschikbaar |
|---|
Uitrusting
| Investeringspand | Nee |
|---|---|
| Parking | Nee |
| Garage | Nee |
| Lift | Nee |
| Rioolaansluiting | Nee |
| Gasaansluiting | Nee |
| Wateraansluiting | Nee |
| Elektriciteitsaansluiting | Nee |
| Internetaansluiting | Nee |
| Telefoonaansluiting | Nee |
| Zonnepanelen | Nee |
| Zonneboiler | Nee |
| Alarm | Nee |
| Videofoon | Nee |
| Grondwaterput | Nee |



