In optie
AUTHENTIEKE OPEN BEBOUWING MET VEEL POTENTIEEL OP EEN PERCEEL VAN 9A61CA IN TONGEREN
€ 375.000
Een pand van De woonmakers
Favoriet
Jouw zoektocht
Jouw scoretabel voor dit pand
Aan het laden...
Jouw geplande bezichtigingen
Aan het laden...
Overzicht
- 188 m² bewoonbaar
- 961 m² grond
- 5 Slaapkamer(s)
- 1 Badkamer(s)
- 1 Garage(s)
Beschrijving
Op de Zavelbergweg 92 in Tongeren vinden we deze charmante open bebouwing terug, gelegen op een mooi perceel van 9a61ca. De woning ademt authenticiteit en karakter, maar biedt tegelijk enorm veel potentieel voor wie graag modern comfort toevoegt of de woning verder naar eigen wensen afwerkt.
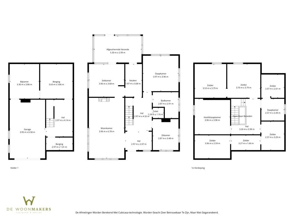
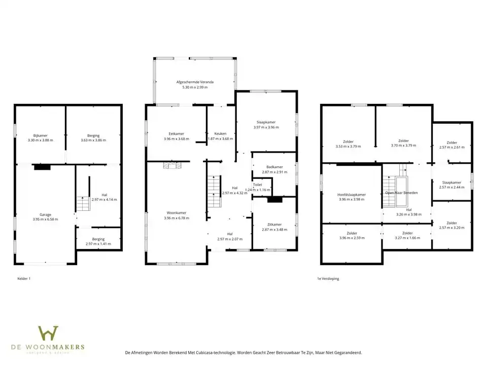
Met een bewoonbare oppervlakte van 188 m² geniet je hier van een ruime en logische indeling. Een grote troef is dat zowel 2 slaapkamers als de badkamer op het gelijkvloers zijn ondergebracht. Hierdoor is de woning perfect geschikt voor wie gelijkvloers wil of moet wonen, en dus ideaal voor minder mobiele personen.
De leefruimtes op het gelijkvloers dragen de typische charme van de woning: warme elementen, mooie lichtinval en veel mogelijkheden om moderne en authentieke stijlen te combineren.
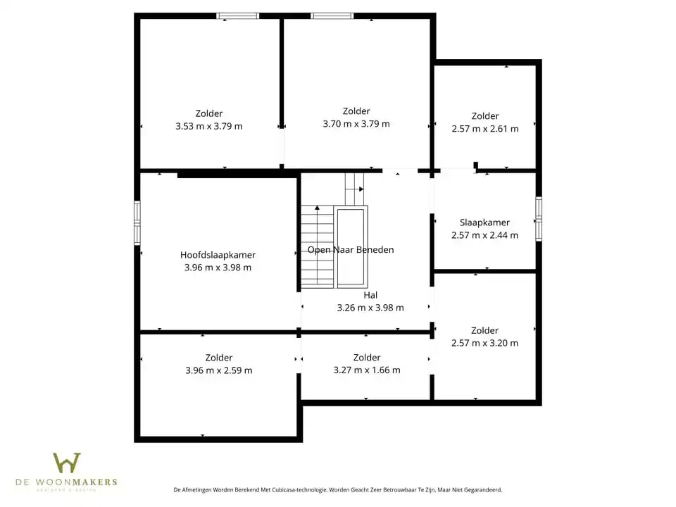
Op de eerste verdieping bevinden zich nog twee afgewerkte slaapkamers. Daarnaast zijn er nog drie extra ruimtes aanwezig die verder afgewerkt moeten worden. Deze kan je volledig naar eigen smaak invullen—denk aan extra slaapkamers, dressing, hobbyruimte, bureau of speelhoek.
Verder beschikt de woning over een ruime inpandige garage, wat parkeren en stockage extra comfortabel maakt. Onder het huis bevindt zich bovendien een grote kelder, ideaal voor opslag, wijnkelder, werkruimte of proviand.
Het perceel van 9a61ca biedt voldoende tuinruimte voor wie houdt van groen, rust en privacy.
Neem contact op met ons op het nummer 011/98.88.98 of via info@dewoonmakers.be
Met een bewoonbare oppervlakte van 188 m² geniet je hier van een ruime en logische indeling. Een grote troef is dat zowel 2 slaapkamers als de badkamer op het gelijkvloers zijn ondergebracht. Hierdoor is de woning perfect geschikt voor wie gelijkvloers wil of moet wonen, en dus ideaal voor minder mobiele personen.
De leefruimtes op het gelijkvloers dragen de typische charme van de woning: warme elementen, mooie lichtinval en veel mogelijkheden om moderne en authentieke stijlen te combineren.
Op de eerste verdieping bevinden zich nog twee afgewerkte slaapkamers. Daarnaast zijn er nog drie extra ruimtes aanwezig die verder afgewerkt moeten worden. Deze kan je volledig naar eigen smaak invullen—denk aan extra slaapkamers, dressing, hobbyruimte, bureau of speelhoek.
Verder beschikt de woning over een ruime inpandige garage, wat parkeren en stockage extra comfortabel maakt. Onder het huis bevindt zich bovendien een grote kelder, ideaal voor opslag, wijnkelder, werkruimte of proviand.
Het perceel van 9a61ca biedt voldoende tuinruimte voor wie houdt van groen, rust en privacy.
Neem contact op met ons op het nummer 011/98.88.98 of via info@dewoonmakers.be
Op de Zavelbergweg 92 in Tongeren vinden we deze charmante open bebouwing terug, gelegen op een mooi perceel van 9a61ca. De woning ademt authenticiteit en karakter, maar biedt tegelijk enorm veel potentieel voor wie graag modern comfort toevoegt of de woning verder naar eigen wensen afwerkt.
Met een bewoonbare oppervlakte van 188 m² geniet je hier van een ruime en logische indeling. Een grote troef is dat zowel 2 slaapkamers als de badkamer op het gelijkvloers zijn ondergebracht. Hierdoor is de woning perfect geschikt voor wie gelijkvloers wil of moet wonen, en dus ideaal voor minder mobiele personen.
De leefruimtes op het gelijkvloers dragen de typische charme van de woning: warme elementen, mooie lichtinval en veel mogelijkheden om moderne en authentieke stijlen te combineren. Dankzij de veranda kan je hier jaar in jaar uit zalig vertoeven en dit met een leuk zicht op de tuin.
Op de eerste verdieping bevinden zich nog twee afgewerkte slaapkamers. Daarnaast zijn er nog drie extra ruimtes aanwezig die verder afgewerkt moeten worden. Deze kan je volledig naar eigen smaak invullen—denk aan extra slaapkamers, dressing, hobbyruimte, bureau of speelhoek.
Verder beschikt de woning over een ruime inpandige garage, wat parkeren en stockage extra comfortabel maakt. Onder het huis bevindt zich bovendien een grote kelder, ideaal voor opslag, wijnkelder, werkruimte of proviand.
Het perceel van 9a61ca biedt voldoende tuinruimte voor wie houdt van groen, rust en privacy. Eveneens treffen we hier een praktische tuinberging.
Troeven van deze woning:
Authentieke open bebouwing met veel potentieel
Perceel van 9a61ca
Bewoonbare opp. 188 m²
2 slaapkamers + badkamer op het gelijkvloers
2 bijkomende afgewerkte slaapkamers op de verdieping
3 extra zolderruimtes die nog afgewerkt kunnen worden
Ruime inpandige garage
Grote kelder voor extra opslag
Ideaal voor gezinnen, renovatiezoekers of gelijkvloers wonen
Het dak en de muren werden reeds voorzien van voldoende isolatie
Bent u opzoek naar een charmante open bebouwing? Aarzel niet en neem dan contact op met ons op het nummer 011/98.88.98 of via info@dewoonmakers.be
De vermelde oppervlaktes zijn indicatief. De Woonmakers kan niet verantwoordelijk gesteld worden voor de juistheid van de door zijn verstrekte gegevens.
Met een bewoonbare oppervlakte van 188 m² geniet je hier van een ruime en logische indeling. Een grote troef is dat zowel 2 slaapkamers als de badkamer op het gelijkvloers zijn ondergebracht. Hierdoor is de woning perfect geschikt voor wie gelijkvloers wil of moet wonen, en dus ideaal voor minder mobiele personen.
De leefruimtes op het gelijkvloers dragen de typische charme van de woning: warme elementen, mooie lichtinval en veel mogelijkheden om moderne en authentieke stijlen te combineren. Dankzij de veranda kan je hier jaar in jaar uit zalig vertoeven en dit met een leuk zicht op de tuin.
Op de eerste verdieping bevinden zich nog twee afgewerkte slaapkamers. Daarnaast zijn er nog drie extra ruimtes aanwezig die verder afgewerkt moeten worden. Deze kan je volledig naar eigen smaak invullen—denk aan extra slaapkamers, dressing, hobbyruimte, bureau of speelhoek.
Verder beschikt de woning over een ruime inpandige garage, wat parkeren en stockage extra comfortabel maakt. Onder het huis bevindt zich bovendien een grote kelder, ideaal voor opslag, wijnkelder, werkruimte of proviand.
Het perceel van 9a61ca biedt voldoende tuinruimte voor wie houdt van groen, rust en privacy. Eveneens treffen we hier een praktische tuinberging.
Troeven van deze woning:
Authentieke open bebouwing met veel potentieel
Perceel van 9a61ca
Bewoonbare opp. 188 m²
2 slaapkamers + badkamer op het gelijkvloers
2 bijkomende afgewerkte slaapkamers op de verdieping
3 extra zolderruimtes die nog afgewerkt kunnen worden
Ruime inpandige garage
Grote kelder voor extra opslag
Ideaal voor gezinnen, renovatiezoekers of gelijkvloers wonen
Het dak en de muren werden reeds voorzien van voldoende isolatie
Bent u opzoek naar een charmante open bebouwing? Aarzel niet en neem dan contact op met ons op het nummer 011/98.88.98 of via info@dewoonmakers.be
De vermelde oppervlaktes zijn indicatief. De Woonmakers kan niet verantwoordelijk gesteld worden voor de juistheid van de door zijn verstrekte gegevens.
Energie
![]() |
- EPC Certificaat: 20251119-0003736717-RES-1
- Energieverbruik: 346 kWh/m²/jaar
- E-peil: E0
- Beglazing: Standaard dubbel
Extra budget nodig voor je renovatie?
De overheid helpt je dit pand energetisch te renoveren! Hieronder zie je het premiebedrag dat je mogelijks van de overheid krijgt.
Het huidige EPC-label is:

Op de kaart

Financieel
| Prijs | |
|---|---|
| Kadastraal inkomen (niet geïndexeerd) | € 1.249 |
Berekening kosten
Je aankoopkosten? Die heb je snel berekend via de knop hieronder.
Bijkomende info
Gebouw
| Bouwjaar | 1964 |
|---|---|
| Bouwcertificaat | Nee |
| Bewoonbaar (m²) | 188 |
| Badkamers | 1 |
| Slaapkamers | 5 |
| Verdiepingen | 0 |
| Garages | 1 |
| Parkeerplaatsen | 0 |
| Toiletten | 0 |
Faciliteiten
| Beglazing | Standaard dubbel |
|---|---|
| Septische tank | Nee |
Perceel
| Overstromingsgevoelig | Geen |
|---|---|
| P-score | A |
| G-score | A |
| Totale oppervlakte (m²) | 961 |
| Bebouwde oppervlakte (m²) | 0 |
Vergunning
| Verkavelingsvergunning | Vergunning beschikbaar |
|---|
Uitrusting
| Investeringspand | Nee |
|---|---|
| Parking | Nee |
| Garage | Ja |
| Lift | Nee |
| Rioolaansluiting | Nee |
| Gasaansluiting | Nee |
| Wateraansluiting | Nee |
| Elektriciteitsaansluiting | Nee |
| Internetaansluiting | Nee |
| Telefoonaansluiting | Nee |
| Zonnepanelen | Nee |
| Zonneboiler | Nee |
| Alarm | Nee |
| Videofoon | Nee |
| Grondwaterput | Nee |
Een pand van
De woonmakers
De Woonmakers Win-win in vastgoed
Bij De Woonmakers staat ervaring centraal. Sinds onze oprichting in 2020 hebben we ons voortdurend ontwikkeld als toonaangevend bedrijf in de vastgoedsector. Gedurende deze periode hebben we waardevolle inzichten verzameld en ons vakmanschap verfijnd om onze klanten een ongeëvenaarde dienstverlening te bieden.
Onze missie is om de perfecte match te creëren tussen individuen en vastgoed, en dit streven we na door onze diepgaande kennis van de markt te combineren met een innovatieve benadering van klantinteractie. Door te luisteren naar uw woonvoorkeuren en -behoeften, zijn we in staat om op maat gemaakte oplossingen te presenteren die naadloos aansluiten op uw levensstijl.
De drijvende krachten achter De Woonmakers, Jan en Krisja, delen een passie voor vastgoed en een toewijding om de klanten te voorzien van een ongeëvenaarde ervaring. Met jarenlange expertise in verschillende facetten van de vastgoedmarkt streven zij ernaar om een service te bieden die verder gaat dan alleen transacties. “Onze klanten kunnen rekenen op een persoonlijke aanpak die gericht is op het creëren van langdurige relaties en het leveren van op maat gemaakte oplossingen die voldoen aan hun specifieke behoeften.”
Zavelbergweg 92
Leer meer over vastgoed
23 March 2026
Op Spotto zoeken als een pro: 10 slimme tips
21 March 2026
Hoeveel kan ik lenen om een huis te kopen?
01 March 2026
Wanneer heb ik een bouwvergunning of omgevingsvergunning nodig?
17 February 2026


