VERKAVELING 19 BOUWGRONDEN VREREN
€ 85.000
Een pand van Goed Gevonden
Favoriet
Jouw zoektocht
Jouw scoretabel voor dit pand
Aan het laden...
Jouw geplande bezichtigingen
Aan het laden...
Beschrijving
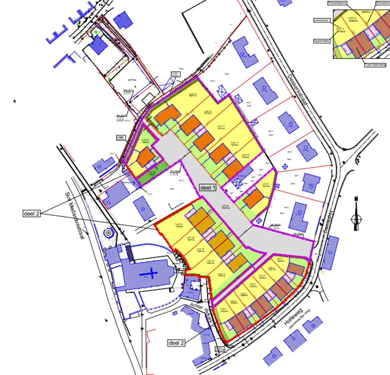
VERKAVELING bestaande uit 19 mooie bouwgronden, zeer rustig gelegen in een nieuw gecreëerde wijk zonder doorgaand verkeer. Hoog en droog gelegen achter de Sint-Medarduskerk, het pittoreske centrum van Vreren, een bouwrijpe verkaveling met volledig nieuw aangelegde wegen met verlichting en voorzien van alle nutsleidingen. Enkel bouwpercelen voor open en half open bebouwingen in aanbieding, geen gesloten bebouwingen, telkens voorzien van een voortuin en een mooie achtertuin waar terras aan living mogelijk is. U kan kiezen voor een inpandige garage of voor een carport langs uw woning. De bouwgronden hebben als hoofdbestemming residentiële ééngezinswoningen, als nevenbestemming worden enkel kleinschalige vrije beroepen of diensten toegelaten. Kleine constructies in de tuin worden ook toegelaten (tuinberging, hondenhok, hobbyserre, ...). Geschikt voor moderne bouwstijl in baksteen en met plat dak, ideaal om energiezuinig te bouwen met zonnepanelen en integratie van alle laatse nieuwe technieken. Groendaken zijn ook toegestaan. De 7 bouwgronden die grenzen aan de Holleweg aanvaarden een meer traditionele bouwstijl met hellend dak. Kortom een waaier aan mogelijkheden en keuzes die u kan maken om van uw droom(woning) werkelijkheid te maken. Voor meer info contacteer ons kantoor 012 744 844 of mail naar info@goed-gevonden.be
Energie
Op de kaart

Downloads
- plan.pdf (pdf)
Financieel
| Prijs |
|---|
Bijkomende info
Perceel
| Overstromingsgevoelig | Geen |
|---|---|
| P-score | A |
| Voorkeurrecht | Nee |
| Oriëntatie tuin | Noordoost |
Vergunning
| Vergunning | Geen beschikbaar |
|---|---|
| Verkavelingsvergunning | Vergunning beschikbaar |
Een pand van
Goed Gevonden
Goed Gevonden
Goed gevonden - da's vast goed
Een succesteam met de goede aanpak.
Wij verkopen je huis in no time dankzij een optimale promotie en actieve prospectie naar potentiële kopers.
Een tikkeltje creatieve publiciteit mag natuurlijk ook niet ontbreken.
5518498
Leer meer over vastgoed
23 March 2026
Op Spotto zoeken als een pro: 10 slimme tips
21 March 2026
Hoeveel kan ik lenen om een huis te kopen?
01 March 2026
Wanneer heb ik een bouwvergunning of omgevingsvergunning nodig?
17 February 2026