Duplexappartement met 2 slaapkamers en ruim terras
€ 259.000
Een pand van Immovadis
Overzicht
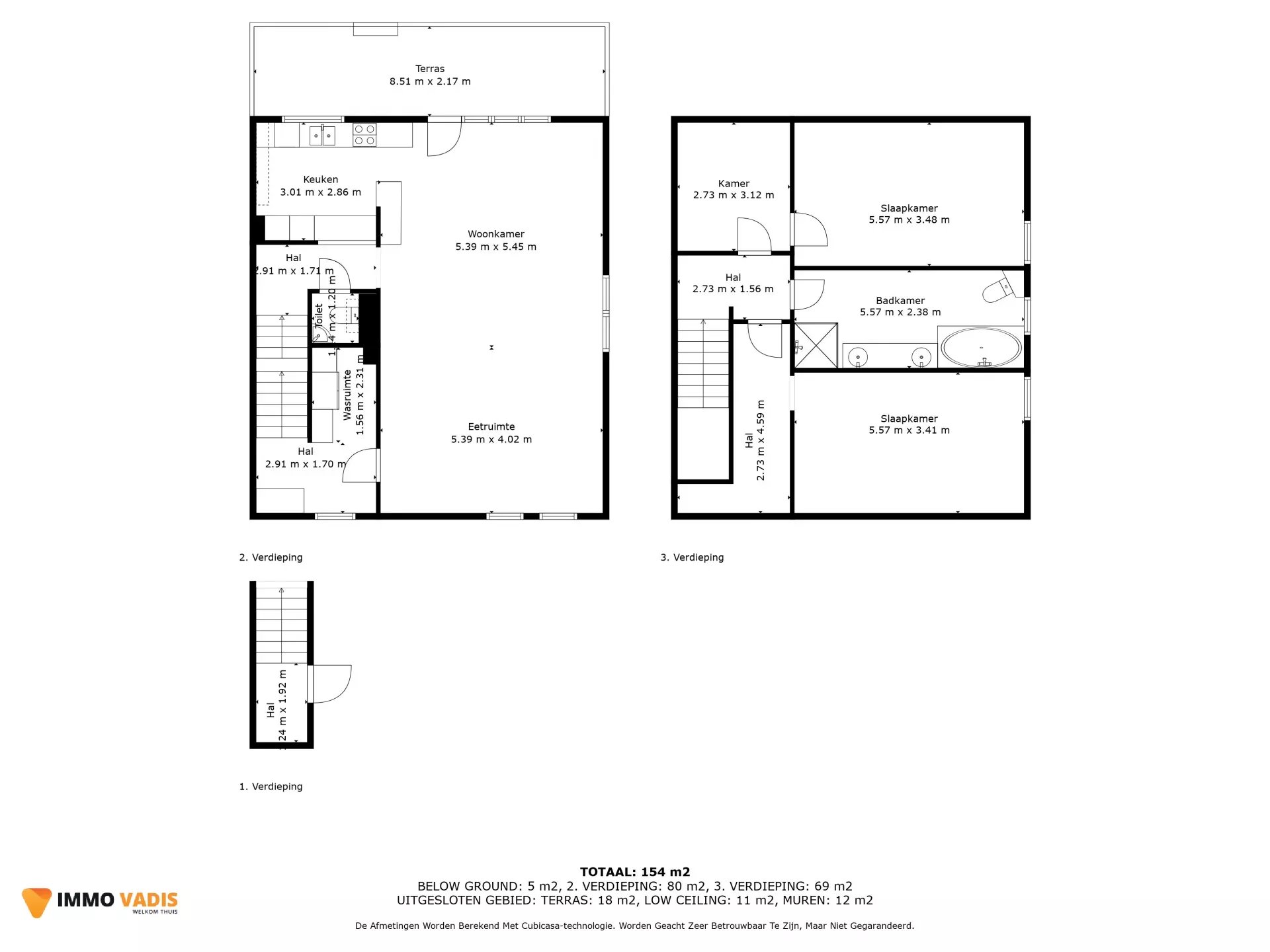
- 156 m² bewoonbaar
- 156 m² grond
- 2 Slaapkamer(s)
- 1 Badkamer(s)
- 1 Living(s)
Beschrijving
Dit verzorgd duplexappartement combineert ruimte en een uitstekende ligging en beschikt over twee volwaardige slaapkamers, grote ramen die zorgen voor een aangename lichtinval, en een zuidwest gericht terras waar je volop van de zon geniet.
Dankzij de goede indeling en het prima onderhoud is het appartement ideaal voor wie meteen zorgeloos wil intrekken.
Het appartement is bovendien gelegen op wandelafstand van station, het stadscentrum, diverse winkels, scholen en voorzieningen. Bovendien bereik je de E313 binnen enkele minuten (2 km), wat zorgt voor een vlotte verbinding naar omliggende steden.
Interesse? Bel 0469/430998 of mail ine@immovadis.be.
Dankzij de goede indeling en het prima onderhoud is het appartement ideaal voor wie meteen zorgeloos wil intrekken.
Het appartement is bovendien gelegen op wandelafstand van station, het stadscentrum, diverse winkels, scholen en voorzieningen. Bovendien bereik je de E313 binnen enkele minuten (2 km), wat zorgt voor een vlotte verbinding naar omliggende steden.
Interesse? Bel 0469/430998 of mail ine@immovadis.be.
Energie
![]() |
- EPC Certificaat: 6284
- Energieverbruik: 166 kWh/m²/jaar
- Verwarming: Gas
- Beglazing: Standaard dubbel
Op de kaart

Financieel
| Prijs |
|---|
Berekening kosten
Je aankoopkosten? Die heb je snel berekent via de knop hieronder.
Bijkomende info
Gebouw
| Bouwjaar | 2006 |
|---|---|
| Staat | Goed onderhouden |
| Is beschermd | Nee |
| Bouwcertificaat | Nee |
| Bewoonbaar (m²) | 156 |
| Verdieping | 1 |
| Gevels | 3 |
| Badkamers | 1 |
| Slaapkamers | 2 |
| Verdiepingen | 2 |
| Keukens | 1 |
| Leefruimtes | 1 |
| Parkeerplaatsen | 2 |
| Opslagruimtes | 1 |
Ruimtes
| Slaapkamer | 41 m² |
|---|---|
| Leefruimte | 52 m² |
| Kamer 1 | 16 m² |
| Terras | 15 m² |
| Kamer 2 | 13 m² |
| Opbergruimte | 9 m² |
| Keuken | 10 m² |
Faciliteiten
| Materiaal ramenomlijstingen | PVC |
|---|---|
| Beglazing | Standaard dubbel |
| Luiken | Nee |
| Primaire verwarmingsbron | Warmtenet |
| Brandstof primaire verwarming | Gas |
| Elektrisch keuringsattest | Nee |
| Septische tank | Nee |
| Beerput | Nee |
Perceel
| Overstromingsgevoelig | Geen |
|---|---|
| Voorkeurrecht | Nee |
| Totale oppervlakte (m²) | 156 |
| Bebouwde oppervlakte (m²) | 156 |
| Oppervlakte terras (m²) | 15 |
| Oriëntatie voorgevel | Zuidwest |
Vergunning
| Vergunning | Vergunning beschikbaar |
|---|
Uitrusting
| Investeringspand | Nee |
|---|---|
| Geschikt als kangoeroewoning | Nee |
| Geschikt voor rolstoelgebruikers | Nee |
| Parking | Ja |
| Garage | Nee |
| Thuiskantoor | Nee |
| Kelder | Nee |
| Zolder | Nee |
| Opslagruimte | Ja |
| Tuin | Nee |
| Terras | Ja |
| Lift | Nee |
| Rioolaansluiting | Nee |
| Gasaansluiting | Ja |
| Wateraansluiting | Nee |
| Elektriciteitsaansluiting | Nee |
| TV aansluiting | Nee |
| Internetaansluiting | Nee |
| Zonnepanelen | Nee |
| Zonneboiler | Nee |
| Thuisbatterij | Nee |
| Alarm | Nee |
| Zwembad | Nee |
| Sauna | Nee |
| Jacuzzi | Nee |
| Videofoon | Nee |
| Domotica | Nee |
| Grondwaterput | Nee |
| Ventilatie | Nee |
Een pand van
Immovadis
Welkom Thuis
Geen alledaagse standaard makelaar!
ImmoVadis staat voor anders durven zijn, maar wel binnen de professionele kaders.
Wij pakken uw vastgoed professioneel, duidelijk (helder) en tijdgericht aan, waarbij u als klant ten allen tijde centraal staat en zich WELKOM THUIS voelt!
ImmoVadis gelooft in 'anders durven denken', samen met een realistische, no-nonsense aanpak. Daarnaast is vertrouwen, passie en een goede relatie met de klant van zeer groot belang.
Wij streven ernaar om onze klanten altijd tevreden te houden. ImmoVadis is dan ook een klantgericht kantoor met een hoogwaardig dienstverleningsniveau.
Team
Immovadis bestaat uit een team van medewerkers en partners, onder leiding van een vat vol ervaring op niveau van makelaardij, Guy Clerinx in samenwerking met een bouwkundig aannemer, Wim Lambrechts (ProMaCon BV).
Door deze samenwerking kunnen we op het vlak van bouwkundigheid een meerwaarde toevoegen aan het gebruikelijk takenpakket van een standaard makelaar.
Als klant krijgt u deze deskundige meerwaarde automatisch mee inbegrepen in onze dienstverlening.
86341222
Leer meer over vastgoed
Nieuw
24 November 2025
Uitgezocht voor jouw gemeente: Hoeveel stijgt de waarde van je woning door een renovatie?
22 October 2025
Hoeveel kan ik lenen om een huis te kopen?
11 June 2025
Huis kopen met bouwovertreding? Dit moet je weten
11 May 2025
