Exclusief penthouse van 315 m² in hartje Tongeren,
€ 985.000
Een pand van Immovadis
Overzicht
- 300 m² bewoonbaar
- 300 m² grond
- 3 Slaapkamer(s)
- 2 Badkamer(s)
- 1 Living(s)
- 1 Garage(s)
Beschrijving
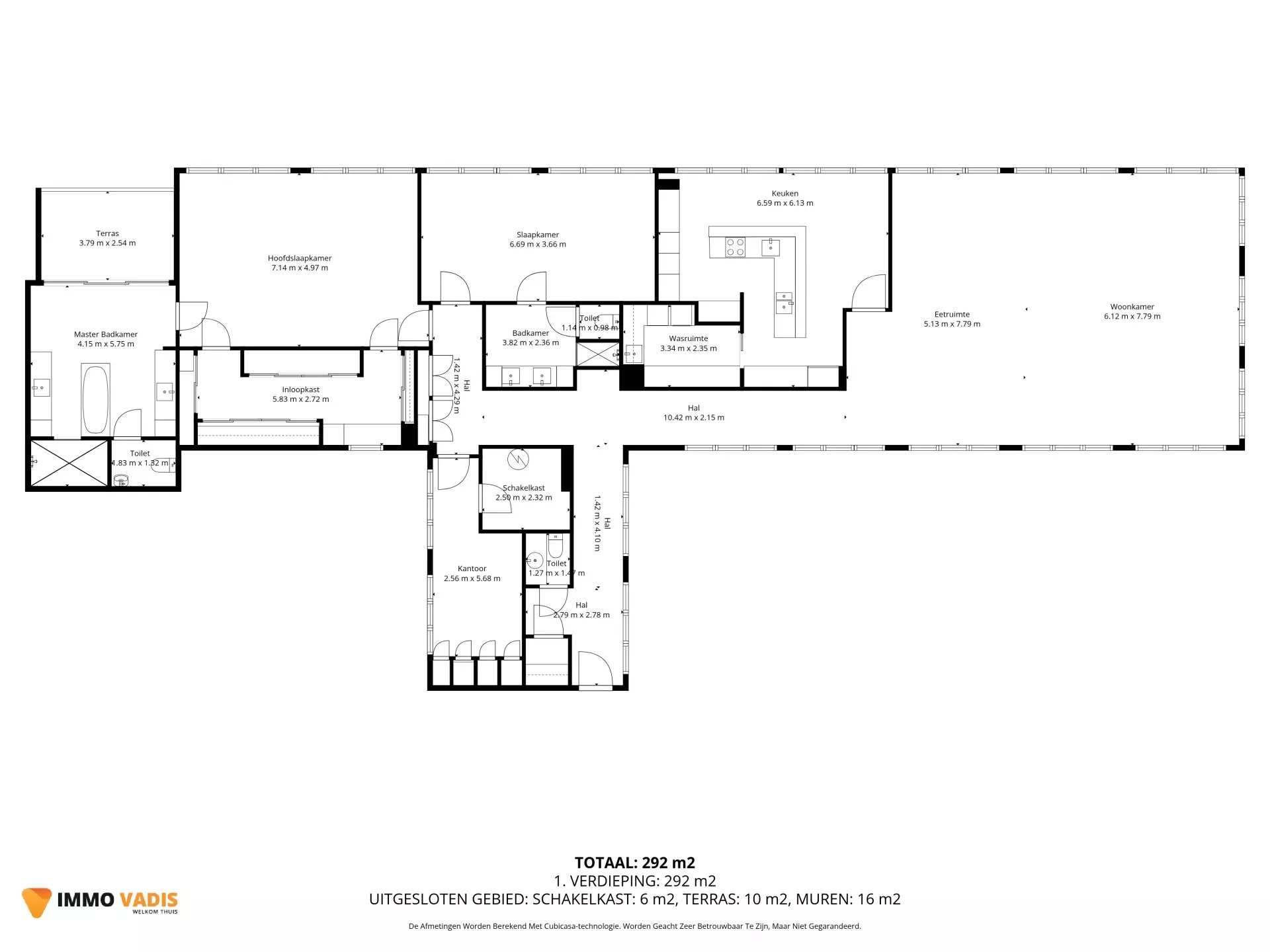
In het historisch centrum van Tongeren, op slechts 200 meter van de Grote Markt, bieden wij dit uitzonderlijk penthouse in een rustige residentie te koop aan.
Met een woonoppervlakte van 315 m² en een ruim buitenterras combineert dit penthouse stijlvol wonen met optimaal comfort. De afwerking is van hoogstaande topkwaliteit met volle eiken parketvloeren, natuurstenen tegels en een volledig uitgeruste keuken met designapparaten die voor een luxueuze uitstraling zorgen.
De leefruimtes zijn lichtrijk en open, perfect onderhouden waardoor dit pand instapklaar is. Dankzij de brede gangen, drempelloze overgangen en slimme indeling is de volledige woning rolstoelvriendelijk.
Daarnaast beschikt dit aanbod over een dubbele garagebox en een grote private kelderberging in de ondergrondse parking van het gebouw.
Alle voorzieningen bevinden zich op wandelafstand: winkels, restaurants, scholen, openbaar vervoer en historische bezienswaardigheden van Tongeren.
Beschrijving van het pand:
- Inkomhal met een verstevigde 3-puntsluiting op de voordeur
- Doorloop naar vestiaire en toilet met wasbakje en spiegel
- Vestibule (19 m²) naar leefruimte
- Stijlvolle eetkamer met ruim salon (80 m²) met volle eiken parketvloer
- Luxueuze, hyperuitgeruste keuken ( 35 m²) met marmeren vloer, voorzien van natuurstenen werkbladen, 3 spoelbakken, inductiekookplaat, Atag inbouwtoestellen en ingebouwde wijnkoelkast en 2 ovens met warmhoudlades.
- Aansluitende werkkeuken met voorzieningen voor wasmachine en droogkast
- Corridor met inbouwkasten naar de slaapvertrekken
- Bureau/slaapkamer (13 m²) met inbouwkasten
- Technische ruimte
- Slaapkamer (25 m²) met ensuite badkamer (10 m²) met wastafel, spiegel, toilet en ruime inloopdouche
- Royale master suite van 34 m², ingericht met een geïntegreerd televisiesysteem, subtiel verzonken in een maatwerkkast, en aansluitend een luxueuze inloopdressing van 15 m², volledig op maat ontworpen en voorzien van veel bergruimte
- Exclusieve wellnessbadkamer. Centraal prijkt een stijlvol vrijstaand bad met geïntegreerde overloopfunctie. Uniek aan dit ontwerp is dat het bad eenvoudig kan worden omgevormd tot een massagetafel,ideaal voor wie een spa-ervaring aan huis wenst. De royale dubbele inloopdouche met glazen wanden en twee afzonderlijke badkamermeubels met ingebouwde lavabo’s maken het helemaal af.
- Aansluitend aan de mastersuite en badkamer is er een buitenterras van 12 m², zuidgericht en betegeld
Interesse? Bel 0469/430998 of mail ine@immovadis.be
Met een woonoppervlakte van 315 m² en een ruim buitenterras combineert dit penthouse stijlvol wonen met optimaal comfort. De afwerking is van hoogstaande topkwaliteit met volle eiken parketvloeren, natuurstenen tegels en een volledig uitgeruste keuken met designapparaten die voor een luxueuze uitstraling zorgen.
De leefruimtes zijn lichtrijk en open, perfect onderhouden waardoor dit pand instapklaar is. Dankzij de brede gangen, drempelloze overgangen en slimme indeling is de volledige woning rolstoelvriendelijk.
Daarnaast beschikt dit aanbod over een dubbele garagebox en een grote private kelderberging in de ondergrondse parking van het gebouw.
Alle voorzieningen bevinden zich op wandelafstand: winkels, restaurants, scholen, openbaar vervoer en historische bezienswaardigheden van Tongeren.
Beschrijving van het pand:
- Inkomhal met een verstevigde 3-puntsluiting op de voordeur
- Doorloop naar vestiaire en toilet met wasbakje en spiegel
- Vestibule (19 m²) naar leefruimte
- Stijlvolle eetkamer met ruim salon (80 m²) met volle eiken parketvloer
- Luxueuze, hyperuitgeruste keuken ( 35 m²) met marmeren vloer, voorzien van natuurstenen werkbladen, 3 spoelbakken, inductiekookplaat, Atag inbouwtoestellen en ingebouwde wijnkoelkast en 2 ovens met warmhoudlades.
- Aansluitende werkkeuken met voorzieningen voor wasmachine en droogkast
- Corridor met inbouwkasten naar de slaapvertrekken
- Bureau/slaapkamer (13 m²) met inbouwkasten
- Technische ruimte
- Slaapkamer (25 m²) met ensuite badkamer (10 m²) met wastafel, spiegel, toilet en ruime inloopdouche
- Royale master suite van 34 m², ingericht met een geïntegreerd televisiesysteem, subtiel verzonken in een maatwerkkast, en aansluitend een luxueuze inloopdressing van 15 m², volledig op maat ontworpen en voorzien van veel bergruimte
- Exclusieve wellnessbadkamer. Centraal prijkt een stijlvol vrijstaand bad met geïntegreerde overloopfunctie. Uniek aan dit ontwerp is dat het bad eenvoudig kan worden omgevormd tot een massagetafel,ideaal voor wie een spa-ervaring aan huis wenst. De royale dubbele inloopdouche met glazen wanden en twee afzonderlijke badkamermeubels met ingebouwde lavabo’s maken het helemaal af.
- Aansluitend aan de mastersuite en badkamer is er een buitenterras van 12 m², zuidgericht en betegeld
Interesse? Bel 0469/430998 of mail ine@immovadis.be
Energie
![]() |
- EPC Certificaat: 9143
- Energieverbruik: 147 kWh/m²/jaar
- Verwarming: Gas
- Beglazing: Hoog efficient driedubbel
Op de kaart

Financieel
| Prijs | |
|---|---|
| Kadastraal inkomen (niet geïndexeerd) | € 2.290 |
Berekening kosten
Je aankoopkosten? Die heb je snel berekent via de knop hieronder.
Bijkomende info
Gebouw
| Bouwjaar | 2008 |
|---|---|
| Staat | Zo goed als nieuw |
| Is beschermd | Nee |
| Bouwcertificaat | Nee |
| Bewoonbaar (m²) | 300 |
| Verdieping | 0 |
| Badkamers | 2 |
| Slaapkamers | 3 |
| Verdiepingen | 1 |
| Garages | 1 |
| Keukens | 2 |
| Leefruimtes | 1 |
| Opslagruimtes | 1 |
Ruimtes
| Slaapkamer | 40 m² |
|---|---|
| Leefruimte | 80 m² |
| Kamer 1 | 30 m² |
| Kamer 2 | 15 m² |
| Terras | 12 m² |
| Kamer 3 | 40 m² |
| Opbergruimte | 30 m² |
| Slaapkamer | 34 m² |
| Keuken | 35 m² |
Faciliteiten
| Keuken | EXTRA_INFO.OUTFITTING.VALUE.SEPARATEKITCHEN |
|---|---|
| Materiaal ramenomlijstingen | Aluminium |
| Beglazing | Hoog efficient driedubbel |
| Luiken | Nee |
| Primair verwarmingstype | Decentrale verwarming |
| Primaire verwarmingsbron | EXTRA_INFO.OUTFITTING.VALUE.HEATPUMPGROUNDWATER |
| Brandstof primaire verwarming | Gas |
| Primaire verwarming | Vloerverwarming |
| Warm water type | Decentrale verwarming |
| Elektrisch keuringsattest | Ja |
| Septische tank | Nee |
| Beerput | Nee |
Perceel
| Overstromingsgevoelig | Geen |
|---|---|
| Voorkeurrecht | Nee |
| Totale oppervlakte (m²) | 300 |
| Bebouwde oppervlakte (m²) | 300 |
| Oppervlakte terras (m²) | 12 |
| Oriëntatie voorgevel | Zuid |
Uitrusting
| Investeringspand | Nee |
|---|---|
| Geschikt als kangoeroewoning | Nee |
| Geschikt voor rolstoelgebruikers | Nee |
| Parking | Nee |
| Garage | Ja |
| Thuiskantoor | Nee |
| Kelder | Nee |
| Zolder | Nee |
| Opslagruimte | Ja |
| Tuin | Nee |
| Terras | Ja |
| Lift | Ja |
| Rioolaansluiting | Nee |
| Gasaansluiting | Ja |
| Wateraansluiting | Ja |
| Elektriciteitsaansluiting | Nee |
| TV aansluiting | Nee |
| Internetaansluiting | Nee |
| Zonnepanelen | Nee |
| Zonneboiler | Nee |
| Thuisbatterij | Nee |
| Alarm | Nee |
| Zwembad | Nee |
| Sauna | Nee |
| Jacuzzi | Nee |
| Videofoon | Nee |
| Domotica | Nee |
| Grondwaterput | Nee |
| Ventilatie | Ja |
Een pand van
Immovadis
Welkom Thuis
Geen alledaagse standaard makelaar!
ImmoVadis staat voor anders durven zijn, maar wel binnen de professionele kaders.
Wij pakken uw vastgoed professioneel, duidelijk (helder) en tijdgericht aan, waarbij u als klant ten allen tijde centraal staat en zich WELKOM THUIS voelt!
ImmoVadis gelooft in 'anders durven denken', samen met een realistische, no-nonsense aanpak. Daarnaast is vertrouwen, passie en een goede relatie met de klant van zeer groot belang.
Wij streven ernaar om onze klanten altijd tevreden te houden. ImmoVadis is dan ook een klantgericht kantoor met een hoogwaardig dienstverleningsniveau.
Team
Immovadis bestaat uit een team van medewerkers en partners, onder leiding van een vat vol ervaring op niveau van makelaardij, Guy Clerinx in samenwerking met een bouwkundig aannemer, Wim Lambrechts (ProMaCon BV).
Door deze samenwerking kunnen we op het vlak van bouwkundigheid een meerwaarde toevoegen aan het gebruikelijk takenpakket van een standaard makelaar.
Als klant krijgt u deze deskundige meerwaarde automatisch mee inbegrepen in onze dienstverlening.
86392981
Leer meer over vastgoed
24 November 2025
Uitgezocht voor jouw gemeente: Hoeveel stijgt de waarde van je woning door een renovatie?
22 October 2025
Hoeveel kan ik lenen om een huis te kopen?
11 June 2025
Huis kopen met bouwovertreding? Dit moet je weten
11 May 2025
