Duplex - appartement 11 - tweede verdiep
€ 337.000
Een pand van De woonmakers
Jouw zoektocht
Overzicht
- 115 m² grond
- 2 Slaapkamer(s)
- 1 Badkamer(s)
- 1 Toilet(ten)
Beschrijving
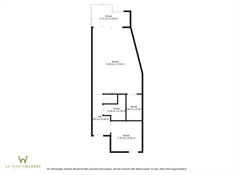
Indeling appartement 11 - gelegen op het tweede verdiep:
Verdiep 2: Inkom, ruime leefruimte met open keuken, slaapkamer 1. Ruim terras van 10,53 m² grenzend aan de leefruimte.
Verdiep 3: slaapkamer 2 en badkamer.
Daarnaast biedt dit project de mogelijkheid tot aankoop van een bovengrondse of ondergrondse parkeerplaatsen en aparte bergingen.
Bovendien kan u onder bepaalde voorwaarden genieten van het verlaagd BTW-tarief van 6%, zowel als bewoner van uw enige en eigen woning, als investeerder bij langdurige verhuur (minstens 15 jaar) aan een particulier.
In het hart van Kortessem, aan de Tongersesteenweg 9, verrijst Castelheim: een kleinschalig en stijlvol nieuwbouwproject met 11 energiezuinige appartementen.
De architectuur ademt een elegante, traditionele charme in een hedendaags jasje, perfect passend bij de rustige sfeer van de streek.
Dankzij de uitstekende ligging bevinden winkels, scholen en het uitgestrekte Haspengouwse landschap zich op een steenworp.
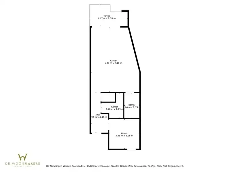
Indeling appartement 11 - gelegen op het tweede verdiep:
Verdiep 2: Inkom, ruime leefruimte met open keuken, slaapkamer 1. Ruim terras van 10,53 m² grenzend aan de leefruimte.
Verdiep 3: slaapkamer 2 en badkamer.
Daarnaast biedt dit project de mogelijkheid tot aankoop van een bovengrondse of ondergrondse parkeerplaatsen en aparte bergingen.
Bovendien kan u onder bepaalde voorwaarden genieten van het verlaagd BTW-tarief van 6%, zowel als bewoner van uw enige en eigen woning, als investeerder bij langdurige verhuur (minstens 15 jaar) aan een particulier.
Castelheim brengt wonen, natuur en levenskwaliteit harmonieus samen.
Neem contact op met ons kantoor voor een vrijblijvende afspraak op het nummer 011/98.88.98 of mail naar rens@dewoonmakers.be
De vermelde oppervlaktes zijn indicatief. De Woonmakers kan niet verantwoordelijk gesteld worden voor de juistheid van de door zijn verstrekte gegevens.
Energie
- EPC Certificaat: EPB Bouw af te leveren
- E-peil: E0
- Beglazing: Standaard dubbel
Op de kaart

Financieel
| Prijs |
|---|
Bijkomende info
Gebouw
| Bouwjaar | 2025 |
|---|---|
| Verdieping | 2 |
| Badkamers | 1 |
| Slaapkamers | 2 |
| Verdiepingen | 2 |
| Garages | 0 |
| Parkeerplaatsen | 0 |
| Toiletten | 1 |
Faciliteiten
| Keuken uitrusting | Goed uitgerust |
|---|---|
| Beglazing | Standaard dubbel |
| Septische tank | Nee |
Perceel
| Overstromingsgevoelig | Geen |
|---|---|
| P-score | C |
| G-score | A |
| Totale oppervlakte (m²) | 115 |
| Bebouwde oppervlakte (m²) | 0 |
| Oppervlakte terras (m²) | 13 |
Vergunning
| Verkavelingsvergunning | Geen beschikbaar |
|---|
Uitrusting
| Investeringspand | Nee |
|---|---|
| Parking | Nee |
| Garage | Nee |
| Terras | Ja |
| Lift | Nee |
| Rioolaansluiting | Nee |
| Gasaansluiting | Nee |
| Wateraansluiting | Nee |
| Elektriciteitsaansluiting | Nee |
| Internetaansluiting | Nee |
| Telefoonaansluiting | Nee |
| Zonnepanelen | Nee |
| Zonneboiler | Nee |
| Alarm | Nee |
| Videofoon | Nee |
| Grondwaterput | Nee |
Appartementsblok
| Aantal verdiepingen | 2 |
|---|---|
| Lift | Nee |
| Intercom | Nee |