In optie
RUIME EN RUSTIG GELEGEN BUNGALOW MET 4 SLKS EN ZWEMBAD OP EEN PRACHTIG PERCEEL VAN 764M²
€ 425.000
Een pand van De woonmakers
Favoriet
Jouw zoektocht
Jouw scoretabel voor dit pand
Aan het laden...
Jouw geplande bezichtigingen
Aan het laden...
Overzicht
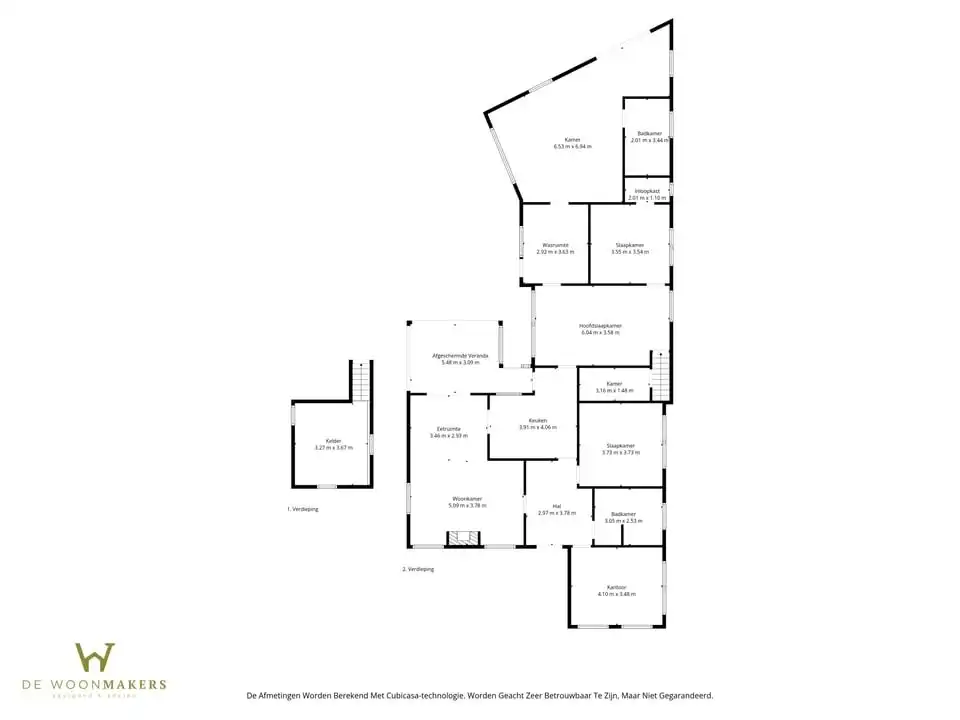
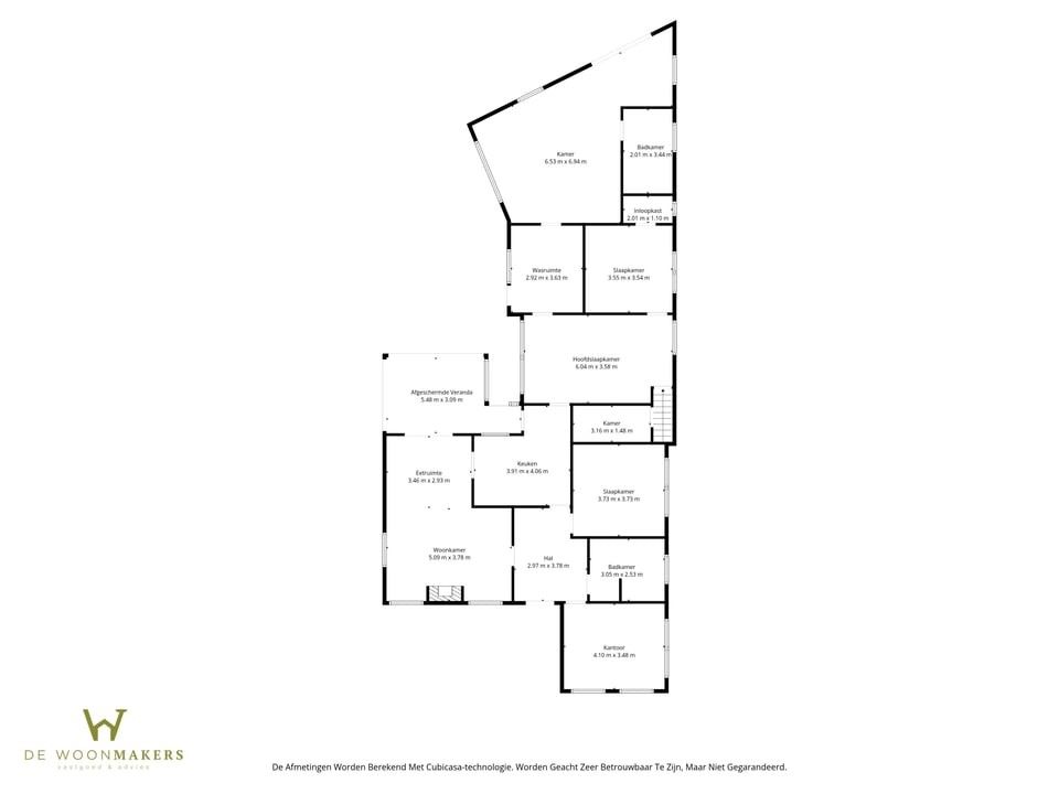
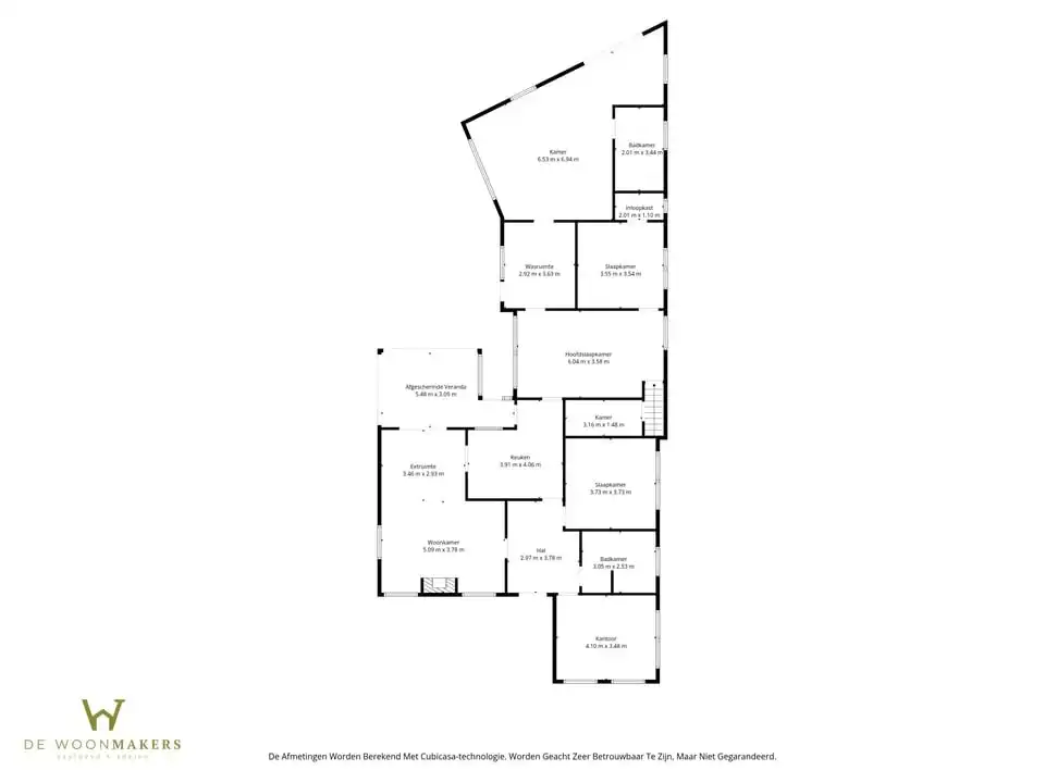
- 228 m² bewoonbaar
- 764 m² grond
- 4 Slaapkamer(s)
- 2 Badkamer(s)
Beschrijving
Op zoek naar een woning met ruimte, privacy en een heerlijk vakantiegevoel? Deze charmante bungalow uit 1971 biedt maar liefst 228m² bewoonbare oppervlakte en ligt op een schitterend perceel van 764m². Een ideale match voor wie op zoek is naar een unieke woonervaring op één niveau.
Binnenin geniet je van royale leefruimtes, veel lichtinval en een praktische indeling die perfect aansluit bij modern comfort en gezellig wonen. Dankzij de grote oppervlakte zijn er tal van mogelijkheden om deze bungalow volledig naar jouw stijl te moderniseren of uit te breiden.
Maar de échte troef ontdek je buiten: een privézwembad, perfect voor ontspanning, plezier en onvergetelijke momenten met familie en vrienden. Rondom vind je rust, privacy en ruimte om het hele jaar door te genieten.
Troeven op een rijtje:
• 228m² bewoonbare oppervlakte
• Bungalow – comfortabel wonen op één niveau
• Groot perceel van 764m²
• Privézwembad
• Bouwjaar 1971 – stevig, karaktervol en met veel potentieel
Dit is een woning die je zelden tegenkomt: ruim, uniek en met een geweldige buitenbeleving.
Neem snel contact op voor een afspraak op het nummer 011/98.88.98 of via info@dewoonmakers.be
De vermelde oppervlaktes zijn indicatief. De Woonmakers kan niet verantwoordelijk gesteld worden voor de juistheid van de door zijn verstrekte gegevens.
Binnenin geniet je van royale leefruimtes, veel lichtinval en een praktische indeling die perfect aansluit bij modern comfort en gezellig wonen. Dankzij de grote oppervlakte zijn er tal van mogelijkheden om deze bungalow volledig naar jouw stijl te moderniseren of uit te breiden.
Maar de échte troef ontdek je buiten: een privézwembad, perfect voor ontspanning, plezier en onvergetelijke momenten met familie en vrienden. Rondom vind je rust, privacy en ruimte om het hele jaar door te genieten.
Troeven op een rijtje:
• 228m² bewoonbare oppervlakte
• Bungalow – comfortabel wonen op één niveau
• Groot perceel van 764m²
• Privézwembad
• Bouwjaar 1971 – stevig, karaktervol en met veel potentieel
Dit is een woning die je zelden tegenkomt: ruim, uniek en met een geweldige buitenbeleving.
Neem snel contact op voor een afspraak op het nummer 011/98.88.98 of via info@dewoonmakers.be
De vermelde oppervlaktes zijn indicatief. De Woonmakers kan niet verantwoordelijk gesteld worden voor de juistheid van de door zijn verstrekte gegevens.
Op zoek naar een woning met ruimte, privacy en een heerlijk vakantiegevoel? Deze charmante bungalow uit 1971 biedt maar liefst 228m² bewoonbare oppervlakte en ligt op een schitterend perceel van 764m². Een ideale match voor wie op zoek is naar een unieke woonervaring op één niveau.
Binnenin geniet je van royale leefruimtes, veel lichtinval en een praktische indeling die perfect aansluit bij modern comfort en gezellig wonen. Dankzij de grote oppervlakte zijn er tal van mogelijkheden om deze bungalow volledig naar jouw stijl te moderniseren of uit te breiden.
Maar de échte troef ontdek je buiten: een privézwembad, perfect voor ontspanning, plezier en onvergetelijke momenten met familie en vrienden. Rondom vind je rust, privacy en ruimte om het hele jaar door te genieten.
Troeven op een rijtje:
• 228m² bewoonbare oppervlakte
• Bungalow – comfortabel wonen op één niveau
• Groot perceel van 764m²
• Privézwembad
• Bouwjaar 1971 – stevig, karaktervol en met veel potentieel
Dit is een woning die je zelden tegenkomt: ruim, uniek en met een geweldige buitenbeleving.
Heeft deze ruime bungalow met zwembad uw interesse gewekt? Neem snel contact op voor een afspraak op het nummer 011/98.88.98 of via info@dewoonmakers.be
De vermelde oppervlaktes zijn indicatief. De Woonmakers kan niet verantwoordelijk gesteld worden voor de juistheid van de door zijn verstrekte gegevens.
Binnenin geniet je van royale leefruimtes, veel lichtinval en een praktische indeling die perfect aansluit bij modern comfort en gezellig wonen. Dankzij de grote oppervlakte zijn er tal van mogelijkheden om deze bungalow volledig naar jouw stijl te moderniseren of uit te breiden.
Maar de échte troef ontdek je buiten: een privézwembad, perfect voor ontspanning, plezier en onvergetelijke momenten met familie en vrienden. Rondom vind je rust, privacy en ruimte om het hele jaar door te genieten.
Troeven op een rijtje:
• 228m² bewoonbare oppervlakte
• Bungalow – comfortabel wonen op één niveau
• Groot perceel van 764m²
• Privézwembad
• Bouwjaar 1971 – stevig, karaktervol en met veel potentieel
Dit is een woning die je zelden tegenkomt: ruim, uniek en met een geweldige buitenbeleving.
Heeft deze ruime bungalow met zwembad uw interesse gewekt? Neem snel contact op voor een afspraak op het nummer 011/98.88.98 of via info@dewoonmakers.be
De vermelde oppervlaktes zijn indicatief. De Woonmakers kan niet verantwoordelijk gesteld worden voor de juistheid van de door zijn verstrekte gegevens.
Energie
![]() |
- EPC Certificaat: 20251119-0003736704-RES-1
- Energieverbruik: 454 kWh/m²/jaar
- E-peil: E0
- Beglazing: Standaard dubbel
Let op, de renovatieverplichting in Vlaanderen verplicht de koper om deze woning na aankoop te renoveren tot een betere energieprestatie. Lees er alles over in dit artikel
Extra budget nodig voor je renovatie?
De overheid helpt je dit pand energetisch te renoveren! Hieronder zie je het premiebedrag dat je mogelijks van de overheid krijgt.
Het huidige EPC-label is:

Op de kaart

Financieel
| Prijs | |
|---|---|
| Kadastraal inkomen (niet geïndexeerd) | € 882 |
Berekening kosten
Je aankoopkosten? Die heb je snel berekend via de knop hieronder.
Bijkomende info
Gebouw
| Bouwjaar | 1971 |
|---|---|
| Bouwcertificaat | Nee |
| Bewoonbaar (m²) | 228 |
| Badkamers | 2 |
| Slaapkamers | 4 |
| Verdiepingen | 0 |
| Garages | 0 |
| Parkeerplaatsen | 0 |
| Toiletten | 0 |
Faciliteiten
| Beglazing | Standaard dubbel |
|---|---|
| Septische tank | Nee |
Perceel
| Overstromingsgevoelig | Geen |
|---|---|
| P-score | B |
| G-score | A |
| Totale oppervlakte (m²) | 764 |
| Bebouwde oppervlakte (m²) | 0 |
Vergunning
| Verkavelingsvergunning | Geen beschikbaar |
|---|
Uitrusting
| Investeringspand | Nee |
|---|---|
| Parking | Nee |
| Garage | Nee |
| Lift | Nee |
| Rioolaansluiting | Nee |
| Gasaansluiting | Nee |
| Wateraansluiting | Nee |
| Elektriciteitsaansluiting | Nee |
| Internetaansluiting | Nee |
| Telefoonaansluiting | Nee |
| Zonnepanelen | Nee |
| Zonneboiler | Nee |
| Alarm | Nee |
| Videofoon | Nee |
| Grondwaterput | Nee |
Een pand van
De woonmakers
De Woonmakers Win-win in vastgoed
Bij De Woonmakers staat ervaring centraal. Sinds onze oprichting in 2020 hebben we ons voortdurend ontwikkeld als toonaangevend bedrijf in de vastgoedsector. Gedurende deze periode hebben we waardevolle inzichten verzameld en ons vakmanschap verfijnd om onze klanten een ongeëvenaarde dienstverlening te bieden.
Onze missie is om de perfecte match te creëren tussen individuen en vastgoed, en dit streven we na door onze diepgaande kennis van de markt te combineren met een innovatieve benadering van klantinteractie. Door te luisteren naar uw woonvoorkeuren en -behoeften, zijn we in staat om op maat gemaakte oplossingen te presenteren die naadloos aansluiten op uw levensstijl.
De drijvende krachten achter De Woonmakers, Jan en Krisja, delen een passie voor vastgoed en een toewijding om de klanten te voorzien van een ongeëvenaarde ervaring. Met jarenlange expertise in verschillende facetten van de vastgoedmarkt streven zij ernaar om een service te bieden die verder gaat dan alleen transacties. “Onze klanten kunnen rekenen op een persoonlijke aanpak die gericht is op het creëren van langdurige relaties en het leveren van op maat gemaakte oplossingen die voldoen aan hun specifieke behoeften.”
Wolfstraat 3
Leer meer over vastgoed
23 March 2026
Op Spotto zoeken als een pro: 10 slimme tips
21 March 2026
Hoeveel kan ik lenen om een huis te kopen?
01 March 2026
Wanneer heb ik een bouwvergunning of omgevingsvergunning nodig?
17 February 2026



