Cohousing te Rijkel! Woning met 2 slaapkamers met privéterras en tuin!
Een pand van OPTIMUS VASTGOED
Overzicht
- 108 m² bewoonbaar
- 2 Slaapkamer(s)
- 1 Badkamer(s)
- 1 Tuin
Beschrijving
Hof van Rijkel: cohousingproject met 15 woningen!
Het cohousingproject Hof Van Rijkel komt aan de Dionysius van Leeuwenstraat te liggen, aan de rechterzijde van de Sint-Jozefkerk, op de site van de oude pastorie, de parochiezaal en de naastgelegen vierkantshoeve. Geen plaatsvervangende nieuwbouw, wel een herbestemmingsplan dat de authenticiteit van de bestaande gebouwen koppelt aan de woonbehoeften van vandaag.
Hof van Rijkel is gericht op cohousing, maar je hoeft zeker niet in te boeten aan privacy. De 15 wooneenheden delen onder andere een binnenkoer, bergruimte, twee grote tuinzones, parkeerplaatsen en een gemeenschappelijk commonhouse en toch beschikt elke woning ook over veel privacy met een eigen, afgeschermde tuin of terras.
Hof van Rijkel is een ecologisch voorbeeldproject. Duurzame investeringen zoals een warmtepomp, vloerverwarming en balansventilatie garanderen de koper een laag energieverbruik. De bestaande muren en daken van de drie gebouwen blijven zoveel mogelijk intact en worden aan de binnenzijde geïsoleerd. Ook blijven de architecturale kenmerken die de gebouwen zo uniek maken behouden.
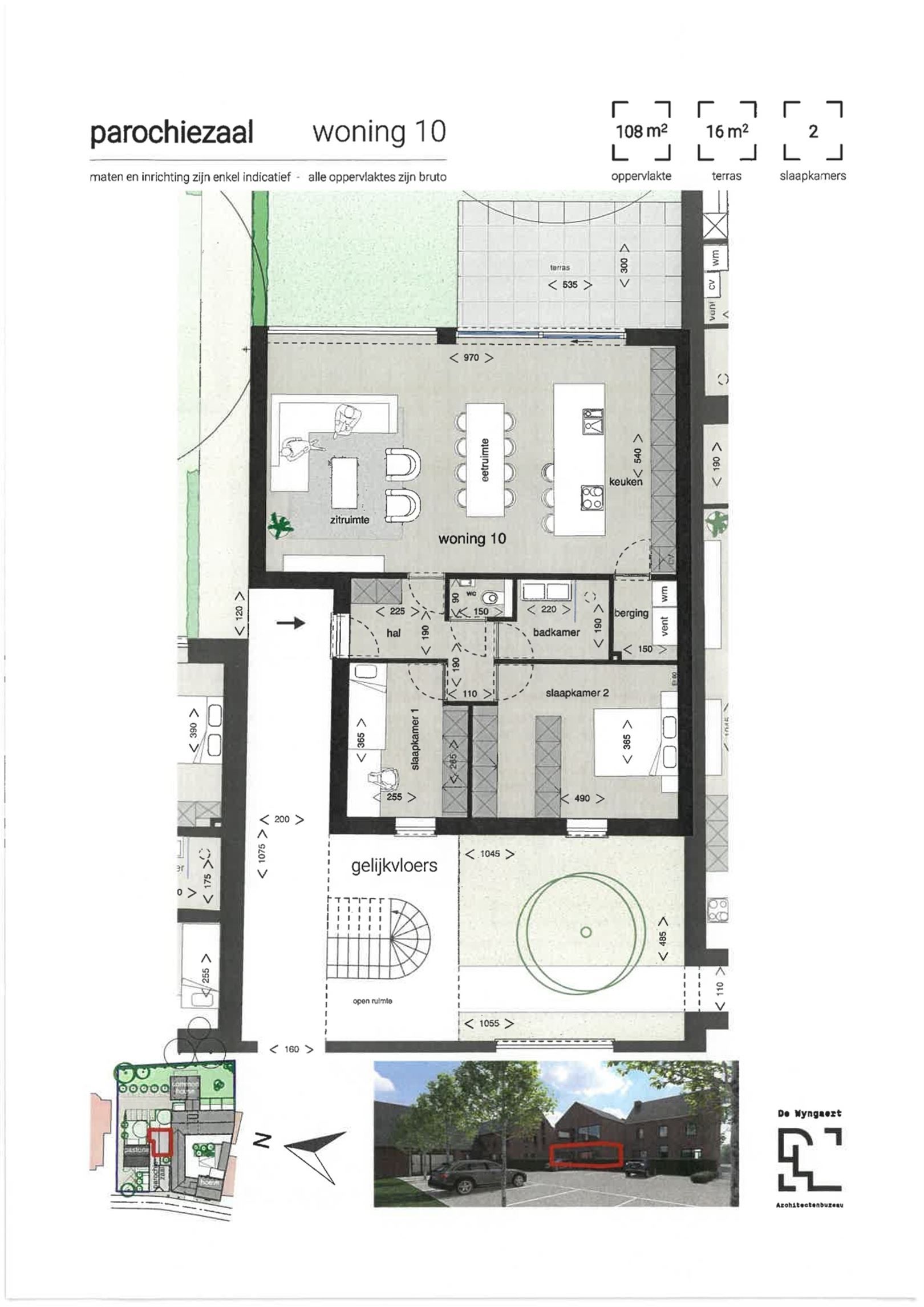
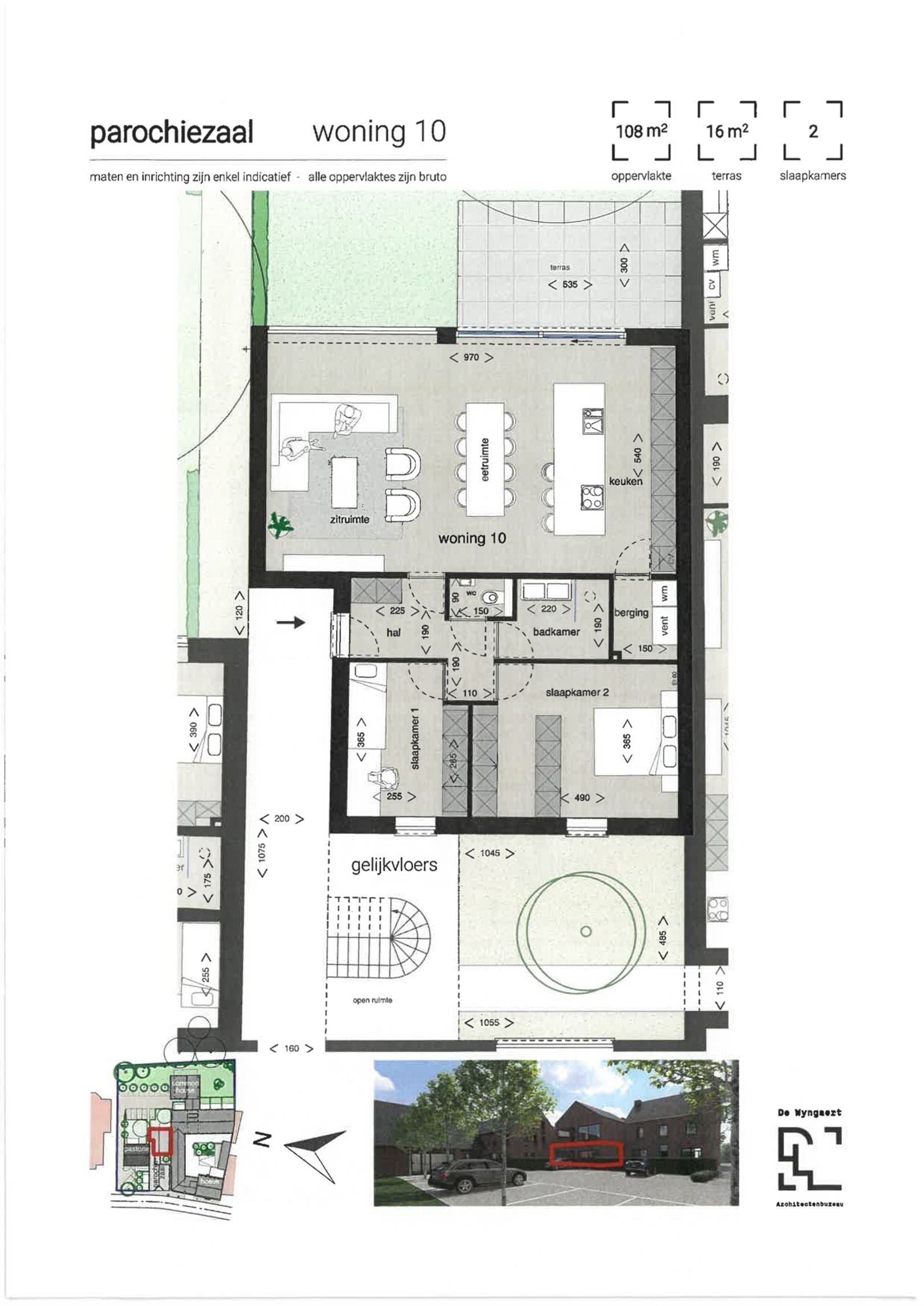
Woning 10 bevindt zich op de gelijkvloerse verdieping van de parochiezaal en bestaat uit:
Inkomhal, apart toilet, woonkamer met open keuken, berging, badkamer, 2 slaapkamers, terras met tuin.
Ligging:
Hoewel het Hof van Rijkel zich landelijk situeert, sta je in een mum van tijd in het centrum van Borgloon of steden zoals Sint-Truiden (13 minuten), Tongeren (20 minuten) en Hasselt (25 minuten). Hof van Rijkel biedt je zo een veelzijdig vertrekpunt en een rustige plek om te wonen.
EPB plichtig
Stedenbouwkundige info: woongebied met landelijk karakter – bouwvergunning – geen voorkooprecht – geen dagvaarding - geen verkavelingsvoorschriften
Prijzen exclusief btw en registratie.
* Voor deze woning is 21% van toepassing - momenteel mogelijk aan 6% btw indien u aan de voorwaarden voldoet!
Energie
- E-peil: E0
- Beglazing: Onbekend
Op de kaart

Downloads
Financieel
| Prijs | |
|---|---|
| Kadastraal inkomen (niet geïndexeerd) | € 0 |
| Kadastraal inkomen (geïndexeerd) | € 0 |
Berekening kosten
Je aankoopkosten? Die heb je snel berekent via de knop hieronder.
Bijkomende info
Gebouw
| Bouwcertificaat | Nee |
|---|---|
| Bewoonbaar (m²) | 108 |
| Verdieping | 1 |
| Badkamers | 1 |
| Slaapkamers | 2 |
| Verdiepingen | 0 |
| Garages | 0 |
| Parkeerplaatsen | 0 |
| Doucheruimtes | 0 |
| Toiletten | 0 |
Faciliteiten
| Elektrisch keuringsattest | Nee |
|---|
Perceel
| Overstromingsgevoelig | Bepaald overstromingsgebied |
|---|---|
| Voorkeurrecht | Nee |
| Bebouwde oppervlakte (m²) | 0 |
| Tuin oppervlakte (m²) | 0 |
| Oppervlakte terras (m²) | 16 |
Vergunning
| Vergunning | Vergunning beschikbaar |
|---|---|
| Verkavelingsvergunning | Geen beschikbaar |
Uitrusting
| Investeringspand | Nee |
|---|---|
| Geschikt voor praktijk | Nee |
| Parking | Nee |
| Garage | Nee |
| Thuiskantoor | Nee |
| Kelder | Nee |
| Zolder | Nee |
| Tuin | Ja |
| Terras | Ja |
| Lift | Nee |
| Rioolaansluiting | Nee |
| Gasaansluiting | Nee |
| Wateraansluiting | Nee |
| Elektriciteitsaansluiting | Nee |
| TV aansluiting | Nee |
| Internetaansluiting | Nee |
| Telefoonaansluiting | Nee |