Volledig gerenoveerd (handels)huis met woonst op toplocatie!
Een pand van Century 21 Immo K
Overzicht
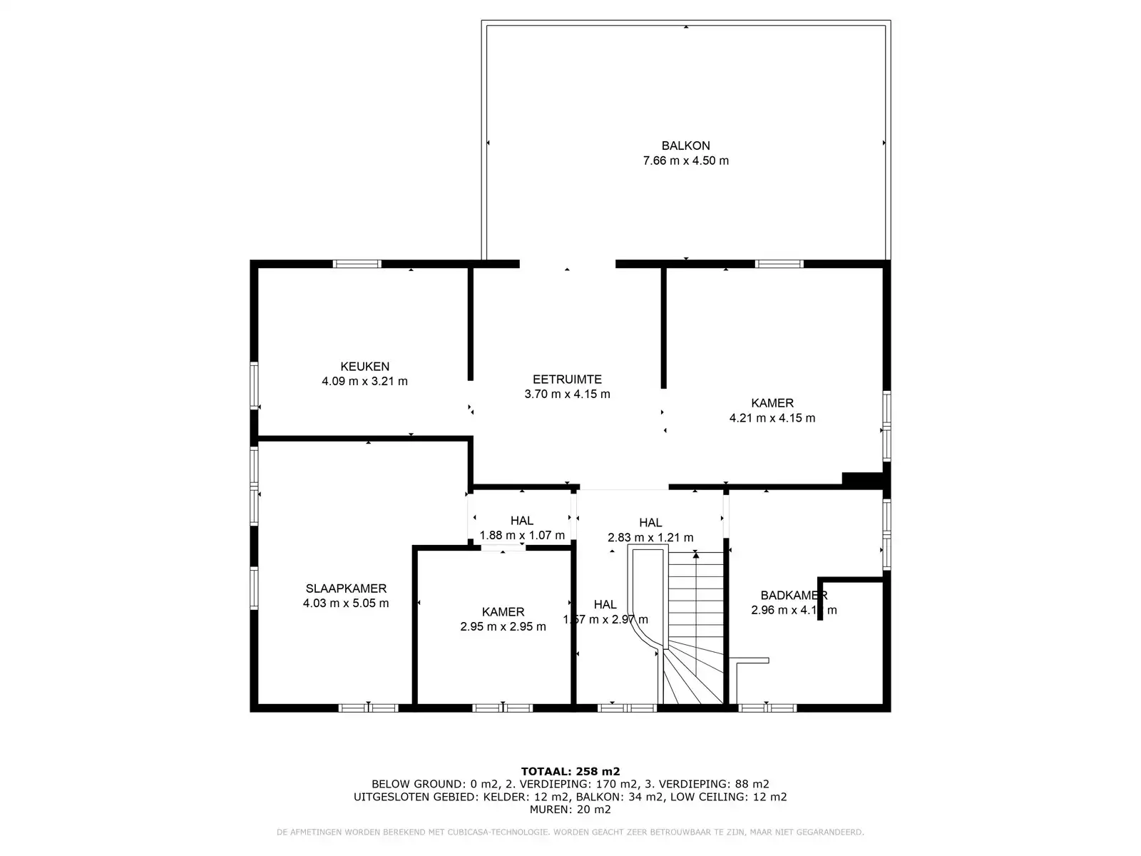
- 282 m² bewoonbaar
- 1410 m² grond
- 4 Toilet(ten)
Overstromingsgevaar perceel
Beschrijving
Uniek Handelspand met woonst in Hoepertingen (Tongeren-Borgloon)
Perfect voor vrije beroepen, horeca, kantoor of handel, zorgwoning of riante woonst.
Op zoek naar een unieke kans om wonen en werken te combineren in een prachtig kader?
Ontdek dan dit volledig gerenoveerde handelspand met woonst, gelegen in het landelijke Hoepertingen, een charmante deelgemeente van Tongeren-Borgloon.
✅ Commerciële Troeven:
-Uitstekende zichtbaarheid en bereikbaarheid: Gelegen langs een goed frequenteerde weg.
-Veelzijdige bestemming
-Ruime parkeergelegenheid voor klanten of cliënten.
Wooncomfort:
-Aparte privé-ingang voor de woonst zo is de rust en privacy gegarandeerd.
-Tuin en ruim zonneterrasdus ideaal om tot rust te komen na een werkdag.
-Bovenverdieping nooit bewoond maar is instapklaar én uitbreidbaar naar eigen wens.
-Stijlvolle combinatie van landelijke charme en modern comfort.
Unieke Kansen:
Dit pand biedt eindeloze mogelijkheden voor wie werk en privé wil combineren zonder in te boeten op comfort of zichtbaarheid. Denk aan een artsenpraktijk, schoonheidssalon, winkel met atelier, kleine horecazaak, of zelfs co-workingruimte.
Locatie: Hoepertingen – strategische ligging tussen Tongeren en Borgloon.
Een zeldzame opportuniteit in een sterk opkomende regio.
Interesse? Contacteer ons vandaag nog voor een bezichtiging en laat u verrassen door de vele mogelijkheden van dit unieke pand!
CENTURY 21 Immo K St-Truiden en Tienen - 016/821778 - info@immok.be
Perfect voor vrije beroepen, horeca, kantoor of handel, zorgwoning of riante woonst.
Op zoek naar een unieke kans om wonen en werken te combineren in een prachtig kader?
Ontdek dan dit volledig gerenoveerde handelspand met woonst, gelegen in het landelijke Hoepertingen, een charmante deelgemeente van Tongeren-Borgloon.
✅ Commerciële Troeven:
-Uitstekende zichtbaarheid en bereikbaarheid: Gelegen langs een goed frequenteerde weg.
-Veelzijdige bestemming
-Ruime parkeergelegenheid voor klanten of cliënten.
Wooncomfort:
-Aparte privé-ingang voor de woonst zo is de rust en privacy gegarandeerd.
-Tuin en ruim zonneterrasdus ideaal om tot rust te komen na een werkdag.
-Bovenverdieping nooit bewoond maar is instapklaar én uitbreidbaar naar eigen wens.
-Stijlvolle combinatie van landelijke charme en modern comfort.
Unieke Kansen:
Dit pand biedt eindeloze mogelijkheden voor wie werk en privé wil combineren zonder in te boeten op comfort of zichtbaarheid. Denk aan een artsenpraktijk, schoonheidssalon, winkel met atelier, kleine horecazaak, of zelfs co-workingruimte.
Locatie: Hoepertingen – strategische ligging tussen Tongeren en Borgloon.
Een zeldzame opportuniteit in een sterk opkomende regio.
Interesse? Contacteer ons vandaag nog voor een bezichtiging en laat u verrassen door de vele mogelijkheden van dit unieke pand!
CENTURY 21 Immo K St-Truiden en Tienen - 016/821778 - info@immok.be
Uniek Handelspand met woonst in Hoepertingen (Tongeren-Borgloon)
Perfect voor vrije beroepen, horeca, kantoor of handel, zorgwoning of riante woonst.
Op zoek naar een unieke kans om wonen en werken te combineren in een prachtig kader?
Ontdek dan dit volledig gerenoveerde handelspand met woonst, gelegen in het landelijke Hoepertingen, een charmante deelgemeente van Tongeren-Borgloon.
✅ Commerciële Troeven:
-Uitstekende zichtbaarheid en bereikbaarheid: Gelegen langs een goed frequenteerde weg.
-Veelzijdige bestemming
-Ruime parkeergelegenheid voor klanten of cliënten.
Wooncomfort:
-Aparte privé-ingang voor de woonst zo is de rust en privacy gegarandeerd.
-Tuin en ruim zonneterrasdus ideaal om tot rust te komen na een werkdag.
-Bovenverdieping nooit bewoond maar is instapklaar én uitbreidbaar naar eigen wens.
-Stijlvolle combinatie van landelijke charme en modern comfort.
Unieke Kansen:
Dit pand biedt eindeloze mogelijkheden voor wie werk en privé wil combineren zonder in te boeten op comfort of zichtbaarheid. Denk aan een artsenpraktijk, schoonheidssalon, winkel met atelier, kleine horecazaak, of zelfs co-workingruimte.
Locatie: Hoepertingen – strategische ligging tussen Tongeren en Borgloon.
Een zeldzame opportuniteit in een sterk opkomende regio.
Interesse? Contacteer ons vandaag nog voor een bezichtiging en laat u verrassen door de vele mogelijkheden van dit unieke pand!
CENTURY 21 Immo K St-Truiden en Tienen - 016/821778 - info@immok.be
Perfect voor vrije beroepen, horeca, kantoor of handel, zorgwoning of riante woonst.
Op zoek naar een unieke kans om wonen en werken te combineren in een prachtig kader?
Ontdek dan dit volledig gerenoveerde handelspand met woonst, gelegen in het landelijke Hoepertingen, een charmante deelgemeente van Tongeren-Borgloon.
✅ Commerciële Troeven:
-Uitstekende zichtbaarheid en bereikbaarheid: Gelegen langs een goed frequenteerde weg.
-Veelzijdige bestemming
-Ruime parkeergelegenheid voor klanten of cliënten.
Wooncomfort:
-Aparte privé-ingang voor de woonst zo is de rust en privacy gegarandeerd.
-Tuin en ruim zonneterrasdus ideaal om tot rust te komen na een werkdag.
-Bovenverdieping nooit bewoond maar is instapklaar én uitbreidbaar naar eigen wens.
-Stijlvolle combinatie van landelijke charme en modern comfort.
Unieke Kansen:
Dit pand biedt eindeloze mogelijkheden voor wie werk en privé wil combineren zonder in te boeten op comfort of zichtbaarheid. Denk aan een artsenpraktijk, schoonheidssalon, winkel met atelier, kleine horecazaak, of zelfs co-workingruimte.
Locatie: Hoepertingen – strategische ligging tussen Tongeren en Borgloon.
Een zeldzame opportuniteit in een sterk opkomende regio.
Interesse? Contacteer ons vandaag nog voor een bezichtiging en laat u verrassen door de vele mogelijkheden van dit unieke pand!
CENTURY 21 Immo K St-Truiden en Tienen - 016/821778 - info@immok.be
Energie
- EPC Certificaat: 73009-G-OMV_2019135379/EP05330/A001/D01/SD001
Op de kaart

Financieel
| Prijs | |
|---|---|
| Kadastraal inkomen (niet geïndexeerd) | € 914 |
Berekening kosten
Je aankoopkosten? Die heb je snel berekent via de knop hieronder.
Bijkomende info
Gebouw
| Bouwjaar | 1963 |
|---|---|
| Renovatie jaar | 2021 |
| Staat | Zo goed als nieuw |
| Bewoonbaar (m²) | 282 |
| Gevels | 4 |
| Badkamers | 0 |
| Slaapkamers | 0 |
| Parkeerplaatsen | 9 |
| Toiletten | 4 |
Faciliteiten
| Type vloer | |
|---|---|
| Keuken uitrusting | Luxueus uitgerust |
| Elektrisch keuringsattest | Nee |
Perceel
| Overstromingsgevoelig | Geen |
|---|---|
| P-score | D |
| G-score | C |
| Totale oppervlakte (m²) | 1410 |
| Tuin oppervlakte (m²) | 0 |
| Oriëntatie voorgevel | Zuid |
| Oriëntatie tuin | Noord |
Vergunning
| Vergunning | Geen beschikbaar |
|---|---|
| Verkavelingsvergunning | Geen beschikbaar |
Uitrusting
| Geschikt voor rolstoelgebruikers | Ja |
|---|---|
| Parking | Ja |
| Garage | Nee |
| Thuiskantoor | Ja |
| Kelder | Ja |
| Tuin | Nee |
| Terras | Nee |
| Lift | Nee |
| Gasaansluiting | Ja |
| Wateraansluiting | Ja |
| Elektriciteitsaansluiting | Ja |
| Telefoonaansluiting | Ja |
| Zwembad | Nee |
| Zwemvijver | Nee |
Een pand van
Century 21 Immo K
Wij kunnen het vast goed met elkaar vinden in ons kantoor te TIENEN en SINT-TRUIDEN
KIES VOOR DE MARKTLEIDER
CENTURY 21 is het grootste makelaarsnetwerk ter wereld en in België. Met 25 jaar ervaring in België en meer dan 10.000 kantoren wereldwijd zijn wij de evidente keuze.
100% TRANSPARANTIE
Een vertrouwensrelatie opbouwen is essentieel voor ons. Daarom houden we u op de hoogte gedurende alle fases van het proces en dat doen we in volle transparantie. Wij staan altijd tot uw dienst voor om het even welke vraag.
GOUDEN KWALITEITSGARANTIE
Goud is de kleur van CENTURY 21, en goud is ook de kleur van onze onvoorwaardelijke kwaliteitsstandaard. Wij bieden u de beste service in de vastgoedsector
NO CURE, NO PAY
Wij gaan uw eigendom binnen een bepaalde termijn verkopen. Indien we niet in ons opzet slagen, betaalt u helemaal niets.
Leer meer over vastgoed
05 November 2024
Bedrijfsvastgoed in transitie: ontdek de toekomst van werkplekken
16 October 2024
Opbrengsteigendom: een slim pad naar passief inkomen en vermogensgroei
09 September 2024
Tijdelijk vastgoed: flexibele oplossingen voor een dynamische markt
12 August 2024