AUTHENTIEKE WONING MET RUIME SCHUUR EN VEEL POTENTIEEL IN TONGEREN
Een pand van De woonmakers
Overzicht
- 323 m² grond
- 3 Slaapkamer(s)
- 1 Badkamer(s)
Overstromingsgevaar gebouw
Overstromingsgevaar perceel
Beschrijving
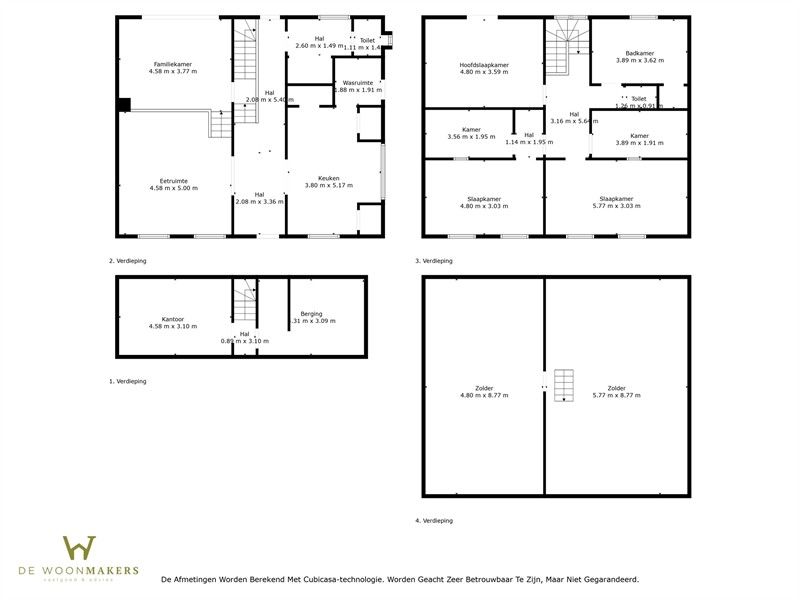
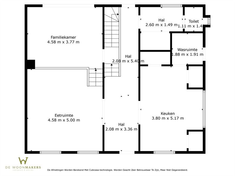
De woning beschikt over een ruime, lichte leefruimte waar je vanuit de ramen geniet van het groene uitzicht rondom. Naast de woonkamer en eetkamer bevindt zich een praktische en stijlvolle keuken. Voor wie thuiswerkt is er bovendien een aparte bureauruimte of kantoor, ideaal om werk en privé gescheiden te houden.
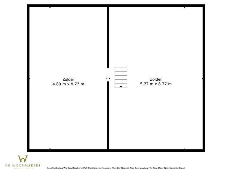
Op de bovenverdieping vinden we drie ruime slaapkamers, een dressing, een badkamer en een berging terug. De zolder biedt, mits de nodige werken, de mogelijkheid om een extra kamer of hobbyruimte te creëren. Dankzij de royale oppervlakte is er ruimte genoeg om de woning aan te passen aan jouw wensen en gezinssituatie.
Aan de zijkant van de woning bevindt zich een grote, charmante schuur met aparte ingang. Dit bijgebouw heeft enorm veel potentieel en kan na renovatie perfect dienen als wellnessruimte, gastenverblijf, een gezellige B&B of zelfs een atelier of praktijkruimte.
contacteer ons vandaag nog op het nummer 011/98.88.98 of via info@dewoonmakers.be
Aan de rustige Jesserenstraat 89 in Tongeren ontdekken we deze karaktervolle open bebouwing op een perceel van 8a80ca, met een indrukwekkende bewoonbare oppervlakte van 323 m² inclusief zolder. Deze woning combineert degelijke materialen, warme charme en een overvloed aan ruimte met een prachtig uitzicht op de omliggende natuur. De extra troef? Een grote schuur met aparte toegang, die wacht om omgevormd te worden tot een inspirerende wellnessruimte, een kleine B&B of een ander uniek project.
Wanneer je de woning betreedt, valt meteen op dat hier gekozen werd voor duurzame en kwalitatieve materialen. Authentieke natuursteen, mooie vloeren, elegante deuren en verzorgd raamwerk geven het interieur een tijdloze en warme uitstraling. De woning is met zorg onderhouden en straalt degelijkheid uit, klaar om nieuwe verhalen te schrijven.
De woning beschikt over een ruime, lichte leefruimte waar je vanuit de ramen geniet van het groene uitzicht rondom. Naast de woonkamer en eetkamer bevindt zich een praktische en stijlvolle keuken. Voor wie thuiswerkt is er bovendien een aparte bureauruimte of kantoor, ideaal om werk en privé gescheiden te houden.
Op de bovenverdieping vinden we drie ruime slaapkamers, een dressing, een badkamer en een berging terug. De zolder biedt, mits de nodige werken, de mogelijkheid om een extra kamer of hobbyruimte te creëren. Dankzij de royale oppervlakte is er ruimte genoeg om de woning aan te passen aan jouw wensen en gezinssituatie.
Aan de zijkant van de woning bevindt zich een grote, charmante schuur met aparte ingang. Dit bijgebouw heeft enorm veel potentieel en kan na renovatie perfect dienen als wellnessruimte, gastenverblijf, een gezellige B&B of zelfs een atelier of praktijkruimte. Deze aparte toegang maakt het bijzonder interessant voor wie werk en wonen wil combineren, of gasten in alle comfort wil ontvangen.
De ligging van de woning is een ander groot pluspunt: hier woon je in alle rust, met een heerlijk uitzicht op het omliggende groen, terwijl het centrum van Tongeren en alle voorzieningen toch vlot bereikbaar blijven. Dit maakt het een ideale plek voor wie houdt van privacy en natuur, zonder in te boeten op bereikbaarheid.
Deze woning is ideaal voor wie op zoek is naar een karaktervolle, ruime woning met toekomstmogelijkheden. Of je hier nu een warme gezinswoning, een combinatie van wonen en werken, of een creatieve invulling voor de schuur ziet: de mogelijkheden zijn eindeloos.
Benieuwd naar wat deze woning voor jou kan betekenen? Neem vandaag nog contact met ons op voor meer informatie of een bezichtiging, en ontdek zelf de charme en het potentieel van deze bijzondere plek.
Mis deze unieke kans niet en contacteer ons vandaag nog op het nummer 011/98.88.98 of via info@dewoonmakers.be
De vermelde oppervlaktes zijn indicatief. De Woonmakers kan niet verantwoordelijk gesteld worden voor de juistheid van de door zijn verstrekte gegevens.
Energie
![]() |
- EPC Certificaat: 20250714-0003646554-RES-1
- Energieverbruik: 239 kWh/m²/jaar
- E-peil: E0
- Verwarming: Gas
- Beglazing: Standaard dubbel
Op de kaart

Financieel
| Prijs | |
|---|---|
| Kadastraal inkomen (niet geïndexeerd) | € 676 |
Berekening kosten
Je aankoopkosten? Die heb je snel berekent via de knop hieronder.
Bijkomende info
Gebouw
| Bouwjaar | 1899 |
|---|---|
| Staat | Goed onderhouden |
| Verdieping | 0 |
| Badkamers | 1 |
| Slaapkamers | 3 |
| Verdiepingen | 0 |
| Garages | 0 |
| Parkeerplaatsen | 0 |
| Toiletten | 0 |
Faciliteiten
| Keuken uitrusting | Goed uitgerust |
|---|---|
| Beglazing | Standaard dubbel |
| Brandstof primaire verwarming | Gas |
| Septische tank | Nee |
Perceel
| Overstromingsgevoelig | Geen |
|---|---|
| P-score | D |
| G-score | D |
| Totale oppervlakte (m²) | 323 |
| Bebouwde oppervlakte (m²) | 0 |
Vergunning
| Verkavelingsvergunning | Geen beschikbaar |
|---|
Uitrusting
| Investeringspand | Nee |
|---|---|
| Parking | Nee |
| Garage | Nee |
| Lift | Nee |
| Rioolaansluiting | Nee |
| Gasaansluiting | Nee |
| Wateraansluiting | Nee |
| Elektriciteitsaansluiting | Nee |
| Internetaansluiting | Nee |
| Telefoonaansluiting | Nee |
| Zonnepanelen | Nee |
| Zonneboiler | Nee |
| Alarm | Nee |
| Videofoon | Nee |
| Grondwaterput | Nee |
