UITZONDERLIJKE OPEN BEBOUWING MET VEEL RUIMTE EN LICHT, OOK GESCHIKT ALS KANGEROEWONING
Een pand van De woonmakers
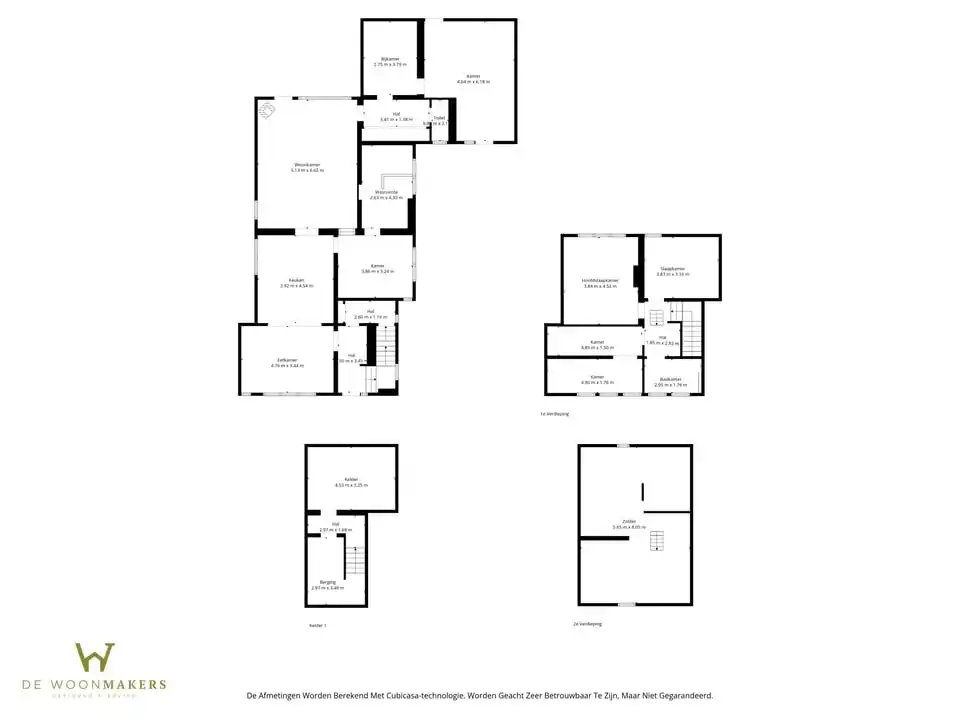
Overzicht
- 265 m² bewoonbaar
- 1865 m² grond
- 4 Slaapkamer(s)
- 1 Badkamer(s)
Beschrijving
Op een prachtig perceel van 1.865m² vind je deze royale woning met maar liefst 265m² bewoonbare oppervlakte. Een thuis waar comfort, kwaliteit en rust perfect samenkomen – ideaal voor wie graag ruim leeft, graag in het groen woont en toch vlot verbonden wil blijven met het dagelijkse leven. De mogelijkheden tot kangoeroewoning of het uitoefenen van een bijberoep zijn hier ook aanwezig.
Binnenin word je verwelkomd door open, heldere leefruimtes die dankzij hun omvang en indeling genieten van een geweldige lichtinval. Door de 4 slaapkamers is er plaats voor het hele gezin, hobby’s, een thuiskantoor of logees.
Deze woning is bovendien futureproof:
• EPC B
• Asbestveilig
• Zonnepanelen voor lage energiekosten
• Airco’s voor maximaal comfort
• Regenwaterput voor duurzaam watergebruik
Buiten wacht een zuidgerichte, perfect georiënteerde tuin waar rust en privacy centraal staan. Een heerlijke plek om te genieten van de zon, te ontspannen of om buiten te leven in alle seizoenen.
Kortom: dit is een woning die indruk maakt door haar ruimte, energiezuinigheid en fantastische ligging.
Neem snel contact op voor een afspraak op het nummer 011/98.88.98 of via info@dewoonmakers.be
Binnenin word je verwelkomd door open, heldere leefruimtes die dankzij hun omvang en indeling genieten van een geweldige lichtinval. Door de 4 slaapkamers is er plaats voor het hele gezin, hobby’s, een thuiskantoor of logees.
Deze woning is bovendien futureproof:
• EPC B
• Asbestveilig
• Zonnepanelen voor lage energiekosten
• Airco’s voor maximaal comfort
• Regenwaterput voor duurzaam watergebruik
Buiten wacht een zuidgerichte, perfect georiënteerde tuin waar rust en privacy centraal staan. Een heerlijke plek om te genieten van de zon, te ontspannen of om buiten te leven in alle seizoenen.
Kortom: dit is een woning die indruk maakt door haar ruimte, energiezuinigheid en fantastische ligging.
Neem snel contact op voor een afspraak op het nummer 011/98.88.98 of via info@dewoonmakers.be
Op een prachtig perceel van 1.865m² vind je deze royale woning met maar liefst 265m² bewoonbare oppervlakte. Een thuis waar comfort, kwaliteit en rust perfect samenkomen – ideaal voor wie graag ruim leeft, graag in het groen woont en toch vlot verbonden wil blijven met het dagelijkse leven. De mogelijkheden tot kangoeroewoning of het uitoefenen van een bijberoep zijn hier ook aanwezig.
Binnenin word je verwelkomd door open, heldere leefruimtes die dankzij hun omvang en indeling genieten van een geweldige lichtinval. Door de 4 slaapkamers is er plaats voor het hele gezin, hobby’s, een thuiskantoor of logees.
Deze woning is bovendien futureproof:
• EPC B
• Asbestveilig
• Zonnepanelen voor lage energiekosten
• Airco’s voor maximaal comfort
• Regenwaterput voor duurzaam watergebruik
Buiten wacht een zuidgerichte, perfect georiënteerde tuin waar rust en privacy centraal staan. Een heerlijke plek om te genieten van de zon, te ontspannen of om buiten te leven in alle seizoenen.
Kortom: dit is een woning die indruk maakt door haar ruimte, energiezuinigheid en fantastische ligging.
Heeft deze ruime gezinswoning op centrale locatie uw interesse gewekt? Neem snel contact op voor een afspraak op het nummer 011/98.88.98 of via info@dewoonmakers.be
De vermelde oppervlaktes zijn indicatief. De Woonmakers kan niet verantwoordelijk gesteld worden voor de juistheid van de door zijn verstrekte gegevens.
Binnenin word je verwelkomd door open, heldere leefruimtes die dankzij hun omvang en indeling genieten van een geweldige lichtinval. Door de 4 slaapkamers is er plaats voor het hele gezin, hobby’s, een thuiskantoor of logees.
Deze woning is bovendien futureproof:
• EPC B
• Asbestveilig
• Zonnepanelen voor lage energiekosten
• Airco’s voor maximaal comfort
• Regenwaterput voor duurzaam watergebruik
Buiten wacht een zuidgerichte, perfect georiënteerde tuin waar rust en privacy centraal staan. Een heerlijke plek om te genieten van de zon, te ontspannen of om buiten te leven in alle seizoenen.
Kortom: dit is een woning die indruk maakt door haar ruimte, energiezuinigheid en fantastische ligging.
Heeft deze ruime gezinswoning op centrale locatie uw interesse gewekt? Neem snel contact op voor een afspraak op het nummer 011/98.88.98 of via info@dewoonmakers.be
De vermelde oppervlaktes zijn indicatief. De Woonmakers kan niet verantwoordelijk gesteld worden voor de juistheid van de door zijn verstrekte gegevens.
Energie
![]() |
- EPC Certificaat: 20250501-0003590783-RES-1
- Energieverbruik: 116 kWh/m²/jaar
- E-peil: E0
- Verwarming: Pellets
- Beglazing: Standaard dubbel
Op de kaart

Financieel
| Prijs | |
|---|---|
| Kadastraal inkomen (niet geïndexeerd) | € 1.026 |
Berekening kosten
Je aankoopkosten? Die heb je snel berekend via de knop hieronder.
Bijkomende info
Gebouw
| Bouwjaar | 1958 |
|---|---|
| Bouwcertificaat | Nee |
| Bewoonbaar (m²) | 265 |
| Verdieping | 0 |
| Badkamers | 1 |
| Slaapkamers | 4 |
| Verdiepingen | 0 |
| Garages | 0 |
| Parkeerplaatsen | 0 |
| Toiletten | 0 |
Faciliteiten
| Beglazing | Standaard dubbel |
|---|---|
| Brandstof primaire verwarming | Pellets |
| Septische tank | Nee |
Perceel
| Overstromingsgevoelig | Geen |
|---|---|
| P-score | A |
| G-score | A |
| Totale oppervlakte (m²) | 1865 |
| Bebouwde oppervlakte (m²) | 0 |
Vergunning
| Verkavelingsvergunning | Vergunning beschikbaar |
|---|
Uitrusting
| Investeringspand | Nee |
|---|---|
| Parking | Nee |
| Garage | Nee |
| Lift | Nee |
| Rioolaansluiting | Nee |
| Gasaansluiting | Nee |
| Wateraansluiting | Nee |
| Elektriciteitsaansluiting | Nee |
| Internetaansluiting | Nee |
| Telefoonaansluiting | Nee |
| Zonnepanelen | Nee |
| Zonneboiler | Nee |
| Alarm | Nee |
| Videofoon | Nee |
| Grondwaterput | Nee |
Een pand van
De woonmakers
De Woonmakers Win-win in vastgoed
Bij De Woonmakers staat ervaring centraal. Sinds onze oprichting in 2020 hebben we ons voortdurend ontwikkeld als toonaangevend bedrijf in de vastgoedsector. Gedurende deze periode hebben we waardevolle inzichten verzameld en ons vakmanschap verfijnd om onze klanten een ongeëvenaarde dienstverlening te bieden.
Onze missie is om de perfecte match te creëren tussen individuen en vastgoed, en dit streven we na door onze diepgaande kennis van de markt te combineren met een innovatieve benadering van klantinteractie. Door te luisteren naar uw woonvoorkeuren en -behoeften, zijn we in staat om op maat gemaakte oplossingen te presenteren die naadloos aansluiten op uw levensstijl.
De drijvende krachten achter De Woonmakers, Jan en Krisja, delen een passie voor vastgoed en een toewijding om de klanten te voorzien van een ongeëvenaarde ervaring. Met jarenlange expertise in verschillende facetten van de vastgoedmarkt streven zij ernaar om een service te bieden die verder gaat dan alleen transacties. “Onze klanten kunnen rekenen op een persoonlijke aanpak die gericht is op het creëren van langdurige relaties en het leveren van op maat gemaakte oplossingen die voldoen aan hun specifieke behoeften.”
TONGERSESTEENWEG 98 TONGEREN-BORGLOON-2134
Leer meer over vastgoed
Nieuw
01 March 2026
Wanneer heb ik een bouwvergunning of omgevingsvergunning nodig?
17 February 2026
Hoe breng ik een bod uit op een woning?
24 November 2025
Uitgezocht voor jouw gemeente: Hoeveel stijgt de waarde van je woning door een renovatie?
22 October 2025
