Stijlvol nieuwbouw appartement met 2 slaapkamers en terras
€ 274.500
Een pand van Sensimmo
Favoriet
Jouw zoektocht
Jouw scoretabel voor dit pand
Aan het laden...
Jouw geplande bezichtigingen
Aan het laden...
Overzicht
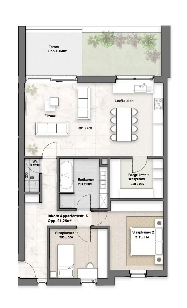
- 91.25 m² bewoonbaar
- 980 m² grond
- 2 Slaapkamer(s)
- 1 Toilet(ten)
- 1 Garage(s)
Beschrijving
Welkom in residentie Botanique!
Residentie Botanique met zijn 8 stijlvolle appartementen is gelegen aan de rand van centrum Leopoldsburg in een rustige woonomgeving.
Alle nodige faciliteiten zoals winkels, eetzaken, ontspanning, scholengemeenschap, etc. liggen op wandelafstand van de residentie.
Het appartement wordt sleutel-op-deur afgeleverd en opgericht volgens de nieuwste normen rekening houdend met het meest optimale comfort en degelijke materialen. Deze wooneenheid is voorzien van een tuin met buitenberging, een eigen parkeerplaats én een afsluitbare berging in de ondergrondse parkeerkelder.
***KENMERKEN GELIJKVLOERSAPPARTEMENT A6***
- Woonoppervlakte: 91 m²
- Twee slaapkamers
- Terras: Het appartement beschikt over een eigen terras met grootte van 9 m²
De appartementen worden voorzien van ramen met dubbele hoogrendementsbeglazing. Er wordt gebruik gemaakt van hernieuwbare energiebronnen met als streefdoel een E-peil onder E25. De centrale verwarming is op aardgas met als afgifte vloerverwarming. Zonnepanelen zijn inbegrepen! Een extra troef is dat u het appartement volledig naar eigen smaak & budget kunt afwerken gezien u de keuze hebt om zelf te kiezen voor uw keuken, badkamer en de vloerafwerking conform de vastgelegde budgetten!
Hoewel het lastenboekje nog in opmaak is, kun je gerust zijn dat de bouwheer zorgvuldig de materialen heeft uitgekozen uit een assortiment waaruit je kunt kiezen. Of je nu houdt van moderne elegantie of juist een meer traditionele stijl, wij zorgen ervoor dat er opties zijn die bij jouw smaak passen.
*** U kunt de indelingsplannen per appartement raadplegen onder het rubriek downloaden***
De gemeenschappelijke kosten moeten nog worden bepaald, maar er wordt gestreefd naar redelijke kosten voor een zorgeloze woonervaring. De vermelde publicatieprijs is exclusief BTW, registratierechten, notaris- en aansluitkosten van de nutsvoorzieningen.
Wenst u meer informatie over dit nieuwbouwproject Botanique en wilt u deel uitmaken van deze bijzondere gemeenschap? Onze makelaar Yilmaz Ahmet helpt u met alle plezier verder!
📞 +32 89 20 90 88
✉️ info@sensimmo.be
🌐 www.sensimmo.be
Residentie Botanique met zijn 8 stijlvolle appartementen is gelegen aan de rand van centrum Leopoldsburg in een rustige woonomgeving.
Alle nodige faciliteiten zoals winkels, eetzaken, ontspanning, scholengemeenschap, etc. liggen op wandelafstand van de residentie.
Het appartement wordt sleutel-op-deur afgeleverd en opgericht volgens de nieuwste normen rekening houdend met het meest optimale comfort en degelijke materialen. Deze wooneenheid is voorzien van een tuin met buitenberging, een eigen parkeerplaats én een afsluitbare berging in de ondergrondse parkeerkelder.
***KENMERKEN GELIJKVLOERSAPPARTEMENT A6***
- Woonoppervlakte: 91 m²
- Twee slaapkamers
- Terras: Het appartement beschikt over een eigen terras met grootte van 9 m²
De appartementen worden voorzien van ramen met dubbele hoogrendementsbeglazing. Er wordt gebruik gemaakt van hernieuwbare energiebronnen met als streefdoel een E-peil onder E25. De centrale verwarming is op aardgas met als afgifte vloerverwarming. Zonnepanelen zijn inbegrepen! Een extra troef is dat u het appartement volledig naar eigen smaak & budget kunt afwerken gezien u de keuze hebt om zelf te kiezen voor uw keuken, badkamer en de vloerafwerking conform de vastgelegde budgetten!
Hoewel het lastenboekje nog in opmaak is, kun je gerust zijn dat de bouwheer zorgvuldig de materialen heeft uitgekozen uit een assortiment waaruit je kunt kiezen. Of je nu houdt van moderne elegantie of juist een meer traditionele stijl, wij zorgen ervoor dat er opties zijn die bij jouw smaak passen.
*** U kunt de indelingsplannen per appartement raadplegen onder het rubriek downloaden***
De gemeenschappelijke kosten moeten nog worden bepaald, maar er wordt gestreefd naar redelijke kosten voor een zorgeloze woonervaring. De vermelde publicatieprijs is exclusief BTW, registratierechten, notaris- en aansluitkosten van de nutsvoorzieningen.
Wenst u meer informatie over dit nieuwbouwproject Botanique en wilt u deel uitmaken van deze bijzondere gemeenschap? Onze makelaar Yilmaz Ahmet helpt u met alle plezier verder!
📞 +32 89 20 90 88
✉️ info@sensimmo.be
🌐 www.sensimmo.be
Energie
- Verwarming: Gas
- Beglazing: Standaard dubbel
Op de kaart

Downloads
Financieel
| Prijs | |
|---|---|
| Kadastraal inkomen (niet geïndexeerd) | € 0 |
| Kadastraal inkomen (geïndexeerd) | € 0 |
Bijkomende info
Gebouw
| Bouwjaar | 2024 |
|---|---|
| Staat | Goed onderhouden |
| Is beschermd | Nee |
| Bewoonbaar (m²) | 91.25 |
| Verdieping | 2 |
| Slaapkamers | 2 |
| Verdiepingen | 1 |
| Garages | 1 |
| Toiletten | 1 |
Ruimtes
| Terras | 8.84 m² |
|---|
Faciliteiten
| Beglazing | Standaard dubbel |
|---|---|
| Luiken | Nee |
| Primaire verwarmingsbron | EXTRA_INFO.OUTFITTING.VALUE.STOVE |
| Brandstof primaire verwarming | Gas |
| Primaire verwarming | Vloerverwarming |
Perceel
| Overstromingsgevoelig | Geen |
|---|---|
| P-score | C |
| Voorkeurrecht | Nee |
| Totale oppervlakte (m²) | 980 |
| Oppervlakte terras (m²) | 8 |
Vergunning
| Vergunning | Vergunning beschikbaar |
|---|---|
| Verkavelingsvergunning | Geen beschikbaar |
| Bouwovertreding dagvaardiging | Geen |
| Type gebied | Stedelijk |
Uitrusting
| Meerdere eigenaars | Nee |
|---|---|
| Geschikt als kangoeroewoning | Nee |
| Geschikt voor rolstoelgebruikers | Nee |
| Geschikt voor praktijk | Nee |
| Volledig onderkelderd | Nee |
| Parking | Ja |
| Garage | Ja |
| Thuiskantoor | Nee |
| Kelder | Ja |
| Zolder | Nee |
| Opslagruimte | Ja |
| Tuin | Nee |
| Terras | Ja |
| Lift | Nee |
| Rioolaansluiting | Ja |
| Gasaansluiting | Ja |
| Wateraansluiting | Ja |
| Elektriciteitsaansluiting | Ja |
| TV aansluiting | Ja |
| Internetaansluiting | Ja |
| Zonnepanelen | Ja |
| Zonneboiler | Nee |
| Alarm | Nee |
| Zwembad | Nee |
| Jacuzzi | Nee |
| Toonzaal | Nee |
| Ventilatie | Nee |
Appartementsblok
| Aantal verdiepingen | 1 |
|---|---|
| Lift | Nee |
| Ondergrondse parking | Ja |
| Intercom | Nee |
Een pand van
Sensimmo
Sensimmo Vastgoed - gevoel voor wonen
Sensimmo bestaat uit een zeer enthousiast team van medewerkers! Ieder van hen beschikt over een grote dosis professionele ervaring, juridische kennis en doorzettingsvermogen. Zij gaan voluit voor een kwalitatieve aanpak van de verkoop van uw woning, uw levensinvestering!
3248
Leer meer over vastgoed
23 March 2026
Op Spotto zoeken als een pro: 10 slimme tips
21 March 2026
Hoeveel kan ik lenen om een huis te kopen?
01 March 2026
Wanneer heb ik een bouwvergunning of omgevingsvergunning nodig?
17 February 2026