BEN appartement met terras, zonnepanelen, berging & garage
Een pand van Janssen en Janssen
Jouw zoektocht
Overzicht
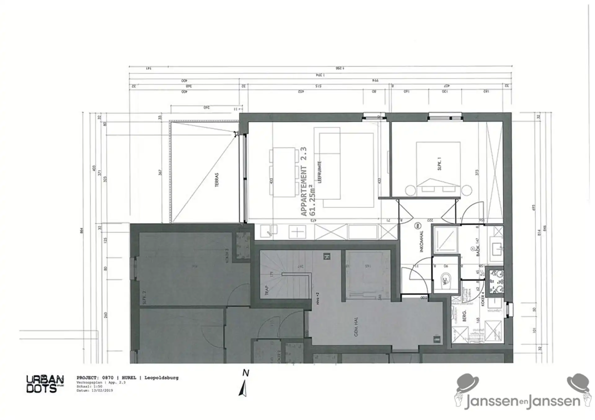
- 61.25 m² bewoonbaar
- 1 Slaapkamer(s)
- 1 Badkamer(s)
- 1 Toilet(ten)
Beschrijving
APPARTEMENT 2de VERDIEPING
1/ Gemeenschappelijke delen:
- Voortuin: voorzien van brievenbussen
- inkomhal: voorzien van een videofooninstallatie, lift en trap.
- ondergrondse parkeergarage met 9 autostaanplaatsen: via de oprit en de automatische kantelpoort bereikbaar. De vloer is uitgevoerd in gewapend en gepolierd beton.
- overige ondergrondse lokalen: technische ruimte, fietsenberging, afvallokaal, poetslokaal.
- 5 extra bezoekersparkeerplaatsen: op gelijkvloersniveau en gelegen aan de straatzijde.
2/ Privatieve delen:
A / appartement:
- inkom
- Aparte WC: voorzien van wastafeltje
- Badkamer (3,6m²): ingericht met aparte douchecel en badkamermeubel met dubbele wastafel.
- Slaapkamer (12,70m²)
- Woonkamer met open keuken (22m²):
- Open keuken: volledig ingericht met een kookeiland (met keramisch aanrecht,inbouwkastjes,vaatwasmachine, dubbele spoelbak) , en keukenwandkast met elektrische kookplaat met dampkap,elektrische multi-oven en koelkast.
- Aparte berging (4m²): grenst aan de keuken
- Terras (10m²): uitgevoerd in beton, afgewerkt met tegels. De terrasleuning is uitgevoerd in zwart gemoffeld staal.
- algemeenheden:
Volledig op tegelvloer. Raamwerk uitgevoerd in thermisch onderbroken aluminium.
Verder voorzien van warmtepomp, zonnepanelen en ventilatie D Systheem.
B/ ondergrondse ruimtes:
- 1 autostaanplaatsnr 3
- 1 aparte bergingnr 7
Extra voordelen:
- Vloerverwarming met warmtepomp
- Ventilatie D
- Zonnepanelen
STEDENBOUWKUNDIGE INLICHTINGEN IN HET KADER VAN DE INFORMATIEPLICHT:
1)VERGUNNING UITGEREIKT
2)WOONGEBIED
3)GEEN DAGVAARDING UITGEBRACHT
4)GEEN VERKOOPRECHT
5)VERKAVELINGSVERGUNNING
Energie
![]() |
- EPC Certificaat: 71034-G-2013/030/EP18132/B658/D01/SD009
- Energieverbruik: 26 kWh/m²/jaar
- E-peil: E0
- Beglazing: Hoog efficient driedubbel
Op de kaart

Financieel
| Prijs | |
|---|---|
| Kadastraal inkomen (niet geïndexeerd) | € 0 |
| Kadastraal inkomen (geïndexeerd) | € 0 |
Berekening kosten
Je aankoopkosten? Die heb je snel berekend via de knop hieronder.
Bijkomende info
Gebouw
| Bouwjaar | 2019 |
|---|---|
| Staat | Zo goed als nieuw |
| Bouwcertificaat | Nee |
| Bewoonbaar (m²) | 61.25 |
| Verdieping | 2 |
| Badkamers | 1 |
| Slaapkamers | 1 |
| Verdiepingen | 4 |
| Garages | 0 |
| Parkeerplaatsen | 1 |
| Doucheruimtes | 0 |
| Toiletten | 1 |
Faciliteiten
| Beglazing | Hoog efficient driedubbel |
|---|---|
| Elektrisch keuringsattest | Ja |
Perceel
| Overstromingsgevoelig | Geen |
|---|---|
| Voorkeurrecht | Nee |
| Bebouwde oppervlakte (m²) | 0 |
| Tuin oppervlakte (m²) | 0 |
| Oppervlakte terras (m²) | 10 |
Vergunning
| Vergunning | Vergunning beschikbaar |
|---|---|
| Verkavelingsvergunning | Vergunning beschikbaar |
Uitrusting
| Investeringspand | Nee |
|---|---|
| Geschikt voor praktijk | Nee |
| Parking | Ja |
| Garage | Nee |
| Thuiskantoor | Nee |
| Kelder | Ja |
| Zolder | Nee |
| Tuin | Nee |
| Terras | Ja |
| Lift | Ja |
| Rioolaansluiting | Nee |
| Gasaansluiting | Nee |
| Wateraansluiting | Nee |
| Elektriciteitsaansluiting | Nee |
| TV aansluiting | Nee |
| Internetaansluiting | Nee |
| Telefoonaansluiting | Nee |
Appartementsblok
| Naam residentie | Hurel |
|---|---|
| Aantal verdiepingen | 4 |
| Lift | Ja |
