Nieuw
Woning
Een pand van IMMO VAN HEES
Overzicht
- 190 m² bewoonbaar
- 500 m² grond
- 5 Slaapkamer(s)
- 1 Badkamer(s)
- 2 Toilet(ten)
Beschrijving
Prachtige nieuwbouwwoning van 190 m² op zuid-oost gerichte grond (500 m²)
Ontdek deze stijlvolle, energiezuinige woning in lichte gevelsteen met zwarte pannen en strakke zwarte PVC-ramen – een moderne uitstraling in een rustige, groene omgeving.
De woning is goed gelegen, ideaal voor wie op zoek is naar rust, ruimte en comfort in een halfopen bebouwing.
Indeling
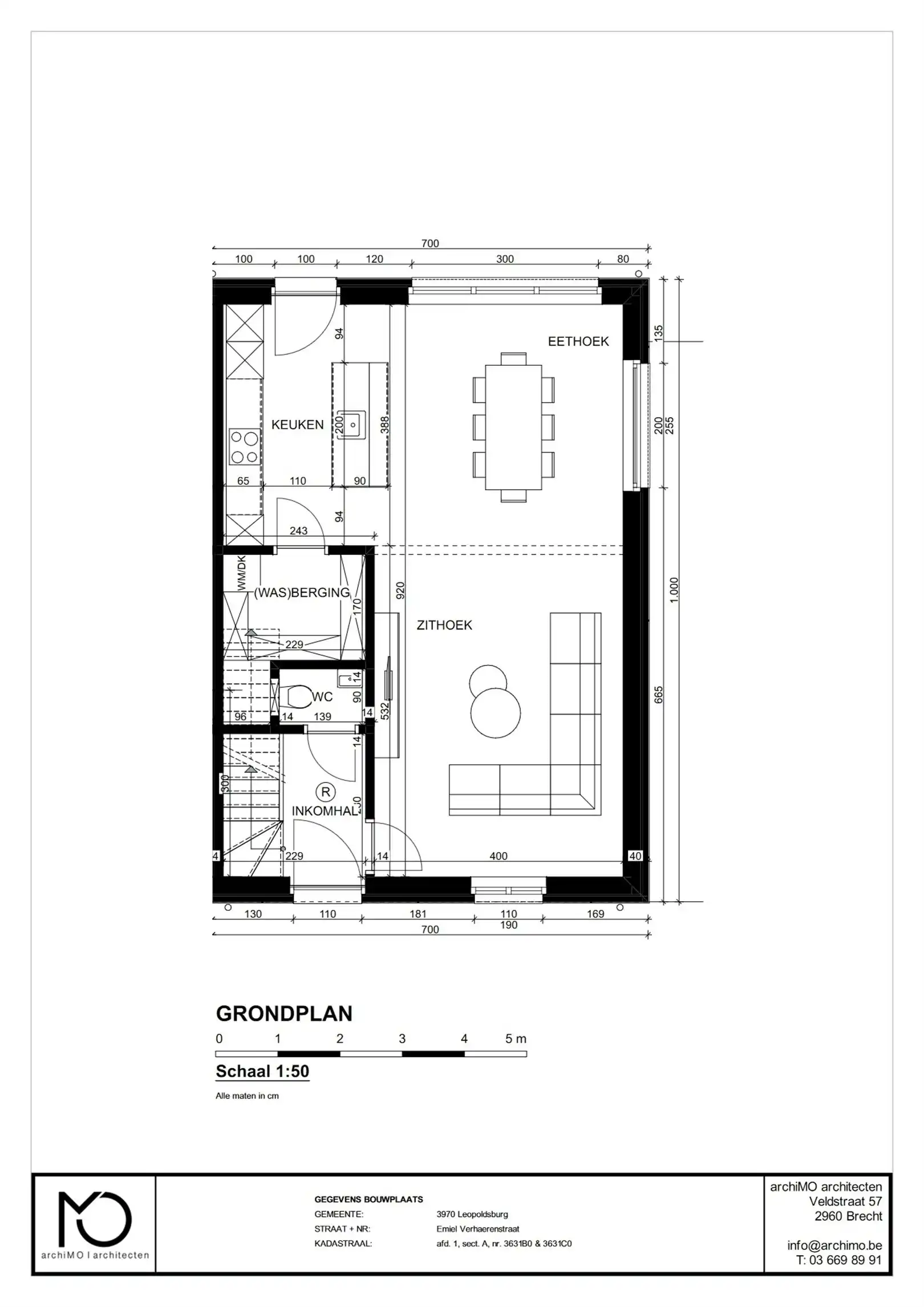
- Gelijkvloers (70 m²):
- Inkomhal met apart toilet
- Ruime, lichtrijke leefruimte van 43 m²
- Luxe open keuken met kwalitatieve afwerking
- Aparte berging/wasplaats
- Verdieping (70 m²):
Nachthal
- Drie ruime slaapkamers
- Luxe badkamer met ligbad, inloopdouche, dubbel lavabomeubel en apart toilet
Zolderverdieping:
- Overloop, technische ruimte
- Mogelijkheid tot één grote of twee extra slaapkamers → in totaal vijf slaapkamers, ideaal voor een groot gezin!
Comfort & Afwerking
Verwarming via warmtepomp, ook voorzien op de slaapkamers
Volledig afgewerkte woning – instapklaar bij oplevering
De tuin wordt ingezaaid, en de oprit en een terras van 15m² worden eveneens aangelegd.
Energie
![]() |
- EPC Certificaat: 71034-G-OMV_2025011159/EP18418/SV/A001/D01
- Energieverbruik: 31 kWh/m²/jaar
- E-peil: E19
- Beglazing: Standaard dubbel
Op de kaart

Financieel
| Prijs | |
|---|---|
| Kadastraal inkomen (niet geïndexeerd) | € 0 |
| Kadastraal inkomen (geïndexeerd) | € 0 |
Berekening kosten
Je aankoopkosten? Die heb je snel berekent via de knop hieronder.
Bijkomende info
Gebouw
| Staat | Nieuw |
|---|---|
| Bouwcertificaat | Nee |
| Bewoonbaar (m²) | 190 |
| Verdieping | 2 |
| Gevelbreedte | 7 |
| Badkamers | 1 |
| Slaapkamers | 5 |
| Verdiepingen | 0 |
| Garages | 0 |
| Parkeerplaatsen | 2 |
| Doucheruimtes | 0 |
| Toiletten | 2 |
Faciliteiten
| Keuken uitrusting | Luxueus uitgerust |
|---|---|
| Materiaal ramenomlijstingen | PVC |
| Beglazing | Standaard dubbel |
| Elektrisch keuringsattest | Ja |
Perceel
| Diepte (m) | 50 |
|---|---|
| Breedte (m) | 10 |
| Overstromingsgevoelig | Geen |
| P-score | A |
| G-score | A |
| Voorkeurrecht | Nee |
| Totale oppervlakte (m²) | 500 |
| Bebouwde oppervlakte (m²) | 0 |
| Tuin oppervlakte (m²) | 0 |
| Oppervlakte terras (m²) | 15 |
| Oriëntatie tuin | ZuidOost |
Vergunning
| Vergunning | Vergunning beschikbaar |
|---|---|
| Verkavelingsvergunning | Vergunning beschikbaar |
Uitrusting
| Investeringspand | Nee |
|---|---|
| Geschikt voor praktijk | Nee |
| Parking | Ja |
| Garage | Nee |
| Thuiskantoor | Nee |
| Kelder | Nee |
| Zolder | Ja |
| Tuin | Nee |
| Terras | Ja |
| Lift | Nee |
| Rioolaansluiting | Nee |
| Gasaansluiting | Nee |
| Wateraansluiting | Nee |
| Elektriciteitsaansluiting | Nee |
| TV aansluiting | Nee |
| Internetaansluiting | Nee |
| Telefoonaansluiting | Nee |
Een pand van
IMMO VAN HEES
IMMO VAN HEES
Een partner met karakter!
Leopoldsburg - Emiel Verhaerenstraat 60
Leer meer over vastgoed
24 November 2025
Uitgezocht voor jouw gemeente: Hoeveel stijgt de waarde van je woning door een renovatie?
22 October 2025
Hoeveel kan ik lenen om een huis te kopen?
11 June 2025
Huis kopen met bouwovertreding? Dit moet je weten
11 May 2025
