Woning
Een pand van IMMO VAN HEES
Jouw zoektocht
Overzicht
- 190 m² bewoonbaar
- 500 m² grond
- 5 Slaapkamer(s)
- 1 Badkamer(s)
- 2 Toilet(ten)
Beschrijving
Prachtige nieuwbouwwoning van 190 m² op zuid-oost gerichte grond (500 m²)
Ontdek deze stijlvolle, energiezuinige woning in lichte gevelsteen met zwarte pannen en strakke zwarte PVC-ramen – een moderne uitstraling in een rustige, groene omgeving.
De woning is goed gelegen, ideaal voor wie op zoek is naar rust, ruimte en comfort in een halfopen bebouwing.
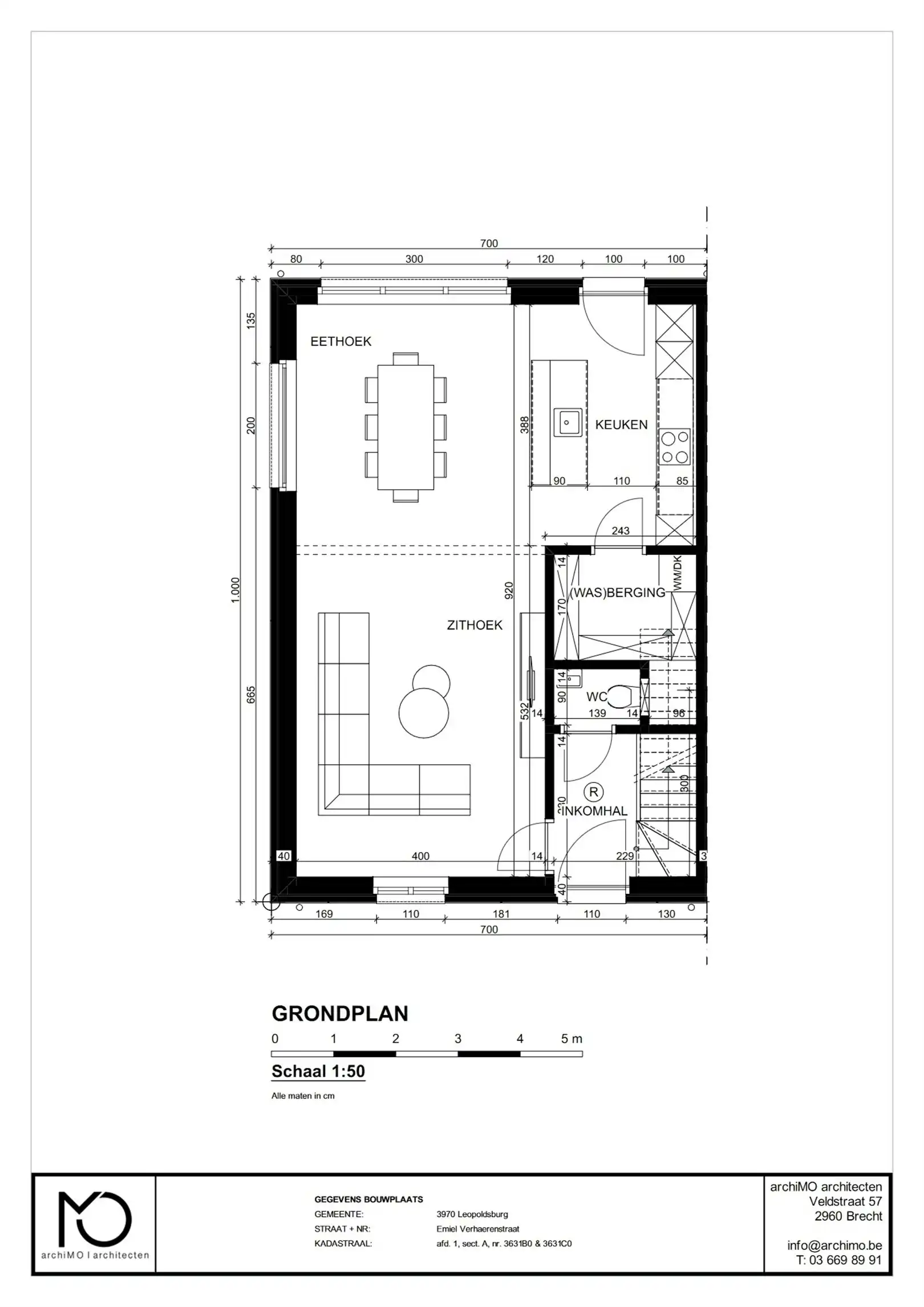
Indeling
- Gelijkvloers (70 m²):
- Inkomhal met apart toilet
- Ruime, lichtrijke leefruimte van 43 m²
- Luxe open keuken met kwalitatieve afwerking
- Aparte berging/wasplaats
- Verdieping (70 m²):
Nachthal
- Drie ruime slaapkamers
- Luxe badkamer met ligbad, inloopdouche, dubbel lavabomeubel en apart toilet
Zolderverdieping:
- Overloop, technische ruimte
- Mogelijkheid tot één grote of twee extra slaapkamers → in totaal vijf slaapkamers, ideaal voor een groot gezin!
Comfort & Afwerking
Verwarming via warmtepomp, ook voorzien op de slaapkamers
Volledig afgewerkte woning – instapklaar bij oplevering
De tuin wordt ingezaaid, en de oprit en een terras van 15m² worden eveneens aangelegd.
U kan ook in onze modelwoning te Mol een bezoek brengen. Bel 0475 245013.
Energie
![]() |
- EPC Certificaat: 71034-G-OMV_2025011159/EP18418/SV/A002/D01
- Energieverbruik: 31 kWh/m²/jaar
- E-peil: E18
- Beglazing: Standaard dubbel
Op de kaart

Financieel
| Prijs | |
|---|---|
| Kadastraal inkomen (niet geïndexeerd) | € 0 |
| Kadastraal inkomen (geïndexeerd) | € 0 |
Berekening kosten
Je aankoopkosten? Die heb je snel berekend via de knop hieronder.
Bijkomende info
Gebouw
| Staat | Nieuw |
|---|---|
| Bouwcertificaat | Nee |
| Bewoonbaar (m²) | 190 |
| Verdieping | 2 |
| Gevelbreedte | 7 |
| Badkamers | 1 |
| Slaapkamers | 5 |
| Verdiepingen | 0 |
| Garages | 0 |
| Parkeerplaatsen | 2 |
| Doucheruimtes | 0 |
| Toiletten | 2 |
Faciliteiten
| Keuken uitrusting | Luxueus uitgerust |
|---|---|
| Materiaal ramenomlijstingen | PVC |
| Beglazing | Standaard dubbel |
| Elektrisch keuringsattest | Ja |
Perceel
| Diepte (m) | 50 |
|---|---|
| Breedte (m) | 10 |
| Overstromingsgevoelig | Geen |
| P-score | A |
| G-score | A |
| Voorkeurrecht | Nee |
| Totale oppervlakte (m²) | 500 |
| Bebouwde oppervlakte (m²) | 0 |
| Tuin oppervlakte (m²) | 0 |
| Oppervlakte terras (m²) | 15 |
| Oriëntatie tuin | ZuidOost |
Vergunning
| Vergunning | Vergunning beschikbaar |
|---|---|
| Verkavelingsvergunning | Vergunning beschikbaar |
Uitrusting
| Investeringspand | Nee |
|---|---|
| Geschikt voor praktijk | Nee |
| Parking | Ja |
| Garage | Nee |
| Thuiskantoor | Nee |
| Kelder | Nee |
| Zolder | Ja |
| Tuin | Nee |
| Terras | Ja |
| Lift | Nee |
| Rioolaansluiting | Nee |
| Gasaansluiting | Nee |
| Wateraansluiting | Nee |
| Elektriciteitsaansluiting | Nee |
| TV aansluiting | Nee |
| Internetaansluiting | Nee |
| Telefoonaansluiting | Nee |
