> Te koop > Leopoldsburg > Grond > Direct bouwklare grond met vergunde plannen te Heppen!

Direct bouwklare grond met vergunde plannen te Heppen!

€ 135.000

Vloosstraat lot 2 - 3971 Leopoldsburg

Een pand van ImmoFusion

Volledige aanbod

Jouw zoektocht

Jouw scoretabel voor dit pand
Aan het laden...
Aan het laden...
Jouw geplande bezichtigingen
Aan het laden...
Aan het laden...

Overzicht


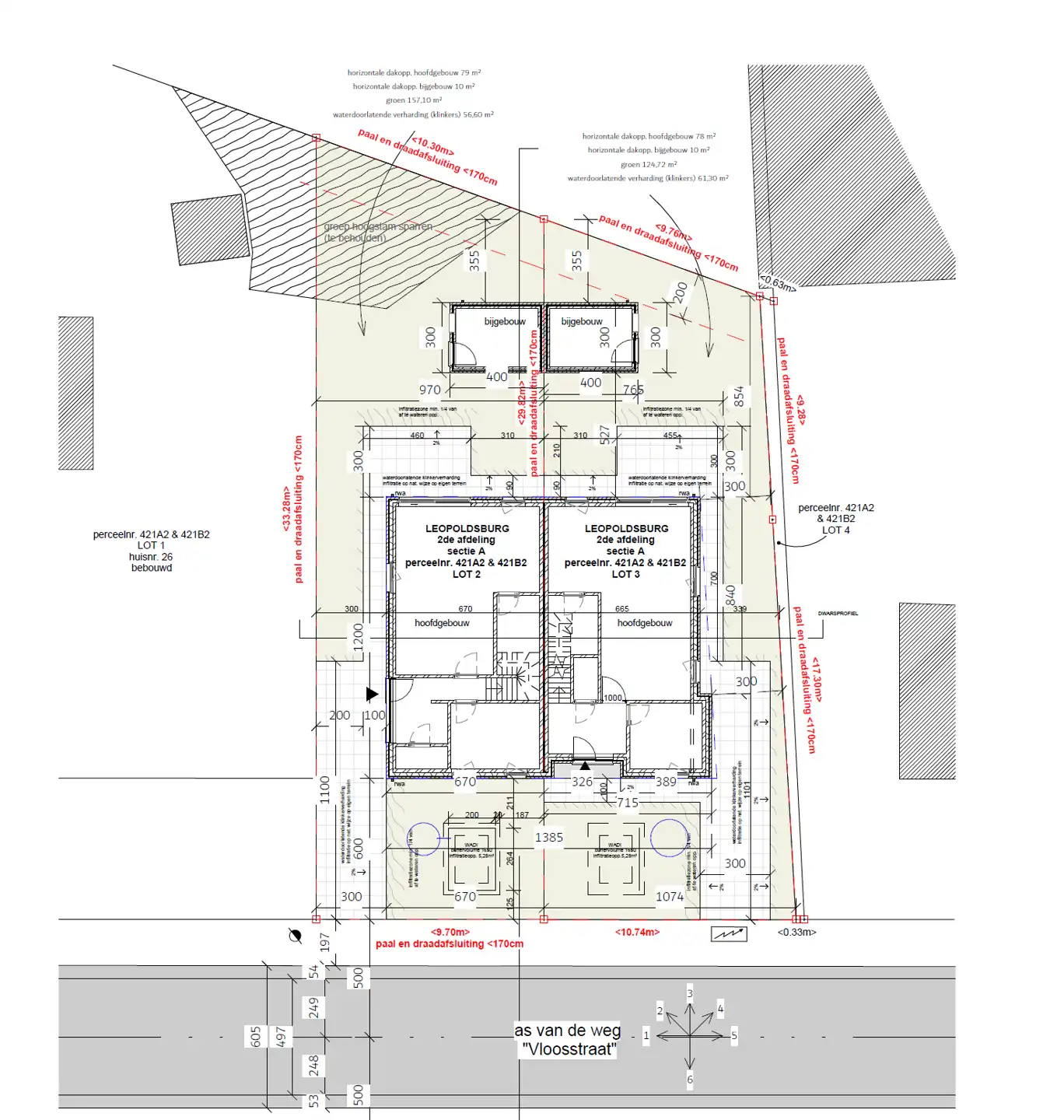
  • 306 m² grond

Beschrijving


Rustig gelegen bouwperceel met vergunde plannen – onmiddellijk bouwklaar

In de Vloosstraat te Leopoldsburg vinden we deze bouwgrond voor halfopen bebouwing, gelegen in een rustige en kindvriendelijke omgeving. Dit perceel maakt deel uit van een recente verkaveling en combineert een aangename ligging met een vlotte verbinding naar het centrum en omliggende gemeenten.

Met een perceeloppervlakte van ca. 306 m² biedt dit perceel alle mogelijkheden voor het realiseren van een moderne woning. Bovendien wordt de grond verkocht met volledig vergunde plannen, zodat u onmiddellijk kan starten met bouwen.

De voorziene woning is ontworpen met een praktische indeling, veel lichtinval en een hedendaagse architectuur, ideaal voor comfortabel en energiezuinig wonen.

Dankzij de gunstige ligging geniet u van rust en privacy, terwijl alle voorzieningen zoals winkels, scholen en openbaar vervoer zich in de nabijheid bevinden.

Pluspunten:
- Rustige en kindvriendelijke ligging
- Vergunde bouwplannen aanwezig
- Direct bouwklaar
- Moderne bouwmogelijkheden
- Goede verbindingen
- Ideaal voor eigen bewoning of investering

Maatregelen opgenomen in het Maatregelenregister: nee

Mogelijkheid om Lot 2 en Lot 3 samen aan te kopen.

Een bezichtiging of meer info, contacteer ons gerust!

De ideale kans om uw woningproject zonder zorgen en zonder vertraging te realiseren!

Rustig gelegen bouwperceel met vergunde plannen – onmiddellijk bouwklaar


In de Vloosstraat te Leopoldsburg vinden we deze bouwgrond voor halfopen bebouwing, gelegen in een rustige en kindvriendelijke omgeving. Dit perceel maakt deel uit van een recente verkaveling en combineert een aangename ligging met een vlotte verbinding naar het centrum en omliggende gemeenten.


Met een perceeloppervlakte van ca. 306 m² biedt dit perceel alle mogelijkheden voor het realiseren van een moderne woning. Bovendien wordt de grond verkocht met volledig vergunde plannen, zodat u onmiddellijk kan starten met bouwen.


De voorziene woning is ontworpen met een praktische indeling, veel lichtinval en een hedendaagse architectuur, ideaal voor comfortabel en energiezuinig wonen.


Dankzij de gunstige ligging geniet u van rust en privacy, terwijl alle voorzieningen zoals winkels, scholen en openbaar vervoer zich in de nabijheid bevinden.


Pluspunten:


- Rustige en kindvriendelijke ligging
- Vergunde bouwplannen aanwezig
- Direct bouwklaar
- Moderne bouwmogelijkheden
- Goede verbindingen
- Ideaal voor eigen bewoning of investering


Mogelijkheid om Lot 2 en Lot 3 samen aan te kopen.


Een bezichtiging of meer info, contacteer ons gerust!


De ideale kans om uw woningproject zonder zorgen en zonder vertraging te realiseren!

Energie


Financieel


Prijs € 135.000

Berekening kosten


Je aankoopkosten? Die heb je snel berekend via de knop hieronder.

Bijkomende info


Perceel
P-score A
Voorkeurrecht Nee
Totale oppervlakte (m²) 306
Vergunning
Vergunning Geen beschikbaar
Verkavelingsvergunning Vergunning beschikbaar
Bouwovertreding Geen
Bouwovertreding dagvaardiging Geen

Een pand van


ImmoFusion
Logo van makelaar: ImmoFusion
Waarom ImmoFusion?
Hier zit u goed! Een enthousiast kantoor waar enkel de beste elementen samenkomen om een optimaal resultaat te behalen voor U, onze klant: vertrouwen, kennis, ervaring, innovatie en een persoonlijke aanpak. Wij gaan geen enkele uitdaging uit de weg en verleggen elke dag onze grenzen om U de beste service te bieden bij de aan- en verkoop van uw eigendom. Vertrouwen, de absolute basis van onze samenwerking. Of men nu een woning koopt of verkoopt, voor veel mensen is dit een “once in a life time experience”… Wij maken er dan ook onze zaak van om mensen hierin persoonlijk te begeleiden zodat dit voor hen een positieve en zorgeloze belevenis wordt. Een open communicatie in elk stadium van het verkoopproces waarbij we de klant duidelijk en correct informeren, zorgt voor het nodige vertrouwen; de absolute basis van onze samenwerking! Uiteraard nemen wij al het nodige papierwerk, de opmaak van contracten en de aanvraag van de wettelijk verplichte documenten ook ter harte. U wil weten aan welke prijs uw woning verkocht kan worden? Wij bieden u een gratis schatting! Door onze kennis en jarenlange ervaring weten wij de correcte prijs van uw eigendom te bepalen. Samen met u bekijken wij welke realistische vraagprijs gesteld kan worden om uw woning zo snel mogelijk te verkopen. Als U op zoek bent naar een professionele, gedreven makelaar die u persoonlijk begeleidt en enkel het beste voor U wil, contacteer ons dan. Wij kijken er alvast naar uit om u te ontmoeten…Graag tot binnenkort!
Logo van makelaar: ImmoFusion
Direct bouwklare grond met vergunde plannen te Heppen! foto {{pictureIndex}}

Direct bouwklare grond met vergunde plannen te Heppen!

€ 135.000

Vloosstraat lot 2 - 3971 Leopoldsburg

Bezoek het pand

Vul jouw contactgegevens hieronder in en de makelaar contacteert je.

Leer meer over vastgoed

24 April 2026
Duurzaam gelegen woning? Check je Mobiscore
23 March 2026
Op Spotto zoeken als een pro: 10 slimme tips
21 March 2026
Hoeveel kan ik lenen om een huis te kopen?
01 March 2026
Wanneer heb ik een bouwvergunning of omgevingsvergunning nodig?