Te vernieuwen appartement te koop (90m² GLV, 90m² -1)
€ 255.000
Een pand van Dewaele Vastgoed
Favoriet
Jouw zoektocht
Jouw scoretabel voor dit pand
Aan het laden...
Jouw geplande bezichtigingen
Aan het laden...
Overzicht
- 1 Slaapkamer(s)
- 1 Badkamer(s)
Beschrijving
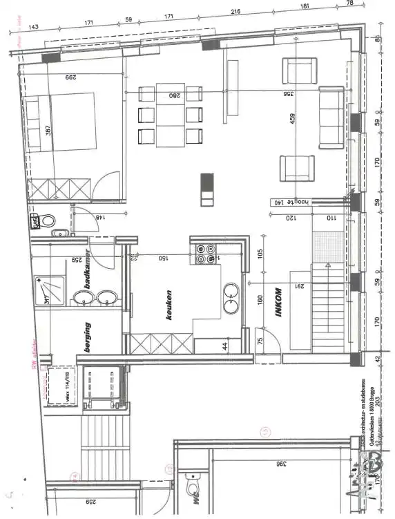
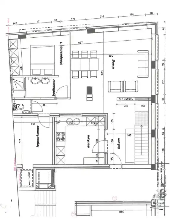
Ruim en energiezuinig gelijkvloersappartement van 90m² met een ruime kelder van 90m², centraal gelegen en flexibel in te delen, met twee ingangen en diverse gebruiksmogelijkheden.
Ruim en flexibel in te richten appartement op een uitzonderlijk centrale locatie in de stad. Met een bewoonbare oppervlakte van maar liefst 180 m² biedt het tal van indelingsmogelijkheden. Dankzij het EPC-label B is het bovendien een energiezuinige woonst met doorgaans lagere verbruikskosten. Mogelijkheid om garage naast de deur te huren.
Indeling:
- Leefruimte: het ruime oppervlakte maakt het eenvoudig om een comfortabele woon- en eetruimte te creëren.
- Slaap- en werkruimtes: de beschikbare oppervlakte kan worden ingedeeld volledig aanpasbaar aan uw wensen.
- De kelderverdieping biedt extra mogelijkheden: als bijkomende woonruimte of als ruime stockagezone, afhankelijk van uw noden.
Kenmerken:
- Lift aanwezig
- Twee aparte ingangen: beide niveaus kunnen volledig afzonderlijk worden gebruikt.
- Per entiteit is er een eigen teller voorzien: aparte tellers en centrale verwarming op aardgas, wat een autonoom energiebeheer mogelijk maakt.
Indien geïnteresseerd, twijfel dan zeker niet om contact op te nemen op 0472 18 70 08 of simon.van.canneyt@dewaele.com
Opmerking: De bijgevoegde AI-visualisaties dienen louter ter inspiratie. Ze houden geen rekening met technische limieten, stedenbouwkundige voorschriften of de feitelijke realisatiemogelijkheden.
Indeling:
- Leefruimte: het ruime oppervlakte maakt het eenvoudig om een comfortabele woon- en eetruimte te creëren.
- Slaap- en werkruimtes: de beschikbare oppervlakte kan worden ingedeeld volledig aanpasbaar aan uw wensen.
- De kelderverdieping biedt extra mogelijkheden: als bijkomende woonruimte of als ruime stockagezone, afhankelijk van uw noden.
Kenmerken:
- Lift aanwezig
- Twee aparte ingangen: beide niveaus kunnen volledig afzonderlijk worden gebruikt.
- Per entiteit is er een eigen teller voorzien: aparte tellers en centrale verwarming op aardgas, wat een autonoom energiebeheer mogelijk maakt.
Indien geïnteresseerd, twijfel dan zeker niet om contact op te nemen op 0472 18 70 08 of simon.van.canneyt@dewaele.com
Opmerking: De bijgevoegde AI-visualisaties dienen louter ter inspiratie. Ze houden geen rekening met technische limieten, stedenbouwkundige voorschriften of de feitelijke realisatiemogelijkheden.
Energie
Op de kaart

Financieel
| Prijs | |
|---|---|
| Kadastraal inkomen (niet geïndexeerd) | € 1.341 |
Berekening kosten
Je aankoopkosten? Die heb je snel berekend via de knop hieronder.
Bijkomende info
Gebouw
| Bouwjaar | 1966 |
|---|---|
| Staat | Op te frissen |
| Verdieping | 0 |
| Badkamers | 1 |
| Slaapkamers | 1 |
| Toiletten | 0 |
Uitrusting
| Investeringspand | Nee |
|---|---|
| Parking | Nee |
| Garage | Ja |
| Thuiskantoor | Ja |
| Opslagruimte | Nee |
| Tuin | Nee |
| Terras | Nee |
| Lift | Ja |
Een pand van
Dewaele Vastgoed
Dewaele Real Estate nv
Dewaele Real Estate nv
D8000-A2238
Leer meer over vastgoed
23 March 2026
Op Spotto zoeken als een pro: 10 slimme tips
21 March 2026
Hoeveel kan ik lenen om een huis te kopen?
01 March 2026
Wanneer heb ik een bouwvergunning of omgevingsvergunning nodig?
17 February 2026