Volledig gerenoveerd hoekappartement gelegen op enkele stappen van de zee en de Lippenslaan
€ 565.000
Een pand van Knokke Homes
Favoriet
Jouw zoektocht
Jouw scoretabel voor dit pand
Aan het laden...
Jouw geplande bezichtigingen
Aan het laden...
Overzicht
- 62 m² bewoonbaar
- 62 m² grond
- 2 Slaapkamer(s)
- 1 Badkamer(s)
Beschrijving
Volledig gerenoveerd hoekappartement gelegen op enkele stappen van de zee en de Lippenslaan.
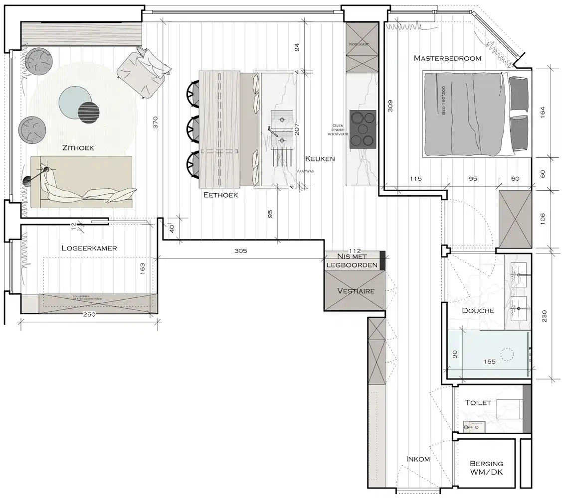
Indeling: inkom met vestiaire en toilet. Berging met aansluiting voor een wasmachine. Lichtrijke leefruimte met een volledig geïnstalleerde open keuken met eiland en aanpalend de eethoek, salon. Masterbedroom met ingemaakte kasten. Tweede slaapkamer voorzien van een ingemaakt stapelbed. Douchekamer.
Fietsenberging op gelijkvloers.
Meubels inbegrepen.
info en bezoek via de 050 760 760
Indeling: inkom met vestiaire en toilet. Berging met aansluiting voor een wasmachine. Lichtrijke leefruimte met een volledig geïnstalleerde open keuken met eiland en aanpalend de eethoek, salon. Masterbedroom met ingemaakte kasten. Tweede slaapkamer voorzien van een ingemaakt stapelbed. Douchekamer.
Fietsenberging op gelijkvloers.
Meubels inbegrepen.
info en bezoek via de 050 760 760
Volledig gerenoveerd hoekappartement gelegen op enkele stappen van de zee en de Lippenslaan.
Indeling: inkom met vestiaire en toilet. Berging met aansluiting voor een wasmachine. Lichtrijke leefruimte met een volledig geïnstalleerde open keuken met eiland en aanpalend de eethoek, salon. Masterbedroom met ingemaakte kasten. Tweede slaapkamer voorzien van een ingemaakt stapelbed. Douchekamer.
Fietsenberging op gelijkvloers.
Meubels inbegrepen.
info en bezoek via de 050 760 760
Indeling: inkom met vestiaire en toilet. Berging met aansluiting voor een wasmachine. Lichtrijke leefruimte met een volledig geïnstalleerde open keuken met eiland en aanpalend de eethoek, salon. Masterbedroom met ingemaakte kasten. Tweede slaapkamer voorzien van een ingemaakt stapelbed. Douchekamer.
Fietsenberging op gelijkvloers.
Meubels inbegrepen.
info en bezoek via de 050 760 760
Energie
![]() |
- EPC Certificaat: 2187545
- Energieverbruik: 164 kWh/m²/jaar
- E-peil: E0
- Beglazing: Onbekend
Op de kaart

Financieel
| Prijs |
|---|
Berekening kosten
Je aankoopkosten? Die heb je snel berekend via de knop hieronder.
Bijkomende info
Gebouw
| Renovatie jaar | 2023 |
|---|---|
| Bouwcertificaat | Nee |
| Bewoonbaar (m²) | 62 |
| Verdieping | 3 |
| Badkamers | 1 |
| Slaapkamers | 2 |
| Verdiepingen | 4 |
| Garages | 0 |
| Parkeerplaatsen | 0 |
| Toiletten | 0 |
Faciliteiten
| Septische tank | Nee |
|---|
Perceel
| Overstromingsgevoelig | Geen |
|---|---|
| P-score | C |
| G-score | C |
| Totale oppervlakte (m²) | 62 |
| Bebouwde oppervlakte (m²) | 0 |
Vergunning
| Verkavelingsvergunning | Geen beschikbaar |
|---|
Uitrusting
| Investeringspand | Nee |
|---|---|
| Parking | Nee |
| Garage | Nee |
| Lift | Ja |
| Rioolaansluiting | Nee |
| Gasaansluiting | Nee |
| Wateraansluiting | Nee |
| Elektriciteitsaansluiting | Nee |
| Internetaansluiting | Nee |
| Telefoonaansluiting | Nee |
| Zonnepanelen | Nee |
| Zonneboiler | Nee |
| Alarm | Nee |
| Videofoon | Nee |
| Grondwaterput | Nee |
Appartementsblok
| Aantal verdiepingen | 4 |
|---|---|
| Lift | Ja |
| Intercom | Nee |
Een pand van
Knokke Homes
Knokke Homes - Uw ideale vastgoedpartner aan zee
Knokke Homes is een familiaal vastgoedbedrijf met twee kantoren in Knokke-Heist.
Ons kantoor in Duinbergen is gelegen op de hoek van de Zeedijk en de Majoor Quaillestraat rechtover de zeilclub RBSC, en ons kantoor in het Zoute is gelegen op de zeedijk nr. 673.
Alhoewel het een jonge familiale onderneming betreft, kunnen de dynamische bestuurders reeds beroep doen op een actieve ervaring van meer dan 20 jaar in het Knokse vastgoed. In deze periode verzamelden ze de nodige marktkennis om uw ideale partner te worden bij al uw vastgoedtransacties in en rond Knokke-Heist.
De activiteiten spitsen zich hoofdzakelijk toe op de verkoop en de verhuur van onroerend goed, maar ook rentmeesterschap & vakantieverhuur behoren tot het takenpakket waarmee Knokke Homes u van dienst kan zijn.
Dankzij hun gedrevenheid, hun ervaring en marktkennis kunnen zij de juiste persoon aan het juiste pand linken en u dus zo begeleiden in uw zoektocht naar uw ideale plek aan zee. Zoekt u een vakantie- of woonappartement, een rustig gelegen villa of een nieuwbouw met zicht op zee ? Wenst u een geschikte solvabele kandidaat te zoeken voor uw appartement of woning ?
Neem gerust contact op voor een vrijblijvend gesprek, wij staan u graag te woord.
TK563
Leer meer over vastgoed
23 March 2026
Op Spotto zoeken als een pro: 10 slimme tips
21 March 2026
Hoeveel kan ik lenen om een huis te kopen?
01 March 2026
Wanneer heb ik een bouwvergunning of omgevingsvergunning nodig?
17 February 2026
