Jouw zoektocht
Jouw scoretabel voor dit pand
Aan het laden...
Jouw geplande bezichtigingen
Aan het laden...
Overzicht
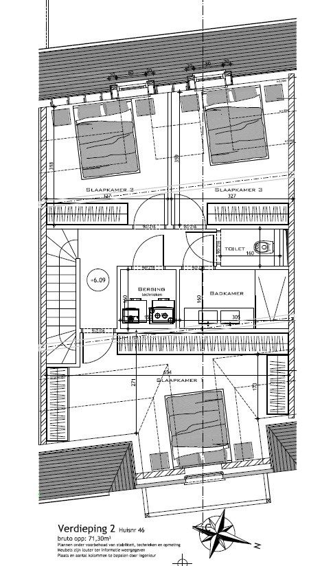
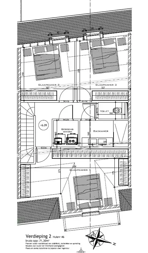
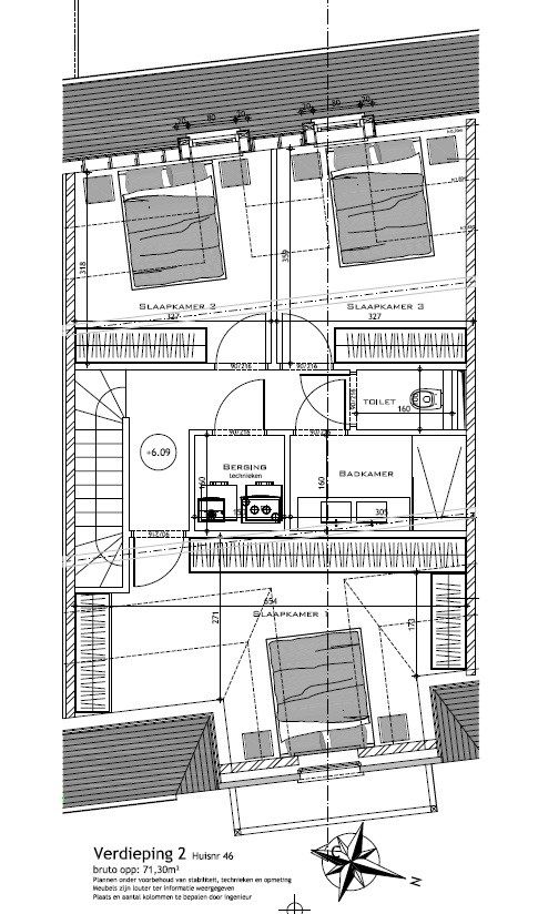
- 4 Slaapkamer(s)
- 3 Toilet(ten)
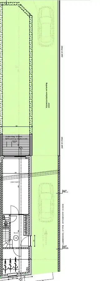
- 1 Tuin
- 2 Garage(s)
Beschrijving
Deze ruime nieuwbouwwoning, ontworpen door Project Architects, biedt biedt de mogelijkheid tot de uitoefening van een vrij beroep of kantoor op het gelijkvloers.
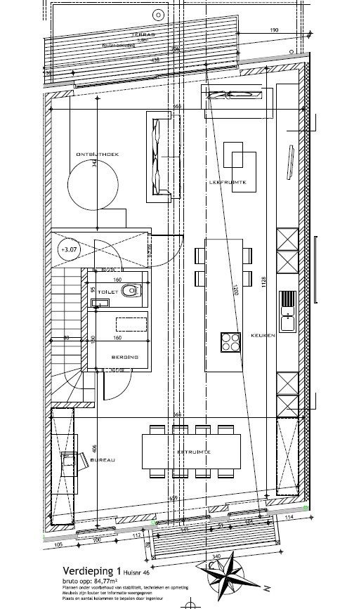
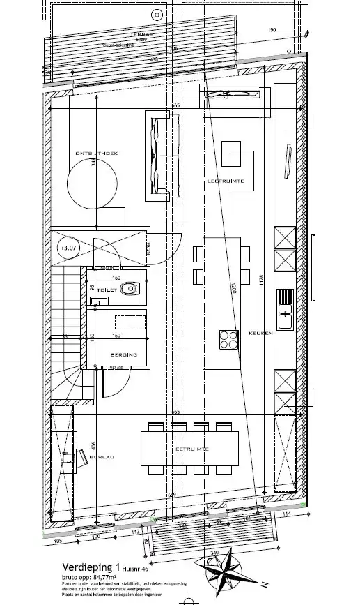
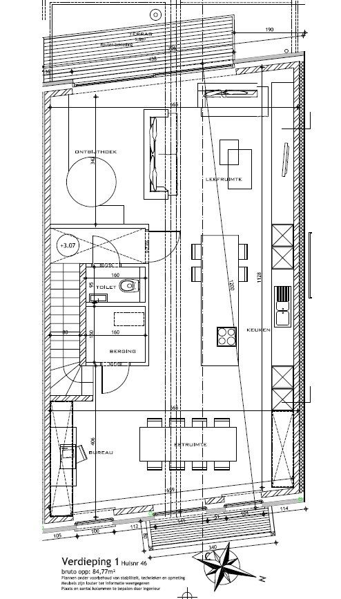
De casco woning omvat onder andere een ruime, brede leefruimte, vier slaapkamers, tuin, twee zonneterrassen en een polyvalente ruimte met apart toilet op het gelijkvloers.
De afwerking is volledig naar eigen smaak te bepalen, waardoor u van deze woning een echte thuis kunt maken. Bovendien ligt de woning op een toplocatie, dicht bij alle commerciële voorzieningen. Een unieke kans voor wie modern en praktisch wil wonen!
Mogelijkheid tot aankoop van twee ruime garageboxen.
Bekijk de video op www.avantimmo.be
Bezoeken? Graag na afspraak met Avantimmo op het nummer 050 62 50 55
De casco woning omvat onder andere een ruime, brede leefruimte, vier slaapkamers, tuin, twee zonneterrassen en een polyvalente ruimte met apart toilet op het gelijkvloers.
De afwerking is volledig naar eigen smaak te bepalen, waardoor u van deze woning een echte thuis kunt maken. Bovendien ligt de woning op een toplocatie, dicht bij alle commerciële voorzieningen. Een unieke kans voor wie modern en praktisch wil wonen!
Mogelijkheid tot aankoop van twee ruime garageboxen.
Bekijk de video op www.avantimmo.be
Bezoeken? Graag na afspraak met Avantimmo op het nummer 050 62 50 55
Energie
- EPC Certificaat: nieuwbouw epb
- Verwarming: Geen
- Beglazing: Hoog efficient dubbel
Financieel
| Prijs | |
|---|---|
| Kadastraal inkomen (niet geïndexeerd) | € 0 |
| Kadastraal inkomen (geïndexeerd) | € 0 |
Bijkomende info
Gebouw
| Bouwjaar | 2025 |
|---|---|
| Is beschermd | Nee |
| Slaapkamers | 4 |
| Verdiepingen | 3 |
| Garages | 2 |
| Toiletten | 3 |
Faciliteiten
| Materiaal ramenomlijstingen | Aluminium |
|---|---|
| Beglazing | Hoog efficient dubbel |
| Luiken | Nee |
| Primair verwarmingstype | Geen verwarming |
| Brandstof primaire verwarming | Geen |
| Warm water type | Geen verwarming |
Perceel
| Overstromingsgevoelig | Geen |
|---|---|
| P-score | C |
| G-score | C |
| Bebouwde oppervlakte (m²) | 0 |
| Tuin oppervlakte (m²) | 0 |
| Oppervlakte terras (m²) | 0 |
Vergunning
| Vergunning | Vergunning beschikbaar |
|---|---|
| Verkavelingsvergunning | Geen beschikbaar |
| Type gebied | Stedelijk |
Uitrusting
| Meerdere eigenaars | Nee |
|---|---|
| Geschikt als kangoeroewoning | Nee |
| Geschikt voor rolstoelgebruikers | Nee |
| Geschikt voor praktijk | Ja |
| Volledig onderkelderd | Nee |
| Parking | Nee |
| Garage | Ja |
| Thuiskantoor | Ja |
| Kelder | Nee |
| Zolder | Nee |
| Opslagruimte | Ja |
| Tuin | Ja |
| Terras | Ja |
| Lift | Nee |
| Rioolaansluiting | Ja |
| Gasaansluiting | Ja |
| Wateraansluiting | Ja |
| Elektriciteitsaansluiting | Ja |
| TV aansluiting | Nee |
| Internetaansluiting | Nee |
| Zonnepanelen | Nee |
| Zonneboiler | Nee |
| Alarm | Nee |
| Zwembad | Nee |
| Jacuzzi | Nee |
| Toonzaal | Nee |
| Ventilatie | Nee |
Een pand van
Avantimmo
Immo te koop en te huur in Knokke-Heist en omgeving
Het familiekantoor Avantimmo werd in 1994 opgericht en is ontstaan uit een jarenlange ervaring en samenwerking in de vastgoedsector van Knokke-Heist en omgeving.
We zijn gespecialiseerd in verkoop, verhuur en nieuwbouw. Een professionele en persoonlijke aanpak met uitstekende service is één van onze vele troeven. U kunt ons vinden in de Lippenslaan, hartje Knokke-Heist, dankzij de talrijke passanten krijgt onze etalage veel aandacht.
A12004-46C
Leer meer over vastgoed
23 March 2026
Op Spotto zoeken als een pro: 10 slimme tips
21 March 2026
Hoeveel kan ik lenen om een huis te kopen?
01 March 2026
Wanneer heb ik een bouwvergunning of omgevingsvergunning nodig?
17 February 2026