Res. Westlane - Handelspand op topligging te Knokke
€ 699.000
Een pand van Willem Cauwels Real Estate
Favoriet
Jouw zoektocht
Jouw scoretabel voor dit pand
Aan het laden...
Jouw geplande bezichtigingen
Aan het laden...
Overzicht
- 133 m² bewoonbaar
- 133 m² grond
Beschrijving
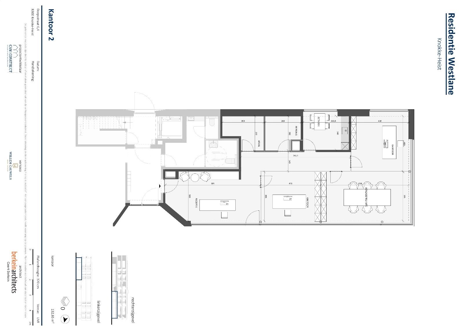
In de prestigieuze Residentie Westlane komt een ruime handelsruimte (133 m²) op het gelijkvloers te koop. Dankzij de ligging met een goede zichtbaarheid vanaf de Natiënlaan is dit een absolute toplocatie voor wie wil ondernemen met uitstraling.
Hoewel het pand rustig ligt aan de achterzijde, geniet u nog steeds van uitstekende toegankelijkheid. Extra troeven zijn de mogelijkheid tot aankoop van privéstaanplaatsen achter het gebouw en de publieke parking in de buurt, waardoor klanten en bezoekers eenvoudig kunnen parkeren. Ook het Fastnet laadpunt naast de residentie is een grote meerwaarde. Het pand ligt bovendien op wandelafstand van het centrum van Westkapelle, scholen en lokale handelaars, wat het aantrekkelijk maakt voor zowel commerciële als dienstverlenende activiteiten.
Dit pand wordt casco aangeboden, waardoor u volledige vrijheid heeft om de ruimte in te richten volgens uw eigen visie. De beschikbare indelingsplannen geven alvast inspiratie voor een efficiënte en functionele inrichting.
Dit handelspand biedt een uitstekende opportuniteit voor ondernemers die een stijlvolle en goed bereikbare locatie zoeken, of voor investeerders die kiezen voor een eigendom met sterke verhuurpotentie.
Meer informatie? Contacteer Wilem Cauwels Real Estate: 050/89.27.70
Hoewel het pand rustig ligt aan de achterzijde, geniet u nog steeds van uitstekende toegankelijkheid. Extra troeven zijn de mogelijkheid tot aankoop van privéstaanplaatsen achter het gebouw en de publieke parking in de buurt, waardoor klanten en bezoekers eenvoudig kunnen parkeren. Ook het Fastnet laadpunt naast de residentie is een grote meerwaarde. Het pand ligt bovendien op wandelafstand van het centrum van Westkapelle, scholen en lokale handelaars, wat het aantrekkelijk maakt voor zowel commerciële als dienstverlenende activiteiten.
Dit pand wordt casco aangeboden, waardoor u volledige vrijheid heeft om de ruimte in te richten volgens uw eigen visie. De beschikbare indelingsplannen geven alvast inspiratie voor een efficiënte en functionele inrichting.
Dit handelspand biedt een uitstekende opportuniteit voor ondernemers die een stijlvolle en goed bereikbare locatie zoeken, of voor investeerders die kiezen voor een eigendom met sterke verhuurpotentie.
Meer informatie? Contacteer Wilem Cauwels Real Estate: 050/89.27.70
Energie
![]() |
- EPC Certificaat: EPB
- Beglazing: Hoog efficient dubbel
Op de kaart

Financieel
| Prijs | |
|---|---|
| Kadastraal inkomen (niet geïndexeerd) | € 0 |
| Kadastraal inkomen (geïndexeerd) | € 0 |
Bijkomende info
Gebouw
| Bouwjaar | 2026 |
|---|---|
| Is beschermd | Nee |
| Bewoonbaar (m²) | 133 |
| Verdieping | 0 |
| Verdiepingen | 2 |
Faciliteiten
| Materiaal ramenomlijstingen | Aluminium |
|---|---|
| Beglazing | Hoog efficient dubbel |
| Luiken | Nee |
| Primaire verwarmingsbron | Bodemwater warmtepomp (geothermisch) |
| Primaire verwarming | Vloerverwarming |
| Warm water type | Geen verwarming |
Perceel
| Overstromingsgevoelig | Geen |
|---|---|
| P-score | C |
| G-score | C |
| Voorkeurrecht | Nee |
| Totale oppervlakte (m²) | 133 |
Vergunning
| Vergunning | Vergunning beschikbaar |
|---|---|
| Verkavelingsvergunning | Geen beschikbaar |
| Bouwovertreding dagvaardiging | Geen |
| Type gebied | Stedelijk |
Uitrusting
| Meerdere eigenaars | Nee |
|---|---|
| Geschikt als kangoeroewoning | Nee |
| Geschikt voor rolstoelgebruikers | Nee |
| Geschikt voor praktijk | Nee |
| Volledig onderkelderd | Nee |
| Parking | Ja |
| Garage | Nee |
| Thuiskantoor | Nee |
| Kelder | Nee |
| Zolder | Nee |
| Opslagruimte | Nee |
| Tuin | Nee |
| Terras | Nee |
| Lift | Ja |
| Rioolaansluiting | Ja |
| Gasaansluiting | Nee |
| Wateraansluiting | Ja |
| Elektriciteitsaansluiting | Ja |
| TV aansluiting | Ja |
| Internetaansluiting | Ja |
| Zonnepanelen | Ja |
| Zonneboiler | Nee |
| Alarm | Nee |
| Zwembad | Nee |
| Jacuzzi | Nee |
| Toonzaal | Nee |
| Ventilatie | Ja |
Appartementsblok
| Aantal verdiepingen | 2 |
|---|---|
| Lift | Ja |
| Intercom | Ja |
Een pand van
Willem Cauwels Real Estate
Willem Cauwels Real Estate
Willem Cauwels Real Estate
2629
Leer meer over vastgoed
04 January 2026
Zoek je een kantoor, een magazijn of… iets ertussenin? Bedrijfsvastgoed uitgelegd
05 November 2024
Bedrijfsvastgoed in transitie: ontdek de toekomst van werkplekken
16 October 2024
Opbrengsteigendom: een slim pad naar passief inkomen en vermogensgroei
09 September 2024
