Beschikbaar vanaf 1 feb. 2026
In optie Nieuw Virtual tour
3 slpk hoekappartement in het commercieel centrum!
€ 234.800
Langestraat 51/1.3 - 8370 Blankenberge
Een pand van Altro Vastgoed Brugge
Overzicht
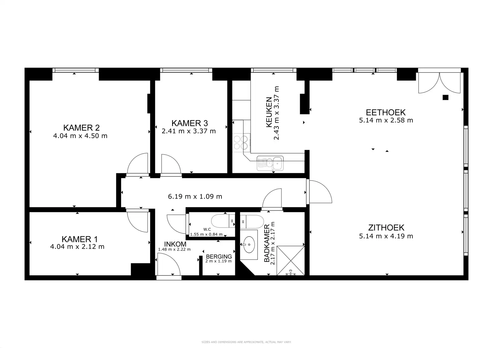
- 98 m² bewoonbaar
- 98 m² grond
- 3 Slaapkamer(s)
- 2 Badkamer(s)
- 1 Living(s)
Overstromingsgevaar gebouw
Overstromingsgevaar perceel
Beschrijving
ALTRO VASTGOED VERKOOPT
Ontdek dit modern hoekappartement op een absolute topligging in Blankenberge, gelegen in het commerciële hart van de stad in de Langestraat 51, op de eerste verdieping boven de Veritas en letterlijk op een steenworp van de zeedijk.
Dit volledig ingerichte én gemeubelde appartement combineert comfort, ruimte en een uitzonderlijke ligging aan zee, ideaal als tweede verblijf, vaste woonst of zorgeloze investering. Dankzij de hoekligging geniet u van een zeer lichtrijke en ruime leefruimte, aansluitend op een open keuken, terwijl de nachthal toegang biedt tot een praktische berging, een apart toilet, de badkamer en drie volwaardige, ruime slaapkamers. Met zijn puike EPC-label C, conforme elektrische keuring, PVC-ramen met dubbele beglazing, centrale verwarming op aardgas met nieuwe collectieve condensatieketel en een nieuw geïsoleerd dak biedt dit appartement ook op technisch vlak extra zekerheid. Bovendien wordt het verkocht inclusief volledige inboedel en inrichting, én is er een ruime kelder inbegrepen. Een unieke kans voor wie wil genieten van het leven aan zee met het hele gezin, of wie op zoek is naar een appartement met sterke verhuur- en gebruiksmogelijkheden op een van de meest gegeerde locaties van Blankenberge.
Interesse? Contacteer vastgoedmakelaar Wim Gevaert en plan vandaag uw bezoek via 0473 70 40 71 (7/7) of wim@altro-vastgoed.be
Ontdek dit modern hoekappartement op een absolute topligging in Blankenberge, gelegen in het commerciële hart van de stad in de Langestraat 51, op de eerste verdieping boven de Veritas en letterlijk op een steenworp van de zeedijk.
Dit volledig ingerichte én gemeubelde appartement combineert comfort, ruimte en een uitzonderlijke ligging aan zee, ideaal als tweede verblijf, vaste woonst of zorgeloze investering. Dankzij de hoekligging geniet u van een zeer lichtrijke en ruime leefruimte, aansluitend op een open keuken, terwijl de nachthal toegang biedt tot een praktische berging, een apart toilet, de badkamer en drie volwaardige, ruime slaapkamers. Met zijn puike EPC-label C, conforme elektrische keuring, PVC-ramen met dubbele beglazing, centrale verwarming op aardgas met nieuwe collectieve condensatieketel en een nieuw geïsoleerd dak biedt dit appartement ook op technisch vlak extra zekerheid. Bovendien wordt het verkocht inclusief volledige inboedel en inrichting, én is er een ruime kelder inbegrepen. Een unieke kans voor wie wil genieten van het leven aan zee met het hele gezin, of wie op zoek is naar een appartement met sterke verhuur- en gebruiksmogelijkheden op een van de meest gegeerde locaties van Blankenberge.
Interesse? Contacteer vastgoedmakelaar Wim Gevaert en plan vandaag uw bezoek via 0473 70 40 71 (7/7) of wim@altro-vastgoed.be
Ontdek dit modern hoekappartement op een absolute topligging in Blankenberge, gelegen in het commerciële hart van de stad in de Langestraat 51, op de eerste verdieping boven de Veritas en letterlijk op een steenworp van de zeedijk.
Dit volledig ingerichte én gemeubelde appartement combineert comfort, ruimte en een uitzonderlijke ligging aan zee, ideaal als tweede verblijf, vaste woonst of zorgeloze investering. Dankzij de hoekligging geniet u van een zeer lichtrijke en ruime leefruimte, aansluitend op een open keuken, terwijl de nachthal toegang biedt tot een praktische berging, een apart toilet, de badkamer en drie volwaardige, ruime slaapkamers. Met zijn puike EPC-label C, conforme elektrische keuring, PVC-ramen met dubbele beglazing, centrale verwarming op aardgas met nieuwe collectieve condensatieketel en een nieuw geïsoleerd dak biedt dit appartement ook op technisch vlak extra zekerheid. Bovendien wordt het verkocht inclusief volledige inboedel en inrichting, én is er een ruime kelder inbegrepen. Een unieke kans voor wie wil genieten van het leven aan zee met het hele gezin, of wie op zoek is naar een appartement met sterke verhuur- en gebruiksmogelijkheden op een van de meest gegeerde locaties van Blankenberge.
Interesse?
Dit volledig ingerichte én gemeubelde appartement combineert comfort, ruimte en een uitzonderlijke ligging aan zee, ideaal als tweede verblijf, vaste woonst of zorgeloze investering. Dankzij de hoekligging geniet u van een zeer lichtrijke en ruime leefruimte, aansluitend op een open keuken, terwijl de nachthal toegang biedt tot een praktische berging, een apart toilet, de badkamer en drie volwaardige, ruime slaapkamers. Met zijn puike EPC-label C, conforme elektrische keuring, PVC-ramen met dubbele beglazing, centrale verwarming op aardgas met nieuwe collectieve condensatieketel en een nieuw geïsoleerd dak biedt dit appartement ook op technisch vlak extra zekerheid. Bovendien wordt het verkocht inclusief volledige inboedel en inrichting, én is er een ruime kelder inbegrepen. Een unieke kans voor wie wil genieten van het leven aan zee met het hele gezin, of wie op zoek is naar een appartement met sterke verhuur- en gebruiksmogelijkheden op een van de meest gegeerde locaties van Blankenberge.
Interesse?
Energie
![]() |
- EPC Certificaat: 202504280003587976RES1
- Energieverbruik: 219 kWh/m²/jaar
- Verwarming: Gas
- Beglazing: Onbekend
Downloads
- OVAM (pdf)
- Stedenbouw (pdf)
- Kadastraal plan (pdf)
- Watertoets (pdf)
- EPC (pdf)
- Elektrische keuring (pdf)
- Asbest inventaris (pdf)
- Plan.jpg (jpg)
Financieel
| Prijs | |
|---|---|
| Kadastraal inkomen (niet geïndexeerd) | € 1.019 |
| Kadastraal inkomen (geïndexeerd) | € 1.019 |
Berekening kosten
Je aankoopkosten? Die heb je snel berekend via de knop hieronder.
Bijkomende info
Gebouw
| Bouwjaar | 1967 |
|---|---|
| Staat | Goed onderhouden |
| Is beschermd | Nee |
| Bewoonbaar (m²) | 98 |
| Verdieping | 1 |
| Gevels | 2 |
| Gevelbreedte | 7 |
| Zolder | 0 |
| Kelder | 2 |
| Badkamers | 2 |
| Slaapkamers | 3 |
| Verdiepingen | 5 |
| Garages | 0 |
| Keukens | 2 |
| Leefruimtes | 1 |
| Kantoorruimtes | 0 |
| Parkeerplaatsen | 0 |
| Opslagruimtes | 0 |
| Toiletten | 0 |
Ruimtes
| Slaapkamer | 8.5 m² |
|---|---|
| Slaapkamer | 18 m² |
| Slaapkamer | 8 m² |
| Leefruimte | 34.5 m² |
| Keuken | 8 m² |
Faciliteiten
| Luiken | Nee |
|---|---|
| Primair verwarmingstype | Centrale verwarming |
| Brandstof primaire verwarming | Gas |
| Brandstof type | Geen |
| Elektrisch keuringsattest | Ja |
| Septische tank | Nee |
Perceel
| Overstromingsgevoelig | Overstromingsgevoelig (vastgesteld) |
|---|---|
| P-score | D |
| G-score | D |
| Voorkeurrecht | Nee |
| Totale oppervlakte (m²) | 98 |
Vergunning
| Vergunning | Vergunning beschikbaar |
|---|---|
| Verkavelingsvergunning | Geen beschikbaar |
Uitrusting
| Parking | Nee |
|---|---|
| Garage | Nee |
| Kelder | Ja |
| Zolder | Nee |
| Opslagruimte | Nee |
| Tuin | Nee |
| Terras | Nee |
| Lift | Ja |
| Rioolaansluiting | Ja |
| Gasaansluiting | Ja |
| Wateraansluiting | Ja |
| Elektriciteitsaansluiting | Ja |
| Zonnepanelen | Nee |
| Zonneboiler | Nee |
| Thuisbatterij | Nee |
| Alarm | Nee |
| Zwembad | Nee |
| Sauna | Nee |
| Jacuzzi | Nee |
| Videofoon | Nee |
| Domotica | Nee |
| Regenwaterput | Nee |
| Ventilatie | Nee |
Appartementsblok
| Aantal verdiepingen | 5 |
|---|---|
| Lift | Ja |
| Ondergrondse parking | Nee |
| Intercom | Nee |
Een pand van
Altro Vastgoed Brugge
Wij verkopen uw vastgoed, anders én beter!
Bij Altro Vastgoed vinden we een persoonlijke aanpak erg belangrijk, hierbij stellen we de klant steeds centraal en staan we hem/haar bij in het complexe proces van verkopen, aankopen, verhuren en huren van vastgoed. We beschikken over een kwalitatief kantorennetwerk in Vlaanderen en Brussel met een sterke, lokale verankering.
4917
Leer meer over vastgoed
01 March 2026
Wanneer heb ik een bouwvergunning of omgevingsvergunning nodig?
17 February 2026
Hoe breng ik een bod uit op een woning?
24 November 2025
Uitgezocht voor jouw gemeente: Hoeveel stijgt de waarde van je woning door een renovatie?
22 October 2025
