Eigentijds nieuwbouwproject vlakbij de Zeedijk
Een pand van Agence Callier
Favoriet
Jouw zoektocht
Jouw scoretabel voor dit pand
Aan het laden...
Jouw geplande bezichtigingen
Aan het laden...
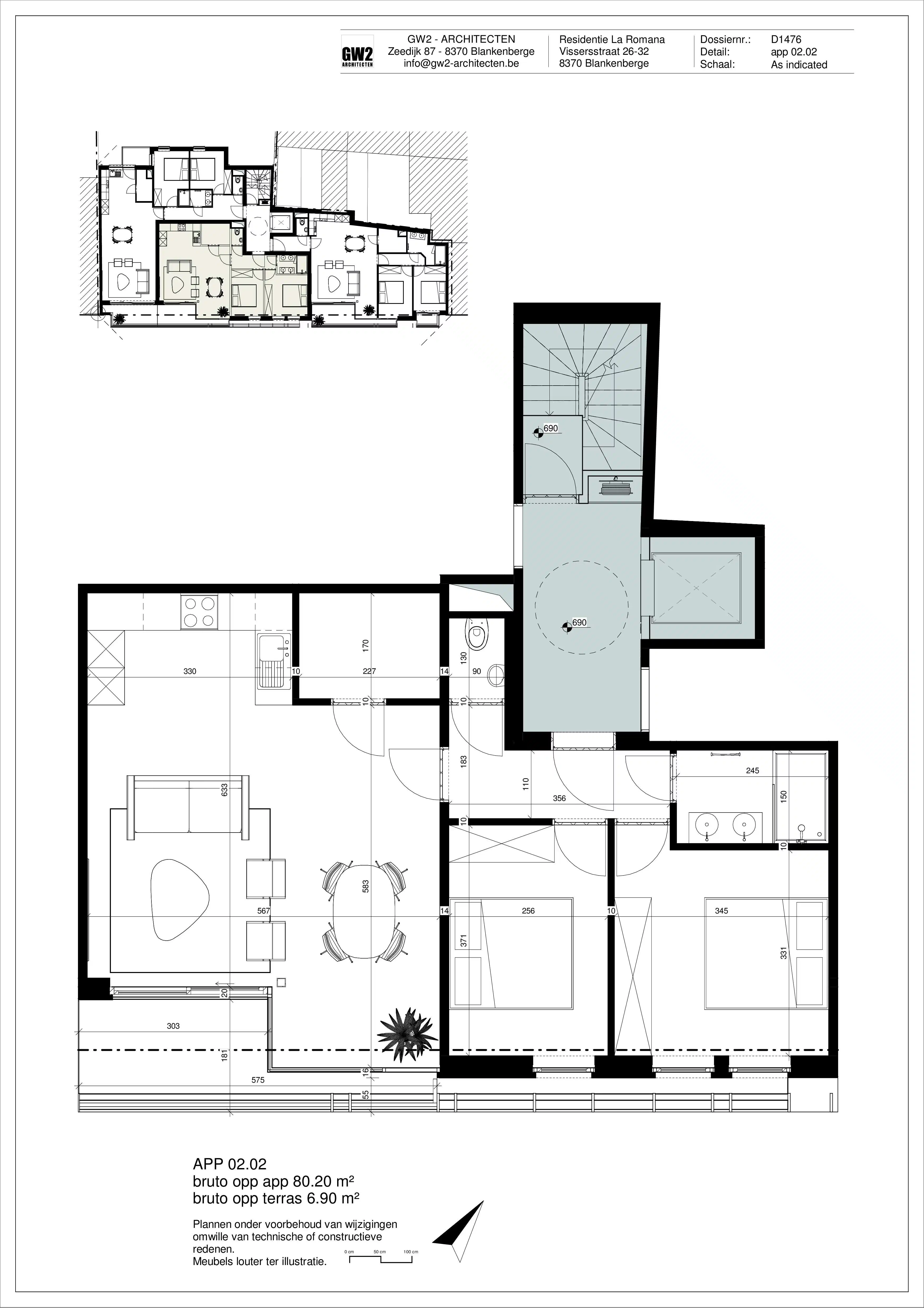
Overzicht
- 2 Slaapkamer(s)
- 1 Badkamer(s)
- 1 Toilet(ten)
- 1 Living(s)
Beschrijving
“La Romana” is een eigentijds nieuwbouwproject vlakbij de Zeedijk en pal in het centrum van Blankenberge bestaande uit:
-drie typeverdiepingen met telkens 3 ruime 2-slaapkamerappartementen;
-drie penthouses op de bovenste verdiepingen.
Deze BEN-appartementen worden gekenmerkt door hun grote leefruimtes, fantastische terrassen en ruime slaapkamers. De penthouses hebben allen 2 slaapkamers (1 boven - 1 beneden), 2 badkamers (1 boven - 1 beneden) en meerdere terrassen.
+++ Elk appartement heeft zonnepanelen.
+++ Individuele warmtepomp / vloerverwarming.
+++ Vuilnislokaal.
+++ Autostandplaatsen in de onmiddellijke buurt.
+++ Veel bergruimte: ruime berging in het appartment + extra grote individuele bergingen op het gelijkvloers met plaats voor fietsen.
+++ Mogelijkheid om aan te kopen aan 6 % BTW.
-drie typeverdiepingen met telkens 3 ruime 2-slaapkamerappartementen;
-drie penthouses op de bovenste verdiepingen.
Deze BEN-appartementen worden gekenmerkt door hun grote leefruimtes, fantastische terrassen en ruime slaapkamers. De penthouses hebben allen 2 slaapkamers (1 boven - 1 beneden), 2 badkamers (1 boven - 1 beneden) en meerdere terrassen.
+++ Elk appartement heeft zonnepanelen.
+++ Individuele warmtepomp / vloerverwarming.
+++ Vuilnislokaal.
+++ Autostandplaatsen in de onmiddellijke buurt.
+++ Veel bergruimte: ruime berging in het appartment + extra grote individuele bergingen op het gelijkvloers met plaats voor fietsen.
+++ Mogelijkheid om aan te kopen aan 6 % BTW.
Energie
![]() |
- Energieverbruik: 30 kWh/m²/jaar
Op de kaart

Financieel
| Prijs |
|---|
Berekening kosten
Je aankoopkosten? Die heb je snel berekend via de knop hieronder.
Bijkomende info
Gebouw
| Staat | Nieuw |
|---|---|
| Badkamers | 1 |
| Slaapkamers | 2 |
| Verdiepingen | 2 |
| Keukens | 0 |
| Leefruimtes | 1 |
| Opslagruimtes | 1 |
| Toiletten | 1 |
Faciliteiten
| Keuken uitrusting | Luxueus uitgerust |
|---|---|
| Primair verwarmingstype | Centrale verwarming |
Perceel
| Overstromingsgevoelig | Geen |
|---|---|
| P-score | B |
| G-score | B |
| Voorkeurrecht | Nee |
Vergunning
| Vergunning | Vergunning beschikbaar |
|---|---|
| Verkavelingsvergunning | Geen beschikbaar |
| Bouwovertreding | Geen |
Uitrusting
| Tuin | Nee |
|---|---|
| Terras | Ja |
| Lift | Ja |
| Rioolaansluiting | Ja |
| Gasaansluiting | Ja |
| Wateraansluiting | Ja |
| Elektriciteitsaansluiting | Ja |
| TV aansluiting | Ja |
| Internetaansluiting | Ja |
| Zonneboiler | Ja |
| Videofoon | Nee |
Een pand van
Agence Callier
UW VASTGOEDMAKELAAR IN BLANKENBERGE SINDS 1913
Bij Agence Callier kan u steeds terecht met al uw vastgoedvragen. Wij helpen u graag bij het kopen/verkopen, huren/verhuren of beheren van uw vastgoed te Blankenberge en dit al meer dan 100 jaar lang.
Wenst u uw vakantie door te brengen aan de parel van de kust? Ook dan is Agence Callier uw ideale partner. Wij beschikken over een ruim en kwalitatief aanbod vakantieappartementen met zicht op de jachthaven of de zeedijk.
Leer meer over vastgoed
23 March 2026
Op Spotto zoeken als een pro: 10 slimme tips
21 March 2026
Hoeveel kan ik lenen om een huis te kopen?
01 March 2026
Wanneer heb ik een bouwvergunning of omgevingsvergunning nodig?
17 February 2026
