Opbrengsteigendom op toplocatie in Blankenberge
€ 498.800
Koning Albert-I-laan 36 - 8370 Blankenberge
Een pand van Altro Vastgoed Brugge
Jouw zoektocht
Overzicht
- 220 m² bewoonbaar
- 151 m² grond
- 5 Slaapkamer(s)
- 1 Badkamer(s)
- 1 Living(s)
- 1 Garage(s)
Overstromingsgevaar gebouw
Overstromingsgevaar perceel
Beschrijving
ALTRO VASTGOED VERKOOPT Unieke Opbrengsteigendom op Toplocatie in Blankenberge.
Bent u op zoek naar een zorgeloze investering met een gegarandeerd rendement? Dit volledig vergunde en reeds verhuurde appartementsgebouw biedt u een zeldzame kans op een strategische locatie in Blankenberge. Troeven van het pand: Topligging: Gelegen in een rustige doch centrale buurt, vlakbij zee en alle nodige voorzieningen. Direct Rendement: Het gebouw bestaat uit drie appartementen die momenteel alle drie verhuurd zijn. Extra Ruimte: Het pand beschikt over een ruime kelderverdieping en een inpandige garage – een enorme meerwaarde in de kuststad. Indeling van het gebouw: Gelijkvloers: Comfortabel 2-slaapkamer appartement. Eerste & Tweede verdieping: 2-slaapkamer appartementen. Beide verdiepingen beschikken over een identiek, ruimtelijk ingedeeld appartement. Het gebouw is volledig onderkelderd, wat zorgt voor uitzonderlijk veel stockageruimte voor de bewoners. De aanwezigheid van een eigen garage is in deze buurt een absolute troef en verhoogt de huurwaarde aanzienlijk. Kortom: Een uitstekend onderhouden opbrengsteigendom met een bewezen huurhistoriek op een toplocatie aan de Belgische kust. Perfect voor wie op zoek is naar stabiliteit en een mooi rendement. Interesse? Contacteer vastgoedmakelaar Wim via 0473 70 40 71 (7/7) of wim@altro-vastgoed.be voor een bezoek ter plaatse of meer informatie over de huurinkomsten.
Bent u op zoek naar een zorgeloze investering met een gegarandeerd rendement? Dit volledig vergunde en reeds verhuurde appartementsgebouw biedt u een zeldzame kans op een strategische locatie in Blankenberge, op wandelafstand van de zeedijk, het strand en het bruisende stadscentrum.
Troeven van het pand:
Topligging: Gelegen in een rustige doch centrale buurt, vlakbij zee en alle nodige voorzieningen.
Direct Rendement: Het gebouw bestaat uit drie appartementen die momenteel alle drie verhuurd zijn.
Extra Ruimte: Het pand beschikt over een ruime kelderverdieping en een inpandige garage – een enorme meerwaarde in de kuststad.
Indeling van het gebouw:
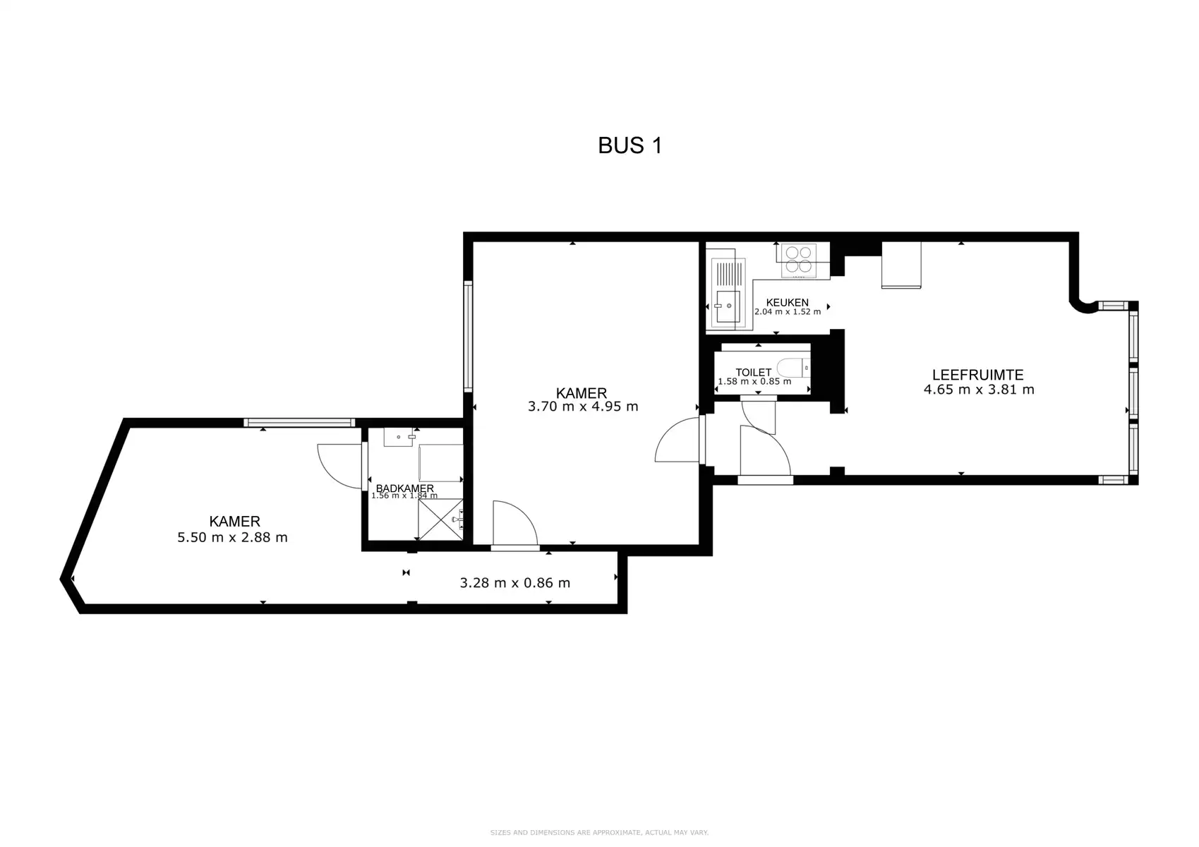
Gelijkvloers: Comfortabel 2-slaapkamer appartement. Een lichtrijk appartement voorzien van een gezellige leefruimte, een ingerichte keuken, een badkamer en twee ruime slaapkamers.
Eerste & Tweede verdieping: 2-slaapkamer appartementen. Beide verdiepingen beschikken over een identiek, ruimtelijk ingedeeld appartement. U vindt hier een leefruimte, een ingerichte keuken, een badkamer en twee volwaardige slaapkamers. Dankzij de grote raampartijen genieten deze appartementen van veel natuurlijk lichtinval.
Ondergronds & Extra: Het gebouw is volledig onderkelderd, wat zorgt voor uitzonderlijk veel stockageruimte voor de bewoners. De aanwezigheid van een eigen garage is in deze buurt een absolute troef en verhoogt de huurwaarde aanzienlijk.
Kortom:
Een uitstekend onderhouden opbrengsteigendom met een bewezen huurhistoriek op een toplocatie aan de Belgische kust. Perfect voor wie op zoek is naar stabiliteit en een mooi rendement.
Interesse? Contacteer ons vandaag nog voor een bezoek ter plaatse of meer informatie over de huurinkomsten.
Energie
![]() |
- EPC Certificaat: 20230202-0002685042-RES-2
- Energieverbruik: 228 kWh/m²/jaar
- Verwarming: Gas
- Beglazing: Standaard dubbel
Downloads
- Asbest inventaris (pdf)
- EK - APP 3.pdf (pdf)
- EK - APP 1.pdf (pdf)
- EK - GD.pdf (pdf)
- EK - APP 2.pdf (pdf)
- EPC (pdf)
- OVAM (pdf)
- Kadastraal plan (pdf)
Financieel
| Prijs | |
|---|---|
| Kadastraal inkomen (niet geïndexeerd) | € 1.383 |
Berekening kosten
Je aankoopkosten? Die heb je snel berekend via de knop hieronder.
Bijkomende info
Gebouw
| Bouwjaar | 1950 |
|---|---|
| Renovatie jaar | 2023 |
| Staat | Goed onderhouden |
| Is beschermd | Nee |
| Bewoonbaar (m²) | 220 |
| Verdieping | 0 |
| Gevels | 2 |
| Zolder | 0 |
| Kelder | 1 |
| Badkamers | 1 |
| Slaapkamers | 5 |
| Verdiepingen | 4 |
| Garages | 1 |
| Keukens | 3 |
| Leefruimtes | 1 |
| Kantoorruimtes | 0 |
| Parkeerplaatsen | 0 |
| Opslagruimtes | 0 |
| Toiletten | 0 |
Ruimtes
| Slaapkamer | 16 m² |
|---|---|
| Slaapkamer | 18 m² |
| Slaapkamer | 10.5 m² |
| Slaapkamer | 10.5 m² |
| Slaapkamer | 10.5 m² |
| Leefruimte | 20 m² |
| Keuken | 4 m² |
Faciliteiten
| Beglazing | Standaard dubbel |
|---|---|
| Luiken | Nee |
| Primair verwarmingstype | Decentrale verwarming |
| Brandstof primaire verwarming | Gas |
| Brandstof type | Geen |
| Elektrisch keuringsattest | Ja |
| Septische tank | Nee |
Perceel
| Overstromingsgevoelig | Overstromingsgevoelig (vastgesteld) |
|---|---|
| P-score | D |
| G-score | D |
| Voorkeurrecht | Nee |
| Totale oppervlakte (m²) | 151 |
Vergunning
| Vergunning | Vergunning beschikbaar |
|---|---|
| Verkavelingsvergunning | Geen beschikbaar |
Uitrusting
| Parking | Nee |
|---|---|
| Garage | Ja |
| Kelder | Ja |
| Zolder | Nee |
| Opslagruimte | Nee |
| Tuin | Nee |
| Terras | Nee |
| Lift | Nee |
| Rioolaansluiting | Ja |
| Gasaansluiting | Ja |
| Wateraansluiting | Ja |
| Elektriciteitsaansluiting | Ja |
| Zonnepanelen | Nee |
| Zonneboiler | Nee |
| Thuisbatterij | Nee |
| Alarm | Nee |
| Zwembad | Nee |
| Sauna | Nee |
| Jacuzzi | Nee |
| Videofoon | Nee |
| Domotica | Nee |
| Regenwaterput | Nee |
| Ventilatie | Nee |
