Jouw zoektocht
Jouw scoretabel voor dit pand
Aan het laden...
Jouw geplande bezichtigingen
Aan het laden...
Overzicht
- 150 m² bewoonbaar
- 3 Slaapkamer(s)
- 1 Badkamer(s)
- 1 Toilet(ten)
Beschrijving
Ontdek dit stijlvolle DUPLEX nieuwbouwappartement (150m² + 40m² terras) op de 6de & 7de verdieping van Residentie Eponine, een exclusief en kleinschalig woonproject waar hedendaagse architectuur en hoog wooncomfort harmonieus samenkomen.
Het gebouw onderscheidt zich door een elegante gevel met grote raampartijen en RUIME terrassen, dit allemaal op slechts 300m van zee/strand.
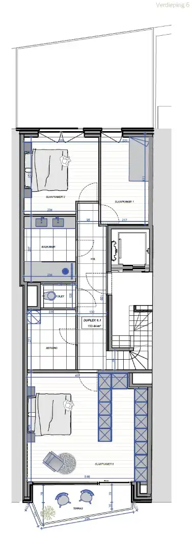
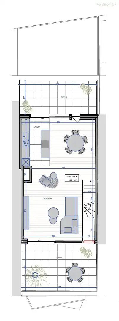
Indeling OPTIE B:
*6de verdiep: 3 slaapkamers, badkamer met inloopdouche, afzonderlijk toilet, berging, terras vooraan (6m²).
*7de: woonkamer, volledige ingerichte keuken, terras vooraan (21m²) - terras achteraan (15m²), privatieve gelijkvloerse berging, gemeenschappelijke fietsenberging.
- Ruime terrassen (40m²)
- Mogelijkheid op 6% BTW
- Betaalbaar en energiezuinig wonen
- 300m van zee/strand.
Het gebouw onderscheidt zich door een elegante gevel met grote raampartijen en RUIME terrassen, dit allemaal op slechts 300m van zee/strand.
Indeling OPTIE B:
*6de verdiep: 3 slaapkamers, badkamer met inloopdouche, afzonderlijk toilet, berging, terras vooraan (6m²).
*7de: woonkamer, volledige ingerichte keuken, terras vooraan (21m²) - terras achteraan (15m²), privatieve gelijkvloerse berging, gemeenschappelijke fietsenberging.
- Ruime terrassen (40m²)
- Mogelijkheid op 6% BTW
- Betaalbaar en energiezuinig wonen
- 300m van zee/strand.
Energie
![]() |
- E-peil: E30
- Beglazing: Hoog efficient dubbel
Op de kaart

Financieel
| Prijs | |
|---|---|
| Kadastraal inkomen (niet geïndexeerd) | € 0 |
| Kadastraal inkomen (geïndexeerd) | € 0 |
Bijkomende info
Gebouw
| Staat | Zo goed als nieuw |
|---|---|
| Is beschermd | Nee |
| Bewoonbaar (m²) | 150 |
| Verdieping | 6 |
| Badkamers | 1 |
| Slaapkamers | 3 |
| Toiletten | 1 |
Ruimtes
| Terras | 42 m² |
|---|
Faciliteiten
| Keuken | Open keuken |
|---|---|
| Keuken uitrusting | Standaard |
| Materiaal ramenomlijstingen | PVC |
| Beglazing | Hoog efficient dubbel |
| Luiken | Nee |
| Primaire verwarmingsbron | Bodemwater warmtepomp (geothermisch) |
| Primaire verwarming | Vloerverwarming |
| Warm water type | Geen verwarming |
Perceel
| Overstromingsgevoelig | Geen |
|---|---|
| Oppervlakte terras (m²) | 42 |
Vergunning
| Vergunning | Vergunning beschikbaar |
|---|---|
| Type gebied | Stedelijk |
Uitrusting
| Meerdere eigenaars | Nee |
|---|---|
| Geschikt als kangoeroewoning | Nee |
| Geschikt voor rolstoelgebruikers | Nee |
| Geschikt voor praktijk | Nee |
| Volledig onderkelderd | Nee |
| Parking | Nee |
| Garage | Nee |
| Thuiskantoor | Nee |
| Kelder | Nee |
| Zolder | Nee |
| Opslagruimte | Ja |
| Tuin | Nee |
| Terras | Ja |
| Lift | Ja |
| Rioolaansluiting | Ja |
| Gasaansluiting | Ja |
| Wateraansluiting | Ja |
| Elektriciteitsaansluiting | Ja |
| TV aansluiting | Nee |
| Internetaansluiting | Ja |
| Zonnepanelen | Nee |
| Zonneboiler | Nee |
| Alarm | Nee |
| Zwembad | Nee |
| Jacuzzi | Nee |
| Toonzaal | Nee |
| Ventilatie | Ja |
Appartementsblok
| Naam residentie | Eponine |
|---|---|
| Lift | Ja |
| Intercom | Nee |
Leer meer over vastgoed
23 March 2026
Op Spotto zoeken als een pro: 10 slimme tips
21 March 2026
Hoeveel kan ik lenen om een huis te kopen?
01 March 2026
Wanneer heb ik een bouwvergunning of omgevingsvergunning nodig?
17 February 2026
