RESIDENTIE PIGEON
€ 325.000
Een pand van Dermul Vastgoed en Beheer NV
Favoriet
Jouw zoektocht
Jouw scoretabel voor dit pand
Aan het laden...
Jouw geplande bezichtigingen
Aan het laden...
Overzicht
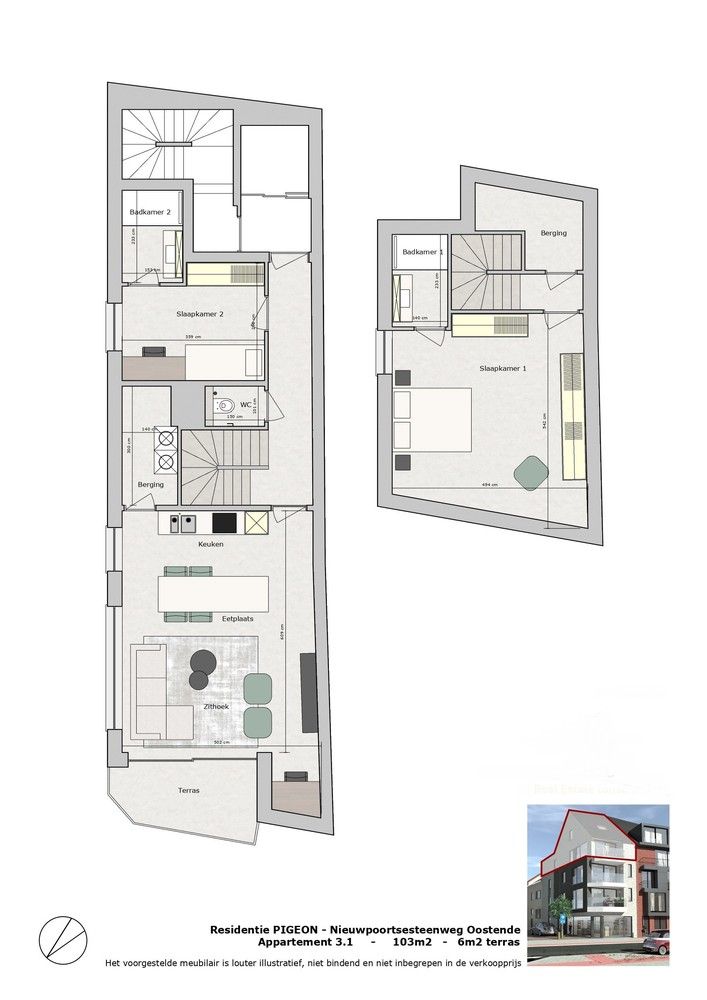
- 120.81 m² bewoonbaar
- 126 m² grond
- 2 Slaapkamer(s)
- 2 Badkamer(s)
- 1 Toilet(ten)
Beschrijving
Ontdek dit prachtige nieuwbouwappartement in Residentie Pigeon te Oostende. Dit moderne duplexappartement met 2 slaapkamers en twee badkamers is gelegen op de derde en vierde verdieping en combineert stijlvol wonen met comfort en een uitstekende ligging. U bevindt zich op wandelafstand van winkels, restaurants, op slechts enkele stappen van het strand en vlakbij het bruisende centrum van Oostende. Bovendien zijn er uitstekende verbindingen met het openbaar vervoer en de snelweg. Dit nieuwbouwappartement is perfect voor wie op zoek is naar een moderne en comfortabele woning aan de kust. Of u nu wilt genieten van het strandleven of op zoek bent naar een waardevolle investering, dit appartement biedt het allemaal. Wees er snel bij en maak van deze kans uw nieuwe thuis in Oostende!
Energie
![]() |
- EPC Certificaat: 35013-G-OMV_2019030861/EP/6029/A001/D01/SD004
- Energieverbruik: 56 kWh/m²/jaar
- E-peil: E0
- Verwarming: Gas
- Beglazing: Standaard dubbel
Op de kaart

Financieel
| Prijs |
|---|
Berekening kosten
Je aankoopkosten? Die heb je snel berekend via de knop hieronder.
Bijkomende info
Gebouw
| Bouwjaar | 2024 |
|---|---|
| Staat | Nieuw |
| Bouwcertificaat | Nee |
| Bewoonbaar (m²) | 120.81 |
| Verdieping | 3 |
| Badkamers | 2 |
| Slaapkamers | 2 |
| Verdiepingen | 3 |
| Garages | 0 |
| Parkeerplaatsen | 0 |
| Toiletten | 1 |
Faciliteiten
| Beglazing | Standaard dubbel |
|---|---|
| Brandstof primaire verwarming | Gas |
| Septische tank | Nee |
Perceel
| Overstromingsgevoelig | Geen |
|---|---|
| Totale oppervlakte (m²) | 126 |
| Bebouwde oppervlakte (m²) | 0 |
| Oppervlakte terras (m²) | 6 |
Vergunning
| Verkavelingsvergunning | Geen beschikbaar |
|---|
Uitrusting
| Investeringspand | Nee |
|---|---|
| Parking | Nee |
| Garage | Nee |
| Zolder | Ja |
| Opslagruimte | Ja |
| Terras | Ja |
| Lift | Ja |
| Rioolaansluiting | Ja |
| Gasaansluiting | Ja |
| Wateraansluiting | Ja |
| Elektriciteitsaansluiting | Ja |
| Internetaansluiting | Ja |
| Telefoonaansluiting | Nee |
| Zonnepanelen | Nee |
| Zonneboiler | Nee |
| Alarm | Nee |
| Videofoon | Ja |
| Grondwaterput | Nee |
Appartementsblok
| Aantal verdiepingen | 3 |
|---|---|
| Lift | Ja |
| Intercom | Nee |
Een pand van
Dermul Vastgoed en Beheer NV
Dermul Vastgoed en Beheer NV
Uw vastgoed in de omgeving van Oostende is een woonst, een tweede woonst, een investering. Het is persoonlijk. En het is financieel een belangrijke transactie.
Dit verdient een professionaliteit aanpak.
Beter nog: met een team van mensen die persoonlijke en professionele service bieden.
Deze meer dan 60 jaar ervaring van de lokale vastgoedmarkt zorgt voor de kennis van de juiste marktwaarde.
Wij kennen Oostende en omstreken als geen ander. We vertellen u het verhaal van de mensen in de Oostendse woonwijken.
PIGEON 03.01
Leer meer over vastgoed
23 March 2026
Op Spotto zoeken als een pro: 10 slimme tips
21 March 2026
Hoeveel kan ik lenen om een huis te kopen?
01 March 2026
Wanneer heb ik een bouwvergunning of omgevingsvergunning nodig?
17 February 2026
