Nieuw Virtual tour
Topligging aan AZ Oostende met 2 slpk, 25 m² terras & garage
€ 298.800
Gouwelozestraat 81/102 - 8400 Oostende
Een pand van Altro Vastgoed Brugge
Overzicht
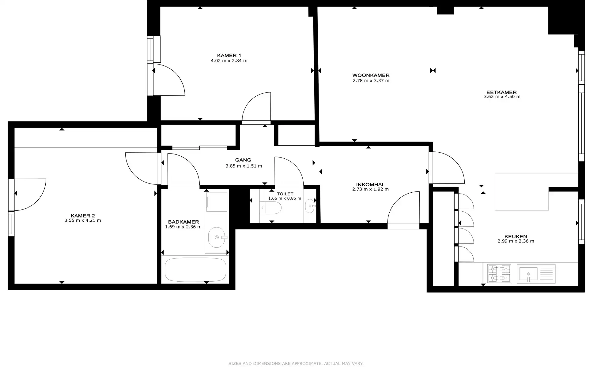
- 84 m² bewoonbaar
- 127 m² grond
- 2 Slaapkamer(s)
- 2 Badkamer(s)
- 1 Living(s)
- 1 Garage(s)
Beschrijving
ALTRO VASTGOED VERKOOPT
Bent u op zoek naar een zorgeloze investering of een comfortabel appartement op een strategische ligging in Oostende?
Dit helder doorloopappartement, gelegen recht tegenover AZ Oostende, combineert licht, ruimte en functionaliteit in één sterk geheel. Met een bewoonbare oppervlakte van 84 m² geniet u van twee ruime slaapkamers, een aangename leefruimte en een open keuken. De achterzijde van het appartement sluit naadloos aan op eenuitzonderlijk grote, west-gerichte terras van 25 m² — een echte meerwaarde voor wie houdt van zon en buitenruimte.
De makkelijk inrijdbare garage én extra parkeerplaats voor de garage en privatieve berging zijn inbegrepen in de prijs, wat dit aanbod bijzonder interessant maakt. Daarnaast is er ook een gemeenschappelijke fietsenstalling voorzien.
Technisch is dit appartement volledig in orde: vernieuwde keukentoestellen, conforme elektrische keuring en een gunstig EPC.
Een sterk totaalpakket op een topligging — interessant voor eigen bewoning, maar ook strategisch als investering als vakantieverhuur of omwille van de nabijheid van het ziekenhuis en andere voorzieningen.
Ontdek zelf de troeven tijdens een bezoek en contacteer vastgoedmakelaar Wim Gevaert via 0473 70 40 71 (7/7) of wim@altro-vastgoed.be
Bent u op zoek naar een zorgeloze investering of een comfortabel appartement op een strategische ligging in Oostende?
Dit helder doorloopappartement, gelegen recht tegenover AZ Oostende, combineert licht, ruimte en functionaliteit in één sterk geheel. Met een bewoonbare oppervlakte van 84 m² geniet u van twee ruime slaapkamers, een aangename leefruimte en een open keuken. De achterzijde van het appartement sluit naadloos aan op eenuitzonderlijk grote, west-gerichte terras van 25 m² — een echte meerwaarde voor wie houdt van zon en buitenruimte.
De makkelijk inrijdbare garage én extra parkeerplaats voor de garage en privatieve berging zijn inbegrepen in de prijs, wat dit aanbod bijzonder interessant maakt. Daarnaast is er ook een gemeenschappelijke fietsenstalling voorzien.
Technisch is dit appartement volledig in orde: vernieuwde keukentoestellen, conforme elektrische keuring en een gunstig EPC.
Een sterk totaalpakket op een topligging — interessant voor eigen bewoning, maar ook strategisch als investering als vakantieverhuur of omwille van de nabijheid van het ziekenhuis en andere voorzieningen.
Ontdek zelf de troeven tijdens een bezoek en contacteer vastgoedmakelaar Wim Gevaert via 0473 70 40 71 (7/7) of wim@altro-vastgoed.be
Bent u op zoek naar een zorgeloze investering of een comfortabel appartement op een strategische ligging in Oostende?
Dit helder doorloopappartement, gelegen recht tegenover AZ Oostende, combineert licht, ruimte en functionaliteit in één sterk geheel. Met een bewoonbare oppervlakte van 84 m² geniet u van twee ruime slaapkamers, een aangename leefruimte en een open keuken. De achterzijde van het appartement sluit naadloos aan op eenuitzonderlijk grote, west-gerichte terras van 25 m² — een echte meerwaarde voor wie houdt van zon en buitenruimte.
De makkelijk inrijdbare garage én extra parkeerplaats voor de garage en privatieve berging zijn inbegrepen in de prijs, wat dit aanbod bijzonder interessant maakt. Daarnaast is er ook een gemeenschappelijke fietsenstalling voorzien.
Technisch is dit appartement volledig in orde: vernieuwde keukentoestellen, conforme elektrische keuring en een gunstig EPC.
Een sterk totaalpakket op een topligging — interessant voor eigen bewoning, maar ook strategisch als investering als vakantieverhuur of omwille van de nabijheid van het ziekenhuis en andere voorzieningen.
Ontdek zelf de troeven tijdens een bezoek.
Dit helder doorloopappartement, gelegen recht tegenover AZ Oostende, combineert licht, ruimte en functionaliteit in één sterk geheel. Met een bewoonbare oppervlakte van 84 m² geniet u van twee ruime slaapkamers, een aangename leefruimte en een open keuken. De achterzijde van het appartement sluit naadloos aan op eenuitzonderlijk grote, west-gerichte terras van 25 m² — een echte meerwaarde voor wie houdt van zon en buitenruimte.
De makkelijk inrijdbare garage én extra parkeerplaats voor de garage en privatieve berging zijn inbegrepen in de prijs, wat dit aanbod bijzonder interessant maakt. Daarnaast is er ook een gemeenschappelijke fietsenstalling voorzien.
Technisch is dit appartement volledig in orde: vernieuwde keukentoestellen, conforme elektrische keuring en een gunstig EPC.
Een sterk totaalpakket op een topligging — interessant voor eigen bewoning, maar ook strategisch als investering als vakantieverhuur of omwille van de nabijheid van het ziekenhuis en andere voorzieningen.
Ontdek zelf de troeven tijdens een bezoek.
Energie
![]() |
- EPC Certificaat: 20210422-0002405041-REs-1
- Energieverbruik: 225 kWh/m²/jaar
- Verwarming: Elektriciteit
- Beglazing: Standaard dubbel
Downloads
Financieel
| Prijs | |
|---|---|
| Kadastraal inkomen (niet geïndexeerd) | € 1.001 |
| Kadastraal inkomen (geïndexeerd) | € 1.001 |
Berekening kosten
Je aankoopkosten? Die heb je snel berekend via de knop hieronder.
Bijkomende info
Gebouw
| Bouwjaar | 1992 |
|---|---|
| Renovatie jaar | 2020 |
| Staat | Goed onderhouden |
| Is beschermd | Nee |
| Bewoonbaar (m²) | 84 |
| Verdieping | 1 |
| Gevels | 2 |
| Gevelbreedte | 7 |
| Zolder | 0 |
| Kelder | 1 |
| Badkamers | 2 |
| Slaapkamers | 2 |
| Verdiepingen | 4 |
| Garages | 1 |
| Keukens | 3 |
| Leefruimtes | 1 |
| Kantoorruimtes | 0 |
| Parkeerplaatsen | 0 |
| Opslagruimtes | 0 |
| Toiletten | 0 |
Ruimtes
| Slaapkamer | 11 m² |
|---|---|
| Slaapkamer | 15 m² |
| Leefruimte | 25 m² |
| Keuken | 7 m² |
| Terras | 25 m² |
Faciliteiten
| Beglazing | Standaard dubbel |
|---|---|
| Luiken | Nee |
| Primair verwarmingstype | Decentrale verwarming |
| Brandstof primaire verwarming | Elektriciteit |
| Brandstof type | Geen |
| Elektrisch keuringsattest | Ja |
| Septische tank | Nee |
Perceel
| Overstromingsgevoelig | Bepaald overstromingsgebied |
|---|---|
| P-score | C |
| G-score | C |
| Voorkeurrecht | Nee |
| Totale oppervlakte (m²) | 127 |
| Oppervlakte terras (m²) | 25 |
| Oriëntatie terras | West |
Vergunning
| Vergunning | Vergunning beschikbaar |
|---|---|
| Verkavelingsvergunning | Geen beschikbaar |
Uitrusting
| Parking | Ja |
|---|---|
| Garage | Ja |
| Kelder | Ja |
| Zolder | Nee |
| Opslagruimte | Nee |
| Tuin | Nee |
| Terras | Ja |
| Lift | Ja |
| Rioolaansluiting | Ja |
| Gasaansluiting | Nee |
| Wateraansluiting | Ja |
| Elektriciteitsaansluiting | Ja |
| Zonnepanelen | Nee |
| Zonneboiler | Nee |
| Thuisbatterij | Nee |
| Alarm | Nee |
| Zwembad | Nee |
| Sauna | Nee |
| Jacuzzi | Nee |
| Videofoon | Ja |
| Domotica | Nee |
| Regenwaterput | Nee |
| Ventilatie | Nee |
Appartementsblok
| Aantal verdiepingen | 4 |
|---|---|
| Lift | Ja |
| Ondergrondse parking | Nee |
| Intercom | Nee |
Een pand van
Altro Vastgoed Brugge
Wij verkopen uw vastgoed, anders én beter!
Bij Altro Vastgoed vinden we een persoonlijke aanpak erg belangrijk, hierbij stellen we de klant steeds centraal en staan we hem/haar bij in het complexe proces van verkopen, aankopen, verhuren en huren van vastgoed. We beschikken over een kwalitatief kantorennetwerk in Vlaanderen en Brussel met een sterke, lokale verankering.
4450
Leer meer over vastgoed
01 March 2026
Wanneer heb ik een bouwvergunning of omgevingsvergunning nodig?
17 February 2026
Hoe breng ik een bod uit op een woning?
24 November 2025
Uitgezocht voor jouw gemeente: Hoeveel stijgt de waarde van je woning door een renovatie?
22 October 2025
