RESIDENTIE SOETELANDE
Een pand van Dermul Vastgoed en Beheer NV
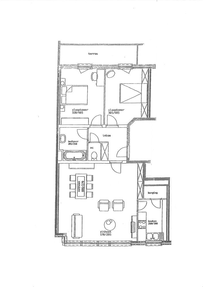
Overzicht
- 86 m² bewoonbaar
- 93 m² grond
- 2 Slaapkamer(s)
- 1 Badkamer(s)
- 1 Toilet(ten)
Beschrijving
Ontdek dit lichtrijke en ruime appartement op de vierde verdieping van de verzorgde Residentie Soetelande, ideaal gelegen in het hart van Oostende. Met zijn twee volwaardige slaapkamers, praktische indeling en een gezellig terras aan de achterzijde, is dit de perfecte woonst of tweede verblijf aan zee. Dankzij de centrale ligging geniet u van het bruisende stadsleven van Oostende, terwijl het appartement zelf rust en comfort biedt. Interesse? Dit instapklare appartement is ideaal als vaste woonst, tweede verblijf of investeringsvastgoed. Maak vandaag nog een afspraak voor een bezichtiging!
Energie
![]() |
- EPC Certificaat: 3626923
- Energieverbruik: 242 kWh/m²/jaar
- E-peil: E0
- Verwarming: Elektriciteit
- Beglazing: Standaard dubbel
Op de kaart

Financieel
| Prijs | |
|---|---|
| Kadastraal inkomen (niet geïndexeerd) | € 1.063 |
| Kadastraal inkomen (geïndexeerd) | € 2.313 |
Berekening kosten
Je aankoopkosten? Die heb je snel berekent via de knop hieronder.
Bijkomende info
Gebouw
| Bouwjaar | 1988 |
|---|---|
| Is beschermd | Nee |
| Bouwcertificaat | Nee |
| Bewoonbaar (m²) | 86 |
| Verdieping | 4 |
| Badkamers | 1 |
| Slaapkamers | 2 |
| Verdiepingen | 5 |
| Garages | 0 |
| Parkeerplaatsen | 0 |
| Toiletten | 1 |
Faciliteiten
| Beglazing | Standaard dubbel |
|---|---|
| Brandstof primaire verwarming | Elektriciteit |
| Septische tank | Nee |
Perceel
| Overstromingsgevoelig | Geen |
|---|---|
| P-score | B |
| G-score | B |
| Totale oppervlakte (m²) | 93 |
| Bebouwde oppervlakte (m²) | 0 |
| Oppervlakte terras (m²) | 7 |
Vergunning
| Verkavelingsvergunning | Geen beschikbaar |
|---|
Uitrusting
| Investeringspand | Nee |
|---|---|
| Parking | Nee |
| Garage | Nee |
| Kelder | Ja |
| Opslagruimte | Ja |
| Terras | Ja |
| Lift | Ja |
| Rioolaansluiting | Ja |
| Gasaansluiting | Nee |
| Wateraansluiting | Ja |
| Elektriciteitsaansluiting | Ja |
| Internetaansluiting | Ja |
| Telefoonaansluiting | Ja |
| Zonnepanelen | Nee |
| Zonneboiler | Nee |
| Alarm | Nee |
| Videofoon | Ja |
| Grondwaterput | Nee |
Appartementsblok
| Aantal verdiepingen | 5 |
|---|---|
| Lift | Ja |
| Intercom | Nee |
Een pand van
Dermul Vastgoed en Beheer NV
Dermul Vastgoed en Beheer NV
Uw vastgoed in de omgeving van Oostende is een woonst, een tweede woonst, een investering. Het is persoonlijk. En het is financieel een belangrijke transactie.
Dit verdient een professionaliteit aanpak.
Beter nog: met een team van mensen die persoonlijke en professionele service bieden.
Deze meer dan 60 jaar ervaring van de lokale vastgoedmarkt zorgt voor de kennis van de juiste marktwaarde.
Wij kennen Oostende en omstreken als geen ander. We vertellen u het verhaal van de mensen in de Oostendse woonwijken.
SOETELANDE 04.01
Leer meer over vastgoed
22 October 2025
Hoeveel kan ik lenen om een huis te kopen?
11 June 2025
Huis kopen met bouwovertreding? Dit moet je weten
11 May 2025
Renoveren? Vraag je Mijn VerbouwPremie aan
22 April 2025
