Nieuw
RESIDENTIE ZANDEWEER
Een pand van Dermul Vastgoed en Beheer NV
Overzicht
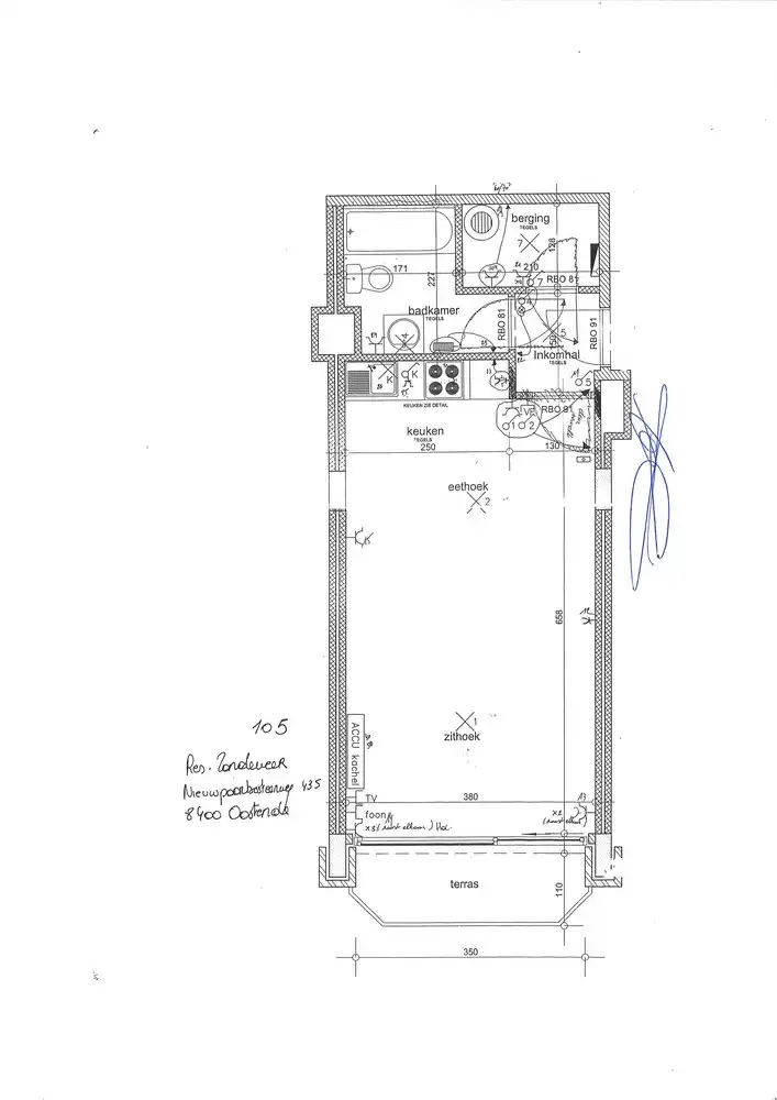
- 42 m² bewoonbaar
- 45 m² grond
- 1 Badkamer(s)
Beschrijving
Prachtige studio met zuidwest gericht terras in residentie Zandeweer vlakbij zee te Mariakerke. De studio is gelegen op de eerste verdieping en beschikt over een goede indeling die zorgt voor een ruimtelijk gevoel. Het grote raam laat natuurlijk licht binnen en creëert een warme en uitnodigende sfeer. De studio ligt in een levendige buurt met winkels, restaurants en openbaar vervoer binnen handbereik. Bovendien bent u snel in het centrum van de stad, wat zorgt voor ultiem wooncomfort. Maak snel een afspraak voor een bezichtiging en ervaar zelf de charme en het comfort van deze prachtige studio vlakbij zee.
Energie
![]() |
- EPC Certificaat: 2331053
- Energieverbruik: 162 kWh/m²/jaar
- E-peil: E0
- Beglazing: Standaard dubbel
Op de kaart

Financieel
| Prijs | |
|---|---|
| Kadastraal inkomen (niet geïndexeerd) | € 623 |
Berekening kosten
Je aankoopkosten? Die heb je snel berekent via de knop hieronder.
Bijkomende info
Gebouw
| Bouwjaar | 2005 |
|---|---|
| Bouwcertificaat | Nee |
| Bewoonbaar (m²) | 42 |
| Verdieping | 1 |
| Badkamers | 1 |
| Slaapkamers | 0 |
| Verdiepingen | 0 |
| Garages | 0 |
| Parkeerplaatsen | 0 |
| Toiletten | 0 |
Faciliteiten
| Beglazing | Standaard dubbel |
|---|---|
| Septische tank | Nee |
Perceel
| Overstromingsgevoelig | Geen |
|---|---|
| P-score | B |
| G-score | B |
| Totale oppervlakte (m²) | 45 |
| Bebouwde oppervlakte (m²) | 0 |
| Oppervlakte terras (m²) | 3 |
Vergunning
| Verkavelingsvergunning | Geen beschikbaar |
|---|
Uitrusting
| Investeringspand | Nee |
|---|---|
| Parking | Nee |
| Garage | Nee |
| Opslagruimte | Ja |
| Terras | Ja |
| Lift | Ja |
| Rioolaansluiting | Ja |
| Gasaansluiting | Nee |
| Wateraansluiting | Ja |
| Elektriciteitsaansluiting | Ja |
| Internetaansluiting | Ja |
| Telefoonaansluiting | Ja |
| Zonnepanelen | Nee |
| Zonneboiler | Nee |
| Alarm | Nee |
| Videofoon | Ja |
| Grondwaterput | Nee |
Appartementsblok
| Lift | Ja |
|---|---|
| Intercom | Ja |
Een pand van
Dermul Vastgoed en Beheer NV
Dermul Vastgoed en Beheer NV
Uw vastgoed in de omgeving van Oostende is een woonst, een tweede woonst, een investering. Het is persoonlijk. En het is financieel een belangrijke transactie.
Dit verdient een professionaliteit aanpak.
Beter nog: met een team van mensen die persoonlijke en professionele service bieden.
Deze meer dan 60 jaar ervaring van de lokale vastgoedmarkt zorgt voor de kennis van de juiste marktwaarde.
Wij kennen Oostende en omstreken als geen ander. We vertellen u het verhaal van de mensen in de Oostendse woonwijken.
ZANDEWEER 01.05
Leer meer over vastgoed
24 November 2025
Uitgezocht voor jouw gemeente: Hoeveel stijgt de waarde van je woning door een renovatie?
22 October 2025
Hoeveel kan ik lenen om een huis te kopen?
11 June 2025
Huis kopen met bouwovertreding? Dit moet je weten
11 May 2025
