Nieuw
RESIDENTIE QUEENS I
€ 495.000
Een pand van Dermul Vastgoed en Beheer NV
Overzicht
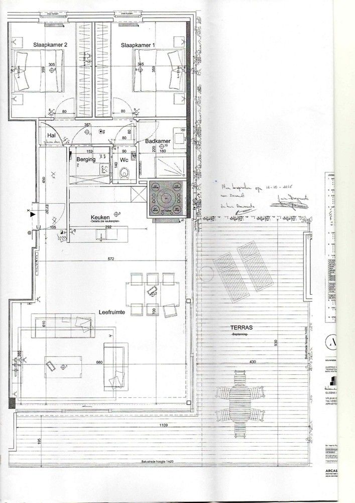
- 97 m² bewoonbaar
- 149 m² grond
- 2 Slaapkamer(s)
- 1 Badkamer(s)
- 1 Toilet(ten)
Overstromingsgevaar gebouw
Overstromingsgevaar perceel
Beschrijving
Welkom in dit stijlvolle en recente dakappartement op de zevende verdieping van de prestigieuze Residentie Queens I, ideaal gelegen vlak bij het centrum van Oostende. Hier geniet u van het beste wat de kust te bieden heeft: rust en comfort, op wandelafstand van winkels, openbaar vervoer, het Maria Hendrikapark, het strand en tal van gezellige eetadresjes. Binnenin wordt u ontvangen door een lichte en ruime leefruimte met grote raampartijen en een open, moderne keuken, de perfecte plek om te ontspannen of gasten te ontvangen. Via de leefruimte heeft u toegang tot het zuid-oost gericht terras, waar u de hele dag door kunt genieten van zon en rust. Het appartement beschikt verder over twee volwaardige slaapkamers en een stijlvolle badkamer met inloopdouche. Dankzij de zonnepanelen woont u hier niet alleen comfortabel, maar ook energiezuinig en toekomstgericht. Of u nu op zoek bent naar een vaste woonst, een tweede verblijf aan zee of een solide investering, dit appartement heeft het allemaal: een topligging, modern wooncomfort en duurzaamheid in één pakket. Interesse? Contacteer ons vandaag nog voor meer informatie of een bezoek, dit unieke dakappartement is het ontdekken waard!
Energie
![]() |
- EPC Certificaat: 3715979
- Energieverbruik: 74 kWh/m²/jaar
- E-peil: E0
- Verwarming: Gas
- Beglazing: Standaard dubbel
Op de kaart

Financieel
| Prijs | |
|---|---|
| Kadastraal inkomen (niet geïndexeerd) | € 1.099 |
| Kadastraal inkomen (geïndexeerd) | € 2.467 |
Berekening kosten
Je aankoopkosten? Die heb je snel berekent via de knop hieronder.
Bijkomende info
Gebouw
| Bouwjaar | 2018 |
|---|---|
| Bouwcertificaat | Nee |
| Bewoonbaar (m²) | 97 |
| Verdieping | 7 |
| Badkamers | 1 |
| Slaapkamers | 2 |
| Verdiepingen | 7 |
| Garages | 0 |
| Parkeerplaatsen | 0 |
| Toiletten | 1 |
Faciliteiten
| Beglazing | Standaard dubbel |
|---|---|
| Brandstof primaire verwarming | Gas |
| Septische tank | Nee |
Perceel
| Overstromingsgevoelig | Geen |
|---|---|
| P-score | D |
| G-score | D |
| Totale oppervlakte (m²) | 149 |
| Bebouwde oppervlakte (m²) | 0 |
| Oppervlakte terras (m²) | 52 |
Vergunning
| Verkavelingsvergunning | Geen beschikbaar |
|---|
Uitrusting
| Investeringspand | Nee |
|---|---|
| Parking | Nee |
| Garage | Nee |
| Opslagruimte | Ja |
| Terras | Ja |
| Lift | Ja |
| Rioolaansluiting | Ja |
| Gasaansluiting | Ja |
| Wateraansluiting | Ja |
| Elektriciteitsaansluiting | Ja |
| Internetaansluiting | Ja |
| Telefoonaansluiting | Ja |
| Zonnepanelen | Ja |
| Zonneboiler | Nee |
| Alarm | Nee |
| Videofoon | Ja |
| Grondwaterput | Nee |
Appartementsblok
| Aantal verdiepingen | 7 |
|---|---|
| Lift | Ja |
| Intercom | Nee |
Een pand van
Dermul Vastgoed en Beheer NV
Dermul Vastgoed en Beheer NV
Uw vastgoed in de omgeving van Oostende is een woonst, een tweede woonst, een investering. Het is persoonlijk. En het is financieel een belangrijke transactie.
Dit verdient een professionaliteit aanpak.
Beter nog: met een team van mensen die persoonlijke en professionele service bieden.
Deze meer dan 60 jaar ervaring van de lokale vastgoedmarkt zorgt voor de kennis van de juiste marktwaarde.
Wij kennen Oostende en omstreken als geen ander. We vertellen u het verhaal van de mensen in de Oostendse woonwijken.
QUEENS I 07.02
Leer meer over vastgoed
Nieuw
22 October 2025
Hoeveel kan ik lenen om een huis te kopen?
11 June 2025
Huis kopen met bouwovertreding? Dit moet je weten
11 May 2025
Renoveren? Vraag je Mijn VerbouwPremie aan
22 April 2025
