Commerciële unit 47m²
Een pand van Agence Vanbeckevoort
Favoriet
Jouw zoektocht
Jouw scoretabel voor dit pand
Aan het laden...
Jouw geplande bezichtigingen
Aan het laden...
Overzicht
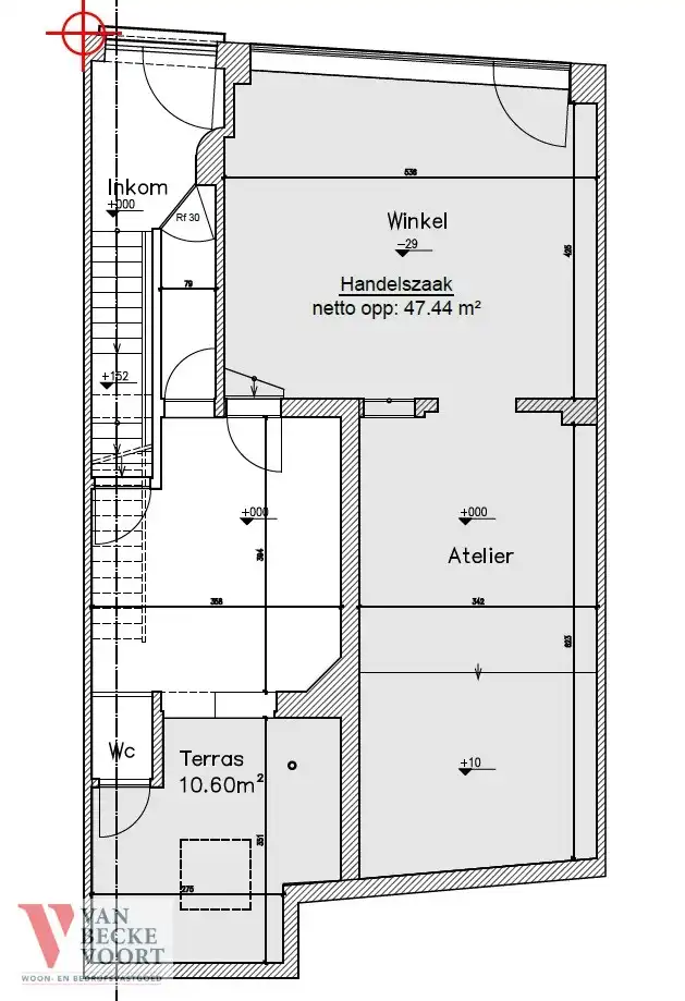
- 47.44 m² bewoonbaar
Overstromingsgevaar gebouw
Overstromingsgevaar perceel
Beschrijving
Instapklaar handelsgelijkvloers (46m²) in gerestaureerd herenhuis. Ideaal gelegen in de doorstroom tussen het Zeedijk, Marie-Joseplein, winkelstraten, Leopoldpark en Indigo-parking. De locatie kent een grote passagegraad door de locatie, maar ook omdat je omringd bent door sterk verankerde lokale handelaars. De winkel heeft een opvallende winkeletalage van 4,60 meter.
Deze gerenoveerde winkelruimte is startklaar (tegelvloer + geschilderd) en vrij bij notariële akte. Geschikt voor diverse winkelactiviteiten of een vrij beroep.
Lage onkosten gemene delen.
Indeling: winkelruimte – atelier – toilet – koer (ca. 10 m²).
Extra troeven:
De locatie die scoort bijzonder goed zowel op zichtbaarheid als bereikbaarheid.
Deze gerenoveerde winkelruimte is startklaar (tegelvloer + geschilderd) en vrij bij notariële akte. Geschikt voor diverse winkelactiviteiten of een vrij beroep.
Lage onkosten gemene delen.
Indeling: winkelruimte – atelier – toilet – koer (ca. 10 m²).
Extra troeven:
- gunstig EPC-label: "C"
- conform elektriciteitsattest
- openbaar vervoer stopt op 50 meter van het gelijkvloers (tram en bus)
- parkeren kan eenvoudig in de omliggende Indigoparkings
De locatie die scoort bijzonder goed zowel op zichtbaarheid als bereikbaarheid.
Energie
![]() |
- EPC Certificaat: 20250606-0003619097-KNR-1
- E-peil: E0
- Verwarming: Gas
- Beglazing: Onbekend
Op de kaart

Financieel
| Prijs | |
|---|---|
| Kadastraal inkomen (niet geïndexeerd) | € 1.289 |
Berekening kosten
Je aankoopkosten? Die heb je snel berekend via de knop hieronder.
Bijkomende info
Gebouw
| Bouwjaar | 1899 |
|---|---|
| Renovatie jaar | 2025 |
| Staat | Goed onderhouden |
| Is beschermd | Nee |
| Bouwcertificaat | Nee |
| Bewoonbaar (m²) | 47.44 |
| Verdieping | 0 |
| Badkamers | 0 |
| Slaapkamers | 0 |
| Verdiepingen | 0 |
| Garages | 0 |
| Parkeerplaatsen | 0 |
| Toiletten | 0 |
Faciliteiten
| Brandstof primaire verwarming | Gas |
|---|---|
| Septische tank | Nee |
Perceel
| Overstromingsgevoelig | Geen |
|---|---|
| P-score | D |
| G-score | D |
| Bebouwde oppervlakte (m²) | 0 |
Vergunning
| Verkavelingsvergunning | Geen beschikbaar |
|---|
Uitrusting
| Investeringspand | Nee |
|---|---|
| Parking | Nee |
| Garage | Nee |
| Lift | Nee |
| Rioolaansluiting | Ja |
| Gasaansluiting | Ja |
| Wateraansluiting | Ja |
| Elektriciteitsaansluiting | Ja |
| Internetaansluiting | Nee |
| Telefoonaansluiting | Nee |
| Zonnepanelen | Nee |
| Zonneboiler | Nee |
| Alarm | Nee |
| Videofoon | Nee |
| Grondwaterput | Nee |
Appartementsblok
| Lift | Nee |
|---|---|
| Intercom | Nee |
Een pand van
Agence Vanbeckevoort
Vanbeckevoort - Immo Oostende
Al drie generaties lang schuimt de familie Vanbeckevoort het vastgoedlandschap in Oostende af. Met bijzondere voorliefde voor bedrijfs- en residentiële panden bouwde het immo-kantoor een sterke expertise uit. Verhuren, verkopen, overnemen of een pand beschikbaar? Vanbeckevoort gaat voluit voor uw dossier. Van marktconforme schatting en de zoektocht naar de juiste kandidaat tot het opstellen en ondertekenen van het contract. Zodat uw vastgoeddromen maximale zuurstof krijgen.
Hendrik Serruyslaan 9
Leer meer over vastgoed
04 January 2026
Zoek je een kantoor, een magazijn of… iets ertussenin? Bedrijfsvastgoed uitgelegd
05 November 2024
Bedrijfsvastgoed in transitie: ontdek de toekomst van werkplekken
16 October 2024
Opbrengsteigendom: een slim pad naar passief inkomen en vermogensgroei
09 September 2024
