Handelspand 105m²
€ 295.000
Een pand van Agence Vanbeckevoort
Overzicht
- 105 m² bewoonbaar
- 170 m² grond
Overstromingsgevaar gebouw
Overstromingsgevaar perceel
Beschrijving
Standingvol handelspand op sfeervolle ligging in de James Ensorgalerij Oostende - hippe centrumlocatie in de authentieke overdekte winkelgalerij tussen de Vlaanderenstraat en de Christinastraat. De galerij is gekend voor zijn klassevolle winkels en horecazaken.
Indeling:
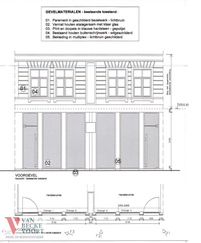
Het gelijkvloers en de eerste verdieping worden gebruikt als commerciële ruimte (samen 105m²) - het handelspand is volledig onderkelderd (65m²) met toilet en stockageruimte - de gevelbreedte bedraagt 6 meter. Momenteel wordt de winkel uitgebaat als kledingzaak, maar de handelsruimte is geschikt voor diverse professionele doeleinden - beschikbaar bij notariële akte.
Indien gewenst kan de naastgelegen winkel (65m²) aangekocht worden.
“Dit pand kan onderhevig zijn aan de renovatieverplichting die door de Vlaamse overheid wordt opgelegd voor niet-residentiële gebouwen. Consulteer voor meer informatie de website van het Vlaams Energie- en Klimaatagentschap via https://www.energiesparen.be/nr/renovatieverplichting.“
Indeling:
Het gelijkvloers en de eerste verdieping worden gebruikt als commerciële ruimte (samen 105m²) - het handelspand is volledig onderkelderd (65m²) met toilet en stockageruimte - de gevelbreedte bedraagt 6 meter. Momenteel wordt de winkel uitgebaat als kledingzaak, maar de handelsruimte is geschikt voor diverse professionele doeleinden - beschikbaar bij notariële akte.
Indien gewenst kan de naastgelegen winkel (65m²) aangekocht worden.
“Dit pand kan onderhevig zijn aan de renovatieverplichting die door de Vlaamse overheid wordt opgelegd voor niet-residentiële gebouwen. Consulteer voor meer informatie de website van het Vlaams Energie- en Klimaatagentschap via https://www.energiesparen.be/nr/renovatieverplichting.“
Energie
![]() |
- EPC Certificaat: 20240329-0003194225-KNR-1
- E-peil: E0
- Verwarming: Elektriciteit
- Beglazing: Onbekend
Let op, de renovatieverplichting in Vlaanderen verplicht de koper om deze woning na aankoop te renoveren tot een betere energieprestatie. Lees er alles over in dit artikel
Op de kaart

Financieel
| Prijs |
|---|
Berekening kosten
Je aankoopkosten? Die heb je snel berekent via de knop hieronder.
Bijkomende info
Gebouw
| Bouwjaar | 1930 |
|---|---|
| Staat | Goed onderhouden |
| Is beschermd | Nee |
| Bouwcertificaat | Nee |
| Bewoonbaar (m²) | 105 |
| Badkamers | 0 |
| Slaapkamers | 0 |
| Verdiepingen | 0 |
| Garages | 0 |
| Parkeerplaatsen | 0 |
| Toiletten | 0 |
Faciliteiten
| Brandstof primaire verwarming | Elektriciteit |
|---|---|
| Septische tank | Nee |
Perceel
| Overstromingsgevoelig | Geen |
|---|---|
| P-score | D |
| G-score | D |
| Totale oppervlakte (m²) | 170 |
| Bebouwde oppervlakte (m²) | 0 |
Vergunning
| Verkavelingsvergunning | Geen beschikbaar |
|---|
Uitrusting
| Investeringspand | Nee |
|---|---|
| Parking | Nee |
| Garage | Nee |
| Lift | Nee |
| Rioolaansluiting | Nee |
| Gasaansluiting | Nee |
| Wateraansluiting | Ja |
| Elektriciteitsaansluiting | Ja |
| Internetaansluiting | Nee |
| Telefoonaansluiting | Nee |
| Zonnepanelen | Nee |
| Zonneboiler | Nee |
| Alarm | Nee |
| Videofoon | Nee |
| Grondwaterput | Nee |
Appartementsblok
| Lift | Nee |
|---|---|
| Intercom | Nee |
Een pand van
Agence Vanbeckevoort
Vanbeckevoort - Immo Oostende
Al drie generaties lang schuimt de familie Vanbeckevoort het vastgoedlandschap in Oostende af. Met bijzondere voorliefde voor bedrijfs- en residentiële panden bouwde het immo-kantoor een sterke expertise uit. Verhuren, verkopen, overnemen of een pand beschikbaar? Vanbeckevoort gaat voluit voor uw dossier. Van marktconforme schatting en de zoektocht naar de juiste kandidaat tot het opstellen en ondertekenen van het contract. Zodat uw vastgoeddromen maximale zuurstof krijgen.
James Ensorgalerij 14
Leer meer over vastgoed
05 November 2024
Bedrijfsvastgoed in transitie: ontdek de toekomst van werkplekken
16 October 2024
Opbrengsteigendom: een slim pad naar passief inkomen en vermogensgroei
09 September 2024
Tijdelijk vastgoed: flexibele oplossingen voor een dynamische markt
12 August 2024
