Handelsgelijkvloers 60m² aan drukke invalsweg Oostende
€ 140.000
Een pand van Agence Vanbeckevoort
Favoriet
Jouw zoektocht
Jouw scoretabel voor dit pand
Aan het laden...
Jouw geplande bezichtigingen
Aan het laden...
Overzicht
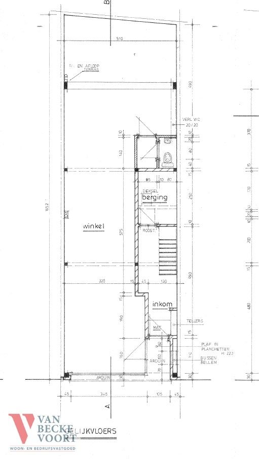
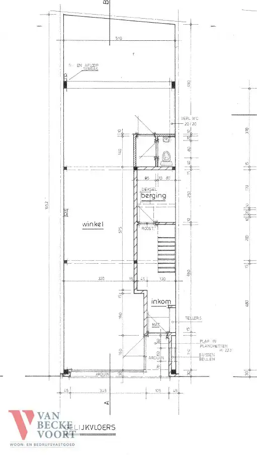
- 60 m² bewoonbaar
Beschrijving
Handelsgelijkvloers gelegen nabij de "gouden driehoek" aan drukke invalsweg Nieuwpoortsesteenweg en kruispunt met Derbylaan / Acacialaan - uitstekende passageligging met hoge visibiliteitsgraad - etalage van 5 meter - nutsvoorzieningen aanwezig om keuken te installeren - parkeermogelijkheden aan het handelsgelijkvloers - netto huurrendement van 7,3% - actueel verhuurd - geschikt voor meerdere handelsdoeleinden.
Momenteel uitgebaat als winkel en ingedeeld als volgt:
Handelsruimte 22m² en stockage 6m² op het gelijkvloers - sanitair - achterliggende ruimte 14m² die geschikt is voor een keuken en rechtstreeks toegang biedt tot de koer 12m². Indien gewenst kan er één winkel gecreëerd worden door de ruimtes samen te voegen.
Extra troeven:
- geen onkosten gemene delen
- ideaal als start-up of als vastgoedbelegging
- invalsweg naar Oostende/Middelkerke
- commerciële ligging
Momenteel uitgebaat als winkel en ingedeeld als volgt:
Handelsruimte 22m² en stockage 6m² op het gelijkvloers - sanitair - achterliggende ruimte 14m² die geschikt is voor een keuken en rechtstreeks toegang biedt tot de koer 12m². Indien gewenst kan er één winkel gecreëerd worden door de ruimtes samen te voegen.
Extra troeven:
- geen onkosten gemene delen
- ideaal als start-up of als vastgoedbelegging
- invalsweg naar Oostende/Middelkerke
- commerciële ligging
Energie
![]() |
- EPC Certificaat: 20200730-0002298826-KNR-1
- E-peil: E0
- Verwarming: Elektriciteit
- Beglazing: Standaard dubbel
Let op, de renovatieverplichting in Vlaanderen verplicht de koper om deze woning na aankoop te renoveren tot een betere energieprestatie. Lees er alles over in dit artikel
Op de kaart

Financieel
| Prijs |
|---|
Berekening kosten
Je aankoopkosten? Die heb je snel berekend via de knop hieronder.
Bijkomende info
Gebouw
| Bouwjaar | 1984 |
|---|---|
| Bouwcertificaat | Nee |
| Bewoonbaar (m²) | 60 |
| Badkamers | 0 |
| Slaapkamers | 0 |
| Verdiepingen | 0 |
| Garages | 0 |
| Parkeerplaatsen | 0 |
| Toiletten | 0 |
Faciliteiten
| Beglazing | Standaard dubbel |
|---|---|
| Brandstof primaire verwarming | Elektriciteit |
| Septische tank | Nee |
Perceel
| Overstromingsgevoelig | Geen |
|---|---|
| P-score | A |
| G-score | A |
| Bebouwde oppervlakte (m²) | 0 |
Vergunning
| Verkavelingsvergunning | Geen beschikbaar |
|---|
Uitrusting
| Investeringspand | Nee |
|---|---|
| Parking | Nee |
| Garage | Nee |
| Lift | Nee |
| Rioolaansluiting | Nee |
| Gasaansluiting | Nee |
| Wateraansluiting | Ja |
| Elektriciteitsaansluiting | Ja |
| Internetaansluiting | Nee |
| Telefoonaansluiting | Nee |
| Zonnepanelen | Nee |
| Zonneboiler | Nee |
| Alarm | Nee |
| Videofoon | Nee |
| Grondwaterput | Nee |
Appartementsblok
| Lift | Nee |
|---|---|
| Intercom | Nee |
Een pand van
Agence Vanbeckevoort
Vanbeckevoort - Immo Oostende
Al drie generaties lang schuimt de familie Vanbeckevoort het vastgoedlandschap in Oostende af. Met bijzondere voorliefde voor bedrijfs- en residentiële panden bouwde het immo-kantoor een sterke expertise uit. Verhuren, verkopen, overnemen of een pand beschikbaar? Vanbeckevoort gaat voluit voor uw dossier. Van marktconforme schatting en de zoektocht naar de juiste kandidaat tot het opstellen en ondertekenen van het contract. Zodat uw vastgoeddromen maximale zuurstof krijgen.
Nieuwpoortsesteenweg 256
Leer meer over vastgoed
04 January 2026
Zoek je een kantoor, een magazijn of… iets ertussenin? Bedrijfsvastgoed uitgelegd
05 November 2024
Bedrijfsvastgoed in transitie: ontdek de toekomst van werkplekken
16 October 2024
Opbrengsteigendom: een slim pad naar passief inkomen en vermogensgroei
09 September 2024
