Handelsgelijkvloers 122m² Zeedijk
€ 165.000
Een pand van Agence Vanbeckevoort
Overzicht
- 150 m² bewoonbaar
Beschrijving
Handelsgelijkvloers gelegen op bijzondere zeedijk-locatie met een totaaloppervlakte van 122m². Het pand ligt op wandelafstand van de surfclub, Venetiaanse Gaanderijen, Wellington Hippodroom, Thermae Palace hotel en Mariakerke en profiteert van een hoge passagegraad van zowel toeristen als lokale Oostendenaars.
Dit veelzijdige pand is volledig naar eigen wens in te richten en leent zich perfect voor zowel eigen gebruik als investering. De handelsruimte kent eindeloze mogelijkheden: van horeca tot detailhandel, kantoor of vrij beroep - extra pluspunt: het gelijkvloers beschikt over het recht om de terrassen aan de Zeedijk te gebruiken.
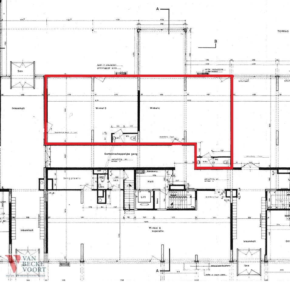
Actueel ingedeeld als volgt:
Handelspanden 3 en 4 worden samen verkocht en kunnen in combinatie met pand 5 worden aangekocht. Dit biedt een interessante flexibiliteit voor zowel investeerders als zelfstandigen.
Troeven:
- Unieke locatie met frontaal zeezicht;
- Mogelijkheid tot aankoop garagebox in de residentie;
- Directe verbinding met de autovrije zeedijk;
- Brede gevel voor maximale visibiliteit;
- Veelzijdige en flexibele indeling;
- Gebruiksrecht van de terrassen aan de Zeedijk.
“Dit pand kan onderhevig zijn aan de renovatieverplichting die door de Vlaamse overheid wordt opgelegd voor niet-residentiële gebouwen. Consulteer voor meer informatie de website van het Vlaams Energie- en Klimaatagentschap via https://www.energiesparen.be/nr/renovatieverplichting.“
Dit veelzijdige pand is volledig naar eigen wens in te richten en leent zich perfect voor zowel eigen gebruik als investering. De handelsruimte kent eindeloze mogelijkheden: van horeca tot detailhandel, kantoor of vrij beroep - extra pluspunt: het gelijkvloers beschikt over het recht om de terrassen aan de Zeedijk te gebruiken.
Actueel ingedeeld als volgt:
- Handelspand 3 - 50m²: aanwezigheid van toilet en kelder
- Handelspand 4 - 72m²
- Mogelijkheid aankoop van een garagebox met extra bergruimte aan de linkerzijde (vraagprijs 100.000 euro)
Handelspanden 3 en 4 worden samen verkocht en kunnen in combinatie met pand 5 worden aangekocht. Dit biedt een interessante flexibiliteit voor zowel investeerders als zelfstandigen.
Troeven:
- Unieke locatie met frontaal zeezicht;
- Mogelijkheid tot aankoop garagebox in de residentie;
- Directe verbinding met de autovrije zeedijk;
- Brede gevel voor maximale visibiliteit;
- Veelzijdige en flexibele indeling;
- Gebruiksrecht van de terrassen aan de Zeedijk.
“Dit pand kan onderhevig zijn aan de renovatieverplichting die door de Vlaamse overheid wordt opgelegd voor niet-residentiële gebouwen. Consulteer voor meer informatie de website van het Vlaams Energie- en Klimaatagentschap via https://www.energiesparen.be/nr/renovatieverplichting.“
Energie
![]() |
- EPC Certificaat: 20200319-0002261622-KNR-1
- E-peil: E0
- Verwarming: Gas
- Beglazing: Enkel
Let op, de renovatieverplichting in Vlaanderen verplicht de koper om deze woning na aankoop te renoveren tot een betere energieprestatie. Lees er alles over in dit artikel
Op de kaart

Financieel
| Prijs | |
|---|---|
| Kadastraal inkomen (niet geïndexeerd) | € 2.121 |
Berekening kosten
Je aankoopkosten? Die heb je snel berekent via de knop hieronder.
Bijkomende info
Gebouw
| Bouwjaar | 1974 |
|---|---|
| Staat | Te renoveren |
| Bouwcertificaat | Nee |
| Bewoonbaar (m²) | 150 |
| Badkamers | 0 |
| Slaapkamers | 0 |
| Verdiepingen | 0 |
| Garages | 0 |
| Parkeerplaatsen | 0 |
| Toiletten | 0 |
Faciliteiten
| Beglazing | Enkel |
|---|---|
| Brandstof primaire verwarming | Gas |
| Septische tank | Nee |
Perceel
| Overstromingsgevoelig | Geen |
|---|---|
| P-score | A |
| G-score | A |
| Bebouwde oppervlakte (m²) | 0 |
Vergunning
| Verkavelingsvergunning | Geen beschikbaar |
|---|
Uitrusting
| Investeringspand | Nee |
|---|---|
| Parking | Nee |
| Garage | Nee |
| Lift | Nee |
| Rioolaansluiting | Nee |
| Gasaansluiting | Ja |
| Wateraansluiting | Ja |
| Elektriciteitsaansluiting | Ja |
| Internetaansluiting | Nee |
| Telefoonaansluiting | Nee |
| Zonnepanelen | Nee |
| Zonneboiler | Nee |
| Alarm | Nee |
| Videofoon | Nee |
| Grondwaterput | Nee |
Appartementsblok
| Lift | Nee |
|---|---|
| Intercom | Nee |
Een pand van
Agence Vanbeckevoort
Vanbeckevoort - Immo Oostende
Al drie generaties lang schuimt de familie Vanbeckevoort het vastgoedlandschap in Oostende af. Met bijzondere voorliefde voor bedrijfs- en residentiële panden bouwde het immo-kantoor een sterke expertise uit. Verhuren, verkopen, overnemen of een pand beschikbaar? Vanbeckevoort gaat voluit voor uw dossier. Van marktconforme schatting en de zoektocht naar de juiste kandidaat tot het opstellen en ondertekenen van het contract. Zodat uw vastgoeddromen maximale zuurstof krijgen.
Zeedijk 90 - winkel 3 en 4
Leer meer over vastgoed
05 November 2024
Bedrijfsvastgoed in transitie: ontdek de toekomst van werkplekken
16 October 2024
Opbrengsteigendom: een slim pad naar passief inkomen en vermogensgroei
09 September 2024
Tijdelijk vastgoed: flexibele oplossingen voor een dynamische markt
12 August 2024
