Nieuw
Ruime gezinswoning nabij de Spuikom in Oostende
Een pand van Altro Vastgoed Brugge
Overzicht
- 175 m² bewoonbaar
- 120 m² grond
- 4 Slaapkamer(s)
- 1 Badkamer(s)
- 1 Toilet(ten)
- 1 Tuin
Overstromingsgevaar gebouw
Overstromingsgevaar perceel
Beschrijving
ALTRO VASTGOED VERKOOPT
Gezinswoning nabij de Spuikom – ruimte, licht en comfort
In een rustige straat nabij de Spuikom bevindt zich deze verzorgde en betaalbare gezinswoning met een verrassend ruim volume. De woning combineert een functionele indeling met hedendaags comfort en vormt een interessante opportuniteit voor wie op zoek is naar ruimte, licht en een vlotte ligging in Oostende.
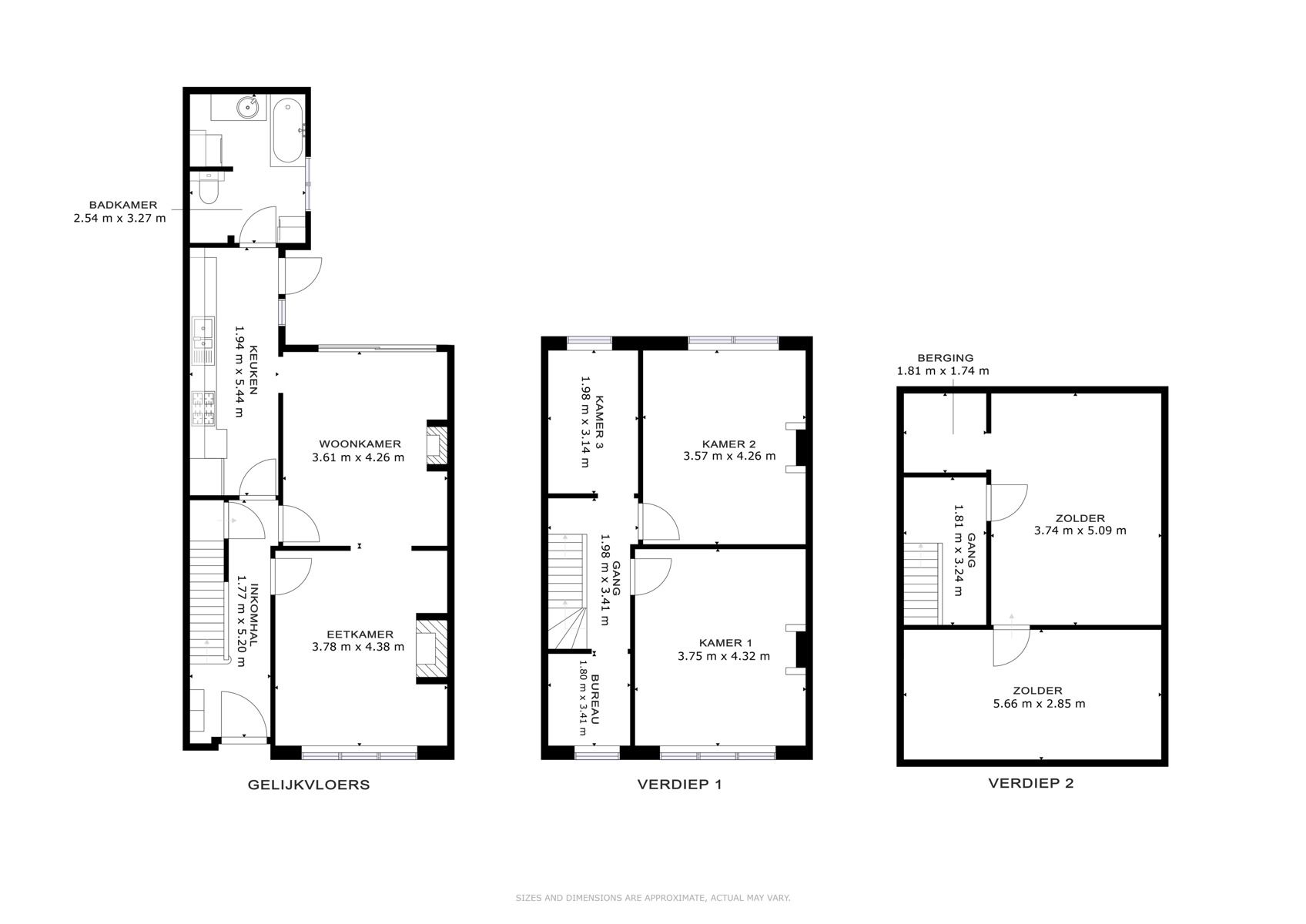
Op het gelijkvloers verwelkomt een ruime, lichtrijke leefruimte u in een aangenaam woongevoel, aansluitend op de keuken. Achter de keuken bevinden zich de badkamer en wasberging. Via de trappenhal heeft u toegang tot de praktische kelder.
De eerste verdieping biedt twee volwaardige slaapkamers, een derde kleinere slaapkamer en een aparte bureauruimte—ideaal voor thuiswerk of hobby. Op de tweede verdieping, bereikbaar via een vaste trap, bevindt zich een zeer grote multifunctionele ruimte, perfect in te richten als vierde slaapkamer, aangevuld met een ruime berging.
Buiten geniet u van een aangenaam terras met berging. Bovendien is de woning uitgerust met zonnepanelen en een thuisbatterij, wat bijdraagt aan een lagere energiekost. Met een EPC-label C valt deze woning niet onder de renovatieverplichting.
Een bestemming die meegroeit met uw plannen, op een locatie die comfort en bereikbaarheid combineert.
Interesse?
Plan uw bezoek met vastgoedmakelaar Wim Gevaert via 0473 70 40 71 (7/7) of wim@altro-vastgoed.be
Gezinswoning nabij de Spuikom – ruimte, licht en comfort
In een rustige straat nabij de Spuikom bevindt zich deze verzorgde en betaalbare gezinswoning met een verrassend ruim volume. De woning combineert een functionele indeling met hedendaags comfort en vormt een interessante opportuniteit voor wie op zoek is naar ruimte, licht en een vlotte ligging in Oostende.
Op het gelijkvloers verwelkomt een ruime, lichtrijke leefruimte u in een aangenaam woongevoel, aansluitend op de keuken. Achter de keuken bevinden zich de badkamer en wasberging. Via de trappenhal heeft u toegang tot de praktische kelder.
De eerste verdieping biedt twee volwaardige slaapkamers, een derde kleinere slaapkamer en een aparte bureauruimte—ideaal voor thuiswerk of hobby. Op de tweede verdieping, bereikbaar via een vaste trap, bevindt zich een zeer grote multifunctionele ruimte, perfect in te richten als vierde slaapkamer, aangevuld met een ruime berging.
Buiten geniet u van een aangenaam terras met berging. Bovendien is de woning uitgerust met zonnepanelen en een thuisbatterij, wat bijdraagt aan een lagere energiekost. Met een EPC-label C valt deze woning niet onder de renovatieverplichting.
Een bestemming die meegroeit met uw plannen, op een locatie die comfort en bereikbaarheid combineert.
Interesse?
Plan uw bezoek met vastgoedmakelaar Wim Gevaert via 0473 70 40 71 (7/7) of wim@altro-vastgoed.be
Gezinswoning nabij de Spuikom – ruimte, licht en comfort
In een rustige straat nabij de Spuikom bevindt zich deze verzorgde en betaalbare gezinswoning met een verrassend ruim volume. De woning combineert een functionele indeling met hedendaags comfort en vormt een interessante opportuniteit voor wie op zoek is naar ruimte, licht en een vlotte ligging in Oostende.
Op het gelijkvloers verwelkomt een ruime, lichtrijke leefruimte u in een aangenaam woongevoel, aansluitend op de keuken. Achter de keuken bevinden zich de badkamer en wasberging. Via de trappenhal heeft u toegang tot de praktische kelder.
De eerste verdieping biedt twee volwaardige slaapkamers, een derde kleinere slaapkamer en een aparte bureauruimte—ideaal voor thuiswerk of hobby. Op de tweede verdieping, bereikbaar via een vaste trap, bevindt zich een zeer grote multifunctionele ruimte, perfect in te richten als vierde slaapkamer, aangevuld met een ruime berging.
Buiten geniet u van een aangenaam terras met berging. Bovendien is de woning uitgerust met zonnepanelen en een thuisbatterij, wat bijdraagt aan een lagere energiekost. Met een EPC-label C valt deze woning niet onder de renovatieverplichting.
Een bestemming die meegroeit met uw plannen, op een locatie die comfort en bereikbaarheid combineert.
Interesse?
In een rustige straat nabij de Spuikom bevindt zich deze verzorgde en betaalbare gezinswoning met een verrassend ruim volume. De woning combineert een functionele indeling met hedendaags comfort en vormt een interessante opportuniteit voor wie op zoek is naar ruimte, licht en een vlotte ligging in Oostende.
Op het gelijkvloers verwelkomt een ruime, lichtrijke leefruimte u in een aangenaam woongevoel, aansluitend op de keuken. Achter de keuken bevinden zich de badkamer en wasberging. Via de trappenhal heeft u toegang tot de praktische kelder.
De eerste verdieping biedt twee volwaardige slaapkamers, een derde kleinere slaapkamer en een aparte bureauruimte—ideaal voor thuiswerk of hobby. Op de tweede verdieping, bereikbaar via een vaste trap, bevindt zich een zeer grote multifunctionele ruimte, perfect in te richten als vierde slaapkamer, aangevuld met een ruime berging.
Buiten geniet u van een aangenaam terras met berging. Bovendien is de woning uitgerust met zonnepanelen en een thuisbatterij, wat bijdraagt aan een lagere energiekost. Met een EPC-label C valt deze woning niet onder de renovatieverplichting.
Een bestemming die meegroeit met uw plannen, op een locatie die comfort en bereikbaarheid combineert.
Interesse?
Energie
![]() |
- EPC Certificaat: 20251205-0003750690-RES-1
- Energieverbruik: 297 kWh/m²/jaar
Op de kaart

Downloads
- bodemattest (19).pdf (pdf)
- kadastraal plan (14).pdf (pdf)
- stedenbouwkundige info.pdf (pdf)
- EK .pdf (pdf)
Financieel
| Prijs | |
|---|---|
| Kadastraal inkomen (niet geïndexeerd) | € 560 |
Berekening kosten
Je aankoopkosten? Die heb je snel berekent via de knop hieronder.
Bijkomende info
Gebouw
| Bouwjaar | 1956 |
|---|---|
| Staat | Goed onderhouden |
| Bewoonbaar (m²) | 175 |
| Gevels | 3 |
| Badkamers | 1 |
| Slaapkamers | 4 |
| Verdiepingen | 3 |
| Parkeerplaatsen | 0 |
| Doucheruimtes | 0 |
| Toiletten | 1 |
Faciliteiten
| Type vloer | |
|---|---|
| Keuken uitrusting | Goed uitgerust |
| Elektrisch keuringsattest | Nee |
Perceel
| P-score | D |
|---|---|
| G-score | D |
| Voorkeurrecht | Nee |
| Totale oppervlakte (m²) | 120 |
| Tuin oppervlakte (m²) | 120 |
Vergunning
| Vergunning | Vergunning beschikbaar |
|---|---|
| Verkavelingsvergunning | Geen beschikbaar |
| Bouwovertreding | Geen |
| Bouwovertreding dagvaardiging | Geen |
Uitrusting
| Geschikt voor rolstoelgebruikers | Nee |
|---|---|
| Parking | Nee |
| Garage | Nee |
| Thuiskantoor | Ja |
| Zolder | Ja |
| Tuin | Ja |
| Terras | Ja |
| Lift | Nee |
| Wateraansluiting | Ja |
| Elektriciteitsaansluiting | Ja |
| TV aansluiting | Ja |
| Telefoonaansluiting | Ja |
| Zwembad | Nee |
| Zwemvijver | Nee |
Een pand van
Altro Vastgoed Brugge
Wij verkopen uw vastgoed, anders én beter!
Bij Altro Vastgoed vinden we een persoonlijke aanpak erg belangrijk, hierbij stellen we de klant steeds centraal en staan we hem/haar bij in het complexe proces van verkopen, aankopen, verhuren en huren van vastgoed. We beschikken over een kwalitatief kantorennetwerk in Vlaanderen en Brussel met een sterke, lokale verankering.
Leer meer over vastgoed
Nieuw
24 November 2025
Uitgezocht voor jouw gemeente: Hoeveel stijgt de waarde van je woning door een renovatie?
22 October 2025
Hoeveel kan ik lenen om een huis te kopen?
11 June 2025
Huis kopen met bouwovertreding? Dit moet je weten
11 May 2025
