Garagebox te koop in nieuwbouwproject te centrum Middelkerke!
Een pand van Dewaele Vastgoed
Overzicht
Beschrijving
Interessante investeringsmogelijkheid in het centrum van Middelkerke! Deze garagebox is te koop op het gelijkvloers van de residentie Tempête, met ingang via de Gentstraat te Middelkerke.
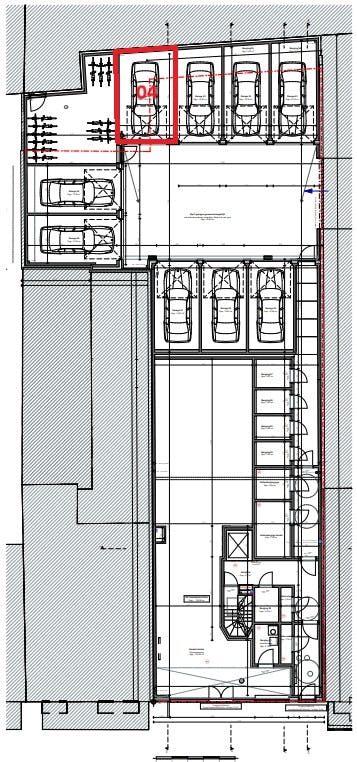
De garagebox (nr. 4) is centraal gelegen in het project residentie Tempête (Paul de Smet de Naeyerstraat 21), met toegang via Gentstraat. De oppervlakte van de garagebox bedraagt 19m².
Makkelijk in en uit te rijden en gelegen op een topligging in Middelkerke.
Afmetingen:
- Diepte: 5,36m
- Breedte: 3,51m
Algemeen:
- verkoop onder registratie en BTW-stelsel
- Stedenbouw: Vg/Wg/Gmo/Gvkr/Vv
Bent u op zoek naar een garagebox te koop, op een centrale locatie te Middelkerke? Contacteer ons kantoor voor meer informatie!
Makkelijk in en uit te rijden en gelegen op een topligging in Middelkerke.
Afmetingen:
- Diepte: 5,36m
- Breedte: 3,51m
Algemeen:
- verkoop onder registratie en BTW-stelsel
- Stedenbouw: Vg/Wg/Gmo/Gvkr/Vv
Bent u op zoek naar een garagebox te koop, op een centrale locatie te Middelkerke? Contacteer ons kantoor voor meer informatie!
Energie
Op de kaart

Financieel
| Prijs |
|---|
Bijkomende info
Gebouw
| Bouwjaar | 2026 |
|---|---|
| Staat | Nieuw |
Uitrusting
| Investeringspand | Ja |
|---|---|
| Parking | Nee |
| Garage | Ja |
| Thuiskantoor | Nee |
| Opslagruimte | Nee |
| Tuin | Nee |
| Terras | Nee |
| Lift | Nee |
Een pand van
Dewaele Vastgoed
Dewaele Real Estate nv
Dewaele Real Estate nv
D8430-25086-G4
Leer meer over vastgoed
Nieuw
24 November 2025
Uitgezocht voor jouw gemeente: Hoeveel stijgt de waarde van je woning door een renovatie?
22 October 2025
Hoeveel kan ik lenen om een huis te kopen?
11 June 2025
Huis kopen met bouwovertreding? Dit moet je weten
11 May 2025