Garagebox te koop in nieuwbouwproject te centrum Middelkerke!
Een pand van Dewaele Vastgoed
Favoriet
Jouw zoektocht
Jouw scoretabel voor dit pand
Aan het laden...
Jouw geplande bezichtigingen
Aan het laden...
Overzicht
Beschrijving
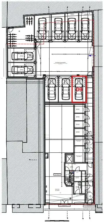
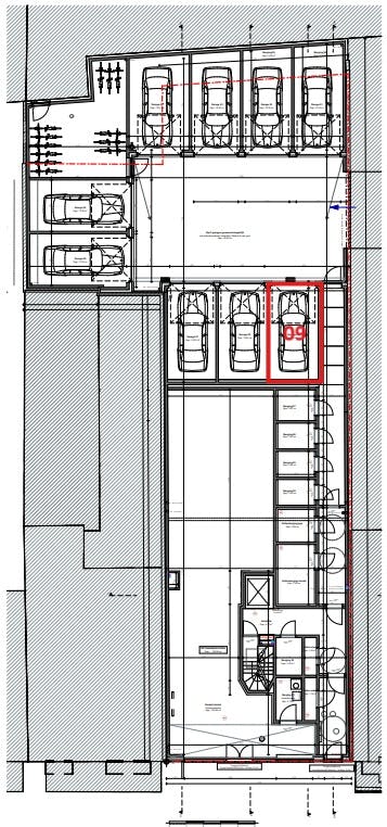
Interessante investeringsmogelijkheid in het centrum van Middelkerke! Deze garagebox is te koop op het gelijkvloers van de residentie Tempête, met ingang via de Gentstraat te Middelkerke.
De garagebox (nr. 9) is centraal gelegen in het project residentie Tempête (Paul de Smet de Naeyerstraat 21), met toegang via Gentstraat. De oppervlakte van de garagebox bedraagt 15m².
Makkelijk in en uit te rijden en gelegen op een topligging in Middelkerke.
Afmetingen:
- Diepte: 5,50m
- Breedte: 2,85m
Algemeen:
- verkoop onder registratie en BTW-stelsel
- Stedenbouw: Vg/Wg/Gmo/Gvkr/Vv
Bent u op zoek naar een garagebox te koop, op een centrale locatie te Middelkerke? Contacteer ons kantoor voor meer informatie!
Makkelijk in en uit te rijden en gelegen op een topligging in Middelkerke.
Afmetingen:
- Diepte: 5,50m
- Breedte: 2,85m
Algemeen:
- verkoop onder registratie en BTW-stelsel
- Stedenbouw: Vg/Wg/Gmo/Gvkr/Vv
Bent u op zoek naar een garagebox te koop, op een centrale locatie te Middelkerke? Contacteer ons kantoor voor meer informatie!
Energie
Op de kaart

Financieel
| Prijs |
|---|
Bijkomende info
Gebouw
| Bouwjaar | 2026 |
|---|---|
| Staat | Nieuw |
Uitrusting
| Investeringspand | Ja |
|---|---|
| Parking | Nee |
| Garage | Ja |
| Thuiskantoor | Nee |
| Opslagruimte | Nee |
| Tuin | Nee |
| Terras | Nee |
| Lift | Nee |
Een pand van
Dewaele Vastgoed
Dewaele Real Estate nv
Dewaele Real Estate nv
D8430-25086-G9
Leer meer over vastgoed
23 March 2026
Op Spotto zoeken als een pro: 10 slimme tips
21 March 2026
Hoeveel kan ik lenen om een huis te kopen?
01 March 2026
Wanneer heb ik een bouwvergunning of omgevingsvergunning nodig?
17 February 2026